賃貸マンション
リブゼ横浜サザンピアリの賃貸物件情報(1DK/3階)
| 家賃 | 管理費等 | 敷金 | 礼金 | 間取り | 専有面積 |
|---|---|---|---|---|---|
| 9.8万円 | 1.5万円 | 9.8万円 | 9.8万円 | 1DK | 37.33m2 |
入居決定でお祝い金最大100,000円
- 保証金
- -
- 償却・敷引
- -
- 築年数
- 築20年
- 所在階
- 3階
- 向き
- -
- 交通
- ブルーライン 弘明寺駅(横浜市営) 徒歩5分
ブルーライン 蒔田駅 徒歩9分
京急本線 弘明寺駅(京急) 徒歩13分
- 所在地
- 神奈川県横浜市南区通町
リブゼ横浜サザンピアリ
[地図を表示]
Point
追焚・浴室乾燥機など人気の設備充実。オートロックでセキュリティ面安心です。スーパーや、コンビニが近くにある便利な立地。初期費用の分割、その他諸条件お気軽にご相談ください。
提供:アルプスの賃貸関内南口支店(株)アルプス建設(SUUMO経由)

詳細情報 リブゼ横浜サザンピアリ
物件紹介
リブゼ横浜サザンピアリはブルーライン弘明寺駅から徒歩5分にあり、駅近で通勤通学に便利なマンションです。
このお部屋は2階以上に位置しているので、通行人や周囲の住人からの視線が気になりにくく、防犯面でも安心。建物のエントランスはオートロックがついており、インターホンにはTVモニタもついているため、相手の顔を確認してから来客対応することができます。
人気の角部屋で周囲の居住者の生活音も気になりにくく、また、フローリングのお部屋なのでお掃除もラクラク。キッチンはシステムキッチン仕様になっていますので、お料理好きの方にもぴったり。バス・トイレは別なので、のんびりお風呂タイムも楽しめるでしょう。また、雨の日でも浴室乾燥機を使えば、お洗濯も問題ありません。
建物にはエレベーターがついているので、重い荷物があっても安心。
このお部屋は2階以上に位置しているので、通行人や周囲の住人からの視線が気になりにくく、防犯面でも安心。建物のエントランスはオートロックがついており、インターホンにはTVモニタもついているため、相手の顔を確認してから来客対応することができます。
人気の角部屋で周囲の居住者の生活音も気になりにくく、また、フローリングのお部屋なのでお掃除もラクラク。キッチンはシステムキッチン仕様になっていますので、お料理好きの方にもぴったり。バス・トイレは別なので、のんびりお風呂タイムも楽しめるでしょう。また、雨の日でも浴室乾燥機を使えば、お洗濯も問題ありません。
建物にはエレベーターがついているので、重い荷物があっても安心。
お金・契約の情報
※「-」と表示されているものは、実際は料金が発生するものもございます。詳細はお問い合わせください。
| 家賃 | 9.8万円 | 管理費・共益費 | 1.5万円 |
|---|---|---|---|
| 敷金 | 9.8万円 | 礼金 | 9.8万円 |
| 入居決定でお祝い金最大100,000円 | |||
| 保証金 | - | 償却・敷引 | - |
| 住宅保険料 | - | 更新料 | - |
| 保証会社利用 | 必須 | 保証会社名 | - |
| 保証会社費用 | - | 保証会社備考 | 保証会社利用必 初回・総賃料の25パーセント。月額保証料・800円。 |
| 契約形態 | - | 契約期間 | - |
| 入居・引渡期間 | - | 現況 | - |
| 契約備考 | 【春からの新入生・新社会人様大歓迎!入居日ご相談ください】退去時室内清掃費:57200円・エアコン清掃費:14300円/台。更新時事務手数料:5500円。短期解約違約金:賃料1ヶ月分/1年未満。法人契約は敷金2ヶ月・礼金1.5ヶ月。駐輪場:300円/月・バイク置場:1500円/月。初期費用を分割可能です!(スムーズ・クレジット決済) 合計5.39万円(内訳:事務手数料0.55万円24時間サポート1.32万円鍵交換代3.52万円) 更新料 新賃料1.00ヶ月分 1DK 二人入居可 普通借家2年 損保【2万円2年】 バストイレ別、バルコニー、エアコン、クロゼット、フローリング、TVインターホン、浴室乾燥機、オートロック、室内洗濯置、シューズボックス、システムキッチン、追焚機能浴室、角住戸、温水洗浄便座、脱衣所、エレベーター、洗面所独立、洗面化粧台、駐輪場、防犯カメラ、IHクッキングヒーター、照明付、分譲賃貸、グリル付、バイク置場、2沿線利用可、エアコン2台、ディンプルキー、ダブルロックキー、2駅利用可、3駅以上利用可、駅徒歩5分以内、駅徒歩10分以内、24時間ゴミ出し可、敷地内ごみ置き場、都市ガス、ダウンライト、保証会社利用可、IT重説対応物件、初期費用カード決済可 入居日:'26年3月中旬 | ||
部屋の情報
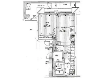
| 間取り | 1DK | 専有面積 | 37.33m2 |
|---|---|---|---|
| 所在階 / 向き | 3階 / - | バルコニー面積 | - |
| 水道 / ガス | - | ||
| 設備 | バス・トイレ別、2階以上、オートロック、テレビドアホン、浴室乾燥機、追い焚き、システムキッチン、エアコン、エレベーター、温水洗浄便座、角部屋、バルコニー、フローリング、洗髪洗面化粧台、コンロ:IH、洗濯機:室内 | ||
| 当社物件ID | 160129471 | ||
建物の情報
| 建物名 | リブゼ横浜サザンピアリ | ||
|---|---|---|---|
| 所在地 | 神奈川県横浜市南区通町 | ||
| 交通 | ブルーライン 弘明寺駅(横浜市営) 徒歩5分 ブルーライン 蒔田駅 徒歩9分 京急本線 弘明寺駅(京急) 徒歩13分 | ||
| 階数 | 10階建 | 総戸数 | 26戸 |
| 築年月 | 2006年10月 / 築20年 | エレベーター | あり |
| 駐車場 | 近隣 100m20000円 | バイク置き場 | あり |
| 駐輪場 | あり | 管理人/管理会社 | - |
| 周辺環境 | その他 キッチンオリジン 蒔田店(飲食店)まで974m その他 まいばすけっと 蒔田駅北店(スーパー)まで690m その他 セブンイレブン 通町店(コンビニ)まで179m その他 クリエイトSD 弘明寺観音通り店(ドラッグストア)まで829m その他 ザ・ダイソー DAISO ビエラ蒔田店(その他)まで756m その他 マツモトキヨシ井土ヶ谷駅前店(病院)まで992m | ||
| 建物種別 | マンション | 建物構造 | RC(鉄筋コンクリート) |
この部屋の取扱い不動産会社
| 会社名 | アルプスの賃貸関内南口支店(株)アルプス建設(SUUMO経由) | ||
|---|---|---|---|
| 所在地 | 神奈川県横浜市中区翁町1-1-6 産友パークビル2F | 交通 | - |
| 営業時間 | 10:00~18:30(事前予約で時間外も対応可) | 定休日 | 年末年始 |
| 免許番号 | 神奈川県知事14677 | 取引態様 | 仲介 |
| 不動産会社管理番号 | 100480416035 | 当社管理番号 | 89 |
| 所属団体 | (公社)神奈川県宅地建物取引業協会会員 | ||
| 公正取引協議会 | (公社)首都圏不動産公正取引協議会加盟 | ||
| 取扱い物件情報 | 物件詳細へ | ||
※各種情報と現状に差異がある場合は、現状優先となります。問い合わせをすることで、より詳しい条件、情報を確認する事ができます。
提供:アルプスの賃貸関内南口支店(株)アルプス建設(SUUMO経由)
この物件が気になったら掲載期限まであと10日
リブゼ横浜サザンピアリに条件(家賃・エリア)が近い物件一覧
| 写真 | 家賃 管理費等 | 敷金 礼金 | 間取り 専有面積 | 築年数 | 最寄り駅 所在地 | キープ | 詳細 |
|---|---|---|---|---|---|---|---|
マンション ニチエーイン川崎25(2DK/4階) | |||||||
![]() | 13万円 3,000円 | 13万円 13万円 | 2DK 53.11m2 | 築33年 | JR南武線 川崎駅 徒歩10分 JR南武線 尻手駅 徒歩11分 京急本線 八丁畷駅 徒歩20分 神奈川県川崎市幸区南幸町 | 詳細を見る | |
アパート パストラル湘南I・II(3DK/2階) | |||||||
![]() | 5.9万円 3,000円 | なし なし | 3DK 42m2 | 築38年 | 神奈川県藤沢市遠藤 | 詳細を見る | |
アパート センティール中幸町(1K/1階) | |||||||
![]() | 9万円 3,000円 | なし 9万円 | 1K 29.17m2 | 築16年 | JR京浜東北線 川崎駅 徒歩9分 JR東海道本線 川崎駅 徒歩9分 JR南武線 川崎駅 徒歩9分 神奈川県川崎市幸区中幸町 | 詳細を見る | |
アパート リブリ・ケー&エム(1K/2階) | |||||||
![]() | 6.7万円 3,000円 | なし 3.35万円 | 1K 16.56m2 | 築9年 | 東急田園都市線 梶が谷駅 徒歩4分 JR南武線 武蔵溝ノ口駅 徒歩8分 JR南武線 津田山駅 徒歩18分 神奈川県川崎市高津区下作延 | 詳細を見る | |
アパート リブリ・武蔵新城(1K/1階) | |||||||
![]() | 8.4万円 4,000円 | なし 8.4万円 | 1K 26.08m2 | 築9年 | JR南武線 武蔵新城駅 徒歩11分 JR南武線 武蔵溝ノ口駅 徒歩26分 東急田園都市線 梶が谷駅 徒歩27分 神奈川県川崎市高津区新作 | 詳細を見る | |
マンション メゾン渡田新町(1LDK/2階) | |||||||
![]() | 12.4万円 1万円 | なし 24.8万円 | 1LDK 40.8m2 | 新築 | 京急本線 八丁畷駅 徒歩16分 JR東海道本線 川崎駅 徒歩19分 京急本線 京急川崎駅 徒歩20分 神奈川県川崎市川崎区渡田新町 | 詳細を見る | |
アパート 大島上町パウハナ(ワンルーム/2階) | |||||||
![]() | 6万円 3,500円 | なし なし | ワンルーム 12.6m2 | 築12年 | 京急本線 京急川崎駅 徒歩17分 JR京浜東北線 川崎駅 徒歩18分 JR南武線 川崎新町駅 徒歩19分 神奈川県川崎市川崎区大島上町 | 詳細を見る | |
アパート メゾンドシャルポンティエⅡ(1K/1階) | |||||||
![]() | 6.5万円 2,000円 | 6.5万円 6.5万円 | 1K 21.18m2 | 築31年 | 東急田園都市線 宮前平駅 徒歩5分 東急田園都市線 宮崎台駅 徒歩7分 神奈川県川崎市宮前区宮前平3丁目 | 詳細を見る | |









