賃貸マンション
ビレッジハウス草部1号棟の賃貸物件情報(3DK/5階)
| 家賃 | 管理費等 | 敷金 | 礼金 | 間取り | 専有面積 |
|---|---|---|---|---|---|
| 5.22万円 | なし | なし | なし | 3DK | 57.96m2 |
入居決定でお祝い金最大100,000円
- 保証金
- -
- 償却・敷引
- -
- 築年数
- 築56年
- 所在階
- 5階
- 向き
- 南
Point
まずはお問い合わせ!
不動産会社は街のプロ、あなたに合った物件がきっと見つかります。
提供:アパマンショップ針中野店

詳細情報 ビレッジハウス草部1号棟
物件紹介
ビレッジハウス草部1号棟は南海電鉄泉北線深井駅から徒歩39分にあるマンションです。
このお部屋は2階以上に位置しているので、通行人や周囲の住人からの視線が気になりにくく、防犯面でも安心です。
人気の南向きのお部屋。また、フローリングなのでお掃除もラクラク。バス・トイレ別の仕様で、のんびりお風呂タイムも楽しめます。
通信設備面では、インターネット接続が可能です(別途工事、契約料が必要な場合あり)。
このお部屋は2階以上に位置しているので、通行人や周囲の住人からの視線が気になりにくく、防犯面でも安心です。
人気の南向きのお部屋。また、フローリングなのでお掃除もラクラク。バス・トイレ別の仕様で、のんびりお風呂タイムも楽しめます。
通信設備面では、インターネット接続が可能です(別途工事、契約料が必要な場合あり)。
お金・契約の情報
※「-」と表示されているものは、実際は料金が発生するものもございます。詳細はお問い合わせください。
| 家賃 | 5.22万円 | 管理費・共益費 | なし |
|---|---|---|---|
| 敷金 | なし | 礼金 | なし |
| フリーレント | 0ヶ月 | ||
| 入居決定でお祝い金最大100,000円 | |||
| 保証金 | - | 償却・敷引 | - |
| 住宅保険料 | 1万円(2年) | 更新料 | - |
| 保証会社利用 | - | 保証会社名 | - |
| 保証会社費用 | - | 保証会社備考 | - |
| 契約形態 | - | 契約期間 | - |
| 入居・引渡期間 | - | 現況 | 空室 |
| 入居可能条件 | 2人入居可、高齢者相談、学生可 | ||
| 契約備考 | 契約種類:普通契約、24時間緊急対応、ウォシュレット、ウォームレット、洗面台 | ||
部屋の情報
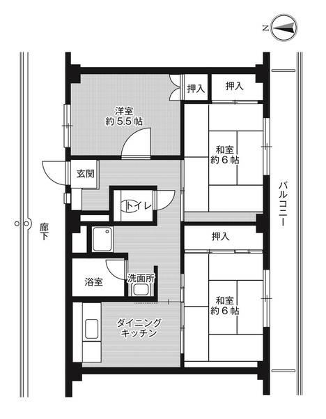
| 間取り | 3DK | 専有面積 | 57.96m2 |
|---|---|---|---|
| 所在階 / 向き | 5階 / 南 | バルコニー面積 | - |
| 水道 / ガス | - | ||
| 設備 | バス・トイレ別、追い焚き、エアコン、バルコニー、給湯、洗濯機:室内 | ||
| 当社物件ID | 133529820 | ||
建物の情報
| 建物名 | ビレッジハウス草部1号棟 | ||
|---|---|---|---|
| 所在地 | 大阪府堺市西区草部1072 | ||
| 交通 | 南海電鉄泉北線 深井駅 徒歩39分 阪和線 富木駅 徒歩40分 阪和線 鳳駅 徒歩41分 | ||
| 階数 | 5階建 | 総戸数 | - |
| 築年月 | 1969年12月 / 築56年 | エレベーター | - |
| 駐車場 | 空有 7,260円/月 円 | バイク置き場 | - |
| 駐輪場 | - | 管理人/管理会社 | 日勤 |
| 建物種別 | マンション | 建物構造 | RC(鉄筋コンクリート) |
この部屋の取扱い不動産会社
| 会社名 | ビレッジハウス住まい相談センター | ||
|---|---|---|---|
| 所在地 | 愛知県名古屋市中区大須4-10-32 上前津KDビル5階 | 交通 | 名城線「上前津駅」徒歩3分 |
| 営業時間 | 平日:9:00-18:30/土日祝:9:00-18:00 | 定休日 | 年末年始休業:2025年12月27日~2026年1月4日 |
| 免許番号 | 東京都知事(2)第100758号 | 取引態様 | 貸主 |
| 不動産会社管理番号 | 00008151684 | 当社管理番号 | 459 |
| 所属団体 | 公益社団法人東京都宅地建物取引業協会会員 日本賃貸住宅管理協会会員 | ||
| 取扱い物件情報 | 物件詳細へ | ||
※各種情報と現状に差異がある場合は、現状優先となります。問い合わせをすることで、より詳しい条件、情報を確認する事ができます。
提供:ビレッジハウス住まい相談センター
この物件が気になったら掲載期限まであと12日
ビレッジハウス草部1号棟に条件(家賃・エリア)が近い物件一覧
| 写真 | 家賃 管理費等 | 敷金 礼金 | 間取り 専有面積 | 築年数 | 最寄り駅 所在地 | キープ | 詳細 |
|---|---|---|---|---|---|---|---|
マンション プレサンス東三国エンブレイス(1K/4階) | |||||||
| 6.846万円 6,540円 | なし 8万円 | 1K 21.09m2 | 築2年 | 大阪市御堂筋線 東三国駅 徒歩11分 阪急電鉄宝塚線 三国駅(大阪) 徒歩18分 東海道本線 東淀川駅 徒歩19分 大阪府大阪市淀川区十八条1丁目6-15 | 詳細を見る | ||
アパート 南海電鉄南海本線 浜寺公園駅 徒歩4分 築7年(1K/3階) | |||||||
![]() | 5.85万円 5,400円 | なし なし | 1K 32.1m2 | 築7年 | 南海電鉄南海本線 浜寺公園駅 徒歩4分 南海電鉄南海本線 羽衣駅 徒歩14分 南海電鉄南海本線 諏訪ノ森駅 徒歩16分 大阪府堺市西区浜寺公園町1丁 | 詳細を見る | |
マンション 阪和線 鳳駅 徒歩13分 築23年(1K/3階) | |||||||
![]() | 5.2万円 3,000円 | なし なし | 1K 29m2 | 築23年 | 阪和線 鳳駅 徒歩13分 南海電鉄南海本線 浜寺公園駅 徒歩14分 南海電鉄南海本線 羽衣駅 徒歩20分 大阪府堺市西区浜寺元町6丁 | 詳細を見る | |
アパート メゾン ド コスモス(2DK/1階) | |||||||
![]() | 6.4万円 4,100円 | なし 6.5万円 | 2DK 46.79m2 | 築17年 | 近鉄南大阪線 高鷲駅 徒歩20分 近鉄南大阪線 藤井寺駅 徒歩20分 近鉄南大阪線 恵我ノ荘駅 徒歩25分 大阪府羽曳野市伊賀2丁目 | 詳細を見る | |
アパート REVITA鳳北町4丁(1LDK/2階) | |||||||
![]() | 6.5万円 5,000円 | なし 6.5万円 | 1LDK 30.43m2 | 築1年 | 阪和線 津久野駅 徒歩10分 阪和線 鳳駅 徒歩12分 南海電鉄南海本線 浜寺公園駅 徒歩26分 大阪府堺市西区鳳北町4丁 | 詳細を見る | |
一戸建て 南海電鉄泉北線 和泉中央駅 徒歩29分 築44年(4LDK) | |||||||
![]() | 8万円 なし | なし 16万円 | 4LDK 87.88m2 | 築44年 | 南海電鉄泉北線 和泉中央駅 徒歩29分 南海電鉄泉北線 光明池駅 徒歩36分 大阪府和泉市阪本町 | 詳細を見る | |
マンション エスリード ザ・グラン大阪ノース(1K/10階) | |||||||
| 8.7万円 1.1万円 | なし 8.7万円 | 1K 21.09m2 | 築1年 | 阪急電鉄千里線 淡路駅 徒歩2分 阪急電鉄千里線 下新庄駅 徒歩11分 阪急電鉄京都線 崇禅寺駅 徒歩16分 大阪府大阪市東淀川区東淡路4丁目30-7 | 詳細を見る | ||
マンション コートラビーム(1K/3階) | |||||||
![]() | 4.4万円 4,000円 | なし 4.4万円 | 1K 26m2 | 築33年 | 阪急電鉄京都線 上新庄駅 徒歩13分 大阪市今里筋線 だいどう豊里駅 徒歩18分 おおさか東線 JR淡路駅 徒歩19分 大阪府大阪市東淀川区豊新3丁目 | 詳細を見る | |
堺市西区の町名から探す
堺市西区の部屋を間取りから探す
堺市西区の駅から探す
堺市西区と隣接している市区町村から探す
- 堺市西区(2,305)
- 大阪市都島区(1,725)
- 大阪市福島区(1,987)
- 大阪市此花区(468)
- 大阪市西区(4,294)
- 大阪市港区(1,297)
- 大阪市大正区(996)
- 大阪市天王寺区(1,307)
- 大阪市浪速区(3,444)
- 大阪市西淀川区(1,717)
- 大阪市東淀川区(5,130)
- 大阪市東成区(2,221)
- 大阪市生野区(1,721)
- 大阪市旭区(1,780)
- 大阪市城東区(1,986)
- 大阪市阿倍野区(1,405)
- 大阪市住吉区(1,986)
- 大阪市東住吉区(2,047)
- 大阪市西成区(857)
- 大阪市淀川区(5,274)
- 大阪市鶴見区(1,055)
- 大阪市住之江区(1,217)
- 大阪市平野区(2,044)
- 大阪市北区(4,982)
- 大阪市中央区(4,482)
- 富田林市(1,043)
- 河内長野市(600)
- 松原市(1,009)
- 和泉市(1,101)
- 羽曳野市(1,090)
- 高石市(894)
- 大阪狭山市(777)






