賃貸アパート
N APTの賃貸物件情報(3LDK/1階)
| 家賃 | 管理費等 | 敷金 | 礼金 | 間取り | 専有面積 |
|---|---|---|---|---|---|
| 20万円 | なし | 20万円 | なし | 3LDK | 104.64m2 |
入居決定でお祝い金最大100,000円
Point
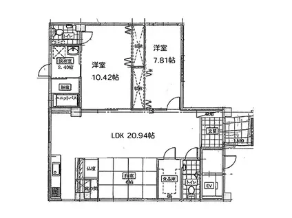
バリアフリー仕様の3LDK。3階建1階部分、20帖LDK・トイレ2ヶ所・仕切り付畳間。P2台、ペット可、EV充電有、事業用可。サンエー食品館近く生活便利な立地。
提供:(株)サキコーポレーション(SUUMO経由)

詳細情報 N APT
物件紹介
このお部屋のインターホンにはTVモニタがついているため、相手の顔を確認してから来客対応することができます。
人気の南向きのお部屋。また、フローリングなのでお掃除もラクラク。キッチンはシステムキッチン仕様になっていますので、お料理好きの方にもぴったり。バス・トイレは別なので、のんびりお風呂タイムも楽しめるでしょう。また、雨の日でも浴室乾燥機を使えば、お洗濯も問題ありません。
通信設備面では、インターネットが無料で使えるので、月々の出費を抑えられるのも魅力です(別途工事等が必要な場合あり)。
ペット飼育の相談ができますので、あなたの大切な家族の一員も快適に暮らせるか、ぜひ確認してみてください。
人気の南向きのお部屋。また、フローリングなのでお掃除もラクラク。キッチンはシステムキッチン仕様になっていますので、お料理好きの方にもぴったり。バス・トイレは別なので、のんびりお風呂タイムも楽しめるでしょう。また、雨の日でも浴室乾燥機を使えば、お洗濯も問題ありません。
通信設備面では、インターネットが無料で使えるので、月々の出費を抑えられるのも魅力です(別途工事等が必要な場合あり)。
ペット飼育の相談ができますので、あなたの大切な家族の一員も快適に暮らせるか、ぜひ確認してみてください。
お金・契約の情報
※「-」と表示されているものは、実際は料金が発生するものもございます。詳細はお問い合わせください。
| 家賃 | 20万円 | 管理費・共益費 | なし |
|---|---|---|---|
| 敷金 | 20万円 | 礼金 | なし |
| 入居決定でお祝い金最大100,000円 | |||
| 保証金 | - | 償却・敷引 | - |
| 住宅保険料 | - | 更新料 | - |
| 保証会社利用 | 必須 | 保証会社名 | 日本セーフティー |
| 保証会社費用 | - | 保証会社備考 | 日本セーフティー利用必 家賃保証委託料必要ライフサポートプラス入会金2200円ライフサポートプラス火災保険24hサポート費用1980円月 |
| 契約形態 | 定期借家 | 契約期間 | 2年 |
| 入居・引渡期間 | 相談 | 現況 | - |
| 入居可能条件 | 事務所可、ペット相談 | ||
| 契約備考 | サンエーV21まえはら食品館まで153m/私立沖縄国際大学まで1524m/事業用賃貸可能但し、飲食不可となります。民泊可能・その他ご相談ください。事業用の場合は賃料33万円月となります。ペット飼育の場合小型犬・猫どちらか1匹のみペット保証金10万円匹 3LDK 法人希望/二人入居可/ペット相談/事務所利用相談 定期借家2年 バストイレ別、エアコン、フローリング、TVインターホン、浴室乾燥機、室内洗濯置、シューズボックス、システムキッチン、温水洗浄便座、脱衣所、洗面所独立、洗面化粧台、ペット相談、IHクッキングヒーター、全居室収納、駐車2台可、敷金1ヶ月、ネット使用料不要、キッチンに窓、駐車場2台無料、食器洗乾燥機、エアコン全室、乾燥機、浴室に窓、事務所相談、バリアフリー、1フロア1住戸、LDK20畳以上、エアコン3台、トイレ2ヶ所、クロゼット2ヶ所、平坦地、納戸、敷地内ごみ置き場、専有面積30坪以上、電動シャッター車庫、南西向き、リビングの隣和室、和室、寝室8畳以上、全居室6畳以上、ガラストップコンロ、勝手口、プロパンガス、洗面所にドア、シーリングファン、年内入居可、IT重説対応物件、全室照明付 | ||
部屋の情報
| 間取り | 3LDK | 専有面積 | 104.64m2 |
|---|---|---|---|
| 所在階 / 向き | 1階 / 南西 | バルコニー面積 | - |
| 水道 / ガス | - | ||
| 設備 | バス・トイレ別、テレビドアホン、浴室乾燥機、インターネット対応、システムキッチン、エアコン、温水洗浄便座、南向き、フローリング、洗髪洗面化粧台、コンロ:IH、インターネット使用料無料、洗濯機:室内 | ||
| 当社物件ID | 160190665 | ||
建物の情報
| 建物名 | N APT | ||
|---|---|---|---|
| 所在地 | 沖縄県宜野湾市 | ||
| 交通 | 沖縄都市モノレール 浦添前田駅 バス乗車時間:50分 最寄りバス停で下車 徒歩2分 | ||
| 階数 | 3階建 | 総戸数 | 3戸 |
| 築年月 | 2006年03月 / 築20年 | エレベーター | - |
| 駐車場 | 空有 駐2台可 | バイク置き場 | - |
| 駐輪場 | - | 管理人/管理会社 | - |
| 周辺環境 | その他 サンエーV21まえはら食品館(スーパー)まで153m その他 沖縄カトリック高校(高校・高専)まで588m その他 琉球銀行真栄原支店(銀行)まで548m その他 私立沖縄カトリック中学校(中学校)まで677m その他 私立沖縄カトリック小学校(小学校)まで460m その他 私立沖縄国際大学(大学・短大)まで1524m | ||
| 建物種別 | アパート | 建物構造 | RC(鉄筋コンクリート) |
この部屋の取扱い不動産会社
| 会社名 | (株)サキコーポレーション(SUUMO経由) | ||
|---|---|---|---|
| 所在地 | 沖縄県沖縄市山内3-23-10 | 交通 | - |
| 営業時間 | 9:00~17:00 | 定休日 | 日曜・祝祭日 |
| 免許番号 | 沖縄県知事5389 | 取引態様 | 代理 |
| 不動産会社管理番号 | 100482055158 | 当社管理番号 | 89 |
| 所属団体 | (公社)沖縄県宅地建物取引業協会会員 | ||
| 公正取引協議会 | (一社)九州不動産公正取引協議会加盟 | ||
| 取扱い物件情報 | 物件詳細へ | ||
※各種情報と現状に差異がある場合は、現状優先となります。問い合わせをすることで、より詳しい条件、情報を確認する事ができます。
提供:(株)サキコーポレーション(SUUMO経由)
この物件が気になったら掲載期限まであと2日
N APTに条件(家賃・エリア)が近い物件一覧
| 写真 | 家賃 管理費等 | 敷金 礼金 | 間取り 専有面積 | 築年数 | 最寄り駅 所在地 | キープ | 詳細 |
|---|---|---|---|---|---|---|---|
マンション モンドミオ沖縄リゾートライカムヒルズ(2LDK/4階) | |||||||
![]() | 25万円 1万円 | 50万円 25万円 | 2LDK 80.44m2 | 築1年 | 沖縄都市モノレール てだこ浦西駅 徒歩146分 沖縄県中頭郡北中城村字ライカム | 詳細を見る | |
マンション パラボリカ(2LDK/3階) | |||||||
![]() | 16.3万円 9,000円 | なし 32.6万円 | 2LDK 90.26m2 | 築13年 | 沖縄県中頭郡北谷町 | 詳細を見る | |
マンション プレミスト宜野湾大謝名(3LDK/12階) | |||||||
![]() | 23.5万円 なし | 47万円 23.5万円 | 3LDK 86.58m2 | 築8年 | 沖縄都市モノレール 浦添前田駅 徒歩50分 沖縄県宜野湾市 | 詳細を見る | |
マンション ソアラ南上原(3LDK/4階) | |||||||
![]() | 14万円 3,000円 | 14万円 なし | 3LDK 65.28m2 | 築1年 | 沖縄県中頭郡中城村字南上原 | 詳細を見る | |
アパート 金城氏貸店舗(6LDK/2階) | |||||||
![]() | 13万円 なし | なし なし | 6LDK 120.25m2 | 築38年 | 沖縄都市モノレール てだこ浦西駅 徒歩32分 沖縄県宜野湾市 | 詳細を見る | |
マンション アルファステイツ北谷ヒルズ(3LDK/4階) | |||||||
![]() | 20万円 なし | 20万円 なし | 3LDK 69.94m2 | 築4年 | 沖縄都市モノレール てだこ浦西駅 徒歩144分 沖縄県中頭郡北谷町 | 詳細を見る | |
マンション ワイズエステムコート北谷伊平ウエスト(2LDK/5階) | |||||||
![]() | 23万円 なし | 23万円 23万円 | 2LDK 64.57m2 | 築2年 | 沖縄県中頭郡北谷町 | 詳細を見る | |
マンション T&R APARTMENT(2LDK/3階) | |||||||
![]() | 13.8万円 1.1万円 | なし 25万円 | 2LDK 53.76m2 | 築3年 | 沖縄都市モノレール 儀保駅 徒歩19分 沖縄都市モノレール 市立病院前駅(沖縄) 徒歩23分 沖縄都市モノレール 古島駅 徒歩24分 沖縄県浦添市 | 詳細を見る | |









