賃貸マンション
パークシーズンズ箱根強羅の賃貸物件情報(2LDK/2階)
| 家賃 | 管理費等 | 敷金 | 礼金 | 間取り | 専有面積 |
|---|---|---|---|---|---|
| 29.8万円 | なし | なし | なし | 2LDK | 68.18m2 |
入居決定でお祝い金最大100,000円
Point
リビングの正面には明星ヶ岳の大文字と美しい木々に囲まれた景色。三井不動産旧分譲のハイグレードリゾートマンション。ホテルとは異なる自分だけのリゾートSlowLifeを。
提供:(株)TNKレジデンス(SUUMO経由)

詳細情報 パークシーズンズ箱根強羅
物件紹介
パークシーズンズ箱根強羅は箱根登山鉄道強羅駅から徒歩4分にあり、駅近で通勤通学に便利なマンションです。
このお部屋は2階以上に位置しているので通行人や周囲の住人からの視線が気になりにくく、建物のエントランスはオートロックがついているので防犯性が高くなっています。
フローリングのお部屋なのでお掃除もラクラク。室内には人気のウォークインクローゼットがありますので、たくさんの荷物も効率的に収納ができます。キッチンはシステムキッチン仕様になっていますので、お料理好きの方にもぴったり。また、バス・トイレは別で、のんびりお風呂タイムも楽しめるでしょう。
通信設備面では、インターネット接続が可能です。また、BSアンテナ・CSアンテナもありますので、おうち時間も充実するでしょう(別途工事、契約料が必要な場合あり)。
床暖房があり、冬も足元から暖かく快適に過ごすことができます。建物にはエレベーターがついているので、重い荷物があっても安心。
このお部屋は2階以上に位置しているので通行人や周囲の住人からの視線が気になりにくく、建物のエントランスはオートロックがついているので防犯性が高くなっています。
フローリングのお部屋なのでお掃除もラクラク。室内には人気のウォークインクローゼットがありますので、たくさんの荷物も効率的に収納ができます。キッチンはシステムキッチン仕様になっていますので、お料理好きの方にもぴったり。また、バス・トイレは別で、のんびりお風呂タイムも楽しめるでしょう。
通信設備面では、インターネット接続が可能です。また、BSアンテナ・CSアンテナもありますので、おうち時間も充実するでしょう(別途工事、契約料が必要な場合あり)。
床暖房があり、冬も足元から暖かく快適に過ごすことができます。建物にはエレベーターがついているので、重い荷物があっても安心。
お金・契約の情報
※「-」と表示されているものは、実際は料金が発生するものもございます。詳細はお問い合わせください。
| 家賃 | 29.8万円 | 管理費・共益費 | なし |
|---|---|---|---|
| 敷金 | なし | 礼金 | なし |
| 入居決定でお祝い金最大100,000円 | |||
| 保証金 | - | 償却・敷引 | - |
| 住宅保険料 | - | 更新料 | - |
| 保証会社利用 | 必須 | 保証会社名 | - |
| 保証会社費用 | - | 保証会社備考 | 保証会社利用必 初回保証委託料:月額支払金額(口座振替手数料除く)の50% 2年目以降保証委託料:1万円(年額) |
| 契約形態 | - | 契約期間 | - |
| 入居・引渡期間 | 即時 | 現況 | - |
| 契約備考 | 常駐管理/更新料:新賃料の1ヶ月分室内・バルコニーでの喫煙不可 合計19.28万円(内訳:内訳 くらしーど24 1万6500円 退去時清掃費 12万6500円 鍵交換費用 4万9720円) 水道使用料 3300円/月額口座振替事務手数料 330円/月額 2LDK 法人希望/子供可/事務所利用不可/ルームシェア不可 普通借家2年 損保【2万円2年】 バストイレ別、バルコニー、ガスコンロ対応、フローリング、オートロック、システムキッチン、追焚機能浴室、温水洗浄便座、エレベーター、洗面所独立、2口コンロ、即入居可、BS・CS、対面式キッチン、防犯カメラ、分譲賃貸、保証人不要、仲介手数料不要、エアコン2台、ディンプルキー、床暖房、緑豊かな住宅地、眺望良好、コインランドリー、家具付、ISDN対応、耐火構造、始発駅、駅徒歩5分以内、温泉付、大浴場、敷地内ごみ置き場、LDK12畳以上、リビングの隣和室、畳コーナー、プロパンガス、ウォークスルークロゼット、壁紙張替済、敷金・礼金不要、LGBTフレンドリー、全室照明付 | ||
部屋の情報
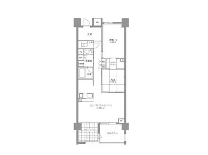
| 間取り | 2LDK | 専有面積 | 68.18m2 |
|---|---|---|---|
| 所在階 / 向き | 2階 / 北東 | バルコニー面積 | 6m2 |
| 水道 / ガス | - | ||
| 設備 | バス・トイレ別、2階以上、オートロック、ウォークインクローゼット、追い焚き、インターネット対応、システムキッチン、エアコン、エレベーター、温水洗浄便座、バルコニー、フローリング、洗髪洗面化粧台、床暖房、2口コンロ、コンロ:ガス、CSアンテナ、BSアンテナ | ||
| 当社物件ID | 157382404 | ||
建物の情報
| 建物名 | パークシーズンズ箱根強羅 | ||
|---|---|---|---|
| 所在地 | 神奈川県足柄下郡箱根町強羅 | ||
| 交通 | 箱根登山鉄道 強羅駅 徒歩4分 | ||
| 階数 | 6階建 | 総戸数 | - |
| 築年月 | 2009年11月 / 築17年 | エレベーター | あり |
| 駐車場 | 空有 機械式駐 | バイク置き場 | - |
| 駐輪場 | - | 管理人/管理会社 | - |
| 建物種別 | マンション | 建物構造 | RC(鉄筋コンクリート) |
この部屋の取扱い不動産会社
| 会社名 | (株)TNKレジデンス(SUUMO経由) | ||
|---|---|---|---|
| 所在地 | 東京都港区南青山1-15-2-202 | 交通 | - |
| 営業時間 | 10:00~18:00 | 定休日 | 火曜日 水曜日 |
| 免許番号 | 東京都知事23523 | 取引態様 | 貸主 |
| 不動産会社管理番号 | 100394520724 | 当社管理番号 | 89 |
| 所属団体 | (公社)東京都宅地建物取引業協会会員 | ||
| 公正取引協議会 | (公社)首都圏不動産公正取引協議会加盟 | ||
| 取扱い物件情報 | 物件詳細へ | ||
※各種情報と現状に差異がある場合は、現状優先となります。問い合わせをすることで、より詳しい条件、情報を確認する事ができます。
提供:(株)TNKレジデンス(SUUMO経由)
この物件が気になったら掲載期限まであと0日
パークシーズンズ箱根強羅に条件(家賃・エリア)が近い物件一覧
| 写真 | 家賃 管理費等 | 敷金 礼金 | 間取り 専有面積 | 築年数 | 最寄り駅 所在地 | キープ | 詳細 |
|---|---|---|---|---|---|---|---|
マンション AND SEA(1LDK/3階) | |||||||
![]() | 22万円 7,000円 | 44万円 22万円 | 1LDK 57.13m2 | 築1年 | 東海道・山陽新幹線 小田原駅 徒歩6分 神奈川県小田原市栄町1丁目 | 詳細を見る | |
マンション サンクレイドル小田原(3LDK/1階) | |||||||
![]() | 18.8万円 1.2万円 | 18.8万円 18.8万円 | 3LDK 65.45m2 | 築11年 | JR東海道本線 小田原駅 徒歩8分 伊豆箱根大雄山線 小田原駅 徒歩8分 東海道新幹線 小田原駅 徒歩8分 神奈川県小田原市栄町 | 詳細を見る | |
一戸建て 湘南新宿ライン高海 鴨宮駅 徒歩19分 築11年(4SLDK) | |||||||
![]() | 18万円 なし | 18万円 18万円 | 4SLDK 119.25m2 | 築11年 | 湘南新宿ライン高海 鴨宮駅 徒歩19分 神奈川県小田原市矢作 | 詳細を見る | |
マンション サーパスシティ小田原(2SLDK/5階) | |||||||
![]() | 25万円 なし | 25万円 25万円 | 2SLDK 87.64m2 | 築19年 | JR東海道本線 小田原駅 徒歩4分 伊豆箱根大雄山線 緑町駅 徒歩10分 箱根登山鉄道 箱根板橋駅 徒歩22分 神奈川県小田原市栄町 | 詳細を見る | |
マンション アデニウム湯河原(3LDK/8階) | |||||||
![]() | 22万円 2万円 | 22万円 22万円 | 3LDK 76.77m2 | 築18年 | JR東海道本線 湯河原駅 徒歩2分 神奈川県足柄下郡湯河原町土肥 | 詳細を見る | |
アパート AND SEA(1LDK/2階) | |||||||
![]() | 22万円 7,000円 | 44万円 22万円 | 1LDK 57.69m2 | 築1年 | 東海道新幹線 小田原駅 徒歩5分 伊豆箱根大雄山線 小田原駅 徒歩5分 JR東海道本線 小田原駅 徒歩6分 神奈川県小田原市栄町 | 詳細を見る | |
マンション リエス箱根湯本(3LDK/4階) | |||||||
![]() | 19万円 1万円 | 19万円 19万円 | 3LDK 116.2m2 | 築35年 | 箱根登山鉄道 箱根湯本駅 徒歩9分 箱根登山鉄道 塔ノ沢駅 徒歩17分 箱根登山鉄道 入生田駅 徒歩34分 神奈川県足柄下郡箱根町湯本 | 詳細を見る | |
マンション グランシャトレ小田原(4LDK/11階) | |||||||
![]() | 20万円 2.626万円 | 40万円 20万円 | 4LDK 77.81m2 | 築21年 | 東海道本線 小田原駅 徒歩10分 神奈川県小田原市浜町1丁目 | 詳細を見る | |









