賃貸マンション
ラグゼナ八王子南町の賃貸物件情報(1LDK/3階)
| 家賃 | 管理費等 | 敷金 | 礼金 | 間取り | 専有面積 |
|---|---|---|---|---|---|
| 16万円 | 1万円 | なし | 16万円 | 1LDK | 48.01m2 |
入居決定でお祝い金最大100,000円
Point
床暖房は燃料や火を使わない暖房器具ため安全に使うことができます。全居室フローリングの物件です。
提供:ハウスコム西神奈川株式会社 橋本店

詳細情報 ラグゼナ八王子南町
物件紹介
ラグゼナ八王子南町は中央本線八王子駅から徒歩9分にあり、駅近で通勤通学に便利なマンションです。
このお部屋は2階以上に位置しているので、通行人や周囲の住人からの視線が気になりにくく、防犯面でも安心。建物のエントランスはオートロックがついており、インターホンにはTVモニタもついているため、相手の顔を確認してから来客対応することができます。
人気の南向きのお部屋。また、フローリングなのでお掃除もラクラク。キッチンはシステムキッチン仕様になっていますので、お料理好きの方にもぴったり。バス・トイレは別なので、のんびりお風呂タイムも楽しめるでしょう。また、雨の日でも浴室乾燥機を使えば、お洗濯も問題ありません。
通信設備面では、インターネットが無料で使えるので、月々の出費を抑えられるのも魅力です(別途工事等が必要な場合あり)。
床暖房があり、冬も足元から暖かく快適に過ごすことができます。建物にはエレベーターがついているので、重い荷物があっても安心。共用部には宅配ボックスが設定されているので、不在の時にも荷物を受け取ることができます。また、ペット飼育の相談ができますので、あなたの大切な家族の一員も快適に暮らせるか、ぜひ確認してみてください。
コンビニまで徒歩7分の場所にあり、日用品や食料品のお買い物にも便利です。
このお部屋は2階以上に位置しているので、通行人や周囲の住人からの視線が気になりにくく、防犯面でも安心。建物のエントランスはオートロックがついており、インターホンにはTVモニタもついているため、相手の顔を確認してから来客対応することができます。
人気の南向きのお部屋。また、フローリングなのでお掃除もラクラク。キッチンはシステムキッチン仕様になっていますので、お料理好きの方にもぴったり。バス・トイレは別なので、のんびりお風呂タイムも楽しめるでしょう。また、雨の日でも浴室乾燥機を使えば、お洗濯も問題ありません。
通信設備面では、インターネットが無料で使えるので、月々の出費を抑えられるのも魅力です(別途工事等が必要な場合あり)。
床暖房があり、冬も足元から暖かく快適に過ごすことができます。建物にはエレベーターがついているので、重い荷物があっても安心。共用部には宅配ボックスが設定されているので、不在の時にも荷物を受け取ることができます。また、ペット飼育の相談ができますので、あなたの大切な家族の一員も快適に暮らせるか、ぜひ確認してみてください。
コンビニまで徒歩7分の場所にあり、日用品や食料品のお買い物にも便利です。
お金・契約の情報
※「-」と表示されているものは、実際は料金が発生するものもございます。詳細はお問い合わせください。
| 家賃 | 16万円 | 管理費・共益費 | 1万円 |
|---|---|---|---|
| 敷金 | なし | 礼金 | 16万円 |
| 入居決定でお祝い金最大100,000円 | |||
| 保証金 | - | 償却・敷引 | - |
| 住宅保険料 | 1円 | 更新料 | - |
| 保証会社利用 | 必須 | 保証会社名 | 日本セーフティー |
| 保証会社費用 | - | 保証会社備考 | 初回保証料:総賃料の50% 月額保証料:総賃料の1% |
| 契約形態 | - | 契約期間 | 2年 |
| 入居・引渡期間 | 即時 | 現況 | - |
| 入居可能条件 | 事務所不可、2人入居可、楽器不可、ペット可 | ||
| 契約備考 | 鍵設定費用11000円 家財保険加入必須23000円 ペット飼育時敷金1ヶ月(小型犬・猫合計2匹) 駐輪場1世帯1台月額330円 月額(町内会費 200円) 鍵交換費用:11000 その他設備/条件:室内洗濯機置き場、独立洗面台、浴室TV、防犯カメラ、ルームシェア可、クローゼット、シューズボックス、オートバス、分譲賃貸 | ||
部屋の情報
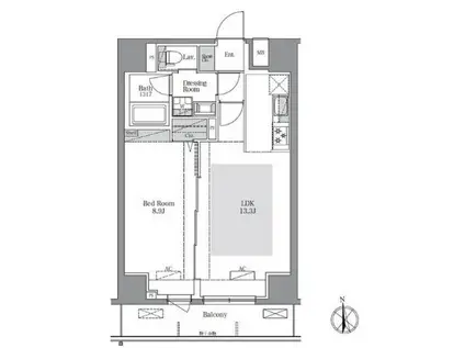
| 間取り | 1LDK | 専有面積 | 48.01m2 |
|---|---|---|---|
| 間取り詳細 | LDK(13.3帖)、洋室(8.9帖) | ||
| 所在階 / 向き | 3階 / 南 | バルコニー面積 | - |
| 水道 / ガス | 水道【公営】、ガス【都市】 | ||
| 設備 | バス・トイレ別、オートロック、テレビドアホン、宅配ボックス、浴室乾燥機、追い焚き、インターネット対応、システムキッチン、エアコン、エレベーター、温水洗浄便座、バルコニー、フローリング、洗髪洗面化粧台、床暖房、3口コンロ、コンロ:ガス、インターネット使用料無料、シャワー、給湯、タイル張り | ||
| 当社物件ID | 159782383 | ||
建物の情報
| 建物名 | ラグゼナ八王子南町 | ||
|---|---|---|---|
| 所在地 | 東京都八王子市南町 | ||
| 交通 | 中央本線 八王子駅 徒歩9分 京王電鉄京王線 京王八王子駅 徒歩13分 | ||
| 階数 | 15階建 | 総戸数 | 44戸 |
| 築年月 | 2022年10月 / 築4年 | エレベーター | あり |
| 駐車場 | 空無 1.87万円/月 | バイク置き場 | - |
| 駐輪場 | あり | 管理人/管理会社 | - |
| 周辺環境 | コンビニ 徒歩7分(528m) 販売店 徒歩6分(466m) その他 ドラッグストア その他 公園 その他 銀行 その他 * | ||
| 建物種別 | マンション | 建物構造 | RC(鉄筋コンクリート) |
この部屋の取扱い不動産会社
| 会社名 | ハウスコム西東京株式会社 聖蹟桜ヶ丘店 | ||
|---|---|---|---|
| 所在地 | 東京都多摩市11-21京王電器ビル1階 | 交通 | - |
| 営業時間 | 10:00~18:00 | 定休日 | 水曜定休 |
| 免許番号 | 東京都知事(1)第108225号 | 取引態様 | 仲介 |
| 不動産会社管理番号 | HC2-3396438-03020-0128 | 当社管理番号 | 468 |
| 所属団体 | 、 | ||
| 取扱い物件情報 | 物件詳細へ | ||
※各種情報と現状に差異がある場合は、現状優先となります。問い合わせをすることで、より詳しい条件、情報を確認する事ができます。
提供:ハウスコム西東京株式会社 聖蹟桜ヶ丘店
この物件が気になったら掲載期限まであと5日
ラグゼナ八王子南町に条件(家賃・エリア)が近い物件一覧
| 写真 | 家賃 管理費等 | 敷金 礼金 | 間取り 専有面積 | 築年数 | 最寄り駅 所在地 | キープ | 詳細 |
|---|---|---|---|---|---|---|---|
一戸建て 京王電鉄高尾線 京王片倉駅 徒歩6分 築1年(2SLDK) | |||||||
![]() | 22.4万円 なし | 22.4万円 22.4万円 | 2SLDK 83.42m2 | 築1年 | 京王電鉄高尾線 京王片倉駅 徒歩6分 横浜線 片倉駅 徒歩14分 横浜線 八王子駅 徒歩15分 東京都八王子市子安町2丁目 | 詳細を見る | |
一戸建て 京王電鉄高尾線 京王片倉駅 徒歩6分 築1年(2SLDK) | |||||||
![]() | 22.4万円 なし | 22.4万円 22.4万円 | 2SLDK 83.63m2 | 築1年 | 京王電鉄高尾線 京王片倉駅 徒歩6分 横浜線 片倉駅 徒歩14分 横浜線 八王子駅 徒歩15分 東京都八王子市子安町2丁目 | 詳細を見る | |
マンション REDEAL子安町(1LDK/1階) | |||||||
![]() | 10.5万円 5,000円 | なし なし | 1LDK 43.3m2 | 築42年 | JR中央線 八王子駅 徒歩11分 京王線 京王八王子駅 徒歩12分 京王線 北野駅(東京) 徒歩16分 東京都八王子市子安町 | 詳細を見る | |
アパート サニーフラット(2LDK/2階) | |||||||
![]() | 12万円 5,500円 | なし 15万円 | 2LDK 57.27m2 | 築7年 | 中央本線 豊田駅 徒歩22分 東京都日野市西平山1丁目 | 詳細を見る | |
アパート ESPELIA・K(1LDK/1階) | |||||||
![]() | 11.9万円 5,000円 | なし 30万円 | 1LDK 45.62m2 | 新築 | JR中央線 西八王子駅 徒歩6分 京王高尾線 山田駅(東京) 徒歩21分 京王高尾線 めじろ台駅 徒歩26分 東京都八王子市散田町 | 詳細を見る | |
アパート セッテヴィータ(2LDK/2階) | |||||||
![]() | 13.5万円 5,500円 | なし 15万円 | 2LDK 61.69m2 | 築11年 | 京王線 高幡不動駅 徒歩5分 多摩都市モノレール 高幡不動駅 徒歩5分 多摩都市モノレール 程久保駅 徒歩18分 東京都日野市高幡 | 詳細を見る | |
アパート パルテノス(2LDK/2階) | |||||||
![]() | 10.8万円 4,000円 | 10.8万円 なし | 2LDK 58.17m2 | 築1年 | 京王線 長沼駅(東京) 徒歩20分 京王線 北野駅(東京) 徒歩29分 JR中央線 豊田駅 徒歩32分 東京都日野市西平山 | 詳細を見る | |
一戸建て 京王電鉄高尾線 めじろ台駅 徒歩18分 築4年(3LDK) | |||||||
![]() | 15.2万円 なし | 15.2万円 なし | 3LDK 86.52m2 | 築4年 | 京王電鉄高尾線 めじろ台駅 徒歩18分 京王電鉄高尾線 狭間駅 徒歩26分 東京都八王子市椚田町 | 詳細を見る | |





/105x80-f1-q70-wp1)



