賃貸マンション
スパシエトラッド川口の賃貸物件情報(1K/5階)
| 家賃 | 管理費等 | 敷金 | 礼金 | 間取り | 専有面積 |
|---|---|---|---|---|---|
| 7万円 | 1万円 | なし | 7万円 | 1K | 25.11m2 |
入居決定でお祝い金最大100,000円
- 保証金
- 7.0万円
- 償却・敷引
- 7万円
- 築年数
- 築17年
- 所在階
- 5階
- 向き
- 南東
Point
まずはお問い合わせ!
不動産会社は街のプロ、あなたに合った物件がきっと見つかります。
提供:ハウス・トゥ・ハウス・ネットサービス(株)川口店(SUUMO経由)

詳細情報 スパシエトラッド川口
物件紹介
スパシエトラッド川口は埼玉高速鉄道川口元郷駅から徒歩9分にあり、駅近で通勤通学に便利なマンションです。
このお部屋は2階以上に位置しているので、通行人や周囲の住人からの視線が気になりにくく、防犯面でも安心。建物のエントランスはオートロックがついており、インターホンにはTVモニタもついているため、相手の顔を確認してから来客対応することができます。
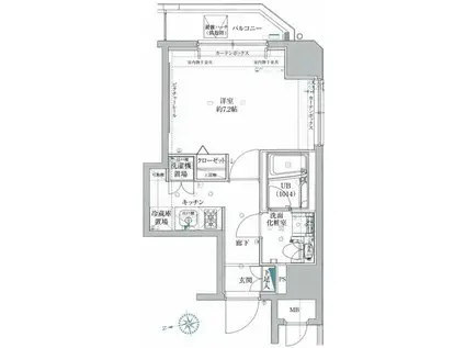
人気の南向き・フローリングのお部屋。角部屋でもあるため、周囲の居住者の生活音も気になりにくい場所です。キッチンはシステムキッチン仕様になっていますので、お料理好きの方にもぴったり。バス・トイレは別なので、のんびりお風呂タイムも楽しめるでしょう。また、雨の日でも浴室乾燥機を使えば、お洗濯も問題ありません。
通信設備面ではBSアンテナ・CSアンテナがあり、CATVにも対応しているので、おうち時間も充実するでしょう(別途工事、契約料が必要な場合あり)。
建物にはエレベーターがついているので、重い荷物があっても安心。共用部には宅配ボックスが設定されているので、不在の時にも荷物を受け取ることができます。また、ペット飼育の相談ができますので、あなたの大切な家族の一員も快適に暮らせるか、ぜひ確認してみてください。
このお部屋は2階以上に位置しているので、通行人や周囲の住人からの視線が気になりにくく、防犯面でも安心。建物のエントランスはオートロックがついており、インターホンにはTVモニタもついているため、相手の顔を確認してから来客対応することができます。
人気の南向き・フローリングのお部屋。角部屋でもあるため、周囲の居住者の生活音も気になりにくい場所です。キッチンはシステムキッチン仕様になっていますので、お料理好きの方にもぴったり。バス・トイレは別なので、のんびりお風呂タイムも楽しめるでしょう。また、雨の日でも浴室乾燥機を使えば、お洗濯も問題ありません。
通信設備面ではBSアンテナ・CSアンテナがあり、CATVにも対応しているので、おうち時間も充実するでしょう(別途工事、契約料が必要な場合あり)。
建物にはエレベーターがついているので、重い荷物があっても安心。共用部には宅配ボックスが設定されているので、不在の時にも荷物を受け取ることができます。また、ペット飼育の相談ができますので、あなたの大切な家族の一員も快適に暮らせるか、ぜひ確認してみてください。
お金・契約の情報
※「-」と表示されているものは、実際は料金が発生するものもございます。詳細はお問い合わせください。
| 家賃 | 7万円 | 管理費・共益費 | 1万円 |
|---|---|---|---|
| 敷金 | なし | 礼金 | 7万円 |
| 入居決定でお祝い金最大100,000円 | |||
| 保証金 | 7.0万円 | 償却・敷引 | 7万円 |
| 住宅保険料 | - | 更新料 | - |
| 保証会社利用 | 必須 | 保証会社名 | - |
| 保証会社費用 | - | 保証会社備考 | 保証会社利用必 初回50%、10000円/年 |
| 契約形態 | - | 契約期間 | - |
| 入居・引渡期間 | - | 現況 | - |
| 入居可能条件 | ペット相談 | ||
| 契約備考 | ペット相談可、小型犬または猫2匹まで、保証金1.5ヶ月増・償却。1年未満の解約は1ヶ月分の短期解約違約金有。保証金退去時償却。 合計4.62万円(内訳:24Hサポート1.87万円鍵交換代2.75万円) 更新料 新賃料1.50ヶ月分 口座振替手数料 月額330円 1K ペット相談 普通借家2年 損保【2万円2年】 バストイレ別、バルコニー、エアコン、ガスコンロ対応、フローリング、TVインターホン、浴室乾燥機、オートロック、室内洗濯置、システムキッチン、角住戸、温水洗浄便座、脱衣所、エレベーター、洗面所独立、2口コンロ、駐輪場、宅配ボックス、CATV、外壁タイル張り、2面採光、敷金不要、ペット相談、照明付、分譲賃貸、バイク置場、24時間緊急通報システム、2沿線利用可、ディンプルキー、CS、24時間換気システム、耐火構造、2駅利用可、3駅以上利用可、3沿線以上利用可、駅徒歩10分以内、敷地内ごみ置き場、セキュリティ会社加入済、都市ガス、BS、年内入居可、年度内入居可、礼金1ヶ月、IT重説対応物件 入居日:'26年4月中旬 | ||
部屋の情報
| 間取り | 1K | 専有面積 | 25.11m2 |
|---|---|---|---|
| 所在階 / 向き | 5階 / 南東 | バルコニー面積 | - |
| 水道 / ガス | - | ||
| 設備 | バス・トイレ別、2階以上、オートロック、テレビドアホン、宅配ボックス、浴室乾燥機、システムキッチン、エアコン、エレベーター、温水洗浄便座、南向き、角部屋、バルコニー、フローリング、洗髪洗面化粧台、2口コンロ、コンロ:ガス、CATV、CSアンテナ、BSアンテナ、洗濯機:室内 | ||
| 当社物件ID | 46863153 | ||
建物の情報
| 建物名 | スパシエトラッド川口 | ||
|---|---|---|---|
| 所在地 | 埼玉県川口市鳩ヶ谷本町 | ||
| 交通 | 埼玉高速鉄道 川口元郷駅 徒歩9分 JR京浜東北線 川口駅 徒歩14分 東京メトロ南北線 赤羽岩淵駅 徒歩21分 | ||
| 階数 | 10階建 | 総戸数 | - |
| 築年月 | 2009年06月 / 築17年 | エレベーター | あり |
| 駐車場 | なし | バイク置き場 | あり |
| 駐輪場 | あり | 管理人/管理会社 | - |
| 周辺環境 | その他 川口市立医療センター 本町診療所(病院)まで668m その他 セブンイレブン 川口本町1丁目店(コンビニ)まで336m その他 まいばすけっと 川口本町1丁目店(スーパー)まで332m その他 サミットストア 川口エルザタワー店(スーパー)まで881m その他 川口元郷駅前ショッピングセンター Miel(ミエル)かわぐち(ショッピングセンター)まで928m その他 川口キュポ・ラ(ショッピングセンター)まで1161m | ||
| 建物種別 | マンション | 建物構造 | RC(鉄筋コンクリート) |
この部屋の取扱い不動産会社
| 会社名 | ハウス・トゥ・ハウス・ネットサービス(株)川口店(SUUMO経由) | ||
|---|---|---|---|
| 所在地 | 埼玉県川口市本町4-7-1 セラード川口1階 | 交通 | - |
| 営業時間 | 1月~3月は9:30~18:30 | 定休日 | 1月~3月は無休 |
| 免許番号 | 国土交通大臣7400 | 取引態様 | 仲介 |
| 不動産会社管理番号 | 100487425464 | 当社管理番号 | 89 |
| 所属団体 | (公社)全日本不動産協会埼玉県本部会員 | ||
| 公正取引協議会 | (公社)首都圏不動産公正取引協議会加盟 | ||
| 取扱い物件情報 | 物件詳細へ | ||
※各種情報と現状に差異がある場合は、現状優先となります。問い合わせをすることで、より詳しい条件、情報を確認する事ができます。
提供:ハウス・トゥ・ハウス・ネットサービス(株)川口店(SUUMO経由)
この物件が気になったら掲載期限まであと11日
スパシエトラッド川口に条件(家賃・エリア)が近い物件一覧
| 写真 | 家賃 管理費等 | 敷金 礼金 | 間取り 専有面積 | 築年数 | 最寄り駅 所在地 | キープ | 詳細 |
|---|---|---|---|---|---|---|---|
アパート レオパレスNANPEI(1K/1階) | |||||||
![]() | 5.3万円 7,000円 | なし 5.3万円 | 1K 19.87m2 | 築18年 | 埼玉高速鉄道 川口元郷駅 徒歩24分 日暮里・舎人ライナー 舎人公園駅 徒歩30分 日暮里・舎人ライナー 谷在家駅 徒歩32分 埼玉県川口市東領家 | 詳細を見る | |
アパート 錦ハイツA(2DK/2階) | |||||||
![]() | 7.2万円 2,000円 | 7.2万円 なし | 2DK 34.65m2 | 築51年 | 埼玉県蕨市錦町1丁目 | 詳細を見る | |
マンション グランディールYOKOYAMA II(3DK/3階) | |||||||
![]() | 8.5万円 5,000円 | 9万円 なし | 3DK 58.32m2 | 築31年 | 東武伊勢崎線 新田駅(埼玉) 徒歩8分 東武伊勢崎線 獨協大学前駅 徒歩25分 東武伊勢崎線 蒲生駅 徒歩26分 埼玉県草加市金明町 | 詳細を見る | |
マンション サンナップヒルズ SEKI2(1K/3階) | |||||||
![]() | 8.15万円 3,500円 | なし 10.15万円 | 1K 33.26m2 | 築13年 | JR埼京線 中浦和駅 徒歩13分 JR武蔵野線 武蔵浦和駅 徒歩29分 埼玉県さいたま市桜区 | 詳細を見る | |
アパート 埼玉高速鉄道 鳩ケ谷駅 徒歩7分 新築(1K/3階) | |||||||
![]() | 8.5万円 3,000円 | なし 8.5万円 | 1K 29.18m2 | 新築 | 埼玉高速鉄道 鳩ケ谷駅 徒歩7分 埼玉県川口市大字辻 | 詳細を見る | |
マンション リブリ・アテナ(1K/2階) | |||||||
![]() | 7万円 4,000円 | なし 7万円 | 1K 26.08m2 | 築10年 | 東武伊勢崎線 草加駅 徒歩15分 東武伊勢崎線 谷塚駅 徒歩25分 東武伊勢崎線 獨協大学前駅 徒歩34分 埼玉県草加市西町 | 詳細を見る | |
マンション レオパレスヴァンセート(1K/3階) | |||||||
![]() | 6.7万円 7,000円 | なし 6.7万円 | 1K 19.87m2 | 築22年 | 埼玉高速鉄道 南鳩ケ谷駅 徒歩16分 JR京浜東北線 川口駅 徒歩27分 埼玉県川口市青木 | 詳細を見る | |
マンション ハイツヒロ(2K/1階) | |||||||
![]() | 5.5万円 3,000円 | なし なし | 2K 32m2 | 築40年 | JR京浜東北線 蕨駅 徒歩29分 JR武蔵野線 東浦和駅 徒歩34分 JR京浜東北線 西川口駅 徒歩42分 埼玉県川口市芝高木 | 詳細を見る | |









