賃貸マンション
アンプルールフェールU-HAの賃貸物件情報(1K/1階)
| 家賃 | 管理費等 | 敷金 | 礼金 | 間取り | 専有面積 |
|---|---|---|---|---|---|
| 5.6万円 | 3,000円 | なし | 5.6万円 | 1K | 33.12m2 |
入居決定でお祝い金最大100,000円
Point
浴室乾燥機設置済み!雨の日のお洗濯も安心♪インターネット無料
提供:(株)エイブル新石切店(SUUMO経由)

詳細情報 アンプルールフェールU-HA
物件紹介
アンプルールフェールU-HAは地下鉄中央線長田駅から徒歩7分にあり、駅近で通勤通学に便利なマンションです。
建物のエントランスはオートロックがついており、インターホンにはTVモニタもついているため、相手の顔を確認してから来客対応することができます。
人気の南向き・フローリングのお部屋。角部屋でもあるため、周囲の居住者の生活音も気になりにくい場所です。室内にはウォークインクローゼットがありますので、たくさんの荷物も効率的に収納ができます。キッチンはシステムキッチン仕様になっていますので、お料理好きの方にもぴったり。バス・トイレは別なので、のんびりお風呂タイムも楽しめるでしょう。また、雨の日でも浴室乾燥機を使えば、お洗濯も問題ありません。
通信設備面では、インターネットが無料で使えるので、月々の出費を抑えられるのも魅力です。また、BSアンテナ・CSアンテナがありCATVにも対応しているので、おうち時間も充実するでしょう(別途工事、BS・CS・CATVの契約料等が必要な場合あり)。
共用部には宅配ボックスが設定されているので、不在の時にも荷物を受け取ることができます。
建物のエントランスはオートロックがついており、インターホンにはTVモニタもついているため、相手の顔を確認してから来客対応することができます。
人気の南向き・フローリングのお部屋。角部屋でもあるため、周囲の居住者の生活音も気になりにくい場所です。室内にはウォークインクローゼットがありますので、たくさんの荷物も効率的に収納ができます。キッチンはシステムキッチン仕様になっていますので、お料理好きの方にもぴったり。バス・トイレは別なので、のんびりお風呂タイムも楽しめるでしょう。また、雨の日でも浴室乾燥機を使えば、お洗濯も問題ありません。
通信設備面では、インターネットが無料で使えるので、月々の出費を抑えられるのも魅力です。また、BSアンテナ・CSアンテナがありCATVにも対応しているので、おうち時間も充実するでしょう(別途工事、BS・CS・CATVの契約料等が必要な場合あり)。
共用部には宅配ボックスが設定されているので、不在の時にも荷物を受け取ることができます。
お金・契約の情報
※「-」と表示されているものは、実際は料金が発生するものもございます。詳細はお問い合わせください。
| 家賃 | 5.6万円 | 管理費・共益費 | 3,000円 |
|---|---|---|---|
| 敷金 | なし | 礼金 | 5.6万円 |
| 入居決定でお祝い金最大100,000円 | |||
| 保証金 | - | 償却・敷引 | - |
| 住宅保険料 | - | 更新料 | - |
| 保証会社利用 | 必須 | 保証会社名 | - |
| 保証会社費用 | - | 保証会社備考 | 株式会社木下グループ |
| 契約形態 | - | 契約期間 | 2年 |
| 入居・引渡期間 | 2026年01月下旬 | 現況 | - |
| 契約備考 | 木下の賃貸 友の会費 2530円/スマートロック登録費用 27500円/木下の消毒サービス 26400円 | ||
部屋の情報
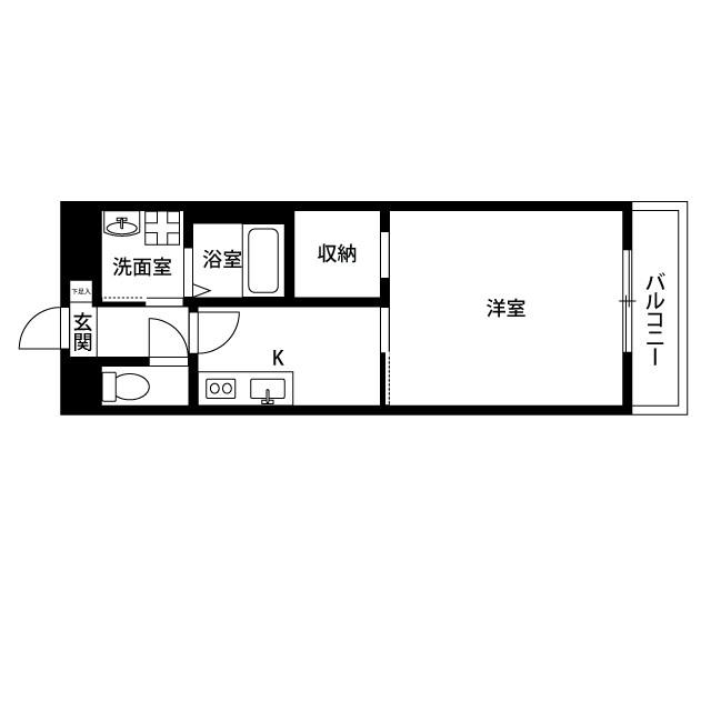
| 間取り | 1K | 専有面積 | 33.12m2 |
|---|---|---|---|
| 間取り詳細 | 洋室(8.2帖)、K(3帖) | ||
| 所在階 / 向き | 1階 / 東 | バルコニー面積 | 2m2 |
| 水道 / ガス | ガス【プロパン】 | ||
| 設備 | バス・トイレ別、オートロック、テレビドアホン、宅配ボックス、浴室乾燥機、ウォークインクローゼット、インターネット対応、システムキッチン、バルコニー、フローリング、コンロ:ガス、インターネット使用料無料、給湯、洗濯機:室内 | ||
| 当社物件ID | 2086689 | ||
建物の情報
| 建物名 | アンプルールフェールU-HA | ||
|---|---|---|---|
| 所在地 | 大阪府東大阪市長田西5丁目 | ||
| 交通 | 近鉄けいはんな線 長田駅(大阪) 徒歩12分 | ||
| 階数 | 3階建 | 総戸数 | 15戸 |
| 築年月 | 2011年05月 / 築15年 | エレベーター | - |
| 駐車場 | - | バイク置き場 | - |
| 駐輪場 | - | 管理人/管理会社 | - |
| 建物種別 | マンション | 建物構造 | 鉄骨造 |
この部屋の取扱い不動産会社
| 会社名 | アパマンショップ玉造駅前店 | ||
|---|---|---|---|
| 所在地 | 大阪府大阪市天王寺区玉造元町 2-31 | 交通 | 大阪環状線玉造から徒歩1分 |
| 営業時間 | 09:30〜19:30(時間外も対応可能です ※要予約) | 定休日 | - |
| 免許番号 | 大阪府知事(4)53800 | 取引態様 | 仲介 |
| 不動産会社管理番号 | 87802952 | 当社管理番号 | 4 |
| 所属団体 | (一社)大阪府宅地建物取引業協会 | ||
| 公正取引協議会 | (公社) 近畿地区不動産公正取引協議会加盟 | ||
| 取扱い物件情報 | 物件詳細へ | ||
※各種情報と現状に差異がある場合は、現状優先となります。問い合わせをすることで、より詳しい条件、情報を確認する事ができます。
提供:アパマンショップ玉造駅前店
この物件が気になったら掲載期限まであと12日
アンプルールフェールU-HAに条件(家賃・エリア)が近い物件一覧
| 写真 | 家賃 管理費等 | 敷金 礼金 | 間取り 専有面積 | 築年数 | 最寄り駅 所在地 | キープ | 詳細 |
|---|---|---|---|---|---|---|---|
マンション BPRレジデンス新梅田(1K/14階) | |||||||
| 8.76万円 5,000円 | 8.76万円 なし | 1K 23.23m2 | 築6年 | 大阪環状線 福島駅(JR西日本) 徒歩12分 東海道本線 大阪駅 徒歩14分 大阪市御堂筋線 梅田駅 徒歩16分 大阪府大阪市北区大淀中2丁目1-30 | 詳細を見る | ||
アパート ハイツグローリー(ワンルーム/2階) | |||||||
| 3.7万円 3,000円 | なし 5万円 | ワンルーム 19.11m2 | 築29年 | 大阪市今里筋線 だいどう豊里駅 徒歩3分 大阪市今里筋線 瑞光四丁目駅 徒歩16分 阪急電鉄京都線 上新庄駅 徒歩20分 大阪府大阪市東淀川区豊里5丁目22-13 | 詳細を見る | ||
マンション グレイスハイツ北大阪(1K/5階) | |||||||
![]() | 4.2万円 3,000円 | なし なし | 1K 20m2 | 築26年 | 阪急電鉄千里線 下新庄駅 徒歩5分 おおさか東線 JR淡路駅 徒歩11分 おおさか東線 南吹田駅 徒歩13分 大阪府大阪市東淀川区下新庄4丁目 | 詳細を見る | |
マンション サムティ上新庄レジデンス(1K/6階) | |||||||
![]() | 6.9万円 1.3万円 | なし 3.45万円 | 1K 24.79m2 | 築6年 | 阪急電鉄京都線 上新庄駅 徒歩3分 阪急電鉄京都線 相川駅 徒歩16分 大阪市今里筋線 瑞光四丁目駅 徒歩18分 大阪府大阪市東淀川区上新庄3丁目 | 詳細を見る | |
マンション エスリード ザ・グラン大阪ノース(1K/10階) | |||||||
| 8.2万円 1.1万円 | なし 8.2万円 | 1K 21.09m2 | 築1年 | 阪急電鉄千里線 淡路駅 徒歩2分 阪急電鉄千里線 下新庄駅 徒歩11分 阪急電鉄京都線 崇禅寺駅 徒歩16分 大阪府大阪市東淀川区東淡路4丁目30-7 | 詳細を見る | ||
マンション ワールドアイ大阪イースト CITY(1K/12階) | |||||||
![]() | 6.13万円 1万円 | なし なし | 1K 23.77m2 | 新築 | 大阪メトロ中央線 長田駅(大阪) 徒歩2分 大阪府東大阪市長田東1丁目 | 詳細を見る | |
マンション リアライズ西淡路(1K/8階) | |||||||
| 4.2万円 6,000円 | なし なし | 1K 22.14m2 | 築34年 | 阪急電鉄千里線 淡路駅 徒歩8分 阪急電鉄千里線 下新庄駅 徒歩11分 おおさか東線 南吹田駅 徒歩12分 大阪府大阪市東淀川区西淡路5丁目14-26 | 詳細を見る | ||
マンション スプランディッド新大阪DUE(1K/6階) | |||||||
| 7.51万円 8,000円 | なし なし | 1K 24.02m2 | 築11年 | 大阪市御堂筋線 西中島南方駅 徒歩7分 阪急電鉄宝塚線 十三駅 徒歩17分 大阪市御堂筋線 新大阪駅 徒歩21分 大阪府大阪市淀川区木川東2丁目5-7 | 詳細を見る | ||
東大阪市の町名から探す
東大阪市の部屋を間取りから探す
東大阪市の駅から探す
東大阪市と隣接している市区町村から探す
- 東大阪市(7,961)
- 大阪市都島区(1,844)
- 大阪市福島区(2,477)
- 大阪市此花区(427)
- 大阪市西区(4,822)
- 大阪市港区(1,231)
- 大阪市大正区(1,089)
- 大阪市天王寺区(1,325)
- 大阪市浪速区(3,921)
- 大阪市西淀川区(1,915)
- 大阪市東淀川区(4,574)
- 大阪市東成区(2,854)
- 大阪市生野区(1,746)
- 大阪市旭区(2,177)
- 大阪市城東区(2,025)
- 大阪市阿倍野区(1,457)
- 大阪市住吉区(1,890)
- 大阪市東住吉区(2,081)
- 大阪市西成区(770)
- 大阪市淀川区(5,351)
- 大阪市鶴見区(1,088)
- 大阪市住之江区(983)
- 大阪市平野区(1,888)
- 大阪市北区(5,526)
- 大阪市中央区(5,636)
- 八尾市(2,104)
- 大東市(1,205)



