賃貸マンション
メインステージ入谷Ⅱの賃貸物件情報(1K/13階)
| 家賃 | 管理費等 | 敷金 | 礼金 | 間取り | 専有面積 |
|---|---|---|---|---|---|
| 11.35万円 | 1.5万円 | なし | 11.35万円 | 1K | 25.65m2 |
入居決定でお祝い金最大100,000円
- 保証金
- -
- 償却・敷引
- -
- 築年数
- 築6年
- 所在階
- 13階
- 向き
- -
Point
セキュリティ面は、TVインターホン・オートロックなど充実しているので、防犯対策もばっちりです。
提供:ハウスコム東東京株式会社 北千住店

詳細情報 メインステージ入谷Ⅱ
物件紹介
メインステージ入谷Ⅱは東京地下鉄日比谷線入谷駅から徒歩4分にあり、駅近で通勤通学に便利なマンションです。
このお部屋は2階以上に位置しているので、通行人や周囲の住人からの視線が気になりにくく、防犯面でも安心。建物のエントランスはオートロックがついており、インターホンにはTVモニタもついているため、相手の顔を確認してから来客対応することができます。
フローリングのお部屋なのでお掃除もラクラク。キッチンはシステムキッチン仕様になっていますので、お料理好きの方にもぴったり。バス・トイレは別なので、のんびりお風呂タイムも楽しめるでしょう。また、雨の日でも浴室乾燥機を使えば、お洗濯も問題ありません。
通信設備面では、インターネットが無料で使えるので、月々の出費を抑えられるのも魅力です。また、BSアンテナ・CSアンテナもありますので、おうち時間も充実するでしょう(別途工事、BS・CSの契約料等が必要な場合あり)。
建物にはエレベーターがついているので、重い荷物があっても安心。共用部には宅配ボックスが設定されているので、不在の時にも荷物を受け取ることができます。また、ペット飼育の相談ができますので、あなたの大切な家族の一員も快適に暮らせるか、ぜひ確認してみてください。
コンビニまで徒歩10分の場所にあり、日用品や食料品のお買い物にも便利です。
このお部屋は2階以上に位置しているので、通行人や周囲の住人からの視線が気になりにくく、防犯面でも安心。建物のエントランスはオートロックがついており、インターホンにはTVモニタもついているため、相手の顔を確認してから来客対応することができます。
フローリングのお部屋なのでお掃除もラクラク。キッチンはシステムキッチン仕様になっていますので、お料理好きの方にもぴったり。バス・トイレは別なので、のんびりお風呂タイムも楽しめるでしょう。また、雨の日でも浴室乾燥機を使えば、お洗濯も問題ありません。
通信設備面では、インターネットが無料で使えるので、月々の出費を抑えられるのも魅力です。また、BSアンテナ・CSアンテナもありますので、おうち時間も充実するでしょう(別途工事、BS・CSの契約料等が必要な場合あり)。
建物にはエレベーターがついているので、重い荷物があっても安心。共用部には宅配ボックスが設定されているので、不在の時にも荷物を受け取ることができます。また、ペット飼育の相談ができますので、あなたの大切な家族の一員も快適に暮らせるか、ぜひ確認してみてください。
コンビニまで徒歩10分の場所にあり、日用品や食料品のお買い物にも便利です。
お金・契約の情報
※「-」と表示されているものは、実際は料金が発生するものもございます。詳細はお問い合わせください。
| 家賃 | 11.35万円 | 管理費・共益費 | 1.5万円 |
|---|---|---|---|
| 敷金 | なし | 礼金 | 11.35万円 |
| 入居決定でお祝い金最大100,000円 | |||
| 保証金 | - | 償却・敷引 | - |
| 住宅保険料 | 1円 | 更新料 | - |
| その他費用 | AMLクラブサポート費用:1.65万円 | ||
| 保証会社利用 | 必須 | 保証会社名 | - |
| 保証会社費用 | - | 保証会社備考 | 初回保証料:総賃料の50% |
| 契約形態 | - | 契約期間 | 2年 |
| 入居・引渡期間 | 2026年03月下旬 | 現況 | - |
| 入居可能条件 | 2人入居可、ペット相談 | ||
| 契約備考 | ペット飼育時敷金1カ月追加 鍵交換費用:22000 その他設備/条件:室内洗濯機置き場、ごみ出し24時間OK、独立洗面台、防犯カメラ、クローゼット、シューズボックス、分譲賃貸 | ||
部屋の情報
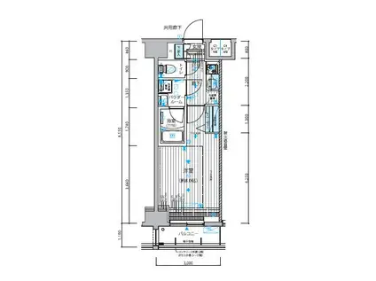
| 間取り | 1K | 専有面積 | 25.65m2 |
|---|---|---|---|
| 間取り詳細 | 洋室(8帖) | ||
| 所在階 / 向き | 13階 / - | バルコニー面積 | - |
| 水道 / ガス | ガス【都市】 | ||
| 設備 | バス・トイレ別、オートロック、テレビドアホン、宅配ボックス、浴室乾燥機、光ファイバー対応、システムキッチン、エアコン、エレベーター、温水洗浄便座、バルコニー、フローリング、2口コンロ、コンロ:ガス、CSアンテナ、BSアンテナ、インターネット使用料無料、タイル張り | ||
| 当社物件ID | 38941346 | ||
建物の情報
| 建物名 | メインステージ入谷Ⅱ | ||
|---|---|---|---|
| 所在地 | 東京都台東区竜泉1丁目 | ||
| 交通 | 東京地下鉄日比谷線 入谷駅(東京) 徒歩4分 東京地下鉄日比谷線 三ノ輪駅 徒歩10分 | ||
| 階数 | 15階建 | 総戸数 | - |
| 築年月 | 2020年02月 / 築6年 | エレベーター | あり |
| 駐車場 | - | バイク置き場 | - |
| 駐輪場 | あり | 管理人/管理会社 | - |
| 周辺環境 | コンビニ 徒歩10分(761m) 販売店 徒歩11分(868m) その他 ドラッグストア その他 公園 その他 銀行 その他 * | ||
| 建物種別 | マンション | 建物構造 | RC(鉄筋コンクリート) |
この部屋の取扱い不動産会社
| 会社名 | ハウスコム東東京株式会社 押上店 | ||
|---|---|---|---|
| 所在地 | 東京都墨田区16-2三橋ビル1階 | 交通 | - |
| 営業時間 | 10:00~18:00 | 定休日 | 水曜定休 |
| 免許番号 | 東京都知事(1)第108283号 | 取引態様 | 仲介 |
| 不動産会社管理番号 | HC2-3182404-1303-0072 | 当社管理番号 | 468 |
| 所属団体 | 、 | ||
| 取扱い物件情報 | 物件詳細へ | ||
※各種情報と現状に差異がある場合は、現状優先となります。問い合わせをすることで、より詳しい条件、情報を確認する事ができます。
提供:ハウスコム東東京株式会社 押上店
この物件が気になったら掲載期限まであと5日
メインステージ入谷Ⅱに条件(家賃・エリア)が近い物件一覧
| 写真 | 家賃 管理費等 | 敷金 礼金 | 間取り 専有面積 | 築年数 | 最寄り駅 所在地 | キープ | 詳細 |
|---|---|---|---|---|---|---|---|
マンション アーバンパーク押上(1DK/1階) | |||||||
![]() | 12.15万円 1.5万円 | なし なし | 1DK 25.81m2 | 築2年 | 都営浅草線 押上駅 徒歩8分 東武伊勢崎線 曳舟駅 徒歩14分 都営浅草線 本所吾妻橋駅 徒歩14分 東京都墨田区向島 | 詳細を見る | |
マンション 鈴木ビル(1K/1階) | |||||||
![]() | 7.1万円 3,000円 | 7.1万円 7.1万円 | 1K 26.17m2 | 築45年 | 東京地下鉄千代田線 町屋駅 徒歩8分 東京都荒川線 町屋駅前駅 徒歩8分 京成電鉄本線 町屋駅 徒歩10分 東京都荒川区町屋三丁目 | 詳細を見る | |
マンション FIRSTSTAGE ASAKUSA BUILDING(1LDK/4階) | |||||||
![]() | 13.8万円 5,000円 | 13.8万円 なし | 1LDK 42.71m2 | 築34年 | つくばエクスプレス 新御徒町駅 徒歩6分 東京都大江戸線 新御徒町駅 徒歩6分 東京地下鉄銀座線 稲荷町駅(東京) 徒歩8分 東京都台東区元浅草3丁目 | 詳細を見る | |
マンション パークハビオ水天宮前(1DK/2階) | |||||||
![]() | 18万円 1.5万円 | 18万円 18万円 | 1DK 41.51m2 | 築18年 | 東京メトロ半蔵門線 水天宮前駅 徒歩3分 東京メトロ日比谷線 人形町駅 徒歩7分 東京メトロ東西線 茅場町駅 徒歩10分 東京都中央区日本橋蛎殻町 | 詳細を見る | |
マンション NANAEI日本橋(1K/4階) | |||||||
![]() | 16万円 1万円 | なし 32万円 | 1K 30.09m2 | 築8年 | 東京メトロ半蔵門線 水天宮前駅 徒歩4分 東京メトロ日比谷線 茅場町駅 徒歩5分 東京メトロ日比谷線 人形町駅 徒歩11分 東京都中央区日本橋箱崎町 | 詳細を見る | |






