賃貸マンション
デコール岡本Ⅱ番館の賃貸物件情報(2LDK/1階)
| 家賃 | 管理費等 | 敷金 | 礼金 | 間取り | 専有面積 |
|---|---|---|---|---|---|
| 7.8万円 | 5,000円 | なし | 15.6万円 | 2LDK | 49.23m2 |
入居決定でお祝い金最大100,000円
- 保証金
- -
- 償却・敷引
- -
- 築年数
- 築38年
- 所在階
- 1階
- 向き
- 南
Point
こだわりで選びたい方におすすめ。神戸市東灘区エリアで住まいをお探しなら「デコール岡本2番館」。こだわりポイント満載のデコール岡本2番館。収納はクロゼット・シューズボックス・全居室収納など豊富なので、衣類や履き物の整理がしやすく便利です。より詳しい情報や内見のご予約はCHINTAI ROOM 六甲本店
提供:CHINTAI ROOM 六甲本店

詳細情報 デコール岡本Ⅱ番館
物件紹介
デコール岡本Ⅱ番館は阪急電鉄神戸線岡本駅から徒歩7分にあり、駅近で通勤通学に便利なマンションです。
建物のエントランスはオートロックがついており、防犯性が高くなっています。
人気の南向きのお部屋。また、フローリングなのでお掃除もラクラク。バス・トイレ別の仕様で、のんびりお風呂タイムも楽しめます。
通信設備面では、インターネット接続が可能です。また、BSアンテナ・CSアンテナがありCATVにも対応しているので、おうち時間も充実するでしょう(別途工事、契約料が必要な場合あり)。
建物のエントランスはオートロックがついており、防犯性が高くなっています。
人気の南向きのお部屋。また、フローリングなのでお掃除もラクラク。バス・トイレ別の仕様で、のんびりお風呂タイムも楽しめます。
通信設備面では、インターネット接続が可能です。また、BSアンテナ・CSアンテナがありCATVにも対応しているので、おうち時間も充実するでしょう(別途工事、契約料が必要な場合あり)。
お金・契約の情報
※「-」と表示されているものは、実際は料金が発生するものもございます。詳細はお問い合わせください。
| 家賃 | 7.8万円 | 管理費・共益費 | 5,000円 |
|---|---|---|---|
| 敷金 | なし | 礼金 | 15.6万円 |
| 入居決定でお祝い金最大100,000円 | |||
| 保証金 | - | 償却・敷引 | - |
| 住宅保険料 | 住宅保険料あり(2年) | 更新料 | - |
| 保証会社利用 | 必須 | 保証会社名 | - |
| 保証会社費用 | - | 保証会社備考 | 初回100%更新無(その他プランは別途要相談) |
| 契約形態 | - | 契約期間 | 2年 |
| 入居・引渡期間 | 即時 | 現況 | 空室 |
| 入居可能条件 | 2人入居可、高齢者可、学生可 | ||
| 契約備考 | 阪急神戸本線岡本駅周辺への引っ越しをお考えなら「デコール岡本2番館」。「デコール岡本2番館」のここがイチオシ。収納はクロゼット・シューズボックス・全居室収納などが備え付けられているので、衣類や日用品の収納に重宝します。これまでも、これからもCHINTAI ROOM 六甲本店 キュリアは為になる不動産情報をご提供して参ります。阪急神戸本線岡本を中心に住まい探しをお手伝い致します。 | ||
部屋の情報
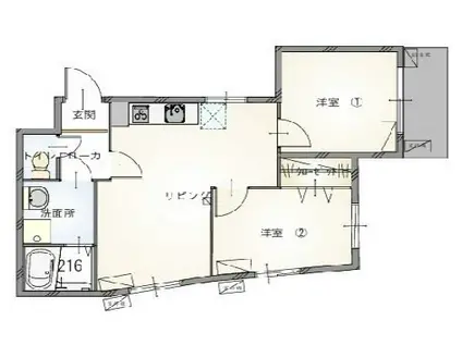
| 間取り | 2LDK | 専有面積 | 49.23m2 |
|---|---|---|---|
| 所在階 / 向き | 1階 / 南 | バルコニー面積 | - |
| 水道 / ガス | 水道【公営】、ガス【都市】 | ||
| 設備 | バス・トイレ別、オートロック、光ファイバー対応、温水洗浄便座、フローリング、洗髪洗面化粧台、2口コンロ、コンロ:ガス、CATV、CSアンテナ、BSアンテナ、シャワー、給湯、洗濯機:室内 | ||
| 当社物件ID | 159327419 | ||
建物の情報
| 建物名 | デコール岡本Ⅱ番館 | ||
|---|---|---|---|
| 所在地 | 兵庫県神戸市東灘区岡本7丁目 9-20 | ||
| 交通 | 阪急電鉄神戸線 岡本駅(兵庫) 徒歩7分 東海道本線 摂津本山駅 徒歩11分 | ||
| 階数 | 3階建 | 総戸数 | 14戸 |
| 築年月 | 1988年04月 / 築38年 | エレベーター | - |
| 駐車場 | 近隣 1.6万円/月 徒歩1分(50m) | バイク置き場 | - |
| 駐輪場 | - | 管理人/管理会社 | - |
| 周辺環境 | 販売店 徒歩10分(745m) 中学校 本山南中学校 徒歩12分(916m) 小学校 神戸市立本山第二小学校 徒歩9分(699m) | ||
| 建物種別 | マンション | 建物構造 | RC(鉄筋コンクリート) |
この部屋の取扱い不動産会社
| 会社名 | CHINTAI ROOM 六甲本店 | ||
|---|---|---|---|
| 所在地 | 兵庫県 神戸市灘区森後町1丁目4番10号 フレグランス六甲1F | 交通 | JR東海道本線「六甲道駅」徒歩1分 |
| 営業時間 | 10:00-19:30 | 定休日 | なし |
| 免許番号 | 兵庫県知事(2)第11891号 | 取引態様 | 仲介 |
| 不動産会社管理番号 | 1800990 | 当社管理番号 | 377 |
| 取扱い物件情報 | 物件詳細へ | ||
※各種情報と現状に差異がある場合は、現状優先となります。問い合わせをすることで、より詳しい条件、情報を確認する事ができます。
提供:CHINTAI ROOM 六甲本店
この物件が気になったら掲載期限まであと5日
デコール岡本Ⅱ番館に条件(家賃・エリア)が近い物件一覧
| 写真 | 家賃 管理費等 | 敷金 礼金 | 間取り 専有面積 | 築年数 | 最寄り駅 所在地 | キープ | 詳細 |
|---|---|---|---|---|---|---|---|
アパート ヒカルサ稲美天満Ⅱ(2LDK/2階) | |||||||
![]() | 8.35万円 3,900円 | なし 8.35万円 | 2LDK 56.44m2 | 新築 | 兵庫県加古郡稲美町六分一 | 詳細を見る | |
マンション ビレッジハウス志染(3K/1階) | |||||||
![]() | 5.2699万円 なし | なし なし | 3K 43.5m2 | 築47年 | 神戸電鉄粟生線 志染駅 徒歩12分 神戸電鉄粟生線 恵比須駅 徒歩29分 神戸電鉄粟生線 広野ゴルフ場前駅 徒歩29分 兵庫県三木市志染町西自由が丘 | 詳細を見る | |
アパート 山陽電気鉄道本線 人丸前駅 徒歩2分 築5年(1LDK/2階) | |||||||
![]() | 8.8万円 3,500円 | なし 20万円 | 1LDK 46.11m2 | 築5年 | 山陽電気鉄道本線 人丸前駅 徒歩2分 山陽電気鉄道本線 大蔵谷駅 徒歩9分 山陽本線 明石駅 徒歩12分 兵庫県明石市東人丸町 | 詳細を見る | |
マンション ソプラリア(ワンルーム/1階) | |||||||
![]() | 5万円 4,000円 | なし なし | ワンルーム 24.68m2 | 築22年 | 神戸電鉄粟生線 広野ゴルフ場前駅 徒歩10分 神戸電鉄粟生線 緑が丘駅(兵庫) 徒歩19分 神戸電鉄粟生線 志染駅 徒歩25分 兵庫県三木市緑が丘町西 | 詳細を見る | |
アパート メゾン エトワール(1K/2階) | |||||||
![]() | 5.3万円 4,500円 | 5.3万円 3万円 | 1K 27.62m2 | 築3年 | 兵庫県加古郡稲美町国安 | 詳細を見る | |
マンション ブランヴァレ(ワンルーム/2階) | |||||||
![]() | 5.2万円 4,000円 | なし 5万円 | ワンルーム 31.79m2 | 築24年 | 神戸電鉄粟生線 広野ゴルフ場前駅 徒歩10分 神戸電鉄粟生線 緑が丘駅(兵庫) 徒歩10分 神戸電鉄粟生線 押部谷駅 徒歩20分 兵庫県三木市緑が丘町中 | 詳細を見る | |
マンション シーサイドパストラル林崎II(2LDK/1階) | |||||||
![]() | 8.6万円 6,000円 | なし 20万円 | 2LDK 67.12m2 | 築29年 | 山陽電気鉄道本線 林崎松江海岸駅 徒歩3分 山陽電気鉄道本線 西新町駅 徒歩23分 山陽本線 西明石駅 徒歩30分 兵庫県明石市林崎町3丁目 | 詳細を見る | |
一戸建て 神戸電鉄粟生線 恵比須駅 徒歩6分 築51年(2LDK) | |||||||
![]() | 6.3万円 なし | なし 12.6万円 | 2LDK 56.73m2 | 築51年 | 神戸電鉄粟生線 恵比須駅 徒歩6分 神戸電鉄粟生線 三木上の丸駅 徒歩18分 神戸電鉄粟生線 志染駅 徒歩28分 兵庫県三木市宿原 | 詳細を見る | |






