賃貸一戸建て
横浜線 菊名駅 徒歩20分 2階建 築13年の賃貸物件情報(3LDK)
| 家賃 | 管理費等 | 敷金 | 礼金 | 間取り | 専有面積 |
|---|---|---|---|---|---|
| 20万円 | なし | 40万円 | 20万円 | 3LDK | 98.45m2 |
入居決定でお祝い金最大100,000円
Point
まずはお問い合わせ!
不動産会社は街のプロ、あなたに合った物件がきっと見つかります。
提供:アパマンショップ厚木店

詳細情報 横浜線 菊名駅 徒歩20分 2階建 築13年
物件紹介
横浜線菊名駅から徒歩20分にある一戸建てです。
このお部屋のインターホンにはTVモニタがついているため、相手の顔を確認してから来客対応することができます。
こちらは楽器相談が可能な物件。楽器演奏をお考えの方はぜひ相談してみてください。フローリングのお部屋なのでお掃除もラクラク。室内には人気のウォークインクローゼットがありますので、たくさんの荷物も効率的に収納ができます。キッチンはシステムキッチン仕様になっていますので、お料理好きの方にもぴったり。バス・トイレは別なので、のんびりお風呂タイムも楽しめるでしょう。また、雨の日でも浴室乾燥機を使えば、お洗濯も問題ありません。
通信設備面ではCATVに対応しているので、おうち時間も充実するでしょう(別途工事、契約料が必要な場合あり)。
コンビニまで徒歩6分の場所にあり、日用品や食料品のお買い物にも便利です。
このお部屋のインターホンにはTVモニタがついているため、相手の顔を確認してから来客対応することができます。
こちらは楽器相談が可能な物件。楽器演奏をお考えの方はぜひ相談してみてください。フローリングのお部屋なのでお掃除もラクラク。室内には人気のウォークインクローゼットがありますので、たくさんの荷物も効率的に収納ができます。キッチンはシステムキッチン仕様になっていますので、お料理好きの方にもぴったり。バス・トイレは別なので、のんびりお風呂タイムも楽しめるでしょう。また、雨の日でも浴室乾燥機を使えば、お洗濯も問題ありません。
通信設備面ではCATVに対応しているので、おうち時間も充実するでしょう(別途工事、契約料が必要な場合あり)。
コンビニまで徒歩6分の場所にあり、日用品や食料品のお買い物にも便利です。
お金・契約の情報
※「-」と表示されているものは、実際は料金が発生するものもございます。詳細はお問い合わせください。
| 家賃 | 20万円 | 管理費・共益費 | なし |
|---|---|---|---|
| 敷金 | 40万円 | 礼金 | 20万円 |
| 入居決定でお祝い金最大100,000円 | |||
| 保証金 | - | 償却・敷引 | - |
| 住宅保険料 | 2.55万円(2年) | 更新料 | - |
| 保証会社利用 | 必須 | 保証会社名 | - |
| 保証会社費用 | - | 保証会社備考 | 保証会社 要:初回 賃料総額100%+月額 賃料総額2%(最低1,000円) |
| 契約形態 | 定期借家 | 契約期間 | 2年 |
| 入居・引渡期間 | 2026年05月上旬 | 現況 | - |
部屋の情報
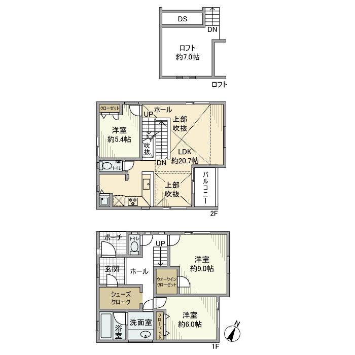
| 間取り | 3LDK | 専有面積 | 98.45m2 |
|---|---|---|---|
| 間取り詳細 | LDK(20.7帖)、洋室(5.4帖)、洋室(6帖)、洋室(9帖) | ||
| 所在階 / 向き | 1階 / 南東 | バルコニー面積 | - |
| 水道 / ガス | ガス【都市】 | ||
| 設備 | バス・トイレ別、テレビドアホン、浴室乾燥機、ウォークインクローゼット、追い焚き、システムキッチン、温水洗浄便座、バルコニー、フローリング、コンロ:ガス、CATV、シャワー、洗濯機:室内 | ||
| 当社物件ID | 159978227 | ||
建物の情報
| 建物名 | 横浜線 菊名駅 徒歩20分 2階建 築13年 | ||
|---|---|---|---|
| 所在地 | 神奈川県横浜市鶴見区馬場1丁目 | ||
| 交通 | 横浜線 菊名駅 徒歩20分 | ||
| 階数 | 2階建 | 総戸数 | - |
| 築年月 | 2014年01月 / 築13年 | エレベーター | - |
| 駐車場 | ご確認ください | バイク置き場 | - |
| 駐輪場 | - | 管理人/管理会社 | - |
| 建物種別 | 一戸建て | 建物構造 | 木造 |
この部屋の取扱い不動産会社
| 会社名 | アパマンショップ桜木町駅前店 | ||
|---|---|---|---|
| 所在地 | 神奈川県横浜市中区花咲町2丁目 65−6コウノビルMM21 5階 | 交通 | 根岸線桜木町から徒歩1分 |
| 営業時間 | 10:00〜18:30 | 定休日 | 水曜日 |
| 免許番号 | 神奈川県知事(2)30658 | 取引態様 | 仲介 |
| 不動産会社管理番号 | 1001054514 | 当社管理番号 | 4 |
| 所属団体 | 全国宅地建物取引業保証協会 | ||
| 公正取引協議会 | (公社) 首都圏不動産公正取引協議会加盟 | ||
| 取扱い物件情報 | 物件詳細へ | ||
※各種情報と現状に差異がある場合は、現状優先となります。問い合わせをすることで、より詳しい条件、情報を確認する事ができます。
提供:アパマンショップ桜木町駅前店
この物件が気になったら掲載期限まであと13日
横浜線 菊名駅 徒歩20分 2階建 築13年に条件(家賃・エリア)が近い物件一覧
| 写真 | 家賃 管理費等 | 敷金 礼金 | 間取り 専有面積 | 築年数 | 最寄り駅 所在地 | キープ | 詳細 |
|---|---|---|---|---|---|---|---|
マンション プレミスト湘南辻堂 FOREST FACE(3LDK/6階) | |||||||
![]() | 26万円 1万円 | 26万円 26万円 | 3LDK 69.18m2 | 築6年 | JR東海道本線 辻堂駅 徒歩14分 神奈川県藤沢市羽鳥 | 詳細を見る | |
マンション さくら十番館(1SLDK/2階) | |||||||
![]() | 13.4万円 5,500円 | なし 13.4万円 | 1SLDK 49.68m2 | 築1年 | 相鉄本線 大和駅(神奈川) 徒歩9分 相鉄本線 相模大塚駅 徒歩20分 小田急江ノ島線 桜ケ丘駅 徒歩32分 神奈川県大和市中央 | 詳細を見る | |
マンション シェルブルー(2DK/2階) | |||||||
![]() | 13.8万円 5,000円 | 13.8万円 13.8万円 | 2DK 49.45m2 | 築30年 | 東急東横線 新丸子駅 徒歩3分 JR南武線 武蔵小杉駅 徒歩9分 東急東横線 武蔵小杉駅 徒歩10分 神奈川県川崎市中原区丸子通 | 詳細を見る | |
マンション サンリュミエSEIKOH(1LDK/6階) | |||||||
![]() | 18.9万円 1万円 | 18.9万円 37.8万円 | 1LDK 50.45m2 | 築17年 | 東急東横線 新丸子駅 徒歩1分 東急東横線 武蔵小杉駅 徒歩5分 JR南武線 向河原駅 徒歩15分 神奈川県川崎市中原区新丸子町 | 詳細を見る | |
マンション 藤沢マンション(2LDK/5階) | |||||||
![]() | 17万円 5,000円 | 17万円 17万円 | 2LDK 55.12m2 | 新築 | JR東海道本線 藤沢駅 徒歩8分 江ノ島電鉄線 藤沢駅 徒歩8分 小田急江ノ島線 藤沢駅 徒歩8分 神奈川県藤沢市藤沢 | 詳細を見る | |
マンション プライムアーバン武蔵小杉COMODO(2LDK/7階) | |||||||
![]() | 26.4万円 1万円 | 26.4万円 26.4万円 | 2LDK 58.32m2 | 築40年 | 東急東横線 新丸子駅 徒歩3分 東急東横線 武蔵小杉駅 徒歩4分 JR南武線 向河原駅 徒歩14分 神奈川県川崎市中原区新丸子東 | 詳細を見る | |
マンション ライズコート(1LDK/4階) | |||||||
![]() | 16.6万円 1.2万円 | 16.6万円 33.2万円 | 1LDK 46.34m2 | 築13年 | JR南武線 武蔵中原駅 徒歩13分 JR南武線 武蔵新城駅 徒歩18分 東急東横線 武蔵小杉駅 徒歩35分 神奈川県川崎市中原区下小田中 | 詳細を見る | |
マンション ヴェレーナシティ鎌倉深沢(3LDK/7階) | |||||||
![]() | 19.5万円 なし | 39万円 なし | 3LDK 71.48m2 | 築2年 | 湘南モノレール 湘南深沢駅 徒歩7分 湘南モノレール 湘南町屋駅 徒歩8分 湘南モノレール 富士見町駅(神奈川) 徒歩20分 神奈川県鎌倉市寺分 | 詳細を見る | |









