賃貸マンション
ライオンズ札幌大通公園ミレスの賃貸物件情報(3LDK/6階)
| 家賃 | 管理費等 | 敷金 | 礼金 | 間取り | 専有面積 |
|---|---|---|---|---|---|
| 16.5万円 | なし | 16.5万円 | なし | 3LDK | 65.05m2 |
入居決定でお祝い金最大100,000円
- 保証金
- -
- 償却・敷引
- -
- 築年数
- 築6年
- 所在階
- 6階
- 向き
- 南
Point
★築5年、ただの賃貸じゃ物足りない ★分譲ならではの上質感 ★都心の利便性と快適設備があなたの生活を彩る ★エアコン完備、都市ガス暖房の経済的な住まい ★床暖房付きの暖かい住まいで冬も安心快適
提供:センチュリー21TRAD(株)札幌支社(SUUMO経由)

詳細情報 ライオンズ札幌大通公園ミレス
物件紹介
ライオンズ札幌大通公園ミレスは地下鉄東西線西11丁目駅から徒歩5分にあり、駅近で通勤通学に便利なマンションです。
このお部屋は2階以上に位置しているので、通行人や周囲の住人からの視線が気になりにくく、防犯面でも安心。建物のエントランスはオートロックがついており、インターホンにはTVモニタもついているため、相手の顔を確認してから来客対応することができます。
人気の南向きのお部屋。角部屋でもあるため、周囲の居住者の生活音も気になりにくい場所です。室内にはウォークインクローゼットがありますので、たくさんの荷物も効率的に収納ができます。キッチンはシステムキッチン仕様になっていますので、お料理好きの方にもぴったり。また、バス・トイレは別で、のんびりお風呂タイムも楽しめるでしょう。
通信設備面では、インターネットが無料で使えるので、月々の出費を抑えられるのも魅力です。また、BSアンテナ・CSアンテナがありCATVにも対応しているので、おうち時間も充実するでしょう(別途工事、BS・CS・CATVの契約料等が必要な場合あり)。
床暖房があり、冬も足元から暖かく快適に過ごすことができます。建物にはエレベーターがついているので、重い荷物があっても安心。共用部には宅配ボックスが設定されているので、不在の時にも荷物を受け取ることができます。また、ペット飼育の相談ができますので、あなたの大切な家族の一員も快適に暮らせるか、ぜひ確認してみてください。
このお部屋は2階以上に位置しているので、通行人や周囲の住人からの視線が気になりにくく、防犯面でも安心。建物のエントランスはオートロックがついており、インターホンにはTVモニタもついているため、相手の顔を確認してから来客対応することができます。
人気の南向きのお部屋。角部屋でもあるため、周囲の居住者の生活音も気になりにくい場所です。室内にはウォークインクローゼットがありますので、たくさんの荷物も効率的に収納ができます。キッチンはシステムキッチン仕様になっていますので、お料理好きの方にもぴったり。また、バス・トイレは別で、のんびりお風呂タイムも楽しめるでしょう。
通信設備面では、インターネットが無料で使えるので、月々の出費を抑えられるのも魅力です。また、BSアンテナ・CSアンテナがありCATVにも対応しているので、おうち時間も充実するでしょう(別途工事、BS・CS・CATVの契約料等が必要な場合あり)。
床暖房があり、冬も足元から暖かく快適に過ごすことができます。建物にはエレベーターがついているので、重い荷物があっても安心。共用部には宅配ボックスが設定されているので、不在の時にも荷物を受け取ることができます。また、ペット飼育の相談ができますので、あなたの大切な家族の一員も快適に暮らせるか、ぜひ確認してみてください。
お金・契約の情報
※「-」と表示されているものは、実際は料金が発生するものもございます。詳細はお問い合わせください。
| 家賃 | 16.5万円 | 管理費・共益費 | なし |
|---|---|---|---|
| 敷金 | 16.5万円 | 礼金 | なし |
| 入居決定でお祝い金最大100,000円 | |||
| 保証金 | - | 償却・敷引 | - |
| 住宅保険料 | - | 更新料 | - |
| 保証会社利用 | 必須 | 保証会社名 | - |
| 保証会社費用 | - | 保証会社備考 | 保証会社利用必 保証料:賃料の50% ほっと保証 初回:賃料等合計の50%(連帯保証人なしは70%)、年間保証料:12,000円/年、月額保証料:なし |
| 契約形態 | - | 契約期間 | - |
| 入居・引渡期間 | 相談 | 現況 | - |
| 入居可能条件 | ペット相談 | ||
| 契約備考 | ★築5年、ただの賃貸じゃ物足りない ★分譲ならではの上質感 ★都心の利便性と快適設備があなたの生活を彩る ★エアコン完備、都市ガス暖房の経済的な住まい 24時間管理料1100円/退去時清掃料6.6万円/エアコン清掃料3.3万円 3LDK ペット相談/事務所利用不可 損保【要】 バストイレ別、バルコニー、エアコン、ガスコンロ対応、クロゼット、シャワー付洗面台、TVインターホン、オートロック、室内洗濯置、システムキッチン、南向き、追焚機能浴室、角住戸、温水洗浄便座、エレベーター、洗面所独立、駐輪場、宅配ボックス、CATV、礼金不要、BS・CS、防犯カメラ、ペット相談、分譲賃貸、グリル付、全居室洋室、ウォークインクロゼット、東南角住戸、仲介手数料不要、敷金1ヶ月、2沿線利用可、駅まで平坦、ネット使用料不要、キッチンに窓、床暖房、ガス暖房、南面リビング、2駅利用可、路面電車沿線、駅徒歩5分以内、敷地内ごみ置き場、日勤管理、LDK12畳以上、U字型キッチン、都市ガス、南面バルコニー、シューズWIC、年度内入居可、保証会社利用可、IT重説対応物件、通風良好 | ||
部屋の情報
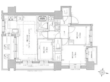
| 間取り | 3LDK | 専有面積 | 65.05m2 |
|---|---|---|---|
| 所在階 / 向き | 6階 / 南 | バルコニー面積 | - |
| 水道 / ガス | - | ||
| 設備 | バス・トイレ別、2階以上、オートロック、テレビドアホン、宅配ボックス、ウォークインクローゼット、追い焚き、インターネット対応、システムキッチン、エアコン、エレベーター、温水洗浄便座、南向き、角部屋、バルコニー、洗髪洗面化粧台、床暖房、コンロ:ガス、CATV、CSアンテナ、BSアンテナ、インターネット使用料無料、洗濯機:室内 | ||
| 当社物件ID | 159372761 | ||
建物の情報
| 建物名 | ライオンズ札幌大通公園ミレス | ||
|---|---|---|---|
| 所在地 | 北海道札幌市中央区南二条西 | ||
| 交通 | 地下鉄東西線 西11丁目駅 徒歩5分 札幌市電 中央区役所前駅 徒歩5分 地下鉄東西線 西18丁目駅 徒歩14分 | ||
| 階数 | 15階建 | 総戸数 | - |
| 築年月 | 2020年03月 / 築6年 | エレベーター | あり |
| 駐車場 | 近隣 300m14300円 | バイク置き場 | - |
| 駐輪場 | あり | 管理人/管理会社 | - |
| 周辺環境 | その他 ローソン札幌南3条西店(コンビニ)まで135m その他 北海道立札幌医科大学(大学・短大)まで795m その他 北海道立近代美術館(その他)まで1457m その他 医療法人社団いとう整形外科病院(病院)まで301m その他 大通公園(公園)まで1036m その他 札幌医科大学附属病院(病院)まで690m | ||
| 建物種別 | マンション | 建物構造 | RC(鉄筋コンクリート) |
この部屋の取扱い不動産会社
| 会社名 | センチュリー21TRAD(株)札幌支社(SUUMO経由) | ||
|---|---|---|---|
| 所在地 | 北海道札幌市北区北九条西4-19-3 キャッスルエルム1階 | 交通 | - |
| 営業時間 | 9:00~18:00 | 定休日 | 水曜日、日曜日 |
| 免許番号 | 北海道知事十勝532 | 取引態様 | 仲介 |
| 不動産会社管理番号 | 100481205967 | 当社管理番号 | 89 |
| 所属団体 | (公社)北海道宅地建物取引業協会会員 | ||
| 公正取引協議会 | (一社)北海道不動産公正取引協議会加盟 | ||
| 取扱い物件情報 | 物件詳細へ | ||
※各種情報と現状に差異がある場合は、現状優先となります。問い合わせをすることで、より詳しい条件、情報を確認する事ができます。
提供:センチュリー21TRAD(株)札幌支社(SUUMO経由)
この物件が気になったら掲載期限まであと10日
ライオンズ札幌大通公園ミレスに条件(家賃・エリア)が近い物件一覧
| 写真 | 家賃 管理費等 | 敷金 礼金 | 間取り 専有面積 | 築年数 | 最寄り駅 所在地 | キープ | 詳細 |
|---|---|---|---|---|---|---|---|
マンション DOLCE FUSHIMI(3LDK/5階) | |||||||
![]() | 12.3万円 7,000円 | なし なし | 3LDK 74.16m2 | 築6年 | 札幌市軌道線 西線16条駅 徒歩2分 北海道札幌市中央区南十六条西14丁目 | 詳細を見る | |
マンション ラディア近代美術館前(2LDK/6階) | |||||||
![]() | 11.2万円 7,000円 | 11.2万円 11.2万円 | 2LDK 57.35m2 | 築9年 | 地下鉄東西線 西18丁目駅 徒歩10分 JR函館本線 桑園駅 徒歩11分 JR札沼線 桑園駅 徒歩11分 北海道札幌市中央区北五条西 | 詳細を見る | |
マンション ブランシャールKI幌平橋(2LDK/3階) | |||||||
![]() | 11.4万円 5,000円 | なし 11.4万円 | 2LDK 55.38m2 | 新築 | 札幌市電 行啓通駅 徒歩3分 地下鉄南北線 幌平橋駅 徒歩10分 北海道札幌市中央区南十三条西 | 詳細を見る | |
マンション クレジデンス札幌・南4条(2LDK/5階) | |||||||
![]() | 11万円 7,000円 | なし なし | 2LDK 48.62m2 | 築19年 | 札幌市東豊線 豊水すすきの駅 徒歩5分 北海道札幌市中央区南四条東2丁目 | 詳細を見る | |
マンション ONE YAMAHANA(2LDK/1階) | |||||||
![]() | 12.6万円 6,000円 | なし なし | 2LDK 63.3m2 | 築1年 | 札幌市軌道線 東屯田通駅 徒歩3分 北海道札幌市中央区南二十条西9丁目 | 詳細を見る | |
マンション ADEN宮の森(3LDK/10階) | |||||||
![]() | 14.5万円 1万円 | 14.5万円 なし | 3LDK 77.35m2 | 築20年 | 札幌市東西線 西28丁目駅 徒歩5分 北海道札幌市中央区宮の森二条5丁目 | 詳細を見る | |
マンション 桂和レジデンス円山公園(1LDK/3階) | |||||||
![]() | 11.9万円 7,000円 | なし なし | 1LDK 41.1m2 | 築1年 | 札幌市東西線 円山公園駅 徒歩1分 北海道札幌市中央区大通西27丁目 | 詳細を見る | |








