賃貸マンション
エスコート西荻窪の賃貸物件情報(1K/4階)
| 家賃 | 管理費等 | 敷金 | 礼金 | 間取り | 専有面積 |
|---|---|---|---|---|---|
| 7.7万円 | 1万円 | 7.7万円 | 7.7万円 | 1K | 22.79m2 |
入居決定でお祝い金最大100,000円
- 保証金
- -
- 償却・敷引
- -
- 築年数
- 築25年
- 所在階
- 4階
- 向き
- 南西
Point
◎クリエイト池袋店≪池袋駅徒歩1分≫弊社では初期費用クレジット決済・分割支払い可能です!★私たちはお客様側に立って最大限にお手伝いをさせていただきます。審査等ご不安な方もお気軽にお問い合わせください!
提供:(株)クリエイト池袋店(SUUMO経由)

詳細情報 エスコート西荻窪
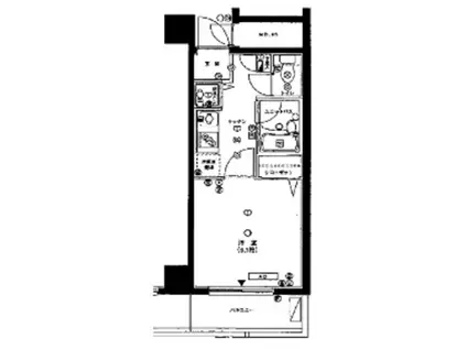
物件紹介
エスコート西荻窪はJR総武線西荻窪駅から徒歩8分にあり、駅近で通勤通学に便利なマンションです。
このお部屋は2階以上に位置しているので、通行人や周囲の住人からの視線が気になりにくく、防犯面でも安心。建物のエントランスはオートロックがついており、インターホンにはTVモニタもついているため、相手の顔を確認してから来客対応することができます。
人気の南向きのお部屋。また、フローリングなのでお掃除もラクラク。キッチンはシステムキッチン仕様になっていますので、お料理好きの方にもぴったり。また、バス・トイレは別で、のんびりお風呂タイムも楽しめるでしょう。
通信設備面では、インターネット接続が可能です。また、BSアンテナ・CSアンテナがありCATVにも対応しているので、おうち時間も充実するでしょう(別途工事、契約料が必要な場合あり)。
建物にはエレベーターがついているので、重い荷物があっても安心。共用部には宅配ボックスが設定されているので、不在の時にも荷物を受け取ることができます。
このお部屋は2階以上に位置しているので、通行人や周囲の住人からの視線が気になりにくく、防犯面でも安心。建物のエントランスはオートロックがついており、インターホンにはTVモニタもついているため、相手の顔を確認してから来客対応することができます。
人気の南向きのお部屋。また、フローリングなのでお掃除もラクラク。キッチンはシステムキッチン仕様になっていますので、お料理好きの方にもぴったり。また、バス・トイレは別で、のんびりお風呂タイムも楽しめるでしょう。
通信設備面では、インターネット接続が可能です。また、BSアンテナ・CSアンテナがありCATVにも対応しているので、おうち時間も充実するでしょう(別途工事、契約料が必要な場合あり)。
建物にはエレベーターがついているので、重い荷物があっても安心。共用部には宅配ボックスが設定されているので、不在の時にも荷物を受け取ることができます。
お金・契約の情報
※「-」と表示されているものは、実際は料金が発生するものもございます。詳細はお問い合わせください。
| 家賃 | 7.7万円 | 管理費・共益費 | 1万円 |
|---|---|---|---|
| 敷金 | 7.7万円 | 礼金 | 7.7万円 |
| 入居決定でお祝い金最大100,000円 | |||
| 保証金 | - | 償却・敷引 | - |
| 住宅保険料 | - | 更新料 | - |
| 保証会社利用 | 必須 | 保証会社名 | - |
| 保証会社費用 | - | 保証会社備考 | 保証会社利用必 初回保証料 賃料+管理費(共益費)等60% / 月額保証料 1560円 |
| 契約形態 | - | 契約期間 | - |
| 入居・引渡期間 | 相談 | 現況 | - |
| 契約備考 | 巡回管理/◎クリエイト池袋店≪池袋駅徒歩1分≫分譲賃貸/バストイレ別/システムキッチン/2口コンロ/オートロック/宅配ボックス/駐輪場/1年未満の解約総賃料1ヶ月分違約金あり。/お問い合わせ物件含め、類似物件もまとめてご紹介可能です♪♪ 合計4.4万円(内訳:事務契約手数料11000円/カギ交換費用33000円) 室内清掃費用55000円/エアコンクリーニング費用11000円 1K 単身者可 普通借家2年 損保【1.8万円2年】 バストイレ別、バルコニー、エアコン、ガスコンロ対応、クロゼット、フローリング、TVインターホン、オートロック、室内洗濯置、シューズボックス、システムキッチン、エレベーター、2口コンロ、駐輪場、宅配ボックス、CATV、光ファイバー、外壁タイル張り、BS・CS、防犯カメラ、照明付、全居室収納、分譲賃貸、保証人不要、単身者相談、敷金1ヶ月、24時間緊急通報システム、全居室フローリング、ネット専用回線、エアコン全室、保証金不要、24時間換気システム、耐震構造、3駅以上利用可、3沿線以上利用可、駅徒歩10分以内、24時間ゴミ出し可、敷地内ごみ置き場、南西向き、都市ガス、南面バルコニー、玄関収納、高速ネット対応、礼金1ヶ月、初期費用カード決済可、全室照明付 | ||
部屋の情報
| 間取り | 1K | 専有面積 | 22.79m2 |
|---|---|---|---|
| 所在階 / 向き | 4階 / 南西 | バルコニー面積 | - |
| 水道 / ガス | - | ||
| 設備 | バス・トイレ別、2階以上、オートロック、テレビドアホン、宅配ボックス、インターネット対応、システムキッチン、エアコン、エレベーター、南向き、バルコニー、フローリング、2口コンロ、コンロ:ガス、CATV、CSアンテナ、BSアンテナ、洗濯機:室内 | ||
| 当社物件ID | 73279 | ||
建物の情報
| 建物名 | エスコート西荻窪 | ||
|---|---|---|---|
| 所在地 | 東京都杉並区西荻南 | ||
| 交通 | JR総武線 西荻窪駅 徒歩8分 京王井の頭線 久我山駅 徒歩17分 JR中央線 吉祥寺駅 徒歩25分 | ||
| 階数 | 6階建 | 総戸数 | - |
| 築年月 | 2002年01月 / 築25年 | エレベーター | あり |
| 駐車場 | 近隣 500m25000円 | バイク置き場 | - |
| 駐輪場 | あり | 管理人/管理会社 | - |
| 周辺環境 | その他 ワークマン杉並宮前店(ショッピングセンター)まで415m その他 マルエツプチ松庵三丁目店(スーパー)まで197m その他 ミニコープ松庵店(スーパー)まで613m その他 ファミリーマート塚本西荻南店(コンビニ)まで181m その他 セブンイレブン西荻南2丁目店(コンビニ)まで229m その他 クリエイトエス・ディー杉並松庵店(ドラッグストア)まで583m | ||
| 建物種別 | マンション | 建物構造 | RC(鉄筋コンクリート) |
この部屋の取扱い不動産会社
| 会社名 | (株)クリエイト池袋店(SUUMO経由) | ||
|---|---|---|---|
| 所在地 | 東京都豊島区南池袋1-21-7 10階 | 交通 | - |
| 営業時間 | 10:00~19:00 | 定休日 | 定休日なし、年末年始 |
| 免許番号 | 東京都知事102042 | 取引態様 | 仲介 |
| 不動産会社管理番号 | 100491008739 | 当社管理番号 | 89 |
| 所属団体 | (公社)東京都宅地建物取引業協会会員 | ||
| 公正取引協議会 | (公社)首都圏不動産公正取引協議会加盟 | ||
| 取扱い物件情報 | 物件詳細へ | ||
※各種情報と現状に差異がある場合は、現状優先となります。問い合わせをすることで、より詳しい条件、情報を確認する事ができます。
提供:(株)クリエイト池袋店(SUUMO経由)
この物件が気になったら掲載期限まであと10日
エスコート西荻窪に条件(家賃・エリア)が近い物件一覧
| 写真 | 家賃 管理費等 | 敷金 礼金 | 間取り 専有面積 | 築年数 | 最寄り駅 所在地 | キープ | 詳細 |
|---|---|---|---|---|---|---|---|
マンション ファミール若月(2DK/2階) | |||||||
![]() | 8.5万円 5,000円 | 8.5万円 8.5万円 | 2DK 43m2 | 築37年 | 西武新宿線 東伏見駅 徒歩9分 西武新宿線 武蔵関駅 徒歩9分 東京都練馬区関町北 | 詳細を見る | |
アパート MY PLAN中野B(ワンルーム/1階) | |||||||
![]() | 6.9万円 3,000円 | なし なし | ワンルーム 11.34m2 | 築10年 | JR中央線 中野駅(東京) 徒歩7分 JR総武線 中野駅(東京) 徒歩7分 東京メトロ丸ノ内線 新中野駅 徒歩17分 東京都中野区中野 | 詳細を見る | |
アパート アミューズヴィラI(1K/1階) | |||||||
![]() | 5.4万円 1,000円 | 5.4万円 5.4万円 | 1K 20.28m2 | 築40年 | 小田急線 祖師ケ谷大蔵駅 徒歩3分 小田急線 成城学園前駅 徒歩10分 小田急線 千歳船橋駅 徒歩22分 東京都世田谷区祖師谷 | 詳細を見る | |
マンション カーサデ16(2DK/2階) | |||||||
![]() | 10万円 5,000円 | 10万円 10万円 | 2DK 40.79m2 | 築39年 | 西武新宿線 上石神井駅 徒歩10分 西武新宿線 武蔵関駅 徒歩11分 西武新宿線 上井草駅 徒歩25分 東京都練馬区上石神井 | 詳細を見る | |
マンション 木乃池プラザ阿佐谷6(ワンルーム/1階) | |||||||
![]() | 6.7万円 なし | なし なし | ワンルーム 21.06m2 | 築35年 | JR総武線 阿佐ケ谷駅 徒歩10分 JR中央線 高円寺駅 徒歩12分 東京メトロ丸ノ内線 南阿佐ケ谷駅 徒歩17分 東京都杉並区阿佐谷北 | 詳細を見る | |
アパート CASA VIOLA Ⅰ(1K/2階) | |||||||
![]() | 6万円 なし | 6万円 なし | 1K 20.46m2 | 築33年 | 西武鉄道新宿線 都立家政駅 徒歩8分 東京都練馬区中村南2丁目 | 詳細を見る | |
マンション ラフィナート嶋(1LDK/3階) | |||||||
![]() | 9.8万円 7,000円 | 9.8万円 9.8万円 | 1LDK 37.3m2 | 築20年 | 西武新宿線 上井草駅 徒歩8分 西武新宿線 井荻駅 徒歩15分 東京都練馬区下石神井 | 詳細を見る | |








