賃貸マンション
アクタス籠町グランミライの賃貸物件情報(2LDK/7階)
| 家賃 | 管理費等 | 敷金 | 礼金 | 間取り | 専有面積 |
|---|---|---|---|---|---|
| 14.8万円 | なし | なし | 29.6万円 | 2LDK | 57.05m2 |
入居決定でお祝い金最大100,000円
- 保証金
- -
- 償却・敷引
- -
- 築年数
- 築1年
- 所在階
- 7階
- 向き
- 北西
- 交通
- 長崎電軌本線 新地中華街駅 徒歩6分
長崎電軌本線 観光通駅 徒歩6分
長崎電軌大浦支線 メディカルセンター駅 徒歩7分
- 所在地
- 長崎県長崎市籠町
アクタス籠町グランミライ
[地図を表示]
Point
浜町や水辺の森公園などが徒歩圏内です♪ディスポーザーやガス衣類乾燥機などもあり分譲マンションならではの設備が充実してます☆複層ガラスで外の音も熱も軽減されます♪
提供:東栄商事(株)(SUUMO経由)

詳細情報 アクタス籠町グランミライ
物件紹介
アクタス籠町グランミライは長崎電軌本線新地中華街駅から徒歩6分にあり、駅近で通勤通学に便利なマンションです。
このお部屋は2階以上に位置しているので、通行人や周囲の住人からの視線が気になりにくく、防犯面でも安心。建物のエントランスはオートロックがついており、インターホンにはTVモニタもついているため、相手の顔を確認してから来客対応することができます。
人気の南向き・フローリングのお部屋。角部屋でもあるため、周囲の居住者の生活音も気になりにくい場所です。室内にはウォークインクローゼットがありますので、たくさんの荷物も効率的に収納ができます。キッチンはシステムキッチン仕様になっていますので、お料理好きの方にもぴったり。バス・トイレは別なので、のんびりお風呂タイムも楽しめるでしょう。また、雨の日でも浴室乾燥機を使えば、お洗濯も問題ありません。
通信設備面では、インターネットが無料で使えるので、月々の出費を抑えられるのも魅力です(別途工事等が必要な場合あり)。
床暖房があり、冬も足元から暖かく快適に過ごすことができます。建物にはエレベーターがついているので、重い荷物があっても安心。共用部には宅配ボックスが設定されているので、不在の時にも荷物を受け取ることができます。
このお部屋は2階以上に位置しているので、通行人や周囲の住人からの視線が気になりにくく、防犯面でも安心。建物のエントランスはオートロックがついており、インターホンにはTVモニタもついているため、相手の顔を確認してから来客対応することができます。
人気の南向き・フローリングのお部屋。角部屋でもあるため、周囲の居住者の生活音も気になりにくい場所です。室内にはウォークインクローゼットがありますので、たくさんの荷物も効率的に収納ができます。キッチンはシステムキッチン仕様になっていますので、お料理好きの方にもぴったり。バス・トイレは別なので、のんびりお風呂タイムも楽しめるでしょう。また、雨の日でも浴室乾燥機を使えば、お洗濯も問題ありません。
通信設備面では、インターネットが無料で使えるので、月々の出費を抑えられるのも魅力です(別途工事等が必要な場合あり)。
床暖房があり、冬も足元から暖かく快適に過ごすことができます。建物にはエレベーターがついているので、重い荷物があっても安心。共用部には宅配ボックスが設定されているので、不在の時にも荷物を受け取ることができます。
お金・契約の情報
※「-」と表示されているものは、実際は料金が発生するものもございます。詳細はお問い合わせください。
| 家賃 | 14.8万円 | 管理費・共益費 | なし |
|---|---|---|---|
| 敷金 | なし | 礼金 | 29.6万円 |
| 入居決定でお祝い金最大100,000円 | |||
| 保証金 | - | 償却・敷引 | - |
| 住宅保険料 | - | 更新料 | - |
| 保証会社利用 | 必須 | 保証会社名 | - |
| 保証会社費用 | - | 保証会社備考 | 保証会社利用必 初回保証料:総賃料の30% 100% 連帯保証人1名 |
| 契約形態 | - | 契約期間 | - |
| 入居・引渡期間 | 即時 | 現況 | - |
| 契約備考 | 通勤管理/★非喫煙者限定★ペット不可★校区:仁田佐古小学校、大浦中学校 くらしーど24/月額 月額880円 2LDK 二人入居可 普通借家2年 損保【1.8万円2年】 バストイレ別、バルコニー、ガスコンロ対応、クロゼット、フローリング、シャワー付洗面台、TVインターホン、浴室乾燥機、オートロック、室内洗濯置、シューズボックス、システムキッチン、追焚機能浴室、温水洗浄便座、脱衣所、エレベーター、洗面所独立、洗面化粧台、宅配ボックス、即入居可、閑静な住宅地、敷金不要、3口以上コンロ、対面式キッチン、防犯カメラ、分譲賃貸、全居室洋室、ウォークインクロゼット、全居室フローリング、ディンプルキー、駅まで平坦、ネット使用料不要、築2年以内、24時間換気システム、複層ガラス、平坦地、エレベーター2基、敷地内ごみ置き場、LDK12畳以上、都市ガス、洗面所にドア、IT重説対応物件、初期費用カード決済可 | ||
部屋の情報
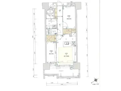
| 間取り | 2LDK | 専有面積 | 57.05m2 |
|---|---|---|---|
| 所在階 / 向き | 7階 / 北西 | バルコニー面積 | 12m2 |
| 水道 / ガス | - | ||
| 設備 | バス・トイレ別、2階以上、オートロック、テレビドアホン、宅配ボックス、浴室乾燥機、ウォークインクローゼット、追い焚き、インターネット対応、システムキッチン、エレベーター、温水洗浄便座、バルコニー、フローリング、洗髪洗面化粧台、2口コンロ、コンロ:ガス、インターネット使用料無料、洗濯機:室内 | ||
| 当社物件ID | 158798423 | ||
建物の情報
| 建物名 | アクタス籠町グランミライ | ||
|---|---|---|---|
| 所在地 | 長崎県長崎市籠町 | ||
| 交通 | 長崎電軌本線 新地中華街駅 徒歩6分 長崎電軌本線 観光通駅 徒歩6分 長崎電軌大浦支線 メディカルセンター駅 徒歩7分 | ||
| 階数 | 14階建 | 総戸数 | - |
| 築年月 | 2025年04月 / 築1年 | エレベーター | あり |
| 駐車場 | なし | バイク置き場 | - |
| 駐輪場 | - | 管理人/管理会社 | - |
| 周辺環境 | その他 ローソン 長崎湊公園前店(コンビニ)まで181m その他 セブンイレブン 長崎梅香崎町店(コンビニ)まで283m その他 ファミリーマート 長崎銅座町店(コンビニ)まで312m その他 イオン 長崎店(スーパー)まで361m その他 すき家 長崎銅座町店(飲食店)まで510m その他 ほっともっと 思案橋店(飲食店)まで707m | ||
| 建物種別 | マンション | 建物構造 | RC(鉄筋コンクリート) |
この部屋の取扱い不動産会社
| 会社名 | (株)ヘヤミセ長崎浜町店(SUUMO経由) | ||
|---|---|---|---|
| 所在地 | 長崎県長崎市浜町 5-10 | 交通 | - |
| 営業時間 | 10:00~18:30 | 定休日 | 水曜日 |
| 免許番号 | 長崎県知事4118 | 取引態様 | 仲介 |
| 不動産会社管理番号 | 100447575795 | 当社管理番号 | 89 |
| 所属団体 | (公社)全日本不動産協会長崎県本部会員 | ||
| 公正取引協議会 | (一社)九州不動産公正取引協議会加盟 | ||
| 取扱い物件情報 | 物件詳細へ | ||
※各種情報と現状に差異がある場合は、現状優先となります。問い合わせをすることで、より詳しい条件、情報を確認する事ができます。
提供:(株)ヘヤミセ長崎浜町店(SUUMO経由)
この物件が気になったら掲載期限まであと11日
アクタス籠町グランミライに条件(家賃・エリア)が近い物件一覧
| 写真 | 家賃 管理費等 | 敷金 礼金 | 間取り 専有面積 | 築年数 | 最寄り駅 所在地 | キープ | 詳細 |
|---|---|---|---|---|---|---|---|
アパート シャーメゾン フォルジュロン(3LDK/3階) | |||||||
![]() | 13.3万円 3,500円 | なし 26.6万円 | 3LDK 78.75m2 | 築4年 | 長崎県西彼杵郡時津町元村郷 | 詳細を見る | |
マンション ノーバヒルズ(3LDK/3階) | |||||||
![]() | 8.9万円 なし | 17.8万円 なし | 3LDK 67.23m2 | 築32年 | 長崎電軌本線 住吉駅(長崎) 徒歩7分 長崎電軌本線 昭和町通駅 徒歩7分 JR長崎本線 西浦上駅 徒歩12分 長崎県長崎市花丘町 | 詳細を見る | |
マンション シャーメゾンさかえ町(1LDK/4階) | |||||||
![]() | 10.7万円 6,500円 | なし 26万円 | 1LDK 44.04m2 | 築1年 | 長崎電軌蛍茶屋支線 めがね橋駅 徒歩1分 長崎電軌桜町支線 桜町駅(長崎) 徒歩5分 長崎電軌蛍茶屋支線 浜町アーケード駅 徒歩6分 長崎県長崎市栄町 | 詳細を見る | |
マンション カーサ・グラン赤迫(2LDK/2階) | |||||||
![]() | 9.2万円 3,500円 | 18.4万円 9.2万円 | 2LDK 61.47m2 | 新築 | 長崎電軌本線 赤迫駅 徒歩12分 JR長崎本線 道ノ尾駅 徒歩16分 長崎電軌本線 住吉駅(長崎) 徒歩16分 長崎県長崎市赤迫 | 詳細を見る | |
マンション ルーカス長崎諫早II(1LDK/3階) | |||||||
![]() | 9.3万円 7,000円 | 9.3万円 9.3万円 | 1LDK 45m2 | 築1年 | JR長崎本線 諫早駅 徒歩3分 長崎県諫早市永昌町 | 詳細を見る | |
マンション MATTONI(3LDK/3階) | |||||||
![]() | 9.5万円 なし | 9.5万円 9.5万円 | 3LDK 83.76m2 | 築15年 | JR長崎本線 長与駅 徒歩38分 JR長崎本線 高田駅(長崎) 徒歩39分 JR長崎本線 道ノ尾駅 徒歩57分 長崎県西彼杵郡時津町浜田郷 | 詳細を見る | |
マンション ZEE HAVEN(2LDK/5階) | |||||||
![]() | 9.8万円 5,000円 | なし 9.8万円 | 2LDK 44.2m2 | 築1年 | JR長崎本線 長崎駅(長崎) 徒歩4分 長崎電軌本線 八千代町駅 徒歩5分 西九州新幹線 長崎駅(長崎) 徒歩6分 長崎県長崎市尾上町 | 詳細を見る | |
アパート シャーメゾン フェアリーステージ(2LDK/3階) | |||||||
![]() | 12.1万円 8,000円 | なし 24.2万円 | 2LDK 64.75m2 | 築1年 | JR長崎本線 長与駅 徒歩48分 JR長崎本線 高田駅(長崎) 徒歩49分 長崎県西彼杵郡時津町西時津郷 | 詳細を見る | |








