賃貸アパート
パインハイツの賃貸物件情報(1DK/2階)
| 家賃 | 管理費等 | 敷金 | 礼金 | 間取り | 専有面積 |
|---|---|---|---|---|---|
| 7.4万円 | なし | 7.4万円 | なし | 1DK | 26.5m2 |
入居決定でお祝い金最大100,000円
- 保証金
- -
- 償却・敷引
- -
- 築年数
- 築41年
- 所在階
- 2階
- 向き
- -
Point
他社様が掲載されている物件もまとめてご案内可能です!急ぎの引越しも圧倒的な情報量をもとに最短ルートでお探しします!【豪徳寺・三軒茶屋・中目黒・下高井戸の4店舗で営業中】信頼と安心の地域密着店♪
提供:(株)プラン・ドゥ・シー渋谷店(SUUMO経由)

詳細情報 パインハイツ
物件紹介
パインハイツは東急田園都市線駒沢大学駅から徒歩7分にあり、駅近で通勤通学に便利なアパートです。
このお部屋は2階以上に位置しているので、通行人や周囲の住人からの視線が気になりにくく、防犯面でも安心です。
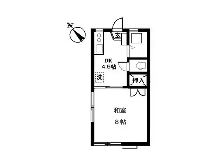
人気の南向き・フローリングのお部屋。角部屋でもあるため、周囲の居住者の生活音も気になりにくい場所です。キッチンはシステムキッチン仕様になっていますので、お料理好きの方にもぴったり。また、バス・トイレは別で、のんびりお風呂タイムも楽しめるでしょう。
通信設備面では、インターネット接続が可能です。また、BSアンテナ・CSアンテナがありCATVにも対応しているので、おうち時間も充実するでしょう(別途工事、契約料が必要な場合あり)。
このお部屋は2階以上に位置しているので、通行人や周囲の住人からの視線が気になりにくく、防犯面でも安心です。
人気の南向き・フローリングのお部屋。角部屋でもあるため、周囲の居住者の生活音も気になりにくい場所です。キッチンはシステムキッチン仕様になっていますので、お料理好きの方にもぴったり。また、バス・トイレは別で、のんびりお風呂タイムも楽しめるでしょう。
通信設備面では、インターネット接続が可能です。また、BSアンテナ・CSアンテナがありCATVにも対応しているので、おうち時間も充実するでしょう(別途工事、契約料が必要な場合あり)。
お金・契約の情報
※「-」と表示されているものは、実際は料金が発生するものもございます。詳細はお問い合わせください。
| 家賃 | 7.4万円 | 管理費・共益費 | なし |
|---|---|---|---|
| 敷金 | 7.4万円 | 礼金 | なし |
| 入居決定でお祝い金最大100,000円 | |||
| 保証金 | - | 償却・敷引 | - |
| 住宅保険料 | - | 更新料 | - |
| 保証会社利用 | 必須 | 保証会社名 | - |
| 保証会社費用 | - | 保証会社備考 | 保証会社利用必 初回:総賃料の50% 月額:総賃料の1% |
| 契約形態 | - | 契約期間 | - |
| 入居・引渡期間 | 即時 | 現況 | - |
| 契約備考 | ▲▽初期費用に関して▽▲クレジットカード払いも可能です!初期費用等ご不安な事はお気軽にご相談ください。賃貸、売買、賃貸管理はファニーホームへお任せください!★リモート内見承ります★退去時、ルームクリーニング代借主負担有。 更新料 新賃料1.00ヶ月分 24時間サポート費用 月額990円 1DK 普通借家2年 損保【要】 バストイレ別、エアコン、ガスコンロ対応、クロゼット、室内洗濯置、シューズボックス、追焚機能浴室、角住戸、2口コンロ、CATV、即入居可、礼金不要、2面採光、最上階、ディンプルキー、都市ガス、初期費用カード決済可 | ||
部屋の情報
| 間取り | 1DK | 専有面積 | 26.5m2 |
|---|---|---|---|
| 所在階 / 向き | 2階 / - | バルコニー面積 | - |
| 水道 / ガス | - | ||
| 設備 | バス・トイレ別、2階以上、追い焚き、エアコン、角部屋、2口コンロ、コンロ:ガス、CATV、洗濯機:室内 | ||
| 当社物件ID | 27648531 | ||
建物の情報
| 建物名 | パインハイツ | ||
|---|---|---|---|
| 所在地 | 東京都世田谷区野沢 | ||
| 交通 | 東急田園都市線 駒沢大学駅 徒歩7分 東急田園都市線 三軒茶屋駅 徒歩15分 東急世田谷線 若林駅(東京) 徒歩19分 | ||
| 階数 | 2階建 | 総戸数 | - |
| 築年月 | 1985年03月 / 築41年 | エレベーター | - |
| 駐車場 | なし | バイク置き場 | - |
| 駐輪場 | - | 管理人/管理会社 | - |
| 周辺環境 | その他 ファミリーマート 上馬交差点前店(コンビニ)まで86m その他 まいばすけっと野沢2丁目店(スーパー)まで67m その他 オオゼキ野沢店(スーパー)まで197m その他 キッチンオリジン 上馬店(飲食店)まで143m その他 トモズ 上馬店(ドラッグストア)まで152m その他 ナチュラルローソン 上馬三丁目店(コンビニ)まで185m | ||
| 建物種別 | アパート | 建物構造 | 軽量鉄骨造 |
この部屋の取扱い不動産会社
| 会社名 | (株)ファニーホーム三軒茶屋店(SUUMO経由) | ||
|---|---|---|---|
| 所在地 | 東京都世田谷区三軒茶屋1-36-6 丸文ビル103 | 交通 | - |
| 営業時間 | 10:00~18:30(時間外の対応ご相談下さい) | 定休日 | GW・お盆・年末年始 |
| 免許番号 | 東京都知事103922 | 取引態様 | 仲介 |
| 不動産会社管理番号 | 100475993853 | 当社管理番号 | 89 |
| 所属団体 | (公社)東京都宅地建物取引業協会会員 | ||
| 公正取引協議会 | (公社)首都圏不動産公正取引協議会加盟 | ||
| 取扱い物件情報 | 物件詳細へ | ||
※各種情報と現状に差異がある場合は、現状優先となります。問い合わせをすることで、より詳しい条件、情報を確認する事ができます。
提供:(株)ファニーホーム三軒茶屋店(SUUMO経由)
この物件が気になったら掲載期限まであと10日
パインハイツに条件(家賃・エリア)が近い物件一覧
| 写真 | 家賃 管理費等 | 敷金 礼金 | 間取り 専有面積 | 築年数 | 最寄り駅 所在地 | キープ | 詳細 |
|---|---|---|---|---|---|---|---|
マンション ARCOBALENO UMEYASHIKI(1K/5階) | |||||||
![]() | 10.5万円 1.5万円 | なし 10.5万円 | 1K 25.75m2 | 築2年 | 京急本線 梅屋敷駅(東京) 徒歩11分 京急本線 大森町駅 徒歩15分 京急本線 京急蒲田駅 徒歩19分 東京都大田区北糀谷 | 詳細を見る | |
マンション トルース蒲田(ワンルーム/3階) | |||||||
![]() | 5.7万円 2,000円 | 5.7万円 5.7万円 | ワンルーム 17.85m2 | 築35年 | 京浜東北・根岸線 蒲田駅 徒歩13分 東急池上線 蓮沼駅 徒歩15分 東京都大田区西蒲田1丁目 | 詳細を見る | |
マンション フラットJY(ワンルーム/2階) | |||||||
![]() | 6.2万円 2,000円 | 6.2万円 6.2万円 | ワンルーム 19.5m2 | 築33年 | 京急空港線 糀谷駅 徒歩4分 京急本線 京急蒲田駅 徒歩13分 JR京浜東北線 蒲田駅 徒歩20分 東京都大田区南蒲田 | 詳細を見る | |
マンション SEED JUST B-BASE Ⅱ(1LDK/3階) | |||||||
![]() | 10.1万円 1.5万円 | 10.1万円 10.1万円 | 1LDK 27.92m2 | 新築 | 東京モノレール羽田 昭和島駅 徒歩11分 京浜急行電鉄本線 梅屋敷駅(東京) 徒歩19分 東京都大田区大森南4丁目 | 詳細を見る | |
アパート ハイツO(1K/1階) | |||||||
![]() | 6.2万円 2,000円 | 6.2万円 なし | 1K 24.84m2 | 築42年 | 京急本線 梅屋敷駅(東京) 徒歩4分 京急本線 京急蒲田駅 徒歩11分 JR京浜東北線 蒲田駅 徒歩16分 東京都大田区蒲田 | 詳細を見る | |
アパート イリス羽田(1K/1階) | |||||||
![]() | 7.2万円 8,000円 | なし なし | 1K 19.04m2 | 築9年 | 京急空港線 穴守稲荷駅 徒歩5分 京急空港線 大鳥居駅 徒歩9分 京急空港線 天空橋駅 徒歩14分 東京都大田区羽田 | 詳細を見る | |






