賃貸マンション
グランドメゾン修学院1番館の賃貸物件情報(3LDK/4階)
| 家賃 | 管理費等 | 敷金 | 礼金 | 間取り | 専有面積 |
|---|---|---|---|---|---|
| 10.5万円 | 1.5万円 | 5.25万円 | 21万円 | 3LDK | 66.36m2 |
入居決定でお祝い金最大100,000円
Point
分譲マンション賃貸貸し 叡山修学院駅まですぐの分譲賃貸マンシ
提供:株式会社 京都ライフ 出町柳店(賃貸スモッカ経由)

詳細情報 グランドメゾン修学院1番館
物件紹介
グランドメゾン修学院1番館は叡山電鉄修学院駅から徒歩3分にあり、駅近で通勤通学に便利なマンションです。
このお部屋は2階以上に位置しているので、通行人や周囲の住人からの視線が気になりにくく、防犯面でも安心。建物のエントランスはオートロックがついており、インターホンにはTVモニタもついているため、相手の顔を確認してから来客対応することができます。
人気の南向きのお部屋。また、フローリングなのでお掃除もラクラク。キッチンはシステムキッチン仕様になっていますので、お料理好きの方にもぴったり。バス・トイレは別なので、のんびりお風呂タイムも楽しめるでしょう。また、雨の日でも浴室乾燥機を使えば、お洗濯も問題ありません。
通信設備面では、インターネット接続が可能です。また、BSアンテナもありますので、おうち時間も充実するでしょう(別途工事、契約料が必要な場合あり)。
建物にはエレベーターがついているので、重い荷物があっても安心。共用部には宅配ボックスが設定されているので、不在の時にも荷物を受け取ることができます。
このお部屋は2階以上に位置しているので、通行人や周囲の住人からの視線が気になりにくく、防犯面でも安心。建物のエントランスはオートロックがついており、インターホンにはTVモニタもついているため、相手の顔を確認してから来客対応することができます。
人気の南向きのお部屋。また、フローリングなのでお掃除もラクラク。キッチンはシステムキッチン仕様になっていますので、お料理好きの方にもぴったり。バス・トイレは別なので、のんびりお風呂タイムも楽しめるでしょう。また、雨の日でも浴室乾燥機を使えば、お洗濯も問題ありません。
通信設備面では、インターネット接続が可能です。また、BSアンテナもありますので、おうち時間も充実するでしょう(別途工事、契約料が必要な場合あり)。
建物にはエレベーターがついているので、重い荷物があっても安心。共用部には宅配ボックスが設定されているので、不在の時にも荷物を受け取ることができます。
お金・契約の情報
※「-」と表示されているものは、実際は料金が発生するものもございます。詳細はお問い合わせください。
| 家賃 | 10.5万円 | 管理費・共益費 | 1.5万円 |
|---|---|---|---|
| 敷金 | 5.25万円 | 礼金 | 21万円 |
| 入居決定でお祝い金最大100,000円 | |||
| 保証金 | - | 償却・敷引 | - |
| 住宅保険料 | - | 更新料 | - |
| 保証会社利用 | 必須 | 保証会社名 | その他 |
| 保証会社費用 | - | 保証会社備考 | 初回:月額賃料等の50%、月額:保証料として月額賃料等の1% |
| 契約形態 | - | 契約期間 | 2年 |
| 入居・引渡期間 | 2026年03月中旬 | 現況 | - |
| 入居可能条件 | 2人入居可 | ||
部屋の情報
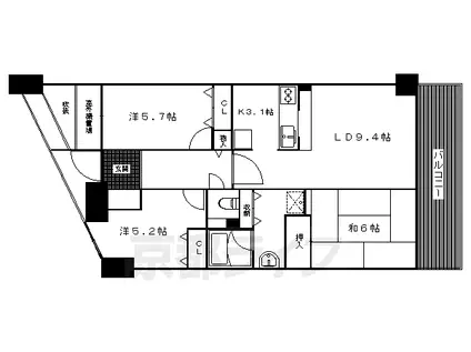
| 間取り | 3LDK | 専有面積 | 66.36m2 |
|---|---|---|---|
| 間取り詳細 | LDK(12.5帖)、洋室(5.7帖)、洋室(5.2帖)、和室(6帖) | ||
| 所在階 / 向き | 4階 / 南東 | バルコニー面積 | - |
| 水道 / ガス | ガス【都市】 | ||
| 設備 | バス・トイレ別、オートロック、宅配ボックス、光ファイバー対応、システムキッチン、エレベーター、フローリング、コンロ:ガス、BSアンテナ、シャワー、給湯、洗濯機:室内 | ||
| 当社物件ID | 1393715 | ||
建物の情報
| 建物名 | グランドメゾン修学院1番館 | ||
|---|---|---|---|
| 所在地 | 京都府京都市左京区修学院犬塚町 | ||
| 交通 | 叡山電鉄 修学院駅 徒歩3分 | ||
| 階数 | 6階建 | 総戸数 | 30戸 |
| 築年月 | 1998年10月 / 築28年 | エレベーター | あり |
| 駐車場 | 空有 1.7万円/月 | バイク置き場 | - |
| 駐輪場 | あり | 管理人/管理会社 | - |
| 周辺環境 | 小学校 修学院小学校 徒歩3分(186m) 病院 修学院病院 徒歩4分(244m) その他 八百民 徒歩4分(264m) その他 セブンイレブン京都修学院駅前店 徒歩4分(261m) | ||
| 建物種別 | マンション | 建物構造 | RC(鉄筋コンクリート) |
この部屋の取扱い不動産会社
| 会社名 | アパマンショップ北大路店 | ||
|---|---|---|---|
| 所在地 | 京都府京都市北区小山上総町 13 | 交通 | 京都市烏丸線北大路から徒歩0分 |
| 営業時間 | 09:30〜19:00 | 定休日 | - |
| 免許番号 | 京都府知事(5)11578 | 取引態様 | 仲介 |
| 不動産会社管理番号 | 99510866 | 当社管理番号 | 4 |
| 所属団体 | (公社)京都府宅地建物取引業協会会員 | ||
| 公正取引協議会 | (公社) 近畿地区不動産公正取引協議会加盟 | ||
| 取扱い物件情報 | 物件詳細へ | ||
※各種情報と現状に差異がある場合は、現状優先となります。問い合わせをすることで、より詳しい条件、情報を確認する事ができます。
提供:アパマンショップ北大路店
この物件が気になったら掲載期限まであと13日
グランドメゾン修学院1番館に条件(家賃・エリア)が近い物件一覧
| 写真 | 家賃 管理費等 | 敷金 礼金 | 間取り 専有面積 | 築年数 | 最寄り駅 所在地 | キープ | 詳細 |
|---|---|---|---|---|---|---|---|
アパート パークス長岡京(1LDK/3階) | |||||||
![]() | 8.1万円 5,000円 | 8.1万円 16.2万円 | 1LDK 34.78m2 | 築1年 | 阪急電鉄京都線 西山天王山駅 徒歩10分 東海道本線 長岡京駅 徒歩22分 京都府長岡京市調子1丁目 | 詳細を見る | |
マンション 京阪電気鉄道京阪線 樟葉駅 徒歩32分 築23年(3LDK/1階) | |||||||
![]() | 7.5万円 5,000円 | なし 15万円 | 3LDK 62.1m2 | 築23年 | 京阪電気鉄道京阪線 樟葉駅 徒歩32分 京阪電気鉄道京阪線 橋本駅(京都) 徒歩43分 京都府八幡市男山松里 | 詳細を見る | |
マンション 近鉄京都線 小倉駅(京都) 徒歩5分 築28年(2LDK/3階) | |||||||
![]() | 7.3万円 5,000円 | 7.3万円 なし | 2LDK 55.44m2 | 築28年 | 近鉄京都線 小倉駅(京都) 徒歩5分 奈良線 JR小倉駅 徒歩9分 京都府宇治市小倉町天王 | 詳細を見る | |
マンション 阪急電鉄京都線 西向日駅 徒歩5分 築37年(2LDK/1階) | |||||||
![]() | 6.9万円 4,000円 | なし なし | 2LDK 52.65m2 | 築37年 | 阪急電鉄京都線 西向日駅 徒歩5分 東海道本線 向日町駅 徒歩20分 京都府向日市鶏冠井町堀ノ内 | 詳細を見る | |
一戸建て 叡山電鉄 市原駅 徒歩7分 築36年(3LDK) | |||||||
![]() | 8.5万円 なし | なし 8.5万円 | 3LDK 85.44m2 | 築36年 | 叡山電鉄 市原駅 徒歩7分 叡山電鉄 二軒茶屋駅(京都) 徒歩15分 京都府京都市左京区静市市原町 | 詳細を見る | |
マンション ベラジオ雅び京都洛北ガーデン(1K/5階) | |||||||
![]() | 7.23万円 5,840円 | なし 7.814万円 | 1K 25.95m2 | 新築 | 叡山電鉄 修学院駅 徒歩6分 叡山電鉄 一乗寺駅 徒歩9分 京都府京都市左京区高野泉町 | 詳細を見る | |
アパート 阪急電鉄京都線 西山天王山駅 徒歩10分 築1年(1LDK/1階) | |||||||
![]() | 7.8万円 5,000円 | 7.8万円 15.6万円 | 1LDK 34.78m2 | 築1年 | 阪急電鉄京都線 西山天王山駅 徒歩10分 東海道本線 長岡京駅 徒歩22分 京都府長岡京市調子1丁目 | 詳細を見る | |
マンション 叡山電鉄 一乗寺駅 徒歩7分 築46年(2DK/2階) | |||||||
![]() | 8万円 5,000円 | なし 8万円 | 2DK 47.88m2 | 築46年 | 叡山電鉄 一乗寺駅 徒歩7分 叡山電鉄 茶山・京都芸術大学駅 徒歩8分 京都府京都市左京区一乗寺梅ノ木町 | 詳細を見る | |







