賃貸マンション
フルーレIIの賃貸物件情報(2LDK/3階)
| 家賃 | 管理費等 | 敷金 | 礼金 | 間取り | 専有面積 |
|---|---|---|---|---|---|
| 11.2万円 | 6,000円 | 11.2万円 | 11.2万円 | 2LDK | 48.04m2 |
入居決定でお祝い金最大100,000円
Point
オンラインにて申込みから契約までのお手続きも可能です。入居日が合わずにお悩みの方、契約金のお見積もりや室内写真のご要望などお気軽にお問い合わせください。初期費用の分割払いも承ります。
提供:エールーム 蒲田店(株)ライフアシスト(SUUMO経由)

詳細情報 フルーレII
物件紹介
フルーレIIは京急本線京急蒲田駅から徒歩9分にあり、駅近で通勤通学に便利なマンションです。
このお部屋は2階以上に位置しているので、通行人や周囲の住人からの視線が気になりにくく、防犯面でも安心。建物のエントランスはオートロックがついており、インターホンにはTVモニタもついているため、相手の顔を確認してから来客対応することができます。
人気の角部屋で周囲の居住者の生活音も気になりにくく、また、フローリングのお部屋なのでお掃除もラクラク。キッチンはシステムキッチン仕様になっていますので、お料理好きの方にもぴったり。また、バス・トイレは別で、のんびりお風呂タイムも楽しめるでしょう。
通信設備面では、インターネット接続が可能です。また、BSアンテナ・CSアンテナがありCATVにも対応しているので、おうち時間も充実するでしょう(別途工事、契約料が必要な場合あり)。
このお部屋は2階以上に位置しているので、通行人や周囲の住人からの視線が気になりにくく、防犯面でも安心。建物のエントランスはオートロックがついており、インターホンにはTVモニタもついているため、相手の顔を確認してから来客対応することができます。
人気の角部屋で周囲の居住者の生活音も気になりにくく、また、フローリングのお部屋なのでお掃除もラクラク。キッチンはシステムキッチン仕様になっていますので、お料理好きの方にもぴったり。また、バス・トイレは別で、のんびりお風呂タイムも楽しめるでしょう。
通信設備面では、インターネット接続が可能です。また、BSアンテナ・CSアンテナがありCATVにも対応しているので、おうち時間も充実するでしょう(別途工事、契約料が必要な場合あり)。
お金・契約の情報
※「-」と表示されているものは、実際は料金が発生するものもございます。詳細はお問い合わせください。
| 家賃 | 11.2万円 | 管理費・共益費 | 6,000円 |
|---|---|---|---|
| 敷金 | 11.2万円 | 礼金 | 11.2万円 |
| 入居決定でお祝い金最大100,000円 | |||
| 保証金 | - | 償却・敷引 | - |
| 住宅保険料 | - | 更新料 | - |
| 保証会社利用 | 必須 | 保証会社名 | - |
| 保証会社費用 | - | 保証会社備考 | 保証会社利用必 初回保証料;総賃料の60パーセント 月次保証料;800円 |
| 契約形態 | - | 契約期間 | - |
| 入居・引渡期間 | - | 現況 | - |
| 契約備考 | 初期費用の分割・クレジットカード決済可能です!お気軽にご相談下さい。普通賃貸借契約2年、退去時のクリーニング代は実費精算となります。 更新料 新賃料1.00ヶ月分 2LDK 二人入居可 普通借家2年 損保【2.15万円2年】 バストイレ別、バルコニー、エアコン、ガスコンロ対応、クロゼット、TVインターホン、オートロック、室内洗濯置、シューズボックス、システムキッチン、追焚機能浴室、温水洗浄便座、脱衣所、洗面所独立、洗面化粧台、最上階、3口以上コンロ、グリル付、カードキー、2沿線利用可、2駅利用可、3駅以上利用可、駅徒歩10分以内、都市ガス、洗面所にドア、初期費用カード決済可 入居日:'26年3月上旬 | ||
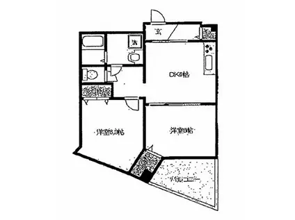
部屋の情報
| 間取り | 2LDK | 専有面積 | 48.04m2 |
|---|---|---|---|
| 所在階 / 向き | 3階 / - | バルコニー面積 | - |
| 水道 / ガス | - | ||
| 設備 | バス・トイレ別、2階以上、オートロック、テレビドアホン、追い焚き、システムキッチン、エアコン、温水洗浄便座、バルコニー、洗髪洗面化粧台、2口コンロ、コンロ:ガス、洗濯機:室内 | ||
| 当社物件ID | 8690134 | ||
建物の情報
| 建物名 | フルーレII | ||
|---|---|---|---|
| 所在地 | 東京都大田区仲六郷 | ||
| 交通 | 京急本線 京急蒲田駅 徒歩9分 京急本線 雑色駅 徒歩13分 JR京浜東北線 蒲田駅 徒歩14分 | ||
| 階数 | 3階建 | 総戸数 | - |
| 築年月 | 2013年03月 / 築13年 | エレベーター | - |
| 駐車場 | なし | バイク置き場 | - |
| 駐輪場 | - | 管理人/管理会社 | - |
| 周辺環境 | その他 京急蒲田(その他)まで787m その他 雑色(その他)まで874m その他 蒲田駅(その他)まで1226m その他 マルエツ かまた店(スーパー)まで744m その他 OK サガン店(スーパー)まで802m その他 セブンイレブン 京急ST蒲田東口駅前広場店(コンビニ)まで798m | ||
| 建物種別 | マンション | 建物構造 | 鉄骨造 |
この部屋の取扱い不動産会社
| 会社名 | (株)エールーム新橋店(SUUMO経由) | ||
|---|---|---|---|
| 所在地 | 東京都港区新橋1-16-8 第3西欧ビル6階 | 交通 | - |
| 営業時間 | 10:00~19:00 | 定休日 | 毎週水曜日 |
| 免許番号 | 国土交通大臣9710 | 取引態様 | 仲介 |
| 不動産会社管理番号 | 100483774941 | 当社管理番号 | 89 |
| 所属団体 | (公社)東京都宅地建物取引業協会会員 | ||
| 公正取引協議会 | (公社)首都圏不動産公正取引協議会加盟 | ||
| 取扱い物件情報 | 物件詳細へ | ||
※各種情報と現状に差異がある場合は、現状優先となります。問い合わせをすることで、より詳しい条件、情報を確認する事ができます。
提供:(株)エールーム新橋店(SUUMO経由)
この物件が気になったら掲載期限まであと11日
フルーレIIに条件(家賃・エリア)が近い物件一覧
| 写真 | 家賃 管理費等 | 敷金 礼金 | 間取り 専有面積 | 築年数 | 最寄り駅 所在地 | キープ | 詳細 |
|---|---|---|---|---|---|---|---|
アパート SEED SAVE PETIRASU Ⅲ(1LDK/3階) | |||||||
![]() | 11.5万円 1万円 | 23万円 11.5万円 | 1LDK 35.83m2 | 新築 | 東京モノレール羽田 昭和島駅 徒歩12分 京浜急行電鉄本線 大森町駅 徒歩18分 東京都大田区大森東5丁目 | 詳細を見る | |
マンション ARCOBALENO UMEYASHIKI(1K/4階) | |||||||
![]() | 10.5万円 1.5万円 | なし 10.5万円 | 1K 25.57m2 | 築2年 | 京急本線 梅屋敷駅(東京) 徒歩11分 京急本線 大森町駅 徒歩15分 京急本線 京急蒲田駅 徒歩19分 東京都大田区北糀谷 | 詳細を見る | |
マンション ハイツ髙沢(1LDK/2階) | |||||||
![]() | 13.5万円 5,000円 | 13.5万円 27万円 | 1LDK 32.89m2 | 築7年 | 東急池上線 旗の台駅 徒歩5分 東急大井町線 荏原町駅 徒歩6分 横須賀線 西大井駅 徒歩21分 東京都品川区旗の台4丁目 | 詳細を見る | |
マンション スタイリオ池上サウス(ワンルーム/2階) | |||||||
![]() | 12.3万円 1.2万円 | 12.3万円 なし | ワンルーム 25.75m2 | 築1年 | 東急池上線 池上駅 徒歩4分 東急多摩川線 矢口渡駅 徒歩14分 東急池上線 蒲田駅 徒歩22分 東京都大田区池上 | 詳細を見る | |
マンション 菊鮨ビル(1K/3階) | |||||||
![]() | 8.2万円 3,000円 | 8.2万円 8.2万円 | 1K 22m2 | 築42年 | 京浜東北・根岸線 蒲田駅 徒歩9分 京浜急行電鉄本線 京急蒲田駅 徒歩10分 東京都大田区蒲田1丁目 | 詳細を見る | |
マンション プラウドフラット蒲田Ⅱ(1K/9階) | |||||||
![]() | 11.1万円 7,000円 | 11.1万円 11.1万円 | 1K 20.84m2 | 築18年 | 京浜東北・根岸線 蒲田駅 徒歩7分 東京都大田区蒲田4丁目 | 詳細を見る | |
マンション スプランディッド大島(1DK/2階) | |||||||
![]() | 13.9万円 1万円 | なし なし | 1DK 30.3m2 | 築1年 | 東京都新宿線 大島駅(東京) 徒歩6分 東京都江東区大島8丁目 | 詳細を見る | |
マンション クレストコート門前仲町(1DK/10階) | |||||||
![]() | 15.5万円 1.2万円 | 15.5万円 なし | 1DK 26.14m2 | 築1年 | 都営大江戸線 門前仲町駅 徒歩7分 JR京葉線 越中島駅 徒歩11分 東京メトロ日比谷線 八丁堀駅(東京) 徒歩15分 東京都江東区永代 | 詳細を見る | |






/105x80-f1-q70-wp1)

