賃貸マンション
フェニックス新横濱参番館の賃貸物件情報(1K/9階)
| 家賃 | 管理費等 | 敷金 | 礼金 | 間取り | 専有面積 |
|---|---|---|---|---|---|
| 10.4万円 | 6,000円 | 10.4万円 | 10.4万円 | 1K | 30.04m2 |
入居決定でお祝い金最大100,000円
Point
■内見は現地待ち合わせでのご案内が可能です(要予約制)■契約金はクレジット決済が可能です
提供:(株)FINDERS(SUUMO経由)

詳細情報 フェニックス新横濱参番館
物件紹介
フェニックス新横濱参番館はJR横浜線新横浜駅から徒歩8分にあり、駅近で通勤通学に便利なマンションです。
このお部屋は2階以上に位置しているので、通行人や周囲の住人からの視線が気になりにくく、防犯面でも安心。建物のエントランスはオートロックがついており、インターホンにはTVモニタもついているため、相手の顔を確認してから来客対応することができます。
人気の南向き・フローリングのお部屋。角部屋でもあるため、周囲の居住者の生活音も気になりにくい場所です。キッチンはシステムキッチン仕様になっていますので、お料理好きの方にもぴったり。バス・トイレは別なので、のんびりお風呂タイムも楽しめるでしょう。また、雨の日でも浴室乾燥機を使えば、お洗濯も問題ありません。
通信設備面では、インターネット接続が可能です。また、CATVにも対応しているので、おうち時間も充実するでしょう(別途工事、契約料が必要な場合あり)。
建物にはエレベーターがついているので、重い荷物があっても安心。共用部には宅配ボックスが設定されているので、不在の時にも荷物を受け取ることができます。
このお部屋は2階以上に位置しているので、通行人や周囲の住人からの視線が気になりにくく、防犯面でも安心。建物のエントランスはオートロックがついており、インターホンにはTVモニタもついているため、相手の顔を確認してから来客対応することができます。
人気の南向き・フローリングのお部屋。角部屋でもあるため、周囲の居住者の生活音も気になりにくい場所です。キッチンはシステムキッチン仕様になっていますので、お料理好きの方にもぴったり。バス・トイレは別なので、のんびりお風呂タイムも楽しめるでしょう。また、雨の日でも浴室乾燥機を使えば、お洗濯も問題ありません。
通信設備面では、インターネット接続が可能です。また、CATVにも対応しているので、おうち時間も充実するでしょう(別途工事、契約料が必要な場合あり)。
建物にはエレベーターがついているので、重い荷物があっても安心。共用部には宅配ボックスが設定されているので、不在の時にも荷物を受け取ることができます。
お金・契約の情報
※「-」と表示されているものは、実際は料金が発生するものもございます。詳細はお問い合わせください。
| 家賃 | 10.4万円 | 管理費・共益費 | 6,000円 |
|---|---|---|---|
| 敷金 | 10.4万円 | 礼金 | 10.4万円 |
| 入居決定でお祝い金最大100,000円 | |||
| 保証金 | - | 償却・敷引 | - |
| 住宅保険料 | - | 更新料 | - |
| 保証会社利用 | 必須 | 保証会社名 | - |
| 保証会社費用 | - | 保証会社備考 | 保証会社利用必 トーシンライフ、オリコフォレントインシュア、全保連/保証料:初回=賃料等×50%、月額=賃料等×1% |
| 契約形態 | - | 契約期間 | - |
| 入居・引渡期間 | - | 現況 | - |
| 契約備考 | 合計2.75万円(内訳:鍵交換費用(税込)27500円) ■契約時:当月分+翌月分の賃料・管理費をお支払い頂きます ■解約時:ルームクリーニング費用及び借主負担分の原状回復費用をお支払い頂きます、家財保険+付帯サービス(税込)1835円/月 1K 二人入居可 普通借家2年 バストイレ別、バルコニー、エアコン、ガスコンロ対応、クロゼット、フローリング、TVインターホン、浴室乾燥機、オートロック、室内洗濯置、シューズボックス、システムキッチン、角住戸、温水洗浄便座、脱衣所、エレベーター、洗面所独立、洗面化粧台、2口コンロ、駐輪場、宅配ボックス、CATV、光ファイバー、外壁タイル張り、2面採光、防犯カメラ、照明付、分譲賃貸、敷金1ヶ月、2沿線利用可、ディンプルキー、ネット専用回線、ダブルロックキー、24時間換気システム、人感照明センサー、耐震構造、駅徒歩10分以内、24時間ゴミ出し可、クリーニングボックス、風除室、敷地内ごみ置き場、東南向き、都市ガス、マルチメディアコンセント、礼金1ヶ月 入居日:'26年2月下旬 | ||
部屋の情報
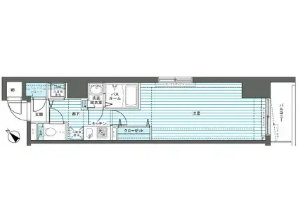
| 間取り | 1K | 専有面積 | 30.04m2 |
|---|---|---|---|
| 所在階 / 向き | 9階 / 南東 | バルコニー面積 | 3m2 |
| 水道 / ガス | - | ||
| 設備 | バス・トイレ別、2階以上、オートロック、テレビドアホン、宅配ボックス、浴室乾燥機、インターネット対応、システムキッチン、エアコン、エレベーター、温水洗浄便座、南向き、角部屋、バルコニー、フローリング、洗髪洗面化粧台、2口コンロ、コンロ:ガス、CATV、洗濯機:室内 | ||
| 当社物件ID | 328532 | ||
建物の情報
| 建物名 | フェニックス新横濱参番館 | ||
|---|---|---|---|
| 所在地 | 神奈川県横浜市港北区新横浜 | ||
| 交通 | JR横浜線 新横浜駅 徒歩8分 ブルーライン 新横浜駅 徒歩8分 | ||
| 階数 | 11階建 | 総戸数 | 93戸 |
| 築年月 | 2008年11月 / 築18年 | エレベーター | あり |
| 駐車場 | なし | バイク置き場 | - |
| 駐輪場 | あり | 管理人/管理会社 | - |
| 建物種別 | マンション | 建物構造 | RC(鉄筋コンクリート) |
この部屋の取扱い不動産会社
| 会社名 | (株)FINDERS(SUUMO経由) | ||
|---|---|---|---|
| 所在地 | 東京都新宿区西新宿1-4-11 全研プラザSPACES新宿 | 交通 | - |
| 営業時間 | 10:00~18:00 | 定休日 | 日曜日 |
| 免許番号 | 東京都知事105698 | 取引態様 | 仲介 |
| 不動産会社管理番号 | 100481975918 | 当社管理番号 | 89 |
| 所属団体 | (公社)全日本不動産協会東京都本部会員 | ||
| 公正取引協議会 | (公社)首都圏不動産公正取引協議会加盟 | ||
| 取扱い物件情報 | 物件詳細へ | ||
※各種情報と現状に差異がある場合は、現状優先となります。問い合わせをすることで、より詳しい条件、情報を確認する事ができます。
提供:(株)FINDERS(SUUMO経由)
この物件が気になったら掲載期限まであと10日
フェニックス新横濱参番館に条件(家賃・エリア)が近い物件一覧
| 写真 | 家賃 管理費等 | 敷金 礼金 | 間取り 専有面積 | 築年数 | 最寄り駅 所在地 | キープ | 詳細 |
|---|---|---|---|---|---|---|---|
アパート MQUARTO湘南海岸公園Ⅰ(1K/2階) | |||||||
![]() | 8.8万円 1.1万円 | なし 8.8万円 | 1K 24.84m2 | 築4年 | 江ノ島電鉄 湘南海岸公園駅 徒歩3分 神奈川県藤沢市片瀬4丁目 | 詳細を見る | |
マンション ジェノヴィア中野島(ワンルーム/1階) | |||||||
![]() | 8.15万円 1万円 | なし なし | ワンルーム 26.05m2 | 築3年 | JR南武線 中野島駅 徒歩10分 小田急線 登戸駅 徒歩22分 小田急線 和泉多摩川駅 徒歩28分 神奈川県川崎市多摩区中野島 | 詳細を見る | |
アパート レオパレストガミヒル(1K/2階) | |||||||
![]() | 6.4万円 5,000円 | なし 6.4万円 | 1K 19.87m2 | 築18年 | 神奈川県藤沢市大鋸3丁目 | 詳細を見る | |
マンション グランデュールIII江ノ島(1LDK/4階) | |||||||
![]() | 11.7万円 8,000円 | なし 11.7万円 | 1LDK 40.62m2 | 築11年 | 江ノ島電鉄線 江ノ島駅 徒歩1分 小田急江ノ島線 片瀬江ノ島駅 徒歩8分 江ノ島電鉄線 湘南海岸公園駅 徒歩9分 神奈川県藤沢市片瀬海岸 | 詳細を見る | |
マンション ファーストシティ松嶋(1LDK/2階) | |||||||
![]() | 7.9万円 なし | 7.9万円 7.9万円 | 1LDK 55m2 | 築38年 | 小田急電鉄江ノ島線 六会日大前駅 徒歩10分 神奈川県藤沢市亀井野 | 詳細を見る | |
マンション ハーブハイム2(1K/2階) | |||||||
![]() | 7.1万円 なし | 7.1万円 7.1万円 | 1K 20.2m2 | 築30年 | 東急田園都市線 梶が谷駅 徒歩7分 東急田園都市線 宮崎台駅 徒歩15分 東急田園都市線 溝の口駅 徒歩20分 神奈川県川崎市高津区梶ケ谷 | 詳細を見る | |
アパート ジョーパレス鵠沼海岸(1K/1階) | |||||||
![]() | 6.4万円 5,000円 | なし なし | 1K 20.06m2 | 築1年 | 小田急電鉄江ノ島線 鵠沼海岸駅 徒歩9分 神奈川県藤沢市鵠沼海岸7丁目 | 詳細を見る | |








