賃貸マンション
ローレルスクエア登美ヶ丘第Ⅰ期1番館の賃貸物件情報(3LDK/4階)
| 家賃 | 管理費等 | 敷金 | 礼金 | 間取り | 専有面積 |
|---|---|---|---|---|---|
| 8万円 | 5,000円 | 12万円 | なし | 3LDK | 76.07m2 |
入居決定でお祝い金最大100,000円
- 保証金
- -
- 償却・敷引
- -
- 築年数
- 築29年
- 所在階
- 4階
- 向き
- 西
Point
まずはお問い合わせ!
不動産会社は街のプロ、あなたに合った物件がきっと見つかります。
提供:アパマンショップ奈良新大宮店

詳細情報 ローレルスクエア登美ヶ丘第Ⅰ期1番館
物件紹介
このお部屋は2階以上に位置しているので、通行人や周囲の住人からの視線が気になりにくく、防犯面でも安心。建物のエントランスはオートロックがついており、インターホンにはTVモニタもついているため、相手の顔を確認してから来客対応することができます。
人気の角部屋で周囲の居住者の生活音も気になりにくく、また、フローリングのお部屋なのでお掃除もラクラク。室内にはウォークインクローゼットがありますので、たくさんの荷物も効率的に収納ができます。キッチンはシステムキッチン仕様になっていますので、お料理好きの方にもぴったり。バス・トイレは別なので、のんびりお風呂タイムも楽しめるでしょう。また、雨の日でも浴室乾燥機を使えば、お洗濯も問題ありません。
通信設備面ではCATVに対応しているので、おうち時間も充実するでしょう(別途工事、契約料が必要な場合あり)。
床暖房があり、冬も足元から暖かく快適に過ごすことができます。建物にはエレベーターがついているので、重い荷物があっても安心。
人気の角部屋で周囲の居住者の生活音も気になりにくく、また、フローリングのお部屋なのでお掃除もラクラク。室内にはウォークインクローゼットがありますので、たくさんの荷物も効率的に収納ができます。キッチンはシステムキッチン仕様になっていますので、お料理好きの方にもぴったり。バス・トイレは別なので、のんびりお風呂タイムも楽しめるでしょう。また、雨の日でも浴室乾燥機を使えば、お洗濯も問題ありません。
通信設備面ではCATVに対応しているので、おうち時間も充実するでしょう(別途工事、契約料が必要な場合あり)。
床暖房があり、冬も足元から暖かく快適に過ごすことができます。建物にはエレベーターがついているので、重い荷物があっても安心。
お金・契約の情報
※「-」と表示されているものは、実際は料金が発生するものもございます。詳細はお問い合わせください。
| 家賃 | 8万円 | 管理費・共益費 | 5,000円 |
|---|---|---|---|
| 敷金 | 12万円 | 礼金 | なし |
| 入居決定でお祝い金最大100,000円 | |||
| 保証金 | - | 償却・敷引 | - |
| 住宅保険料 | 2.55万円(2年) | 更新料 | - |
| 保証会社利用 | 必須 | 保証会社名 | - |
| 保証会社費用 | - | 保証会社備考 | 保証会社 要:初回 賃料総額100%+月額 賃料総額2%(最低1,000円) |
| 契約形態 | 定期借家 | 契約期間 | 3年 |
| 入居・引渡期間 | 相談 | 現況 | - |
部屋の情報
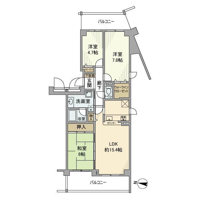
| 間取り | 3LDK | 専有面積 | 76.07m2 |
|---|---|---|---|
| 間取り詳細 | LDK(15.4帖)、洋室(4.7帖)、洋室(7.8帖)、和室(6帖) | ||
| 所在階 / 向き | 4階 / 西 | バルコニー面積 | 19m2 |
| 水道 / ガス | ガス【都市】 | ||
| 設備 | バス・トイレ別、オートロック、テレビドアホン、浴室乾燥機、ウォークインクローゼット、追い焚き、システムキッチン、エレベーター、温水洗浄便座、角部屋、バルコニー、フローリング、床暖房、コンロ:ガス、CATV、シャワー、洗濯機:室内 | ||
| 当社物件ID | 159649645 | ||
建物の情報
| 建物名 | ローレルスクエア登美ヶ丘第Ⅰ期1番館 | ||
|---|---|---|---|
| 所在地 | 奈良県奈良市中登美ヶ丘4丁目 | ||
| 交通 | 近鉄けいはんな線 学研奈良登美ケ丘駅 バス乗車時間:6分 中登美ヶ丘三丁目バス停で下車 徒歩3分 | ||
| 階数 | 6階建 | 総戸数 | - |
| 築年月 | 1997年02月 / 築29年 | エレベーター | あり |
| 駐車場 | - | バイク置き場 | - |
| 駐輪場 | - | 管理人/管理会社 | - |
| 建物種別 | マンション | 建物構造 | RC(鉄筋コンクリート) |
この部屋の取扱い不動産会社
| 会社名 | アパマンショップ学園前店 | ||
|---|---|---|---|
| 所在地 | 奈良県奈良市学園北1丁目 1番5号ミラ・トレーノ学園前BLD.1階 | 交通 | 近鉄難波・奈良線学園前から徒歩1分 |
| 営業時間 | 09:30〜18:00 | 定休日 | 水曜日 |
| 免許番号 | 奈良県知事(15)63 | 取引態様 | 仲介 |
| 不動産会社管理番号 | 103167891 | 当社管理番号 | 4 |
| 所属団体 | (公社)奈良県宅地建物取引業協会 | ||
| 公正取引協議会 | (公社) 近畿地区不動産公正取引協議会加盟 | ||
| 取扱い物件情報 | 物件詳細へ | ||
※各種情報と現状に差異がある場合は、現状優先となります。問い合わせをすることで、より詳しい条件、情報を確認する事ができます。
提供:アパマンショップ学園前店
この物件が気になったら掲載期限まであと11日
ローレルスクエア登美ヶ丘第Ⅰ期1番館に条件(家賃・エリア)が近い物件一覧
| 写真 | 家賃 管理費等 | 敷金 礼金 | 間取り 専有面積 | 築年数 | 最寄り駅 所在地 | キープ | 詳細 |
|---|---|---|---|---|---|---|---|
一戸建て 桜井線 三輪駅 徒歩20分 築43年(4DK) | |||||||
![]() | 5.5万円 なし | なし 11万円 | 4DK 74.02m2 | 築43年 | 桜井線 三輪駅 徒歩20分 桜井線 巻向駅 徒歩33分 近鉄大阪線 桜井駅(奈良) 徒歩36分 奈良県桜井市大字大泉 | 詳細を見る | |
アパート ローレルヒルズ富雄(2LDK/1階) | |||||||
![]() | 7.8万円 5,000円 | 2万円 11.3万円 | 2LDK 55.64m2 | 築8年 | 近鉄難波・奈良線 富雄駅 徒歩26分 近鉄難波・奈良線 東生駒駅 徒歩60分 奈良県奈良市二名3丁目 | 詳細を見る | |
アパート フォンテーヌ N-(1LDK/2階) | |||||||
![]() | 5.9万円 4,600円 | なし 5.9万円 | 1LDK 42.28m2 | 築9年 | 近鉄天理線 天理駅 徒歩13分 桜井線 天理駅 徒歩14分 桜井線 櫟本駅 徒歩28分 奈良県天理市別所町 | 詳細を見る | |
アパート クレアール郡山(1K/1階) | |||||||
![]() | 6.1万円 なし | なし 3.3万円 | 1K 26.96m2 | 築4年 | 近鉄橿原線 近鉄郡山駅 徒歩4分 関西本線 郡山駅(奈良) 徒歩14分 近鉄橿原線 九条駅(奈良) 徒歩26分 奈良県大和郡山市東岡町 | 詳細を見る | |
アパート ソレイユビセレクト法蓮町(1LDK/3階) | |||||||
![]() | 7.7万円 7,000円 | 15万円 15万円 | 1LDK 34.17m2 | 築1年 | 近鉄難波・奈良線 近鉄奈良駅 徒歩17分 近鉄難波・奈良線 新大宮駅 徒歩20分 関西本線 奈良駅 徒歩20分 奈良県奈良市法蓮町 | 詳細を見る | |
アパート クレアール堺町(1K/2階) | |||||||
![]() | 5.7万円 5,000円 | なし なし | 1K 25.79m2 | 築2年 | 近鉄橿原線 近鉄郡山駅 徒歩9分 関西本線 郡山駅(奈良) 徒歩11分 近鉄橿原線 九条駅(奈良) 徒歩15分 奈良県大和郡山市堺町 | 詳細を見る | |
アパート ジーメゾンあやめ池エルシアス(1LDK/1階) | |||||||
![]() | 6.9万円 5,000円 | なし なし | 1LDK 35.66m2 | 新築 | 近鉄奈良線 菖蒲池駅 徒歩8分 近鉄奈良線 学園前駅(奈良) 徒歩18分 近鉄奈良線 大和西大寺駅 徒歩27分 奈良県奈良市あやめ池南 | 詳細を見る | |
アパート 近鉄難波・奈良線 新大宮駅 徒歩18分 築1年(3LDK/3階) | |||||||
![]() | 12.06万円 6,000円 | なし なし | 3LDK 73.87m2 | 築1年 | 近鉄難波・奈良線 新大宮駅 徒歩18分 関西本線 奈良駅 徒歩18分 近鉄難波・奈良線 近鉄奈良駅 徒歩26分 奈良県奈良市恋の窪1丁目 | 詳細を見る | |









