賃貸アパート
エスポワール中村の賃貸物件情報(1LDK/3階)
| 家賃 | 管理費等 | 敷金 | 礼金 | 間取り | 専有面積 |
|---|---|---|---|---|---|
| 6.4万円 | 4,000円 | なし | 6.4万円 | 1LDK | 31.28m2 |
入居決定でお祝い金最大100,000円
- 保証金
- -
- 償却・敷引
- -
- 築年数
- 築8年
- 所在階
- 3階
- 向き
- 北
Point
エアコン付きのお部屋!夏の暑さも、冬の寒い日でもオールシーズン大活躍です◎
提供:スタイルエステート西支店(株)エムホームエステート(SUUMO経由)

詳細情報 エスポワール中村
物件紹介
エスポワール中村は地下鉄東山線中村日赤駅から徒歩5分にあり、駅近で通勤通学に便利なアパートです。
このお部屋は2階以上に位置しているので、通行人や周囲の住人からの視線が気になりにくく、防犯面でも安心。建物のエントランスはオートロックがついており、インターホンにはTVモニタもついているため、相手の顔を確認してから来客対応することができます。
おしゃれなデザイナーズ物件!人気の角部屋で周囲の居住者の生活音も気になりにくく、また、フローリングのお部屋なのでお掃除もラクラク。室内にはウォークインクローゼットがありますので、たくさんの荷物も効率的に収納ができます。キッチンはシステムキッチン仕様になっていますので、お料理好きの方にもぴったり。バス・トイレは別なので、のんびりお風呂タイムも楽しめるでしょう。また、雨の日でも浴室乾燥機を使えば、お洗濯も問題ありません。
通信設備面では、インターネットが無料で使えるので、月々の出費を抑えられるのも魅力です。また、BSアンテナがありCATVにも対応しているので、おうち時間も充実するでしょう(別途工事、BS・CATVの契約料等が必要な場合あり)。
共用部には宅配ボックスが設定されているので、不在の時にも荷物を受け取ることができます。
このお部屋は2階以上に位置しているので、通行人や周囲の住人からの視線が気になりにくく、防犯面でも安心。建物のエントランスはオートロックがついており、インターホンにはTVモニタもついているため、相手の顔を確認してから来客対応することができます。
おしゃれなデザイナーズ物件!人気の角部屋で周囲の居住者の生活音も気になりにくく、また、フローリングのお部屋なのでお掃除もラクラク。室内にはウォークインクローゼットがありますので、たくさんの荷物も効率的に収納ができます。キッチンはシステムキッチン仕様になっていますので、お料理好きの方にもぴったり。バス・トイレは別なので、のんびりお風呂タイムも楽しめるでしょう。また、雨の日でも浴室乾燥機を使えば、お洗濯も問題ありません。
通信設備面では、インターネットが無料で使えるので、月々の出費を抑えられるのも魅力です。また、BSアンテナがありCATVにも対応しているので、おうち時間も充実するでしょう(別途工事、BS・CATVの契約料等が必要な場合あり)。
共用部には宅配ボックスが設定されているので、不在の時にも荷物を受け取ることができます。
お金・契約の情報
※「-」と表示されているものは、実際は料金が発生するものもございます。詳細はお問い合わせください。
| 家賃 | 6.4万円 | 管理費・共益費 | 4,000円 |
|---|---|---|---|
| 敷金 | なし | 礼金 | 6.4万円 |
| 入居決定でお祝い金最大100,000円 | |||
| 保証金 | - | 償却・敷引 | - |
| 住宅保険料 | - | 更新料 | - |
| 保証会社利用 | 必須 | 保証会社名 | - |
| 保証会社費用 | - | 保証会社備考 | 保証会社利用必 シノケンコミュニケーションズ利用必須 初回保証料 30,000円 年間更新料10,000円(保証人有) 口座振替手数料 660円 |
| 契約形態 | - | 契約期間 | - |
| 入居・引渡期間 | - | 現況 | - |
| 契約備考 | 短期解約違約金有2ヵ月(1年未満)1ヵ月(1年以上2年未満) 合計2.2万円(内訳:鍵交換費22000円) 町会費(月額)300円更新料33000円インターネット開通サービス:16500円/初回、シノサポ24:17600円/初回退去時クリーニング代退去時46,200円 1LDK 二人入居可 損保【1.8万円2年】 バストイレ別、バルコニー、エアコン、ガスコンロ対応、フローリング、シャワー付洗面台、TVインターホン、浴室乾燥機、オートロック、室内洗濯置、シューズボックス、システムキッチン、追焚機能浴室、角住戸、温水洗浄便座、洗面所独立、2口コンロ、駐輪場、宅配ボックス、閑静な住宅地、最上階、全居室洋室、保証人不要、二人入居相談、24時間緊急通報システム、ネット使用料不要、床下収納、2駅利用可、3駅以上利用可、プロパンガス、IT重説対応物件、初期費用カード決済可、通風良好 入居日:'26年6月下旬 | ||
部屋の情報
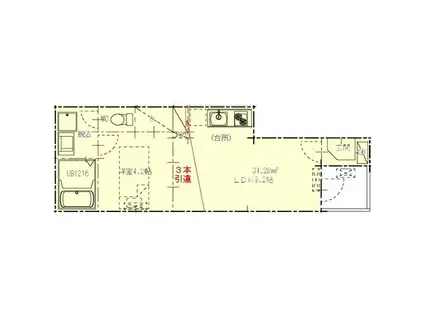
| 間取り | 1LDK | 専有面積 | 31.28m2 |
|---|---|---|---|
| 所在階 / 向き | 3階 / 北 | バルコニー面積 | - |
| 水道 / ガス | - | ||
| 設備 | バス・トイレ別、2階以上、オートロック、テレビドアホン、宅配ボックス、浴室乾燥機、追い焚き、インターネット対応、システムキッチン、エアコン、温水洗浄便座、角部屋、バルコニー、フローリング、床下収納、洗髪洗面化粧台、2口コンロ、コンロ:ガス、インターネット使用料無料、洗濯機:室内 | ||
| 当社物件ID | 29597304 | ||
建物の情報
| 建物名 | エスポワール中村 | ||
|---|---|---|---|
| 所在地 | 愛知県名古屋市中村区中村町 | ||
| 交通 | 地下鉄東山線 中村日赤駅 徒歩8分 地下鉄東山線 中村公園駅 徒歩9分 地下鉄東山線 本陣駅 徒歩15分 | ||
| 階数 | 3階建 | 総戸数 | 6戸 |
| 築年月 | 2019年03月 / 築8年 | エレベーター | - |
| 駐車場 | なし | バイク置き場 | - |
| 駐輪場 | あり | 管理人/管理会社 | - |
| 周辺環境 | その他 アオキスーパー 中村店(スーパー)まで600m その他 セブン-イレブン 名古屋中村町7丁目店(コンビニ)まで300m その他 同朋学園同朋大学(大学・短大)まで2000m その他 名古屋市立中村小学校(小学校)まで300m その他 名古屋市立日比津中学校(中学校)まで1800m その他 愛知県立中村高等学校(高校・高専)まで1000m | ||
| 建物種別 | アパート | 建物構造 | 木造 |
この部屋の取扱い不動産会社
| 会社名 | ルームセレクト八田店(株)洞口(SUUMO経由) | ||
|---|---|---|---|
| 所在地 | 愛知県名古屋市中村区並木2-120 イースクエア並木1階 | 交通 | - |
| 営業時間 | 9時30分から18時30分 | 定休日 | 水曜日 (繁忙期を除く) |
| 免許番号 | 国土交通大臣7901 | 取引態様 | 仲介 |
| 不動産会社管理番号 | 100503023419 | 当社管理番号 | 89 |
| 取扱い物件情報 | 物件詳細へ | ||
※各種情報と現状に差異がある場合は、現状優先となります。問い合わせをすることで、より詳しい条件、情報を確認する事ができます。
提供:ルームセレクト八田店(株)洞口(SUUMO経由)
この物件が気になったら掲載期限まであと11日
エスポワール中村に条件(家賃・エリア)が近い物件一覧
| 写真 | 家賃 管理費等 | 敷金 礼金 | 間取り 専有面積 | 築年数 | 最寄り駅 所在地 | キープ | 詳細 |
|---|---|---|---|---|---|---|---|
マンション SHOKEN RESIDENCE名古屋(1K/5階) | |||||||
![]() | 6.35万円 1万円 | なし なし | 1K 25.67m2 | 築1年 | 名古屋市桜通線 太閤通駅 徒歩8分 近鉄名古屋線 黄金駅(愛知) 徒歩10分 愛知県名古屋市中村区黄金通3丁目 | 詳細を見る | |
マンション S-RESIDENCE名駅北ALESIA(1K/3階) | |||||||
![]() | 7.25万円 1万円 | なし なし | 1K 22.58m2 | 築1年 | 名古屋市東山線 名古屋駅 徒歩7分 名古屋市東山線 亀島駅 徒歩8分 名古屋市桜通線 太閤通駅 徒歩12分 愛知県名古屋市中村区則武1丁目 | 詳細を見る | |
マンション エステムコート名古屋TWIN イースト(1DK/9階) | |||||||
![]() | 6.5万円 5,230円 | なし なし | 1DK 25.2m2 | 築2年 | 名古屋市東山線 中村日赤駅 徒歩6分 名古屋市東山線 本陣駅 徒歩10分 名古屋市桜通線 太閤通駅 徒歩15分 愛知県名古屋市中村区日吉町 | 詳細を見る | |
アパート パウコーポ栄生(ワンルーム/1階) | |||||||
![]() | 4.95万円 4,000円 | なし なし | ワンルーム 21.66m2 | 築16年 | 名鉄名古屋本線 栄生駅 徒歩7分 名古屋市東山線 亀島駅 徒歩13分 名鉄名古屋本線 東枇杷島駅 徒歩13分 愛知県名古屋市中村区栄生町 | 詳細を見る | |
マンション CIELUJE中村日赤(1LDK/1階) | |||||||
![]() | 6.6万円 9,000円 | なし なし | 1LDK 29.69m2 | 築6年 | 名古屋市東山線 中村日赤駅 徒歩5分 名古屋市東山線 本陣駅 徒歩10分 名古屋市桜通線 太閤通駅 徒歩14分 愛知県名古屋市中村区寿町 | 詳細を見る | |
マンション エステムコート名古屋グランツ(1DK/13階) | |||||||
![]() | 7.1万円 7,170円 | なし なし | 1DK 27.21m2 | 築3年 | 名古屋市東山線 中村公園駅 徒歩4分 名古屋市東山線 中村日赤駅 徒歩8分 名古屋市東山線 岩塚駅 徒歩18分 愛知県名古屋市中村区中村町大島 | 詳細を見る | |
マンション ディアレイシャス名古屋中村公園Ⅱ(1K/9階) | |||||||
![]() | 6.45万円 8,000円 | なし なし | 1K 24.28m2 | 築1年 | 名古屋市東山線 中村公園駅 徒歩3分 名古屋市東山線 中村日赤駅 徒歩9分 愛知県名古屋市中村区鳥居通5丁目 | 詳細を見る | |
アパート CRESTA(1K/2階) | |||||||
![]() | 5.45万円 4,000円 | なし なし | 1K 20.47m2 | 築12年 | 名古屋市桜通線 太閤通駅 徒歩6分 名古屋市東山線 中村日赤駅 徒歩13分 名古屋市東山線 本陣駅 徒歩15分 愛知県名古屋市中村区若宮町3丁目 | 詳細を見る | |




