賃貸アパート
コーポ長島の賃貸物件情報(1K/1階)
| 家賃 | 管理費等 | 敷金 | 礼金 | 間取り | 専有面積 |
|---|---|---|---|---|---|
| 3.3万円 | 3,000円 | なし | なし | 1K | 21.76m2 |
入居決定でお祝い金最大100,000円
Point
24時間サポート物件。ゆったりとしたキッチンで、バストイレ別。大学バス停近、コンビニ近で便利です。
提供:(株)国際学生協会(SUUMO経由)

詳細情報 コーポ長島
物件紹介
コーポ長島は東武東上線高坂駅から徒歩9分にあり、駅近で通勤通学に便利なアパートです。
このお部屋のインターホンにはTVモニタがついているため、相手の顔を確認してから来客対応することができます。
バス・トイレ別の仕様で、のんびりお風呂タイムも楽しめます。
通信設備面ではBSアンテナ・CSアンテナがありますので、おうち時間も充実するでしょう(別途工事、契約料が必要な場合あり)。
このお部屋のインターホンにはTVモニタがついているため、相手の顔を確認してから来客対応することができます。
バス・トイレ別の仕様で、のんびりお風呂タイムも楽しめます。
通信設備面ではBSアンテナ・CSアンテナがありますので、おうち時間も充実するでしょう(別途工事、契約料が必要な場合あり)。
お金・契約の情報
※「-」と表示されているものは、実際は料金が発生するものもございます。詳細はお問い合わせください。
| 家賃 | 3.3万円 | 管理費・共益費 | 3,000円 |
|---|---|---|---|
| 敷金 | なし | 礼金 | なし |
| 入居決定でお祝い金最大100,000円 | |||
| 保証金 | - | 償却・敷引 | - |
| 住宅保険料 | - | 更新料 | - |
| 契約形態 | - | 契約期間 | - |
| 入居・引渡期間 | 即時 | 現況 | - |
| 契約備考 | 巡回管理 預り金33000円(退去時ルームクリーニング費用) 1K 学生限定 損保【1.8万円2年】 バストイレ別、エアコン、ガスコンロ対応、TVインターホン、室内洗濯置、温水洗浄便座、駐輪場、押入、礼金不要、閑静な住宅地、BS・CS、敷金不要、24時間緊急通報システム、駅まで平坦、キッチンに窓、天袋、駅徒歩10分以内、敷地内ごみ置き場、当社管理物件、敷金・礼金不要、全室照明付 | ||
部屋の情報
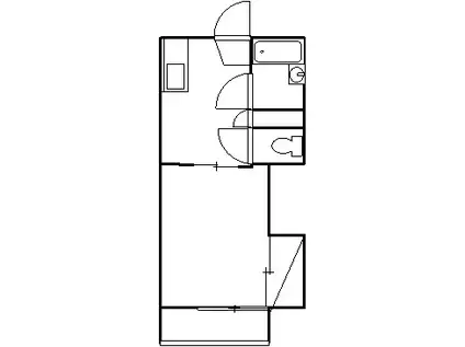
| 間取り | 1K | 専有面積 | 21.76m2 |
|---|---|---|---|
| 所在階 / 向き | 1階 / 西 | バルコニー面積 | - |
| 水道 / ガス | - | ||
| 設備 | バス・トイレ別、テレビドアホン、エアコン、温水洗浄便座、コンロ:ガス、CSアンテナ、BSアンテナ、洗濯機:室内 | ||
| 当社物件ID | 159531847 | ||
建物の情報
| 建物名 | コーポ長島 | ||
|---|---|---|---|
| 所在地 | 埼玉県東松山市元宿 | ||
| 交通 | 東武東上線 高坂駅 徒歩9分 東武東上線 東松山駅 徒歩57分 東武東上線 北坂戸駅 徒歩58分 | ||
| 階数 | 2階建 | 総戸数 | 14戸 |
| 築年月 | 1992年03月 / 築34年 | エレベーター | - |
| 駐車場 | 空有 3000円 | バイク置き場 | - |
| 駐輪場 | あり | 管理人/管理会社 | - |
| 周辺環境 | その他 ほっともっと東松山高坂店(飲食店)まで285m その他 クリエイトエス・ディー東松山高坂店(ドラッグストア)まで838m その他 セブンイレブン高坂駅西口店(コンビニ)まで437m その他 マミープラス高坂店(スーパー)まで819m その他 東松山市立高坂図書館(図書館)まで414m その他 私立大東文化大学東松山キャンパス(大学・短大)まで2284m | ||
| 建物種別 | アパート | 建物構造 | 木造 |
この部屋の取扱い不動産会社
| 会社名 | (株)国際学生協会(SUUMO経由) | ||
|---|---|---|---|
| 所在地 | 埼玉県東松山市元宿1-13-6 | 交通 | - |
| 営業時間 | AM9:00~PM6:00 | 定休日 | 水曜(4月~11月は水日祝) |
| 免許番号 | 埼玉県知事10127 | 取引態様 | 貸主 |
| 不動産会社管理番号 | 100461373494 | 当社管理番号 | 89 |
| 所属団体 | (公社)埼玉県宅地建物取引業協会会員 | ||
| 公正取引協議会 | (公社)首都圏不動産公正取引協議会加盟 | ||
| 取扱い物件情報 | 物件詳細へ | ||
※各種情報と現状に差異がある場合は、現状優先となります。問い合わせをすることで、より詳しい条件、情報を確認する事ができます。
提供:(株)国際学生協会(SUUMO経由)
この物件が気になったら掲載期限まであと9日
コーポ長島に条件(家賃・エリア)が近い物件一覧
| 写真 | 家賃 管理費等 | 敷金 礼金 | 間取り 専有面積 | 築年数 | 最寄り駅 所在地 | キープ | 詳細 |
|---|---|---|---|---|---|---|---|
アパート さとう薬師15(1K/2階) | |||||||
![]() | 3.7万円 2,000円 | なし なし | 1K 26m2 | 築33年 | 東武東上線 北坂戸駅 徒歩5分 東武東上線 坂戸駅(埼玉) 徒歩22分 東武東上線 若葉駅 徒歩38分 埼玉県坂戸市薬師町 | 詳細を見る | |
マンション 銀座ハイツ(2K/2階) | |||||||
![]() | 3.9万円 3,000円 | なし なし | 2K 36.86m2 | 築52年 | JR高崎線 熊谷駅 徒歩7分 埼玉県熊谷市銀座 | 詳細を見る | |
マンション コーポアンビシャス(ワンルーム/3階) | |||||||
![]() | 3.5万円 1,000円 | 3.5万円 なし | ワンルーム 24.79m2 | 築40年 | 秩父鉄道本線 上熊谷駅 徒歩5分 高崎線 熊谷駅 徒歩16分 埼玉県熊谷市宮本町 | 詳細を見る | |
アパート レオパレスヒルズM・S・A(1K/1階) | |||||||
![]() | 3.7万円 5,000円 | なし なし | 1K 20.28m2 | 築26年 | 東武鉄道東上線 坂戸駅(埼玉) 徒歩3分 埼玉県坂戸市南町 | 詳細を見る | |
アパート フラットハンズ嵐山(ワンルーム/2階) | |||||||
![]() | 2.4万円 3,000円 | なし なし | ワンルーム 17.3m2 | 築35年 | 東武東上線 武蔵嵐山駅 徒歩13分 埼玉県比企郡嵐山町大字川島 | 詳細を見る | |
アパート レオパレス万平(1K/3階) | |||||||
![]() | 5.1万円 7,000円 | なし 5.1万円 | 1K 20.81m2 | 築16年 | JR高崎線 熊谷駅 徒歩5分 秩父鉄道 上熊谷駅 徒歩17分 埼玉県熊谷市万平町 | 詳細を見る | |
アパート グリーンパーク A棟(2DK/1階) | |||||||
![]() | 4万円 3,000円 | なし なし | 2DK 39.74m2 | 築35年 | 東武東上線 東松山駅 徒歩16分 埼玉県東松山市松葉町 | 詳細を見る | |
アパート ハピネス(ワンルーム/1階) | |||||||
![]() | 5.1万円 5,000円 | なし なし | ワンルーム 26.5m2 | 築10年 | 東武東上線 坂戸駅(埼玉) 徒歩15分 東武東上線 北坂戸駅 徒歩20分 東武東上線 若葉駅 徒歩25分 埼玉県坂戸市清水町 | 詳細を見る | |









