賃貸マンション
ラ・コート・ドールIの賃貸物件情報(1LDK/2階)
| 家賃 | 管理費等 | 敷金 | 礼金 | 間取り | 専有面積 |
|---|---|---|---|---|---|
| 4.8万円 | 2,000円 | 4.8万円 | なし | 1LDK | 44.63m2 |
入居決定でお祝い金最大100,000円
Point
☆☆☆ペット飼育OK☆☆☆ 静かな環境・買い物など生活利便性◎ ベランダが広く見晴らし良い物件です♪インターネットマンションタイプ対応。スーパーバロまで徒歩約10分・クスリのアオキまで徒歩約3分!
提供:(株)コスモシティ(SUUMO経由)

詳細情報 ラ・コート・ドールI
物件紹介
ラ・コート・ドールIは北陸鉄道石川線馬替駅から徒歩3分にあり、駅近で通勤通学に便利なマンションです。
このお部屋は2階以上に位置しているので、通行人や周囲の住人からの視線が気になりにくく、防犯面でも安心。インターホンにはTVモニタもついているため、相手の顔を確認してから来客対応することができます。
フローリングのお部屋なのでお掃除もラクラク。バス・トイレ別の仕様で、のんびりお風呂タイムも楽しめます。また、浴室乾燥機を使えば、雨の日でもお洗濯は問題ありません。
通信設備面では、インターネット接続が可能です(別途工事、契約料が必要な場合あり)。
ペット飼育の相談ができますので、あなたの大切な家族の一員も快適に暮らせるか、ぜひ確認してみてください。
このお部屋は2階以上に位置しているので、通行人や周囲の住人からの視線が気になりにくく、防犯面でも安心。インターホンにはTVモニタもついているため、相手の顔を確認してから来客対応することができます。
フローリングのお部屋なのでお掃除もラクラク。バス・トイレ別の仕様で、のんびりお風呂タイムも楽しめます。また、浴室乾燥機を使えば、雨の日でもお洗濯は問題ありません。
通信設備面では、インターネット接続が可能です(別途工事、契約料が必要な場合あり)。
ペット飼育の相談ができますので、あなたの大切な家族の一員も快適に暮らせるか、ぜひ確認してみてください。
お金・契約の情報
※「-」と表示されているものは、実際は料金が発生するものもございます。詳細はお問い合わせください。
| 家賃 | 4.8万円 | 管理費・共益費 | 2,000円 |
|---|---|---|---|
| 敷金 | 4.8万円 | 礼金 | なし |
| 入居決定でお祝い金最大100,000円 | |||
| 保証金 | - | 償却・敷引 | - |
| 住宅保険料 | - | 更新料 | - |
| 保証会社利用 | 必須 | 保証会社名 | 日本セーフティー |
| 保証会社費用 | - | 保証会社備考 | 日本セーフティー利用必 初回保証料:総賃料の50%、月額保証料:900円、口座振替手数料:400円(税別) |
| 契約形態 | - | 契約期間 | - |
| 入居・引渡期間 | 相談 | 現況 | - |
| 入居可能条件 | ペット相談 | ||
| 契約備考 | バロー金沢高尾店まで740m/クスリのアオキ扇が丘店まで480m/巡回管理/ペット飼育OK(ペットと同居される場合は、礼金として賃料の1か月分がかかります) 町費500円駐車場(並列)3300円(縦列)5500円 1LDK 単身者可/二人入居可/子供可/ペット相談 損保【1.6万円2年】 バストイレ別、バルコニー、エアコン、ガスコンロ対応、フローリング、TVインターホン、浴室乾燥機、室内洗濯置、陽当り良好、シューズボックス、温水洗浄便座、脱衣所、洗面所独立、洗面化粧台、駐輪場、押入、光ファイバー、礼金不要、閑静な住宅地、独立型キッチン、ペット相談、全居室収納、全居室洋室、駐車2台可、敷金1ヶ月、二人入居相談、全居室フローリング、駅まで平坦、眺望良好、保証金不要、平坦地、リバーサイド、外装リフォーム済、前面棟無、駅徒歩5分以内、敷地内ごみ置き場、平面駐車場、当社管理物件、LDK12畳以上、全居室6畳以上、プロパンガス、タンクレストイレ、洗面所にドア、保証会社利用可、初期費用30万円以下、高齢者歓迎、LGBTフレンドリー、全室照明付、通風良好 | ||
部屋の情報
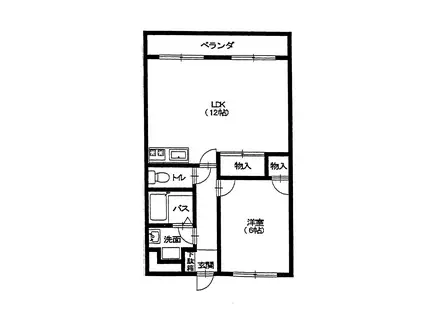
| 間取り | 1LDK | 専有面積 | 44.63m2 |
|---|---|---|---|
| 所在階 / 向き | 2階 / 東 | バルコニー面積 | - |
| 水道 / ガス | - | ||
| 設備 | バス・トイレ別、2階以上、テレビドアホン、浴室乾燥機、インターネット対応、エアコン、温水洗浄便座、バルコニー、フローリング、洗髪洗面化粧台、コンロ:ガス、洗濯機:室内 | ||
| 当社物件ID | 7553223 | ||
建物の情報
| 建物名 | ラ・コート・ドールI | ||
|---|---|---|---|
| 所在地 | 石川県金沢市馬替 | ||
| 交通 | 北陸鉄道石川線 馬替駅 徒歩3分 | ||
| 階数 | 3階建 | 総戸数 | - |
| 築年月 | 1994年03月 / 築32年 | エレベーター | - |
| 駐車場 | 空有 3300円 | バイク置き場 | - |
| 駐輪場 | あり | 管理人/管理会社 | - |
| 周辺環境 | その他 ファッションセンターしまむら三納店(ショッピングセンター)まで1353m その他 バロー金沢高尾店(スーパー)まで746m その他 サンクス野々市扇が丘店(コンビニ)まで580m その他 クスリのアオキ扇が丘店(ドラッグストア)まで492m その他 北國銀行高尾支店(銀行)まで717m | ||
| 建物種別 | マンション | 建物構造 | 鉄骨造 |
この部屋の取扱い不動産会社
| 会社名 | (株)コスモシティ(SUUMO経由) | ||
|---|---|---|---|
| 所在地 | 石川県金沢市高尾台4-172 | 交通 | - |
| 営業時間 | 8:30~17:30 | 定休日 | 水、日曜日 祝日 |
| 免許番号 | 石川県知事3394 | 取引態様 | 仲介 |
| 不動産会社管理番号 | 100330374551 | 当社管理番号 | 89 |
| 所属団体 | (公社)石川県宅地建物取引業協会会員 | ||
| 公正取引協議会 | 北陸不動産公正取引協議会加盟 | ||
| 取扱い物件情報 | 物件詳細へ | ||
※各種情報と現状に差異がある場合は、現状優先となります。問い合わせをすることで、より詳しい条件、情報を確認する事ができます。
提供:(株)コスモシティ(SUUMO経由)
この物件が気になったら掲載期限まであと-1日
ラ・コート・ドールIに条件(家賃・エリア)が近い物件一覧
| 写真 | 家賃 管理費等 | 敷金 礼金 | 間取り 専有面積 | 築年数 | 最寄り駅 所在地 | キープ | 詳細 |
|---|---|---|---|---|---|---|---|
マンション 石川県金沢市 築41年(1K/3階) | |||||||
![]() | 3.1万円 3,000円 | なし なし | 1K 26.28m2 | 築41年 | 石川県金沢市泉本町 | 詳細を見る | |
アパート ぷらんたんIII(2K/1階) | |||||||
![]() | 5.7万円 5,500円 | なし なし | 2K 41.26m2 | 築24年 | 石川県金沢市 | 詳細を見る | |
アパート STATIONII(1LDK/2階) | |||||||
![]() | 6.3万円 4,500円 | なし 6.3万円 | 1LDK 31.67m2 | 築1年 | IRいしかわ鉄道 松任駅 徒歩7分 IRいしかわ鉄道 野々市駅(IR) 徒歩42分 石川県白山市八ツ矢町 | 詳細を見る | |
マンション 高畠196(2LDK/1階) | |||||||
![]() | 5万円 なし | なし なし | 2LDK 43.74m2 | 築38年 | 北陸鉄道石川線 新西金沢駅 徒歩35分 IRいしかわ鉄道 西金沢駅 徒歩36分 北陸鉄道石川線 西泉駅 徒歩47分 石川県金沢市高畠 | 詳細を見る | |
アパート メゾネットマフィーム(1K/2階) | |||||||
![]() | 3.5万円 2,500円 | 3.5万円 なし | 1K 23.46m2 | 築30年 | 石川県金沢市若松町ツ | 詳細を見る | |
アパート フォルトゥーナ(1LDK/2階) | |||||||
![]() | 5.6万円 5,000円 | なし 3万円 | 1LDK 33.62m2 | 築20年 | IRいしかわ鉄道 金沢駅 徒歩74分 石川県金沢市 | 詳細を見る | |
アパート COCO DEC RASSO(1LDK/1階) | |||||||
![]() | 5.2万円 3,000円 | なし 5.2万円 | 1LDK 36.27m2 | 築10年 | 石川県金沢市旭町 | 詳細を見る | |
アパート MAISON DE H(1LDK/1階) | |||||||
![]() | 6.6万円 4,000円 | なし 6.6万円 | 1LDK 33.4m2 | 築1年 | 北陸鉄道石川線 野々市工大前駅 徒歩21分 北陸鉄道石川線 馬替駅 徒歩26分 北陸鉄道石川線 野々市駅(北陸) 徒歩28分 石川県金沢市三馬 | 詳細を見る | |









