賃貸マンション
SYFORME ITABASHI IIIの賃貸物件情報(1DK/8階)
| 家賃 | 管理費等 | 敷金 | 礼金 | 間取り | 専有面積 |
|---|---|---|---|---|---|
| 13.35万円 | 1万円 | なし | なし | 1DK | 25.86m2 |
入居決定でお祝い金最大100,000円
- 保証金
- -
- 償却・敷引
- -
- 築年数
- 築1年
- 所在階
- 8階
- 向き
- 北
Point
クロゼット・シューズボックスなど備え付け、独立洗面所・浴室乾燥機などが揃っているので、快適に過ごしやすくなっています。宅配ボックス、オートロック付き物件です。見た目もキレイで機能的なお部屋になります。
提供:(株)ハウスパートナー池袋駅西口店(SUUMO経由)

詳細情報 SYFORME ITABASHI III
物件紹介
SYFORME ITABASHI IIIは都営三田線新板橋駅から徒歩2分にあり、駅近で通勤通学に便利なマンションです。
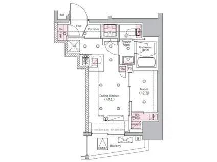
このお部屋は2階以上に位置しているので、通行人や周囲の住人からの視線が気になりにくく、防犯面でも安心。建物のエントランスはオートロックがついており、インターホンにはTVモニタもついているため、相手の顔を確認してから来客対応することができます。
人気の角部屋で周囲の居住者の生活音も気になりにくく、また、フローリングのお部屋なのでお掃除もラクラク。室内にはウォークインクローゼットがありますので、たくさんの荷物も効率的に収納ができます。キッチンはシステムキッチン仕様になっていますので、お料理好きの方にもぴったり。バス・トイレは別なので、のんびりお風呂タイムも楽しめるでしょう。また、雨の日でも浴室乾燥機を使えば、お洗濯も問題ありません。
通信設備面では、インターネットが無料で使えるので、月々の出費を抑えられるのも魅力です(別途工事等が必要な場合あり)。
建物にはエレベーターがついているので、重い荷物があっても安心。共用部には宅配ボックスが設定されているので、不在の時にも荷物を受け取ることができます。また、ペット飼育の相談ができますので、あなたの大切な家族の一員も快適に暮らせるか、ぜひ確認してみてください。
このお部屋は2階以上に位置しているので、通行人や周囲の住人からの視線が気になりにくく、防犯面でも安心。建物のエントランスはオートロックがついており、インターホンにはTVモニタもついているため、相手の顔を確認してから来客対応することができます。
人気の角部屋で周囲の居住者の生活音も気になりにくく、また、フローリングのお部屋なのでお掃除もラクラク。室内にはウォークインクローゼットがありますので、たくさんの荷物も効率的に収納ができます。キッチンはシステムキッチン仕様になっていますので、お料理好きの方にもぴったり。バス・トイレは別なので、のんびりお風呂タイムも楽しめるでしょう。また、雨の日でも浴室乾燥機を使えば、お洗濯も問題ありません。
通信設備面では、インターネットが無料で使えるので、月々の出費を抑えられるのも魅力です(別途工事等が必要な場合あり)。
建物にはエレベーターがついているので、重い荷物があっても安心。共用部には宅配ボックスが設定されているので、不在の時にも荷物を受け取ることができます。また、ペット飼育の相談ができますので、あなたの大切な家族の一員も快適に暮らせるか、ぜひ確認してみてください。
お金・契約の情報
※「-」と表示されているものは、実際は料金が発生するものもございます。詳細はお問い合わせください。
| 家賃 | 13.35万円 | 管理費・共益費 | 1万円 |
|---|---|---|---|
| 敷金 | なし | 礼金 | なし |
| 入居決定でお祝い金最大100,000円 | |||
| 保証金 | - | 償却・敷引 | - |
| 住宅保険料 | - | 更新料 | - |
| 保証会社利用 | 必須 | 保証会社名 | - |
| 保証会社費用 | - | 保証会社備考 | 保証会社利用必 初回40%、以降10 000円/年(総賃料15万円以上:14 000円/年) 外国籍の方:エポスGTNを利用。初回保証料60%、月額保証料2%、年間保証料無し |
| 契約形態 | - | 契約期間 | - |
| 入居・引渡期間 | 即時 | 現況 | - |
| 入居可能条件 | ペット相談 | ||
| 契約備考 | 更新料 新賃料1.00ヶ月分 室内清掃費用 52800円 1DK 二人入居可/ペット相談/事務所利用不可/ルームシェア不可 普通借家2年 損保【2万円2年】 バストイレ別、バルコニー、エアコン、ガスコンロ対応、クロゼット、フローリング、浴室乾燥機、オートロック、室内洗濯置、シューズボックス、システムキッチン、追焚機能浴室、角住戸、温水洗浄便座、エレベーター、洗面所独立、洗面化粧台、2口コンロ、駐輪場、宅配ボックス、対面式キッチン、防犯カメラ、ペット相談、全居室洋室、保証人不要、バイク置場、全居室フローリング、ネット使用料不要、24時間換気システム、敷地内ごみ置き場、都市ガス、敷金・礼金不要、保証会社利用可 敷金積み増し【ペット飼育の場合敷金13.35万円(総額)】 | ||
部屋の情報
| 間取り | 1DK | 専有面積 | 25.86m2 |
|---|---|---|---|
| 所在階 / 向き | 8階 / 北 | バルコニー面積 | 3m2 |
| 水道 / ガス | - | ||
| 設備 | バス・トイレ別、2階以上、オートロック、宅配ボックス、浴室乾燥機、追い焚き、インターネット対応、システムキッチン、エアコン、エレベーター、温水洗浄便座、角部屋、バルコニー、フローリング、洗髪洗面化粧台、2口コンロ、コンロ:ガス、インターネット使用料無料、洗濯機:室内 | ||
| 当社物件ID | 159547164 | ||
建物の情報
| 建物名 | SYFORME ITABASHI III | ||
|---|---|---|---|
| 所在地 | 東京都板橋区板橋 | ||
| 交通 | 都営三田線 新板橋駅 徒歩2分 JR埼京線 板橋駅 徒歩6分 東武東上線 下板橋駅 徒歩7分 | ||
| 階数 | 13階建 | 総戸数 | 37戸 |
| 築年月 | 2025年09月 / 築1年 | エレベーター | あり |
| 駐車場 | なし | バイク置き場 | あり |
| 駐輪場 | あり | 管理人/管理会社 | - |
| 周辺環境 | その他 ファミリーマート 新板橋店(コンビニ)まで53m その他 ライフ板橋店(スーパー)まで125m その他 ファミリーマート 新板橋駅前店(コンビニ)まで165m その他 まいばすけっと 新板橋駅南店(スーパー)まで253m その他 コープ板橋駅前店(スーパー)まで375m その他 どらっぐぱぱす板橋1丁目店(ドラッグストア)まで457m | ||
| 建物種別 | マンション | 建物構造 | RC(鉄筋コンクリート) |
この部屋の取扱い不動産会社
| 会社名 | (株)WANDY(SUUMO経由) | ||
|---|---|---|---|
| 所在地 | 東京都千代田区神田神保町1-4-6 クロサワビル7階 | 交通 | - |
| 営業時間 | 10時~18時 (担当へ直接TEL可) | 定休日 | 東京本社 土日祝 |
| 免許番号 | 国土交通大臣10492 | 取引態様 | 仲介 |
| 不動産会社管理番号 | 100487013536 | 当社管理番号 | 89 |
| 所属団体 | (公社)東京都宅地建物取引業協会会員 | ||
| 公正取引協議会 | (公社)首都圏不動産公正取引協議会加盟 | ||
| 取扱い物件情報 | 物件詳細へ | ||
※各種情報と現状に差異がある場合は、現状優先となります。問い合わせをすることで、より詳しい条件、情報を確認する事ができます。
提供:(株)WANDY(SUUMO経由)
この物件が気になったら掲載期限まであと10日
SYFORME ITABASHI IIIに条件(家賃・エリア)が近い物件一覧
| 写真 | 家賃 管理費等 | 敷金 礼金 | 間取り 専有面積 | 築年数 | 最寄り駅 所在地 | キープ | 詳細 |
|---|---|---|---|---|---|---|---|
マンション 仮小茂根3丁目マンション工事(2LDK/4階) | |||||||
![]() | 19.1万円 1万円 | 19.1万円 19.1万円 | 2LDK 60.53m2 | 新築 | 西武有楽町線 小竹向原駅 徒歩14分 東武東上線 ときわ台駅(東京) 徒歩15分 東武東上線 中板橋駅 徒歩22分 東京都板橋区小茂根 | 詳細を見る | |
マンション N-STAGE 本蓮沼(1K/6階) | |||||||
![]() | 13.4万円 1.2万円 | 13.4万円 なし | 1K 28.27m2 | 築9年 | 都営三田線 本蓮沼駅 徒歩3分 都営三田線 志村坂上駅 徒歩11分 都営三田線 板橋本町駅 徒歩15分 東京都板橋区大原町 | 詳細を見る | |
マンション CREATIF池袋(1K/3階) | |||||||
![]() | 13.9万円 1万円 | なし なし | 1K 26.56m2 | 築2年 | JR山手線 目白駅 徒歩9分 西武池袋線 椎名町駅 徒歩9分 JR山手線 池袋駅 徒歩12分 東京都豊島区目白 | 詳細を見る | |
マンション グランヴァン王子(1K/1階) | |||||||
![]() | 9.9万円 1.1万円 | なし 9.9万円 | 1K 25.08m2 | 築20年 | JR京浜東北線 王子駅 徒歩7分 東京メトロ南北線 西ケ原駅 徒歩13分 JR京浜東北線 上中里駅 徒歩14分 東京都北区堀船 | 詳細を見る | |
マンション エスティメゾン赤羽(2DK/11階) | |||||||
![]() | 20.8万円 1万円 | 20.8万円 20.8万円 | 2DK 50.8m2 | 築17年 | 東京メトロ南北線 赤羽岩淵駅 徒歩5分 JR京浜東北線 赤羽駅 徒歩7分 東京メトロ南北線 志茂駅 徒歩14分 東京都北区赤羽 | 詳細を見る | |
アパート カーサ・コリーナ(1K/2階) | |||||||
![]() | 12万円 9,000円 | なし 12万円 | 1K 29.3m2 | 築8年 | JR山手線 田端駅 徒歩7分 JR山手線 駒込駅 徒歩7分 JR高崎線 尾久駅 徒歩28分 東京都北区田端 | 詳細を見る | |
マンション ヴァンテ ミサ(1K/3階) | |||||||
![]() | 11.7万円 8,000円 | 11.7万円 なし | 1K 28.34m2 | 築18年 | 東武東上線 下赤塚駅 徒歩4分 東京メトロ有楽町線 地下鉄赤塚駅 徒歩4分 東武東上線 成増駅 徒歩20分 東京都板橋区赤塚 | 詳細を見る | |
マンション クレスト東池袋(1K/3階) | |||||||
![]() | 8.4万円 4,000円 | 8.4万円 8.4万円 | 1K 25.9m2 | 築26年 | 東京メトロ有楽町線 東池袋駅 徒歩11分 JR山手線 池袋駅 徒歩13分 東京メトロ丸ノ内線 新大塚駅 徒歩15分 東京都豊島区東池袋 | 詳細を見る | |








