賃貸マンション
京都市烏丸線 北大路駅 徒歩23分 4階建 築38年の賃貸物件情報(2LDK/4階)
| 家賃 | 管理費等 | 敷金 | 礼金 | 間取り | 専有面積 |
|---|---|---|---|---|---|
| 7.4万円 | 5,000円 | なし | なし | 2LDK | 57.51m2 |
入居決定でお祝い金最大100,000円
Point
大宮学区のファミリー物件 閑静な住宅街。スーパー目の前で買物ラクラク 大宮学区
提供:株式会社 京都ライフ 立命館大学前店(賃貸スモッカ経由)

詳細情報 京都市烏丸線 北大路駅 徒歩23分 4階建 築38年
物件紹介
京都市烏丸線北大路駅から徒歩23分にあるマンションです。
このお部屋は2階以上に位置しているので、通行人や周囲の住人からの視線が気になりにくく、防犯面でも安心です。
人気の角部屋で周囲の居住者の生活音も気になりにくく、また、フローリングのお部屋なのでお掃除もラクラク。バス・トイレ別の仕様で、のんびりお風呂タイムも楽しめます。
通信設備面では、インターネット接続が可能です。また、BSアンテナ・CSアンテナもありますので、おうち時間も充実するでしょう(別途工事、契約料が必要な場合あり)。
このお部屋は2階以上に位置しているので、通行人や周囲の住人からの視線が気になりにくく、防犯面でも安心です。
人気の角部屋で周囲の居住者の生活音も気になりにくく、また、フローリングのお部屋なのでお掃除もラクラク。バス・トイレ別の仕様で、のんびりお風呂タイムも楽しめます。
通信設備面では、インターネット接続が可能です。また、BSアンテナ・CSアンテナもありますので、おうち時間も充実するでしょう(別途工事、契約料が必要な場合あり)。
お金・契約の情報
※「-」と表示されているものは、実際は料金が発生するものもございます。詳細はお問い合わせください。
| 家賃 | 7.4万円 | 管理費・共益費 | 5,000円 |
|---|---|---|---|
| 敷金 | なし | 礼金 | なし |
| 入居決定でお祝い金最大100,000円 | |||
| 保証金 | - | 償却・敷引 | - |
| 住宅保険料 | 住宅保険料あり | 更新料 | - |
| 契約形態 | - | 契約期間 | 2年 |
| 入居・引渡期間 | 即時 | 現況 | 空室 |
| 契約備考 | 京都市北区 大宮エリアの2LDKマンションです。敷金、礼金ナシ。嬉しい3点セパレートなど充実の設備。コンビニ、スーパー、ドラッグストアなど近くにあって便利ですよ。光ファイバー対応しています。 入居者サポート:990円 駐輪ステッカー代:550円 更新料:1ヶ月 保証会社:利用必須 初回:月額賃料等の50%、更新時:1万円/1年 その他設備/条件:最上階の物件、独立洗面台、即入居可 | ||
部屋の情報
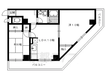
| 間取り | 2LDK | 専有面積 | 57.51m2 |
|---|---|---|---|
| 間取り詳細 | 和室(6帖)、洋室(10帖)、LDK(10帖) | ||
| 所在階 / 向き | 4階 / 東 | バルコニー面積 | - |
| 水道 / ガス | ガス【都市】 | ||
| 設備 | バス・トイレ別、2階以上、インターネット対応、エアコン、角部屋、バルコニー、フローリング、CSアンテナ、BSアンテナ、洗濯機:室内 | ||
| 当社物件ID | 158763178 | ||
建物の情報
| 建物名 | 京都市烏丸線 北大路駅 徒歩23分 4階建 築38年 | ||
|---|---|---|---|
| 所在地 | 京都府京都市北区大宮中総門口町 | ||
| 交通 | 京都市烏丸線 北大路駅 徒歩23分 京都市烏丸線 北山駅(京都) 徒歩30分 | ||
| 階数 | 4階建 | 総戸数 | - |
| 築年月 | 1988年12月 / 築38年 | エレベーター | - |
| 駐車場 | - | バイク置き場 | - |
| 駐輪場 | あり | 管理人/管理会社 | - |
| 建物種別 | マンション | 建物構造 | RC(鉄筋コンクリート) |
この部屋の取扱い不動産会社
| 会社名 | 株式会社 京都ライフ 立命館大学前店(賃貸スモッカ経由) | ||
|---|---|---|---|
| 所在地 | 京都市北区小松原北町26-5 | 交通 | - |
| 営業時間 | - | 定休日 | - |
| 免許番号 | 京都府知事(11)第6353号 | 取引態様 | 仲介 |
| 不動産会社管理番号 | kyotolife_28827-401-14 | 当社管理番号 | 463 |
| 所属団体 | 京都府宅地建物取引業協会\n公益社団法人近畿地区不動産公正取引協議会 | ||
| 公正取引協議会 | 全国宅地建物取引業保証協会 | ||
| 取扱い物件情報 | 物件詳細へ | ||
※各種情報と現状に差異がある場合は、現状優先となります。問い合わせをすることで、より詳しい条件、情報を確認する事ができます。
提供:株式会社 京都ライフ 立命館大学前店(賃貸スモッカ経由)
この物件が気になったら掲載期限まであと6日
京都市烏丸線 北大路駅 徒歩23分 4階建 築38年に条件(家賃・エリア)が近い物件一覧
| 写真 | 家賃 管理費等 | 敷金 礼金 | 間取り 専有面積 | 築年数 | 最寄り駅 所在地 | キープ | 詳細 |
|---|---|---|---|---|---|---|---|
マンション 京都府向日市 築31年(2LDK/4階) | |||||||
![]() | 7.4万円 8,000円 | なし 7.4万円 | 2LDK 52m2 | 築31年 | 京都府向日市物集女町出口 | 詳細を見る | |
アパート 近鉄京都線 伊勢田駅 徒歩6分 築14年(1K/2階) | |||||||
![]() | 7.2万円 7,000円 | なし 7.2万円 | 1K 28.62m2 | 築14年 | 近鉄京都線 伊勢田駅 徒歩6分 奈良線 新田駅(京都) 徒歩7分 京都府宇治市広野町東裏 | 詳細を見る | |
マンション 京都市烏丸線 北大路駅 徒歩18分 築35年(2LDK/1階) | |||||||
![]() | 6.6万円 7,000円 | なし なし | 2LDK 49.64m2 | 築35年 | 京都市烏丸線 北大路駅 徒歩18分 京都市烏丸線 鞍馬口駅 徒歩29分 京都府京都市北区紫竹牛若町 | 詳細を見る | |
アパート 京阪電気鉄道京阪線 橋本駅(京都) 徒歩30分 築18年(1K/1階) | |||||||
![]() | 5.9万円 7,000円 | なし 5.9万円 | 1K 22.35m2 | 築18年 | 京阪電気鉄道京阪線 橋本駅(京都) 徒歩30分 京阪電気鉄道京阪線 石清水八幡宮駅 徒歩33分 京都府八幡市男山美桜 | 詳細を見る | |
アパート 近鉄京都線 伊勢田駅 徒歩15分 築12年(1LDK/2階) | |||||||
![]() | 6.8万円 3,000円 | なし 13.6万円 | 1LDK 40.82m2 | 築12年 | 近鉄京都線 伊勢田駅 徒歩15分 近鉄京都線 小倉駅(京都) 徒歩17分 京都府宇治市伊勢田町 | 詳細を見る | |
マンション ハイツテラオパートⅡ(2LDK/2階) | |||||||
![]() | 6万円 3,000円 | なし 12万円 | 2LDK 48.15m2 | 築39年 | 阪急電鉄京都線 西向日駅 徒歩10分 東海道本線 長岡京駅 徒歩17分 京都府向日市上植野町吉備寺 | 詳細を見る | |
マンション 京都市烏丸線 北山駅(京都) 徒歩33分 築48年(2DK/3階) | |||||||
![]() | 6.3万円 なし | なし なし | 2DK 43.74m2 | 築48年 | 京都市烏丸線 北山駅(京都) 徒歩33分 京都市烏丸線 北大路駅 徒歩37分 京都府京都市北区西賀茂柿ノ木町 | 詳細を見る | |
アパート アプローズ明晴(1LDK/1階) | |||||||
![]() | 7.1万円 4,600円 | なし 7.1万円 | 1LDK 48.61m2 | 築2年 | 山陰本線 千代川駅 徒歩14分 山陰本線 並河駅 徒歩18分 山陰本線 亀岡駅 徒歩53分 京都府亀岡市千代川町小林植田 | 詳細を見る | |









