賃貸マンション
RIM本庄の賃貸物件情報(2LDK/3階)
| 家賃 | 管理費等 | 敷金 | 礼金 | 間取り | 専有面積 |
|---|---|---|---|---|---|
| 8.5万円 | 5,000円 | 12万円 | 8.5万円 | 2LDK | 65.29m2 |
入居決定でお祝い金最大100,000円
Point
定期借家契約2年、再契約可。再契約事務手数料は新賃料の0.5ヶ月+税。法人契約の場合は普通借家契約可。ペット不可。楽器不可。テレビ視聴の場合、ひかりTVの契約が必要となります(費用負担:借主)。駐車場
提供:(株)石田屋本庄店(SUUMO経由)

詳細情報 RIM本庄
物件紹介
RIM本庄はJR高崎線本庄駅から徒歩6分にあり、駅近で通勤通学に便利なマンションです。
このお部屋は2階以上に位置しているので、通行人や周囲の住人からの視線が気になりにくく、防犯面でも安心。建物のエントランスはオートロックがついており、インターホンにはTVモニタもついているため、相手の顔を確認してから来客対応することができます。
人気の角部屋で周囲の居住者の生活音も気になりにくく、また、フローリングのお部屋なのでお掃除もラクラク。キッチンはシステムキッチン仕様になっていますので、お料理好きの方にもぴったり。また、バス・トイレは別で、のんびりお風呂タイムも楽しめるでしょう。
通信設備面では、インターネットが無料で使えるので、月々の出費を抑えられるのも魅力です(別途工事等が必要な場合あり)。
建物にはエレベーターがついているので、重い荷物があっても安心。共用部には宅配ボックスが設定されているので、不在の時にも荷物を受け取ることができます。
このお部屋は2階以上に位置しているので、通行人や周囲の住人からの視線が気になりにくく、防犯面でも安心。建物のエントランスはオートロックがついており、インターホンにはTVモニタもついているため、相手の顔を確認してから来客対応することができます。
人気の角部屋で周囲の居住者の生活音も気になりにくく、また、フローリングのお部屋なのでお掃除もラクラク。キッチンはシステムキッチン仕様になっていますので、お料理好きの方にもぴったり。また、バス・トイレは別で、のんびりお風呂タイムも楽しめるでしょう。
通信設備面では、インターネットが無料で使えるので、月々の出費を抑えられるのも魅力です(別途工事等が必要な場合あり)。
建物にはエレベーターがついているので、重い荷物があっても安心。共用部には宅配ボックスが設定されているので、不在の時にも荷物を受け取ることができます。
お金・契約の情報
※「-」と表示されているものは、実際は料金が発生するものもございます。詳細はお問い合わせください。
| 家賃 | 8.5万円 | 管理費・共益費 | 5,000円 |
|---|---|---|---|
| 敷金 | 12万円 | 礼金 | 8.5万円 |
| 入居決定でお祝い金最大100,000円 | |||
| 保証金 | - | 償却・敷引 | - |
| 住宅保険料 | - | 更新料 | - |
| 保証会社利用 | 必須 | 保証会社名 | 全保連 |
| 保証会社費用 | - | 保証会社備考 | 全保連利用必 初回保証料は月額賃料の50%(最低保証委託料2万円) 年間保証料10 000円/1年 |
| 契約形態 | 定期借家 | 契約期間 | 2年 |
| 入居・引渡期間 | 即時 | 現況 | - |
| 契約備考 | 今なら仲介手数料無料キャンペーン実施中!(法人契約対象外) 合計0.5万円(内訳:自治会費(2年毎)0.5万円) 月額保証委託料 月額550円 2LDK 二人入居可/子供可/事務所利用不可 定期借家2年 損保【2万円2年】 バストイレ別、エアコン、クロゼット、フローリング、TVインターホン、オートロック、室内洗濯置、シューズボックス、システムキッチン、追焚機能浴室、角住戸、温水洗浄便座、エレベーター、洗面化粧台、2口コンロ、駐輪場、宅配ボックス、IHクッキングヒーター、全居室洋室、保証人不要、駐車2台可、仲介手数料不要、全居室フローリング、2沿線利用可、LDK15畳以上、ネット使用料不要、エアコン全室、エアコン3台、クロゼット2ヶ所、2駅利用可、駅徒歩10分以内、2階LDK、都市ガス、年度内入居可、礼金1ヶ月 | ||
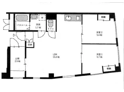
部屋の情報
| 間取り | 2LDK | 専有面積 | 65.29m2 |
|---|---|---|---|
| 所在階 / 向き | 3階 / - | バルコニー面積 | - |
| 水道 / ガス | - | ||
| 設備 | バス・トイレ別、2階以上、オートロック、テレビドアホン、宅配ボックス、追い焚き、インターネット対応、システムキッチン、エアコン、エレベーター、温水洗浄便座、角部屋、フローリング、2口コンロ、コンロ:IH、インターネット使用料無料、洗濯機:室内 | ||
| 当社物件ID | 159918561 | ||
建物の情報
| 建物名 | RIM本庄 | ||
|---|---|---|---|
| 所在地 | 埼玉県本庄市駅南 | ||
| 交通 | JR高崎線 本庄駅 徒歩6分 上越新幹線 本庄早稲田駅 徒歩30分 JR高崎線 神保原駅 徒歩59分 | ||
| 階数 | 6階建 | 総戸数 | 20戸 |
| 築年月 | 2019年04月 / 築8年 | エレベーター | あり |
| 駐車場 | 空有 11000円/駐2台可 | バイク置き場 | - |
| 駐輪場 | あり | 管理人/管理会社 | - |
| 周辺環境 | その他 旭保育園(幼稚園・保育園)まで570m その他 本庄すみれ幼稚園(幼稚園・保育園)まで1410m その他 本庄市立中央小学校(小学校)まで1513m その他 梅花保育園(幼稚園・保育園)まで753m その他 本庄東高等学校(高校・高専)まで1326m その他 馬車道本庄早稲田店(飲食店)まで1727m | ||
| 建物種別 | マンション | 建物構造 | 鉄骨造 |
この部屋の取扱い不動産会社
| 会社名 | 古郡ホーム(株)FGデベロップ(SUUMO経由) | ||
|---|---|---|---|
| 所在地 | 埼玉県深谷市上柴町東5-4-3 | 交通 | - |
| 営業時間 | 9:00~18:00 | 定休日 | 水・木曜日 |
| 免許番号 | 埼玉県知事21051 | 取引態様 | 仲介 |
| 不動産会社管理番号 | 100474312599 | 当社管理番号 | 89 |
| 所属団体 | (公社)埼玉県宅地建物取引業協会会員 | ||
| 公正取引協議会 | (公社)首都圏不動産公正取引協議会加盟 | ||
| 取扱い物件情報 | 物件詳細へ | ||
※各種情報と現状に差異がある場合は、現状優先となります。問い合わせをすることで、より詳しい条件、情報を確認する事ができます。
提供:古郡ホーム(株)FGデベロップ(SUUMO経由)
この物件が気になったら掲載期限まであと11日
RIM本庄に条件(家賃・エリア)が近い物件一覧
| 写真 | 家賃 管理費等 | 敷金 礼金 | 間取り 専有面積 | 築年数 | 最寄り駅 所在地 | キープ | 詳細 |
|---|---|---|---|---|---|---|---|
アパート メゾン遙(2LDK/2階) | |||||||
![]() | 5.8万円 3,700円 | なし 5.8万円 | 2LDK 56.68m2 | 築8年 | JR高崎線 神保原駅 徒歩25分 埼玉県児玉郡上里町大字金久保 | 詳細を見る | |
アパート カサブランカ(1LDK/1階) | |||||||
![]() | 5.8万円 3,000円 | 5.8万円 なし | 1LDK 48.79m2 | 築10年 | JR高崎線 本庄駅 徒歩23分 埼玉県本庄市栄 | 詳細を見る | |
マンション 朝日屋ハイツⅡ(3LDK/3階) | |||||||
![]() | 5.5万円 なし | なし なし | 3LDK 49m2 | 築35年 | 高崎線 本庄駅 徒歩56分 東武伊勢崎・大師線 剛志駅 徒歩58分 群馬県伊勢崎市八斗島町 | 詳細を見る | |
アパート レオパレススリータウン(1K/2階) | |||||||
![]() | 6.8万円 5,000円 | なし 6.8万円 | 1K 28.02m2 | 築19年 | 埼玉県児玉郡上里町大字三町 | 詳細を見る | |
アパート レオパレスひばり野(1K/2階) | |||||||
![]() | 5.7万円 5,000円 | なし 5.7万円 | 1K 21.81m2 | 築19年 | JR高崎線 神保原駅 徒歩20分 埼玉県本庄市下野堂 | 詳細を見る | |
マンション サンフォレスト(2LDK/3階) | |||||||
![]() | 5.5万円 なし | なし なし | 2LDK 51.87m2 | 築28年 | JR高崎線 新町駅(群馬) 徒歩17分 JR八高線 北藤岡駅 徒歩46分 JR高崎線 神保原駅 徒歩63分 群馬県高崎市新町 | 詳細を見る | |
アパート エル・エディI(1LDK/2階) | |||||||
![]() | 5.6万円 1,800円 | なし 5.6万円 | 1LDK 46.09m2 | 築16年 | JR高崎線 本庄駅 徒歩27分 埼玉県本庄市小島 | 詳細を見る | |
アパート メゾン ラフレⅡ(1LDK/1階) | |||||||
![]() | 5.7万円 3,500円 | なし 5.7万円 | 1LDK 45.06m2 | 築12年 | 高崎線 本庄駅 徒歩41分 埼玉県本庄市今井 | 詳細を見る | |








