賃貸アパート
ベルサードの賃貸物件情報(1K/2階)
| 家賃 | 管理費等 | 敷金 | 礼金 | 間取り | 専有面積 |
|---|---|---|---|---|---|
| 19.2万円 | 3,000円 | 19.2万円 | 19.2万円 | 1K | 37.01m2 |
入居決定でお祝い金最大100,000円
Point
新築☆駅チカでオートロック・エレベーター完備 周辺の買い物にも便利な場所です♪
提供:リロの不動産(株)東都笹塚店(SUUMO経由)

詳細情報 ベルサード
物件紹介
ベルサードは小田急線豪徳寺駅から徒歩1分にあり、駅近で通勤通学に便利なアパートです。
このお部屋は2階以上に位置しているので、通行人や周囲の住人からの視線が気になりにくく、防犯面でも安心。建物のエントランスはオートロックがついており、インターホンにはTVモニタもついているため、相手の顔を確認してから来客対応することができます。
人気の角部屋で周囲の居住者の生活音も気になりにくく、また、フローリングのお部屋なのでお掃除もラクラク。バス・トイレ別の仕様で、のんびりお風呂タイムも楽しめます。
通信設備面では、インターネットが無料で使えるので、月々の出費を抑えられるのも魅力です。また、CATVにも対応しているので、おうち時間も充実するでしょう(別途工事、CATVの契約料等が必要な場合あり)。
建物にはエレベーターがついているので、重い荷物があっても安心。共用部には宅配ボックスが設定されているので、不在の時にも荷物を受け取ることができます。
このお部屋は2階以上に位置しているので、通行人や周囲の住人からの視線が気になりにくく、防犯面でも安心。建物のエントランスはオートロックがついており、インターホンにはTVモニタもついているため、相手の顔を確認してから来客対応することができます。
人気の角部屋で周囲の居住者の生活音も気になりにくく、また、フローリングのお部屋なのでお掃除もラクラク。バス・トイレ別の仕様で、のんびりお風呂タイムも楽しめます。
通信設備面では、インターネットが無料で使えるので、月々の出費を抑えられるのも魅力です。また、CATVにも対応しているので、おうち時間も充実するでしょう(別途工事、CATVの契約料等が必要な場合あり)。
建物にはエレベーターがついているので、重い荷物があっても安心。共用部には宅配ボックスが設定されているので、不在の時にも荷物を受け取ることができます。
お金・契約の情報
※「-」と表示されているものは、実際は料金が発生するものもございます。詳細はお問い合わせください。
| 家賃 | 19.2万円 | 管理費・共益費 | 3,000円 |
|---|---|---|---|
| 敷金 | 19.2万円 | 礼金 | 19.2万円 |
| 入居決定でお祝い金最大100,000円 | |||
| 保証金 | - | 償却・敷引 | - |
| 住宅保険料 | - | 更新料 | - |
| 保証会社利用 | 必須 | 保証会社名 | - |
| 保証会社費用 | - | 保証会社備考 | 保証会社利用必 株式会社Casa 初回:総賃料の50% 年間保証料:1万円/1年 口座振替手数料:500円(消費税別途)/1ヶ月 |
| 契約形態 | - | 契約期間 | - |
| 入居・引渡期間 | 即時 | 現況 | - |
| 契約備考 | 1K 普通借家2年 損保【1.7万円】 バストイレ別、バルコニー、エアコン、ガスコンロ対応、クロゼット、フローリング、TVインターホン、オートロック、室内洗濯置、角住戸、温水洗浄便座、エレベーター、CATV、2沿線利用可、浴室に窓、築2年以内、トイレ未使用、3駅以上利用可、路面電車沿線、駅徒歩5分以内、キッチン未使用、都市ガス、洗面所に窓 | ||
部屋の情報
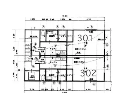
| 間取り | 1K | 専有面積 | 37.01m2 |
|---|---|---|---|
| 所在階 / 向き | 2階 / - | バルコニー面積 | - |
| 水道 / ガス | - | ||
| 設備 | バス・トイレ別、2階以上、オートロック、テレビドアホン、エアコン、エレベーター、温水洗浄便座、角部屋、バルコニー、フローリング、コンロ:ガス、CATV、洗濯機:室内 | ||
| 当社物件ID | 160197925 | ||
建物の情報
| 建物名 | ベルサード | ||
|---|---|---|---|
| 所在地 | 東京都世田谷区豪徳寺 | ||
| 交通 | 小田急線 豪徳寺駅 徒歩3分 東急世田谷線 山下駅(東京) 徒歩4分 小田急線 梅ケ丘駅 徒歩11分 | ||
| 階数 | 3階建 | 総戸数 | - |
| 築年月 | 2026年01月 / 築1年 | エレベーター | あり |
| 駐車場 | なし | バイク置き場 | - |
| 駐輪場 | - | 管理人/管理会社 | - |
| 周辺環境 | その他 りそな銀行豪徳寺支店(銀行)まで139m その他 ココカラファイン豪徳寺二番店(ドラッグストア)まで67m その他 セブンイレブン世田谷豪徳寺1丁目店(コンビニ)まで65m その他 トップパルケ豪徳寺店(スーパー)まで85m その他 ファミリーマート豪徳寺駅前店(コンビニ)まで149m その他 豪徳寺駅前郵便局(郵便局)まで389m | ||
| 建物種別 | アパート | 建物構造 | 木造 |
この部屋の取扱い不動産会社
| 会社名 | ホームメイトFC豪徳寺店(株)ワイズ・ホーム(SUUMO経由) | ||
|---|---|---|---|
| 所在地 | 東京都世田谷区豪徳寺1-25-5 | 交通 | - |
| 営業時間 | AM10:00~PM19:00 | 定休日 | 毎週水曜日 |
| 免許番号 | 東京都知事95874 | 取引態様 | 仲介 |
| 不動産会社管理番号 | 100481869968 | 当社管理番号 | 89 |
| 所属団体 | (公社)東京都宅地建物取引業協会会員 | ||
| 公正取引協議会 | (公社)首都圏不動産公正取引協議会加盟 | ||
| 取扱い物件情報 | 物件詳細へ | ||
※各種情報と現状に差異がある場合は、現状優先となります。問い合わせをすることで、より詳しい条件、情報を確認する事ができます。
提供:ホームメイトFC豪徳寺店(株)ワイズ・ホーム(SUUMO経由)
この物件が気になったら掲載期限まであと2日
ベルサードに条件(家賃・エリア)が近い物件一覧
| 写真 | 家賃 管理費等 | 敷金 礼金 | 間取り 専有面積 | 築年数 | 最寄り駅 所在地 | キープ | 詳細 |
|---|---|---|---|---|---|---|---|
アパート ノリアセット(2LDK/3階) | |||||||
![]() | 18.6万円 3,000円 | 18.6万円 18.6万円 | 2LDK 62.72m2 | 新築 | 京浜急行電鉄本線 大森町駅 徒歩9分 京浜急行電鉄本線 梅屋敷駅(東京) 徒歩16分 東京都大田区大森東3丁目 | 詳細を見る | |
一戸建て 京浜急行電鉄本線 大森町駅 徒歩14分 築38年(3LDK) | |||||||
![]() | 14.8万円 なし | 14.8万円 14.8万円 | 3LDK 62.09m2 | 築38年 | 京浜急行電鉄本線 大森町駅 徒歩14分 京浜急行電鉄本線 平和島駅 徒歩19分 東京都大田区大森東3丁目 | 詳細を見る | |
マンション ハイネス大森(2DK/3階) | |||||||
![]() | 13.6万円 6,000円 | 13.6万円 なし | 2DK 41.16m2 | 築42年 | 京急本線 大森町駅 徒歩10分 京急本線 梅屋敷駅(東京) 徒歩16分 JR京浜東北線 大森駅(東京) 徒歩23分 東京都大田区大森西 | 詳細を見る | |
一戸建て 京浜急行電鉄本線 大森町駅 徒歩14分 築23年(3LDK) | |||||||
![]() | 20万円 なし | 20万円 20万円 | 3LDK 71.86m2 | 築23年 | 京浜急行電鉄本線 大森町駅 徒歩14分 京浜急行電鉄本線 梅屋敷駅(東京) 徒歩16分 東京都大田区大森東4丁目 | 詳細を見る | |
タウンハウス 大田菜園長屋(2LDK) | |||||||
![]() | 15.4万円 5,000円 | 15.4万円 23.1万円 | 2LDK 52.17m2 | 築10年 | 京浜急行電鉄本線 雑色駅 徒歩8分 京浜急行電鉄本線 六郷土手駅 徒歩13分 東京都大田区東六郷3丁目 | 詳細を見る | |
アパート フォレスタ世田谷(2LDK/2階) | |||||||
![]() | 17.4万円 1,000円 | 17.4万円 なし | 2LDK 47.7m2 | 築55年 | 東急池上線 雪が谷大塚駅 徒歩6分 東急東横線 田園調布駅 徒歩16分 東急目黒線 多摩川駅 徒歩16分 東京都世田谷区東玉川 | 詳細を見る | |
マンション SAKURA(2LDK/2階) | |||||||
![]() | 20.1万円 5,000円 | 20.1万円 なし | 2LDK 54.84m2 | 築5年 | 京急本線 梅屋敷駅(東京) 徒歩7分 京急本線 大森町駅 徒歩9分 東京都大田区大森中 | 詳細を見る | |
マンション メゾンドボナール(1DK/2階) | |||||||
![]() | 11.8万円 3,000円 | 11.8万円 なし | 1DK 32.48m2 | 築29年 | JR京浜東北線 蒲田駅 徒歩10分 京急本線 京急蒲田駅 徒歩10分 京急本線 梅屋敷駅(東京) 徒歩11分 東京都大田区蒲田 | 詳細を見る | |









