賃貸アパート
サンパレスの賃貸物件情報(1K/1階)
| 家賃 | 管理費等 | 敷金 | 礼金 | 間取り | 専有面積 |
|---|---|---|---|---|---|
| 3.2万円 | 3,000円 | なし | なし | 1K | 14.61m2 |
入居決定でお祝い金最大100,000円
Point
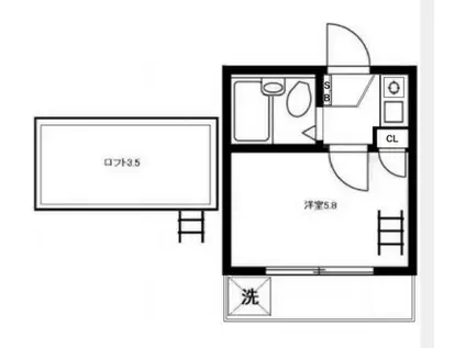
収納はクロゼット・シューズボックスなど豊富なので、広々と空間を利用することも可能です。
提供:(株)クレオン西川口東口店(SUUMO経由)

詳細情報 サンパレス
物件紹介
サンパレスは東京地下鉄日比谷線入谷駅から徒歩5分にあり、駅近で通勤通学に便利なアパートです。
建物のエントランスはオートロックがついており、インターホンにはTVモニタもついているため、相手の顔を確認してから来客対応することができます。
人気の角部屋で周囲の居住者の生活音も気になりにくく、また、フローリングのお部屋なのでお掃除もラクラク。室内にはウォークインクローゼットがありますので、たくさんの荷物も効率的に収納ができます。キッチンはシステムキッチン仕様になっていますので、お料理好きの方にもぴったり。バス・トイレは別なので、のんびりお風呂タイムも楽しめるでしょう。また、雨の日でも浴室乾燥機を使えば、お洗濯も問題ありません。
通信設備面では、インターネットが無料で使えるので、月々の出費を抑えられるのも魅力です。また、BSアンテナ・CSアンテナもありますので、おうち時間も充実するでしょう(別途工事、BS・CSの契約料等が必要な場合あり)。
建物にはエレベーターがついているので、重い荷物があっても安心。共用部には宅配ボックスが設定されているので、不在の時にも荷物を受け取ることができます。
コンビニまで徒歩6分の場所にあり、日用品や食料品のお買い物にも便利です。
建物のエントランスはオートロックがついており、インターホンにはTVモニタもついているため、相手の顔を確認してから来客対応することができます。
人気の角部屋で周囲の居住者の生活音も気になりにくく、また、フローリングのお部屋なのでお掃除もラクラク。室内にはウォークインクローゼットがありますので、たくさんの荷物も効率的に収納ができます。キッチンはシステムキッチン仕様になっていますので、お料理好きの方にもぴったり。バス・トイレは別なので、のんびりお風呂タイムも楽しめるでしょう。また、雨の日でも浴室乾燥機を使えば、お洗濯も問題ありません。
通信設備面では、インターネットが無料で使えるので、月々の出費を抑えられるのも魅力です。また、BSアンテナ・CSアンテナもありますので、おうち時間も充実するでしょう(別途工事、BS・CSの契約料等が必要な場合あり)。
建物にはエレベーターがついているので、重い荷物があっても安心。共用部には宅配ボックスが設定されているので、不在の時にも荷物を受け取ることができます。
コンビニまで徒歩6分の場所にあり、日用品や食料品のお買い物にも便利です。
お金・契約の情報
※「-」と表示されているものは、実際は料金が発生するものもございます。詳細はお問い合わせください。
| 家賃 | 3.2万円 | 管理費・共益費 | 3,000円 |
|---|---|---|---|
| 敷金 | なし | 礼金 | なし |
| 入居決定でお祝い金最大100,000円 | |||
| 保証金 | - | 償却・敷引 | - |
| 住宅保険料 | 1円 | 更新料 | - |
| 保証会社利用 | 必須 | 保証会社名 | - |
| 保証会社費用 | - | 保証会社備考 | 初回保証料:20,000円 年間保証料:1年毎に1万円 |
| 契約形態 | - | 契約期間 | 2年 |
| 入居・引渡期間 | 相談 | 現況 | - |
| 契約備考 | 短期解約違約金有 室内清掃代28000円税別、及びエアコン清掃代12000円税別有(退去時支払い) 鍵交換費用:19800 その他設備/条件:クローゼット、シューズボックス | ||
部屋の情報
| 間取り | 1K | 専有面積 | 14.61m2 |
|---|---|---|---|
| 間取り詳細 | 洋室(5.8帖) | ||
| 所在階 / 向き | 1階 / 東 | バルコニー面積 | - |
| 水道 / ガス | - | ||
| 設備 | バス・トイレ別、オートロック、テレビドアホン、宅配ボックス、浴室乾燥機、システムキッチン、エアコン、エレベーター、温水洗浄便座、角部屋、バルコニー、フローリング、ロフトあり、コンロ:IH、インターネット使用料無料、給湯、1口コンロ | ||
| 当社物件ID | 1241046 | ||
建物の情報
| 建物名 | サンパレス | ||
|---|---|---|---|
| 所在地 | 埼玉県さいたま市南区 | ||
| 交通 | 東京地下鉄日比谷線 入谷駅(東京) 徒歩5分 京浜東北・根岸線 蕨駅 徒歩35分 | ||
| 階数 | 2階建 | 総戸数 | 10戸 |
| 築年月 | 1987年11月 / 築39年 | エレベーター | あり |
| 駐車場 | - | バイク置き場 | - |
| 駐輪場 | あり | 管理人/管理会社 | - |
| 周辺環境 | コンビニ 徒歩6分(435m) その他 ドラッグストア その他 公園 その他 銀行 その他 セブンイレブンさいたま太田窪店 徒歩6分(435m) | ||
| 建物種別 | アパート | 建物構造 | 木造 |
この部屋の取扱い不動産会社
| 会社名 | ハウスコム埼玉株式会社 南浦和店 | ||
|---|---|---|---|
| 所在地 | 埼玉県さいたま市南区36-15サウスハセービル2階 | 交通 | - |
| 営業時間 | 10:00~18:00 | 定休日 | - |
| 免許番号 | 埼玉県知事(1)第24888号 | 取引態様 | 仲介 |
| 不動産会社管理番号 | HC2-479884-102-0067 | 当社管理番号 | 468 |
| 所属団体 | 、 | ||
| 取扱い物件情報 | 物件詳細へ | ||
※各種情報と現状に差異がある場合は、現状優先となります。問い合わせをすることで、より詳しい条件、情報を確認する事ができます。
提供:ハウスコム埼玉株式会社 南浦和店
この物件が気になったら掲載期限まであと4日
サンパレスに条件(家賃・エリア)が近い物件一覧
| 写真 | 家賃 管理費等 | 敷金 礼金 | 間取り 専有面積 | 築年数 | 最寄り駅 所在地 | キープ | 詳細 |
|---|---|---|---|---|---|---|---|
アパート 第一あかねコーポ(2DK/1階) | |||||||
![]() | 4.7万円 3,000円 | 7.05万円 なし | 2DK 37.11m2 | 築41年 | 高崎線 上尾駅 徒歩22分 埼玉県上尾市 | 詳細を見る | |
アパート みゆき荘(1K/1階) | |||||||
![]() | 3.5万円 なし | 3.5万円 3.5万円 | 1K 19.88m2 | 築30年 | 東武東上線 霞ケ関駅(埼玉) 徒歩11分 JR川越線 的場駅 徒歩12分 JR川越線 西川越駅 徒歩30分 埼玉県川越市 | 詳細を見る | |
アパート キタノハウス(1DK/2階) | |||||||
![]() | 4.7万円 なし | 4.7万円 4.7万円 | 1DK 28m2 | 築51年 | JR京浜東北線 川口駅 徒歩10分 JR京浜東北線 西川口駅 徒歩18分 埼玉高速鉄道 川口元郷駅 徒歩20分 埼玉県川口市幸町 | 詳細を見る | |
アパート エンジェル(1K/1階) | |||||||
![]() | 5万円 2,500円 | 2.5万円 5万円 | 1K 19.87m2 | 築20年 | 東武東上線 川越駅 徒歩11分 東武東上線 川越市駅 徒歩20分 西武新宿線 本川越駅 徒歩20分 埼玉県川越市旭町 | 詳細を見る | |
マンション ハイムベル(1DK/2階) | |||||||
![]() | 4.9万円 なし | 4.9万円 4.9万円 | 1DK 23.16m2 | 築36年 | JR京浜東北線 蕨駅 徒歩7分 埼玉県蕨市北町 | 詳細を見る | |
アパート スカイピア川越A(ワンルーム/1階) | |||||||
![]() | 2.5万円 1,000円 | なし なし | ワンルーム 16.12m2 | 築38年 | 東武東上線 新河岸駅 徒歩9分 東武東上線 川越駅 徒歩18分 JR川越線 川越駅 徒歩18分 埼玉県川越市 | 詳細を見る | |
アパート レオパレスフィットニア(1K/1階) | |||||||
![]() | 3.9万円 7,000円 | なし 3.9万円 | 1K 19.87m2 | 築25年 | 東武伊勢崎線 北春日部駅 徒歩14分 東武伊勢崎線 姫宮駅 徒歩27分 東武野田線 八木崎駅 徒歩36分 埼玉県春日部市小渕 | 詳細を見る | |
アパート 第7正美荘(3K/2階) | |||||||
![]() | 4.5万円 2,000円 | 4.5万円 なし | 3K 46.37m2 | 築42年 | 東武伊勢崎線 大袋駅 徒歩7分 東武伊勢崎線 せんげん台駅 徒歩15分 東武伊勢崎線 武里駅 徒歩36分 埼玉県越谷市大字袋山 | 詳細を見る | |








