賃貸アパート
奈良線 JR小倉駅 徒歩2分 3階建 築15年の賃貸物件情報(ワンルーム/2階)
| 家賃 | 管理費等 | 敷金 | 礼金 | 間取り | 専有面積 |
|---|---|---|---|---|---|
| 7万円 | 7,000円 | なし | 10万円 | ワンルーム | 30.03m2 |
入居決定でお祝い金最大100,000円
Point
2WAYアクセス可 2012年1月上旬完成の設備良好1K
提供:株式会社 京都ライフ 京田辺店(賃貸スモッカ経由)

詳細情報 奈良線 JR小倉駅 徒歩2分 3階建 築15年
物件紹介
奈良線JR小倉駅から徒歩2分にあり、駅近で通勤通学に便利なアパートです。
このお部屋は2階以上に位置しているので通行人や周囲の住人からの視線が気になりにくく、建物のエントランスはオートロックがついているので防犯性が高くなっています。
フローリングのお部屋なのでお掃除もラクラク。キッチンはシステムキッチン仕様になっていますので、お料理好きの方にもぴったり。バス・トイレは別なので、のんびりお風呂タイムも楽しめるでしょう。また、雨の日でも浴室乾燥機を使えば、お洗濯も問題ありません。
通信設備面ではBSアンテナ・CSアンテナがありますので、おうち時間も充実するでしょう(別途工事、契約料が必要な場合あり)。
このお部屋は2階以上に位置しているので通行人や周囲の住人からの視線が気になりにくく、建物のエントランスはオートロックがついているので防犯性が高くなっています。
フローリングのお部屋なのでお掃除もラクラク。キッチンはシステムキッチン仕様になっていますので、お料理好きの方にもぴったり。バス・トイレは別なので、のんびりお風呂タイムも楽しめるでしょう。また、雨の日でも浴室乾燥機を使えば、お洗濯も問題ありません。
通信設備面ではBSアンテナ・CSアンテナがありますので、おうち時間も充実するでしょう(別途工事、契約料が必要な場合あり)。
お金・契約の情報
※「-」と表示されているものは、実際は料金が発生するものもございます。詳細はお問い合わせください。
| 家賃 | 7万円 | 管理費・共益費 | 7,000円 |
|---|---|---|---|
| 敷金 | なし | 礼金 | 10万円 |
| 入居決定でお祝い金最大100,000円 | |||
| 保証金 | - | 償却・敷引 | - |
| 住宅保険料 | 住宅保険料あり | 更新料 | - |
| 契約形態 | - | 契約期間 | 2年 |
| 入居・引渡期間 | 2026年02月上旬 | 現況 | 賃貸中 |
| 契約備考 | 2012年1月上旬完成のマンションです。 近鉄小倉駅徒歩9分、JR学奈良線小倉駅徒歩3分の2WAYアクセス可能です。 また駅周辺には、コンビニやスーパー、ドラッグストアーなど生活するにあたり 便利な商業施設が多数揃っています。 マンションはオートロックも付いており大手ハウスメーカー施工ですので 設備が充実しております。 詳細は京都ライフ小倉店までお問合せ下さい。 水道代:3,025円 カードキー:9,900円 害虫駆除費:22,000円 更新料:1ヶ月 保証会社:利用必須 初回:3.5万円、月額:月額賃料等の1% その他設備/条件:コンロ2口以上、独立洗面台、TVドアホン | ||
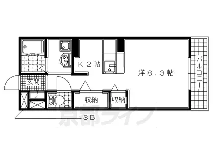
部屋の情報
| 間取り | ワンルーム | 専有面積 | 30.03m2 |
|---|---|---|---|
| 間取り詳細 | 洋室(8.3帖) | ||
| 所在階 / 向き | 2階 / 西 | バルコニー面積 | - |
| 水道 / ガス | ガス【都市】 | ||
| 設備 | バス・トイレ別、2階以上、オートロック、浴室乾燥機、追い焚き、システムキッチン、カウンターキッチン、エアコン、温水洗浄便座、バルコニー、フローリング、コンロ:ガス、CSアンテナ、BSアンテナ、洗濯機:室内 | ||
| 当社物件ID | 160169221 | ||
建物の情報
| 建物名 | 奈良線 JR小倉駅 徒歩2分 3階建 築15年 | ||
|---|---|---|---|
| 所在地 | 京都府宇治市小倉町 | ||
| 交通 | 奈良線 JR小倉駅 徒歩2分 近鉄京都線 小倉駅(京都) 徒歩7分 | ||
| 階数 | 3階建 | 総戸数 | - |
| 築年月 | 2012年01月 / 築15年 | エレベーター | - |
| 駐車場 | - | バイク置き場 | - |
| 駐輪場 | あり | 管理人/管理会社 | - |
| 建物種別 | アパート | 建物構造 | 軽量鉄骨造 |
この部屋の取扱い不動産会社
| 会社名 | 株式会社 京都ライフ 京田辺店(賃貸スモッカ経由) | ||
|---|---|---|---|
| 所在地 | 京都府京田辺市田辺中央1丁目7-11 | 交通 | - |
| 営業時間 | - | 定休日 | - |
| 免許番号 | 京都府知事(11)第6353号 | 取引態様 | 仲介 |
| 不動産会社管理番号 | kyotolife_51496-208-24 | 当社管理番号 | 463 |
| 所属団体 | 京都府宅地建物取引業協会\n公益社団法人近畿地区不動産公正取引協議会 | ||
| 公正取引協議会 | 全国宅地建物取引業保証協会 | ||
| 取扱い物件情報 | 物件詳細へ | ||
※各種情報と現状に差異がある場合は、現状優先となります。問い合わせをすることで、より詳しい条件、情報を確認する事ができます。
提供:株式会社 京都ライフ 京田辺店(賃貸スモッカ経由)
この物件が気になったら掲載期限まであと6日
奈良線 JR小倉駅 徒歩2分 3階建 築15年に条件(家賃・エリア)が近い物件一覧
| 写真 | 家賃 管理費等 | 敷金 礼金 | 間取り 専有面積 | 築年数 | 最寄り駅 所在地 | キープ | 詳細 |
|---|---|---|---|---|---|---|---|
マンション 山陰本線 丹波口駅 徒歩5分 新築(1DK/5階) | |||||||
![]() | 8.1万円 8,000円 | なし 8.1万円 | 1DK 27.22m2 | 新築 | 山陰本線 丹波口駅 徒歩5分 東海道本線 京都駅 徒歩27分 京都府京都市下京区朱雀分木町 | 詳細を見る | |
アパート 京阪電気鉄道宇治線 観月橋駅 徒歩3分 築1年(1K/2階) | |||||||
![]() | 6.65万円 4,000円 | なし なし | 1K 21.11m2 | 築1年 | 京阪電気鉄道宇治線 観月橋駅 徒歩3分 奈良線 桃山駅 徒歩10分 京都府京都市伏見区桃陵町 | 詳細を見る | |
マンション 山陰本線 丹波口駅 徒歩5分 新築(1DK/6階) | |||||||
![]() | 8.1万円 8,000円 | なし 8.1万円 | 1DK 27.22m2 | 新築 | 山陰本線 丹波口駅 徒歩5分 東海道本線 京都駅 徒歩27分 京都府京都市下京区朱雀分木町 | 詳細を見る | |
マンション 京都市烏丸線 丸太町駅(京都市営) 徒歩7分 築22年(1DK/2階) | |||||||
![]() | 8万円 9,000円 | 8万円 15万円 | 1DK 27.31m2 | 築22年 | 京都市烏丸線 丸太町駅(京都市営) 徒歩7分 京都市烏丸線 烏丸御池駅 徒歩10分 京都府京都市中京区俵屋町 | 詳細を見る | |
アパート 山陰本線 太秦駅(JR) 徒歩6分 築1年(1LDK/1階) | |||||||
![]() | 7.5万円 4,000円 | なし 7.9万円 | 1LDK 33.76m2 | 築1年 | 山陰本線 太秦駅(JR) 徒歩6分 京都市東西線 太秦天神川駅 徒歩17分 京都府京都市右京区太秦西蜂岡町 | 詳細を見る | |
マンション ベラジオ雅び京都西院Ⅱ(1DK/6階) | |||||||
![]() | 8.35万円 9,140円 | なし 9.27万円 | 1DK 29.94m2 | 新築 | 阪急京都線 西京極駅 徒歩14分 阪急京都線 西院駅(阪急) 徒歩15分 地下鉄東西線 太秦天神川駅 徒歩26分 京都府京都市右京区西院月双町 | 詳細を見る | |
マンション 京都市烏丸線 今出川駅 徒歩12分 築35年(1K/4階) | |||||||
![]() | 4.3万円 6,000円 | なし 4.3万円 | 1K 20m2 | 築35年 | 京都市烏丸線 今出川駅 徒歩12分 京都市烏丸線 鞍馬口駅 徒歩13分 京都府京都市上京区芝薬師町 | 詳細を見る | |







