賃貸マンション
レオンコンフォート池田山 14階の賃貸物件情報(1LDK/14階)
| 家賃 | 管理費等 | 敷金 | 礼金 | 間取り | 専有面積 |
|---|---|---|---|---|---|
| 25万円 | 2万円 | なし | 25万円 | 1LDK | 41.88m2 |
入居決定でお祝い金最大100,000円
- 保証金
- -
- 償却・敷引
- -
- 築年数
- 築6年
- 所在階
- 14階
- 向き
- 南
Point
まずはお問い合わせ!
不動産会社は街のプロ、あなたに合った物件がきっと見つかります。
提供:JTR不動産(株)(SUUMO経由)

詳細情報 レオンコンフォート池田山 14階
物件紹介
レオンコンフォート池田山 14階はJR山手線五反田駅から徒歩9分にあり、駅近で通勤通学に便利なマンションです。
このお部屋は2階以上に位置しているので、通行人や周囲の住人からの視線が気になりにくく、防犯面でも安心。建物のエントランスはオートロックがついており、インターホンにはTVモニタもついているため、相手の顔を確認してから来客対応することができます。
人気の南向きのお部屋。また、フローリングなのでお掃除もラクラク。キッチンはシステムキッチン仕様になっていますので、お料理好きの方にもぴったり。バス・トイレは別なので、のんびりお風呂タイムも楽しめるでしょう。また、雨の日でも浴室乾燥機を使えば、お洗濯も問題ありません。
建物にはエレベーターがついているので、重い荷物があっても安心。共用部には宅配ボックスが設定されているので、不在の時にも荷物を受け取ることができます。また、ペット飼育の相談ができますので、あなたの大切な家族の一員も快適に暮らせるか、ぜひ確認してみてください。
このお部屋は2階以上に位置しているので、通行人や周囲の住人からの視線が気になりにくく、防犯面でも安心。建物のエントランスはオートロックがついており、インターホンにはTVモニタもついているため、相手の顔を確認してから来客対応することができます。
人気の南向きのお部屋。また、フローリングなのでお掃除もラクラク。キッチンはシステムキッチン仕様になっていますので、お料理好きの方にもぴったり。バス・トイレは別なので、のんびりお風呂タイムも楽しめるでしょう。また、雨の日でも浴室乾燥機を使えば、お洗濯も問題ありません。
建物にはエレベーターがついているので、重い荷物があっても安心。共用部には宅配ボックスが設定されているので、不在の時にも荷物を受け取ることができます。また、ペット飼育の相談ができますので、あなたの大切な家族の一員も快適に暮らせるか、ぜひ確認してみてください。
お金・契約の情報
※「-」と表示されているものは、実際は料金が発生するものもございます。詳細はお問い合わせください。
| 家賃 | 25万円 | 管理費・共益費 | 2万円 |
|---|---|---|---|
| 敷金 | なし | 礼金 | 25万円 |
| 入居決定でお祝い金最大100,000円 | |||
| 保証金 | - | 償却・敷引 | - |
| 住宅保険料 | - | 更新料 | - |
| 保証会社利用 | 必須 | 保証会社名 | - |
| 保証会社費用 | - | 保証会社備考 | 保証会社利用必 初回50% 更新料10,000円 引落手数料580円 |
| 契約形態 | - | 契約期間 | - |
| 入居・引渡期間 | - | 現況 | - |
| 入居可能条件 | ペット相談 | ||
| 契約備考 | *更新料:新賃料1ヶ月 *解約予告2ヶ月前 *エアコンクリーニング:16,500円/台 *ハウスクリーニング:77,000円 *短期解約違約金:1年未満解約で総賃料1ヶ月分、半年未満解約で総賃料2ヶ月分 *自転車:月額330円 *バイク:月額5,500円 *ペット飼育時:敷金1ヶ月積増し、賃料3000円UP、礼金30000円UP *鍵交換代:38,500円 1LDK ペット相談 普通借家2年 損保【1.5万円】 バストイレ別、バルコニー、エアコン、クロゼット、フローリング、TVインターホン、浴室乾燥機、オートロック、室内洗濯置、システムキッチン、南向き、エレベーター、2口コンロ、駐輪場、宅配ボックス、最上階、敷金不要、防犯カメラ、ペット相談、バイク置場、2沿線利用可、ルーフバルコニー、敷地内ごみ置き場、築5年以内、都市ガス、礼金1ヶ月 入居日:'26年3月末 | ||
部屋の情報
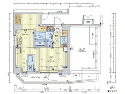
| 間取り | 1LDK | 専有面積 | 41.88m2 |
|---|---|---|---|
| 所在階 / 向き | 14階 / 南 | バルコニー面積 | - |
| 水道 / ガス | - | ||
| 設備 | バス・トイレ別、2階以上、オートロック、テレビドアホン、宅配ボックス、浴室乾燥機、システムキッチン、エアコン、エレベーター、南向き、バルコニー、フローリング、2口コンロ、洗濯機:室内 | ||
| 当社物件ID | 160424729 | ||
建物の情報
| 建物名 | レオンコンフォート池田山 14階 | ||
|---|---|---|---|
| 所在地 | 東京都品川区東五反田 | ||
| 交通 | JR山手線 五反田駅 徒歩9分 JR山手線 目黒駅 徒歩13分 東急池上線 大崎広小路駅 徒歩15分 | ||
| 階数 | 14階建 | 総戸数 | - |
| 築年月 | 2020年11月 / 築6年 | エレベーター | あり |
| 駐車場 | なし | バイク置き場 | あり |
| 駐輪場 | あり | 管理人/管理会社 | - |
| 周辺環境 | その他 アトレヴィ五反田(ショッピングセンター)まで642m その他 まいばすけっと東五反田5丁目店(スーパー)まで338m その他 ニューデイズJR目黒MARCビル(コンビニ)まで410m その他 Eki RESQ五反田(ドラッグストア)まで652m その他 ほっともっと西五反田店(飲食店)まで408m その他 私立杉野服飾大学短期大学部(大学・短大)まで895m | ||
| 建物種別 | マンション | 建物構造 | RC(鉄筋コンクリート) |
この部屋の取扱い不動産会社
| 会社名 | JTR不動産(株)(SUUMO経由) | ||
|---|---|---|---|
| 所在地 | 東京都渋谷区恵比寿南1-2-12 | 交通 | - |
| 営業時間 | 10時~19時 | 定休日 | 土日祝(内見ご相談可能です) |
| 免許番号 | 東京都知事93907 | 取引態様 | 仲介 |
| 不動産会社管理番号 | 100488579863 | 当社管理番号 | 89 |
| 取扱い物件情報 | 物件詳細へ | ||
※各種情報と現状に差異がある場合は、現状優先となります。問い合わせをすることで、より詳しい条件、情報を確認する事ができます。
提供:JTR不動産(株)(SUUMO経由)
この物件が気になったら掲載期限まであと9日
レオンコンフォート池田山 14階に条件(家賃・エリア)が近い物件一覧
| 写真 | 家賃 管理費等 | 敷金 礼金 | 間取り 専有面積 | 築年数 | 最寄り駅 所在地 | キープ | 詳細 |
|---|---|---|---|---|---|---|---|
一戸建て 京浜急行電鉄本線 梅屋敷駅(東京) 徒歩9分 築25年(3LDK) | |||||||
![]() | 20万円 なし | 20万円 20万円 | 3LDK 80.82m2 | 築25年 | 京浜急行電鉄本線 梅屋敷駅(東京) 徒歩9分 京浜東北・根岸線 蒲田駅 徒歩10分 東京都大田区大森西7丁目 | 詳細を見る | |
マンション 本間ビル(3LDK/4階) | |||||||
![]() | 18万円 5,000円 | 18万円 18万円 | 3LDK 75m2 | 築47年 | 京浜急行電鉄本線 京急蒲田駅 徒歩5分 京浜急行電鉄空港線 糀谷駅 徒歩10分 東京都大田区南蒲田1丁目 | 詳細を見る | |
マンション リバーサイドタウン木場南スカイハイツ(3LDK/10階) | |||||||
![]() | 20万円 1.5万円 | 10万円 30万円 | 3LDK 69.08m2 | 築43年 | 東京メトロ有楽町線 豊洲駅 徒歩14分 JR京葉線 潮見駅 徒歩22分 東京メトロ東西線 木場駅 徒歩24分 東京都江東区枝川 | 詳細を見る | |
タウンハウス 大田菜園長屋(2LDK) | |||||||
![]() | 15.9万円 5,000円 | 15.9万円 7.95万円 | 2LDK 52.17m2 | 築10年 | 京浜急行電鉄本線 雑色駅 徒歩8分 京浜急行電鉄本線 六郷土手駅 徒歩13分 東京都大田区東六郷3丁目 | 詳細を見る | |
一戸建て 京浜急行電鉄本線 大森町駅 徒歩14分 築23年(3LDK) | |||||||
![]() | 20万円 なし | 20万円 20万円 | 3LDK 71.86m2 | 築23年 | 京浜急行電鉄本線 大森町駅 徒歩14分 京浜急行電鉄本線 梅屋敷駅(東京) 徒歩16分 東京都大田区大森東4丁目 | 詳細を見る | |
マンション アズ亀戸レジデンス(ワンルーム/1階) | |||||||
![]() | 18万円 5,000円 | 36万円 なし | ワンルーム 31.27m2 | 築22年 | JR総武線 亀戸駅 徒歩6分 東武亀戸線 亀戸水神駅 徒歩8分 都営新宿線 大島駅(東京) 徒歩9分 東京都江東区亀戸 | 詳細を見る | |
一戸建て 東京都新宿線 大島駅(東京) 徒歩7分 築77年(1DK) | |||||||
![]() | 15.8万円 なし | 15.8万円 15.8万円 | 1DK 27.91m2 | 築77年 | 東京都新宿線 大島駅(東京) 徒歩7分 東京都新宿線 西大島駅 徒歩7分 総武・中央緩行線 亀戸駅 徒歩11分 東京都江東区大島3丁目 | 詳細を見る | |
マンション ラフィーネ大森(3LDK/3階) | |||||||
![]() | 32.9万円 2,000円 | 32.9万円 なし | 3LDK 116.22m2 | 築22年 | 京急本線 平和島駅 徒歩14分 京急本線 大森町駅 徒歩16分 JR京浜東北線 大森駅(東京) 徒歩16分 東京都大田区大森西 | 詳細を見る | |









