賃貸マンション
パークサイド古本の賃貸物件情報(3LDK/3階)
| 家賃 | 管理費等 | 敷金 | 礼金 | 間取り | 専有面積 |
|---|---|---|---|---|---|
| 8.5万円 | なし | 17万円 | 8.5万円 | 3LDK | 69m2 |
入居決定でお祝い金最大100,000円
- 保証金
- -
- 償却・敷引
- -
- 築年数
- 築28年
- 所在階
- 3階
- 向き
- 南東
Point
人気の川内、静かな住宅地。オートロック・エレベーター付きマンション。
提供:ベストハウス八木店八木興産(株)(SUUMO経由)

詳細情報 パークサイド古本
物件紹介
パークサイド古本はJR可部線七軒茶屋駅から徒歩11分にあるマンションです。
このお部屋は2階以上に位置しているので、通行人や周囲の住人からの視線が気になりにくく、防犯面でも安心。建物のエントランスはオートロックがついており、インターホンにはTVモニタもついているため、相手の顔を確認してから来客対応することができます。
人気の南向きのお部屋。バス・トイレ別の仕様で、のんびりお風呂タイムも楽しめます。
建物にはエレベーターがついているので、重い荷物があっても安心。共用部には宅配ボックスが設定されているので、不在の時にも荷物を受け取ることができます。
このお部屋は2階以上に位置しているので、通行人や周囲の住人からの視線が気になりにくく、防犯面でも安心。建物のエントランスはオートロックがついており、インターホンにはTVモニタもついているため、相手の顔を確認してから来客対応することができます。
人気の南向きのお部屋。バス・トイレ別の仕様で、のんびりお風呂タイムも楽しめます。
建物にはエレベーターがついているので、重い荷物があっても安心。共用部には宅配ボックスが設定されているので、不在の時にも荷物を受け取ることができます。
お金・契約の情報
※「-」と表示されているものは、実際は料金が発生するものもございます。詳細はお問い合わせください。
| 家賃 | 8.5万円 | 管理費・共益費 | なし |
|---|---|---|---|
| 敷金 | 17万円 | 礼金 | 8.5万円 |
| 入居決定でお祝い金最大100,000円 | |||
| 保証金 | - | 償却・敷引 | - |
| 住宅保険料 | - | 更新料 | - |
| 保証会社利用 | 必須 | 保証会社名 | 全保連 |
| 保証会社費用 | - | 保証会社備考 | 全保連利用必 初回保証委託料:月額賃料の50%(下限額20,000円) 年間保証委託料:13,000円 |
| 契約形態 | - | 契約期間 | - |
| 入居・引渡期間 | 即時 | 現況 | - |
| 契約備考 | 鍵設定料11,000円 3LDK 損保【2万円2年】 バストイレ別、バルコニー、ガスコンロ対応、シャワー付洗面台、TVインターホン、オートロック、室内洗濯置、エレベーター、洗面所独立、駐輪場、宅配ボックス、押入、即入居可、閑静な住宅地、対面式キッチン、内装リフォーム済、平坦地、敷地内ごみ置き場、平面駐車場、LDK12畳以上、都市ガス、通風良好 | ||
部屋の情報
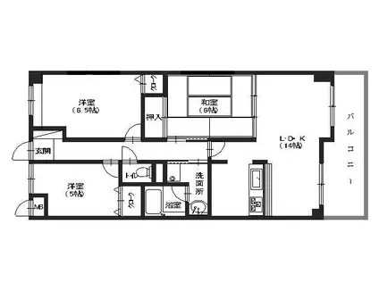
| 間取り | 3LDK | 専有面積 | 69m2 |
|---|---|---|---|
| 所在階 / 向き | 3階 / 南東 | バルコニー面積 | - |
| 水道 / ガス | - | ||
| 設備 | バス・トイレ別、2階以上、オートロック、テレビドアホン、宅配ボックス、エレベーター、南向き、バルコニー、洗髪洗面化粧台、コンロ:ガス、洗濯機:室内 | ||
| 当社物件ID | 4439039 | ||
建物の情報
| 建物名 | パークサイド古本 | ||
|---|---|---|---|
| 所在地 | 広島県広島市安佐南区川内 | ||
| 交通 | JR可部線 七軒茶屋駅 徒歩11分 JR可部線 緑井駅 徒歩16分 JR可部線 梅林駅(広島) 徒歩21分 | ||
| 階数 | 4階建 | 総戸数 | - |
| 築年月 | 1998年09月 / 築28年 | エレベーター | あり |
| 駐車場 | 空有 付無料 | バイク置き場 | - |
| 駐輪場 | あり | 管理人/管理会社 | - |
| 周辺環境 | その他 DCMダイキ川内店(ホームセンター)まで481m その他 くすりのレデイ川内店(ドラッグストア)まで247m その他 セブンイレブン広島川内店(コンビニ)まで254m その他 デイリーヤマザキ広島川内店(コンビニ)まで425m その他 川内保育園(幼稚園・保育園)まで256m その他 広島市立川内小学校(小学校)まで612m | ||
| 建物種別 | マンション | 建物構造 | RC(鉄筋コンクリート) |
この部屋の取扱い不動産会社
| 会社名 | ベストハウス八木店八木興産(株)(SUUMO経由) | ||
|---|---|---|---|
| 所在地 | 広島県広島市安佐南区八木4-3-6 | 交通 | - |
| 営業時間 | 平日9時半~18時、土日10時~18時 | 定休日 | 水曜・祝日・日曜 |
| 免許番号 | 広島県知事3843 | 取引態様 | 仲介 |
| 不動産会社管理番号 | 100483243392 | 当社管理番号 | 89 |
| 所属団体 | (公社)広島県宅地建物取引業協会会員 | ||
| 公正取引協議会 | 中国地区不動産公正取引協議会加盟 | ||
| 取扱い物件情報 | 物件詳細へ | ||
※各種情報と現状に差異がある場合は、現状優先となります。問い合わせをすることで、より詳しい条件、情報を確認する事ができます。
提供:ベストハウス八木店八木興産(株)(SUUMO経由)
この物件が気になったら掲載期限まであと10日
パークサイド古本に条件(家賃・エリア)が近い物件一覧
| 写真 | 家賃 管理費等 | 敷金 礼金 | 間取り 専有面積 | 築年数 | 最寄り駅 所在地 | キープ | 詳細 |
|---|---|---|---|---|---|---|---|
アパート リバーサイド川内I(3DK/2階) | |||||||
![]() | 7万円 なし | なし 7万円 | 3DK 60m2 | 築34年 | 芸備線 安芸矢口駅 徒歩15分 可部線 七軒茶屋駅 徒歩22分 広島県広島市安佐南区川内3丁目 | 詳細を見る | |
一戸建て アストラムライン 上安駅 徒歩5分 築38年(4SLDK) | |||||||
![]() | 7.3万円 なし | 21.9万円 7.3万円 | 4SLDK 97.71m2 | 築38年 | アストラムライン 上安駅 徒歩5分 広島県広島市安佐南区 | 詳細を見る | |
タウンハウス カタヤマC館(2LDK) | |||||||
![]() | 8.1万円 なし | 24.3万円 8.1万円 | 2LDK 68.32m2 | 築20年 | アストラムライン 大町駅(広島) 徒歩10分 可部線 大町駅(広島) 徒歩10分 広島県広島市安佐南区大町西3丁目 | 詳細を見る | |
一戸建て 可部線 緑井駅 徒歩8分 築51年(3LDK) | |||||||
![]() | 6万円 なし | 12万円 6万円 | 3LDK 73m2 | 築51年 | 可部線 緑井駅 徒歩8分 広島県広島市安佐南区緑井3丁目 | 詳細を見る | |





