賃貸マンション
プライムメゾン江古田の杜イーストの賃貸物件情報(1LDK/6階)
| 家賃 | 管理費等 | 敷金 | 礼金 | 間取り | 専有面積 |
|---|---|---|---|---|---|
| 17.8万円 | 1万円 | 17.8万円 | なし | 1LDK | 45.76m2 |
入居決定でお祝い金最大100,000円
- 保証金
- -
- 償却・敷引
- -
- 築年数
- 築8年
- 所在階
- 6階
- 向き
- 南東
Point
内見可。礼金0、フリーレント1ヶ月、仲介手数料無料。キッズスペース、多目的ルーム、スタジオ、食堂、ゲストルーム等の充実した共用スペース。カーシェアやレンタサイクルの利用も可能。
提供:シャーメゾンショップ (株)イチイ高田馬場店(SUUMO経由)

詳細情報 プライムメゾン江古田の杜イースト
物件紹介
プライムメゾン江古田の杜イーストは都営大江戸線新江古田駅から徒歩9分にあり、駅近で通勤通学に便利なマンションです。
このお部屋は2階以上に位置しているので、通行人や周囲の住人からの視線が気になりにくく、防犯面でも安心。建物のエントランスはオートロックがついており、インターホンにはTVモニタもついているため、相手の顔を確認してから来客対応することができます。
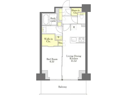
人気の南向き・フローリングのお部屋。室内にはウォークインクローゼットがありますので、たくさんの荷物も効率的に収納ができます。キッチンはシステムキッチン仕様になっていますので、お料理好きの方にもぴったり。バス・トイレは別なので、のんびりお風呂タイムも楽しめるでしょう。また、雨の日でも浴室乾燥機を使えば、お洗濯も問題ありません。
通信設備面では、インターネットが無料で使えるので、月々の出費を抑えられるのも魅力です。また、CATVにも対応しているので、おうち時間も充実するでしょう(別途工事、CATVの契約料等が必要な場合あり)。
床暖房があり、冬も足元から暖かく快適に過ごすことができます。建物にはエレベーターがついているので、重い荷物があっても安心。共用部には宅配ボックスが設定されているので、不在の時にも荷物を受け取ることができます。
このお部屋は2階以上に位置しているので、通行人や周囲の住人からの視線が気になりにくく、防犯面でも安心。建物のエントランスはオートロックがついており、インターホンにはTVモニタもついているため、相手の顔を確認してから来客対応することができます。
人気の南向き・フローリングのお部屋。室内にはウォークインクローゼットがありますので、たくさんの荷物も効率的に収納ができます。キッチンはシステムキッチン仕様になっていますので、お料理好きの方にもぴったり。バス・トイレは別なので、のんびりお風呂タイムも楽しめるでしょう。また、雨の日でも浴室乾燥機を使えば、お洗濯も問題ありません。
通信設備面では、インターネットが無料で使えるので、月々の出費を抑えられるのも魅力です。また、CATVにも対応しているので、おうち時間も充実するでしょう(別途工事、CATVの契約料等が必要な場合あり)。
床暖房があり、冬も足元から暖かく快適に過ごすことができます。建物にはエレベーターがついているので、重い荷物があっても安心。共用部には宅配ボックスが設定されているので、不在の時にも荷物を受け取ることができます。
お金・契約の情報
※「-」と表示されているものは、実際は料金が発生するものもございます。詳細はお問い合わせください。
| 家賃 | 17.8万円 | 管理費・共益費 | 1万円 |
|---|---|---|---|
| 敷金 | 17.8万円 | 礼金 | なし |
| フリーレント | あり | ||
| 入居決定でお祝い金最大100,000円 | |||
| 保証金 | - | 償却・敷引 | - |
| 住宅保険料 | - | 更新料 | - |
| 保証会社利用 | 必須 | 保証会社名 | - |
| 保証会社費用 | - | 保証会社備考 | 保証会社利用必 【らくらくパートナー(アプラス)】 契約事務手数料:33000円(入居後、初回家賃引き落とし時) 継続保証料:(賃料+管理費+シャーメゾンライフSUPPORT24)×2%/月 ※法人契約の場合は個別にご相談ください。 |
| 契約形態 | 定期借家 | 契約期間 | 2年 |
| 入居・引渡期間 | 即時 | 現況 | - |
| 契約備考 | 常駐管理/江古田の杜リブインラボ協議会費として月額200円ご負担いただきます(契約期間分一括払い、中途解約による返戻金無し)。シャーメゾンライフSUPPORT24加入費として月額1320円かかります。退室時、借主様にハウスクリーニング代として79750円(税込)をご負担いただきます。再契約時には、礼金として新賃料の1ヶ月分がかかります。短期解約違約金設定有り(1年未満で解約の場合、賃料の1ヶ月分)。 合計2.75万円(内訳:鍵交換代2.75万円) 室内清掃費用 79750円 シャーメゾンライフSUPPORT 月額1320円 1LDK 二人入居可/子供可/事務所利用不可/フリーレント1ヶ月管理費は対象外。契約開始から1年以内に解約の場合は、免除された賃料と同額の違約金支払い発生。 定期借家2年 損保【要】 バストイレ別、バルコニー、エアコン、ガスコンロ対応、TVインターホン、浴室乾燥機、オートロック、室内洗濯置、システムキッチン、追焚機能浴室、温水洗浄便座、脱衣所、エレベーター、洗面所独立、洗面化粧台、駐輪場、宅配ボックス、CATV、光ファイバー、即入居可、礼金不要、3口以上コンロ、防犯カメラ、グリル付、ウォークインクロゼット、保証人不要、仲介手数料不要、敷金1ヶ月、バイク置場、全居室フローリング、エアコン2台、ディンプルキー、ネット使用料不要、フリーレント、エアコン全室、ダブルロックキー、24時間換気システム、複層ガラス、フロントサービス、ミストサウナ、3駅以上利用可、3沿線以上利用可、駅徒歩10分以内、ゲストルーム、風除室、敷地内ごみ置き場、東南向き、当社管理物件、都市ガス、洗面所にドア、室内物干機、シューズWIC、保証会社利用可、IT重説対応物件、初期費用カード決済可 | ||
部屋の情報
| 間取り | 1LDK | 専有面積 | 45.76m2 |
|---|---|---|---|
| 所在階 / 向き | 6階 / 南東 | バルコニー面積 | - |
| 水道 / ガス | - | ||
| 設備 | バス・トイレ別、2階以上、オートロック、テレビドアホン、宅配ボックス、浴室乾燥機、ウォークインクローゼット、追い焚き、インターネット対応、システムキッチン、エアコン、エレベーター、温水洗浄便座、南向き、バルコニー、フローリング、洗髪洗面化粧台、2口コンロ、コンロ:ガス、CATV、インターネット使用料無料、洗濯機:室内 | ||
| 当社物件ID | 27961401 | ||
建物の情報
| 建物名 | プライムメゾン江古田の杜イースト | ||
|---|---|---|---|
| 所在地 | 東京都中野区江古田 | ||
| 交通 | 都営大江戸線 新江古田駅 徒歩9分 西武新宿線 沼袋駅 徒歩15分 JR中央線 中野駅(東京) バス乗車時間:22分 最寄りバス停で下車 徒歩5分 | ||
| 階数 | 14階建 | 総戸数 | 175戸 |
| 築年月 | 2018年08月 / 築8年 | エレベーター | あり |
| 駐車場 | 空有 33000円/機械式駐 | バイク置き場 | あり |
| 駐輪場 | あり | 管理人/管理会社 | - |
| 周辺環境 | その他 マルマンストア 江古田店(スーパー)まで238m その他 サミットストア 江原町店(スーパー)まで415m その他 コモディイイダ 沼袋店(スーパー)まで628m その他 ファミリーマート 中野江古田の杜店(コンビニ)まで150m その他 どらっぐぱぱす 新江古田駅前店(ドラッグストア)まで654m その他 江古田の森公園(公園)まで546m | ||
| 建物種別 | マンション | 建物構造 | RC(鉄筋コンクリート) |
この部屋の取扱い不動産会社
| 会社名 | (株)イチイ国際部(SUUMO経由) | ||
|---|---|---|---|
| 所在地 | 東京都新宿区高田馬場2-2-3 ハードビル1階 | 交通 | - |
| 営業時間 | 10:00~18:30 | 定休日 | 水曜、第1・第2・第3火曜 |
| 免許番号 | 東京都知事39368 | 取引態様 | 仲介 |
| 不動産会社管理番号 | 100457711636 | 当社管理番号 | 89 |
| 所属団体 | (公社)全日本不動産協会東京都本部会員 | ||
| 公正取引協議会 | (公社)首都圏不動産公正取引協議会加盟 | ||
| 取扱い物件情報 | 物件詳細へ | ||
※各種情報と現状に差異がある場合は、現状優先となります。問い合わせをすることで、より詳しい条件、情報を確認する事ができます。
提供:(株)イチイ国際部(SUUMO経由)
この物件が気になったら掲載期限まであと11日
プライムメゾン江古田の杜イーストに条件(家賃・エリア)が近い物件一覧
| 写真 | 家賃 管理費等 | 敷金 礼金 | 間取り 専有面積 | 築年数 | 最寄り駅 所在地 | キープ | 詳細 |
|---|---|---|---|---|---|---|---|
マンション パレステュディオ渋谷本町(1K/7階) | |||||||
![]() | 12.7万円 1.1万円 | なし 12.7万円 | 1K 25.65m2 | 築22年 | 都営大江戸線 西新宿五丁目駅 徒歩4分 京王新線 初台駅 徒歩12分 東京メトロ丸ノ内線 中野坂上駅 徒歩14分 東京都渋谷区本町 | 詳細を見る | |
マンション アーバス新宿余丁町(1LDK/3階) | |||||||
![]() | 23.3万円 1.2万円 | 23.3万円 なし | 1LDK 41.67m2 | 築19年 | 都営大江戸線 若松河田駅 徒歩6分 都営大江戸線 東新宿駅 徒歩8分 都営新宿線 曙橋駅 徒歩9分 東京都新宿区余丁町 | 詳細を見る | |
マンション オアーゼ新宿市谷薬王寺(1LDK/6階) | |||||||
![]() | 21万円 1万円 | 21万円 31.5万円 | 1LDK 37m2 | 築4年 | 都営大江戸線 牛込柳町駅 徒歩6分 都営新宿線 曙橋駅 徒歩7分 都営大江戸線 牛込神楽坂駅 徒歩18分 東京都新宿区市谷薬王寺町 | 詳細を見る | |
マンション パレステュディオ新宿パークサイド(1K/3階) | |||||||
![]() | 13.2万円 1.1万円 | なし 13.2万円 | 1K 22.68m2 | 築23年 | 都営大江戸線 西新宿五丁目駅 徒歩1分 東京メトロ丸ノ内線 西新宿駅 徒歩10分 JR山手線 新宿駅 徒歩15分 東京都新宿区西新宿 | 詳細を見る | |
マンション リヴシティ中野(1LDK/6階) | |||||||
![]() | 17万円 1万円 | なし 17万円 | 1LDK 39.79m2 | 築14年 | 東京地下鉄丸ノ内線 新中野駅 徒歩9分 東京都中野区中野2丁目 | 詳細を見る | |
アパート セレスティア松が丘(3LDK/1階) | |||||||
![]() | 24.7万円 6,000円 | なし なし | 3LDK 59.02m2 | 築1年 | 西武鉄道新宿線 新井薬師前駅 徒歩5分 東京都中野区松が丘2丁目 | 詳細を見る | |
マンション プライムメゾン早稲田通(ワンルーム/9階) | |||||||
![]() | 15.5万円 1万円 | 15.5万円 なし | ワンルーム 25m2 | 築6年 | 東京メトロ東西線 早稲田駅(メトロ) 徒歩3分 東京メトロ東西線 神楽坂駅 徒歩11分 東京メトロ有楽町線 江戸川橋駅 徒歩13分 東京都新宿区早稲田町 | 詳細を見る | |
マンション プライムアーバン南池袋(ワンルーム/5階) | |||||||
![]() | 14.2万円 6,000円 | 14.2万円 14.2万円 | ワンルーム 30.72m2 | 築20年 | 東京メトロ有楽町線 東池袋駅 徒歩2分 JR山手線 池袋駅 徒歩5分 JR埼京線 池袋駅 徒歩5分 東京都豊島区南池袋 | 詳細を見る | |





/105x80-f1-q70-wp1)


