賃貸アパート
アドベントの賃貸物件情報(2LDK/2階)
| 家賃 | 管理費等 | 敷金 | 礼金 | 間取り | 専有面積 |
|---|---|---|---|---|---|
| 6.9万円 | なし | 6.9万円 | なし | 2LDK | 55.46m2 |
入居決定でお祝い金最大100,000円
Point
周辺にDS・CS・HC・スーパーなど生活に必要な店舗が揃っております。エアコン、照明器具、温水洗浄便座、2台目P有。※6ヶ月以下の短期契約は不可です。仲介手数料無料!【NEW】無料WiFi新設☆
提供:岩手総業(株)(SUUMO経由)

詳細情報 アドベント
物件紹介
アドベントは三陸鉄道リアス線盛駅から徒歩23分にあるアパートです。
このお部屋は2階以上に位置しているので、通行人や周囲の住人からの視線が気になりにくく、防犯面でも安心です。
人気の南向き・フローリングのお部屋。室内にはウォークインクローゼットがありますので、たくさんの荷物も効率的に収納ができます。バス・トイレ別の仕様で、のんびりお風呂タイムも楽しめます。
通信設備面では、インターネットが無料で使えるので、月々の出費を抑えられるのも魅力です。また、BSアンテナもありますので、おうち時間も充実するでしょう(別途工事、BSの契約料等が必要な場合あり)。
このお部屋は2階以上に位置しているので、通行人や周囲の住人からの視線が気になりにくく、防犯面でも安心です。
人気の南向き・フローリングのお部屋。室内にはウォークインクローゼットがありますので、たくさんの荷物も効率的に収納ができます。バス・トイレ別の仕様で、のんびりお風呂タイムも楽しめます。
通信設備面では、インターネットが無料で使えるので、月々の出費を抑えられるのも魅力です。また、BSアンテナもありますので、おうち時間も充実するでしょう(別途工事、BSの契約料等が必要な場合あり)。
お金・契約の情報
※「-」と表示されているものは、実際は料金が発生するものもございます。詳細はお問い合わせください。
| 家賃 | 6.9万円 | 管理費・共益費 | なし |
|---|---|---|---|
| 敷金 | 6.9万円 | 礼金 | なし |
| 入居決定でお祝い金最大100,000円 | |||
| 保証金 | - | 償却・敷引 | - |
| 住宅保険料 | - | 更新料 | - |
| 契約形態 | - | 契約期間 | - |
| 入居・引渡期間 | - | 現況 | - |
| 契約備考 | 巡回管理 2LDK 事務所利用不可/ルームシェア不可 損保【要】 バストイレ別、バルコニー、エアコン、ガスコンロ対応、クロゼット、フローリング、シューズボックス、追焚機能浴室、温水洗浄便座、脱衣所、洗面所独立、洗面化粧台、礼金不要、最上階、照明付、駐車場1台無料、全居室洋室、ウォークインクロゼット、駐車2台可、仲介手数料不要、敷金1ヶ月、全居室フローリング、ディンプルキー、駅まで平坦、ネット使用料不要、複層ガラス、平坦地、リバーサイド、初期費用20万円以下、階段下収納、東南向き、全居室6畳以上、プロパンガス、洗面所にドア、BS、保証会社利用可、IT重説対応物件、初期費用カード決済可、全室照明付 入居日:'26年1月初旬 | ||
部屋の情報
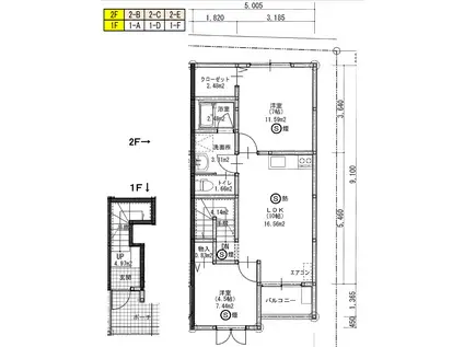
| 間取り | 2LDK | 専有面積 | 55.46m2 |
|---|---|---|---|
| 所在階 / 向き | 2階 / 南東 | バルコニー面積 | 2m2 |
| 水道 / ガス | - | ||
| 設備 | バス・トイレ別、2階以上、ウォークインクローゼット、追い焚き、インターネット対応、エアコン、温水洗浄便座、南向き、バルコニー、フローリング、洗髪洗面化粧台、コンロ:ガス、BSアンテナ、インターネット使用料無料 | ||
| 当社物件ID | 115932502 | ||
建物の情報
| 建物名 | アドベント | ||
|---|---|---|---|
| 所在地 | 岩手県大船渡市赤崎町諏訪前 | ||
| 交通 | 三陸鉄道リアス線 盛駅 徒歩23分 | ||
| 階数 | 2階建 | 総戸数 | 6戸 |
| 築年月 | 2013年03月 / 築13年 | エレベーター | - |
| 駐車場 | 空有 駐2台可 | バイク置き場 | - |
| 駐輪場 | - | 管理人/管理会社 | - |
| 周辺環境 | その他 MAIYA赤崎店(スーパー)まで459m その他 ローソン大船渡中井沢店(コンビニ)まで865m その他 ツルハドラッグ大船渡赤崎店(ドラッグストア)まで82m その他 サンデー大船渡店(ホームセンター)まで257m その他 岩手県立大船渡病院(病院)まで2693m その他 大船渡市役所(役所)まで1979m | ||
| 建物種別 | アパート | 建物構造 | 木造 |
この部屋の取扱い不動産会社
| 会社名 | 岩手総業(株)(SUUMO経由) | ||
|---|---|---|---|
| 所在地 | 岩手県大船渡市盛町字内ノ目 4-9 | 交通 | - |
| 営業時間 | 9:00~18:00 | 定休日 | 日曜・祝日 |
| 免許番号 | 岩手県知事1575 | 取引態様 | 仲介 |
| 不動産会社管理番号 | 100372247697 | 当社管理番号 | 89 |
| 所属団体 | (一社)岩手県宅地建物取引業協会会員 | ||
| 公正取引協議会 | 東北地区不動産公正取引協議会加盟 | ||
| 取扱い物件情報 | 物件詳細へ | ||
※各種情報と現状に差異がある場合は、現状優先となります。問い合わせをすることで、より詳しい条件、情報を確認する事ができます。
提供:岩手総業(株)(SUUMO経由)
この物件が気になったら掲載期限まであと4日
アドベントに条件(家賃・エリア)が近い物件一覧
| 写真 | 家賃 管理費等 | 敷金 礼金 | 間取り 専有面積 | 築年数 | 最寄り駅 所在地 | キープ | 詳細 |
|---|---|---|---|---|---|---|---|
アパート サンポート(1LDK/1階) | |||||||
![]() | 5万円 3,000円 | 5万円 なし | 1LDK 45.09m2 | 築13年 | 三陸鉄道リアス線 盛駅 徒歩255分 岩手県陸前高田市竹駒町相川 | 詳細を見る | |
アパート ソレイユ・フルールIII(2LDK/2階) | |||||||
![]() | 6.3万円 4,100円 | なし 6.3万円 | 2LDK 61.96m2 | 築8年 | 岩手県大船渡市立根町猫足 | 詳細を見る | |
アパート フォー・クラブ・タウンA(2LDK/2階) | |||||||
![]() | 6.05万円 2,800円 | 6.05万円 なし | 2LDK 58.58m2 | 築20年 | JR釜石線 松倉駅 徒歩8分 岩手県釜石市甲子町第9地割 | 詳細を見る | |
アパート レフィーノ(2LDK/2階) | |||||||
![]() | 6.15万円 2,300円 | なし 8.15万円 | 2LDK 57.63m2 | 築15年 | 三陸鉄道リアス線 平田駅(岩手) 徒歩15分 岩手県釜石市大字平田第2地割 | 詳細を見る | |
アパート ヴァンヴールレーガ(1LDK/1階) | |||||||
![]() | 5.8万円 3,000円 | 5.8万円 なし | 1LDK 37.07m2 | 築11年 | JR釜石線 小佐野駅 徒歩15分 JR釜石線 釜石駅 徒歩36分 岩手県釜石市礼ケ口町 | 詳細を見る | |
アパート プラシードβ(2LDK/2階) | |||||||
![]() | 5.7万円 2,300円 | なし 5.7万円 | 2LDK 55.81m2 | 築18年 | 三陸鉄道リアス線 平田駅(岩手) 徒歩17分 岩手県釜石市大字平田第2地割 | 詳細を見る | |
アパート カーサデルマーレ(1LDK/1階) | |||||||
![]() | 6.2万円 なし | 12.4万円 なし | 1LDK 33.67m2 | 築10年 | JR釜石線 松倉駅 徒歩12分 岩手県釜石市甲子町第10地割 | 詳細を見る | |
マンション ビレッジハウス釜石1号棟(3DK/1階) | |||||||
![]() | 4.72万円 なし | なし なし | 3DK 57.96m2 | 築60年 | 釜石線 小佐野駅 徒歩18分 岩手県釜石市野田町5丁目 | 詳細を見る | |









