賃貸マンション
アークマーク東大井の賃貸物件情報(1DK/4階)
| 家賃 | 管理費等 | 敷金 | 礼金 | 間取り | 専有面積 |
|---|---|---|---|---|---|
| 13.2万円 | 1.5万円 | なし | なし | 1DK | 25.58m2 |
入居決定でお祝い金最大100,000円
- 保証金
- -
- 償却・敷引
- -
- 築年数
- 築1年
- 所在階
- 4階
- 向き
- 南
Point
当物件は初期費用分割払い可(クレジットカード決済も可)/お客様のご希望に合わせた方法(店頭、オンライン等)で物件をご提案いたします。初期費用のお見積りや入居希望日のご相談もお気軽にお問い合わせください
提供:アエラス目黒店 (株)アエラス.FR(SUUMO経由)

詳細情報 アークマーク東大井
物件紹介
アークマーク東大井は京急本線立会川駅から徒歩6分にあり、駅近で通勤通学に便利なマンションです。
このお部屋は2階以上に位置しているので、通行人や周囲の住人からの視線が気になりにくく、防犯面でも安心。建物のエントランスはオートロックがついており、インターホンにはTVモニタもついているため、相手の顔を確認してから来客対応することができます。
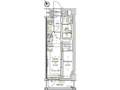
人気の南向きのお部屋。室内にはウォークインクローゼットがありますので、たくさんの荷物も効率的に収納ができます。キッチンはシステムキッチン仕様になっていますので、お料理好きの方にもぴったり。バス・トイレは別なので、のんびりお風呂タイムも楽しめるでしょう。また、雨の日でも浴室乾燥機を使えば、お洗濯も問題ありません。
通信設備面では、インターネットが無料で使えるので、月々の出費を抑えられるのも魅力です(別途工事等が必要な場合あり)。
建物にはエレベーターがついているので、重い荷物があっても安心。共用部には宅配ボックスが設定されているので、不在の時にも荷物を受け取ることができます。
このお部屋は2階以上に位置しているので、通行人や周囲の住人からの視線が気になりにくく、防犯面でも安心。建物のエントランスはオートロックがついており、インターホンにはTVモニタもついているため、相手の顔を確認してから来客対応することができます。
人気の南向きのお部屋。室内にはウォークインクローゼットがありますので、たくさんの荷物も効率的に収納ができます。キッチンはシステムキッチン仕様になっていますので、お料理好きの方にもぴったり。バス・トイレは別なので、のんびりお風呂タイムも楽しめるでしょう。また、雨の日でも浴室乾燥機を使えば、お洗濯も問題ありません。
通信設備面では、インターネットが無料で使えるので、月々の出費を抑えられるのも魅力です(別途工事等が必要な場合あり)。
建物にはエレベーターがついているので、重い荷物があっても安心。共用部には宅配ボックスが設定されているので、不在の時にも荷物を受け取ることができます。
お金・契約の情報
※「-」と表示されているものは、実際は料金が発生するものもございます。詳細はお問い合わせください。
| 家賃 | 13.2万円 | 管理費・共益費 | 1.5万円 |
|---|---|---|---|
| 敷金 | なし | 礼金 | なし |
| 入居決定でお祝い金最大100,000円 | |||
| 保証金 | - | 償却・敷引 | - |
| 住宅保険料 | - | 更新料 | - |
| 保証会社利用 | 必須 | 保証会社名 | - |
| 保証会社費用 | - | 保証会社備考 | 保証会社利用必 初回:賃料等の40~50% |
| 契約形態 | - | 契約期間 | - |
| 入居・引渡期間 | 即時 | 現況 | - |
| 契約備考 | 東芝病院まで365m/林医院まで313m/バイク置き場空有5500円駐輪場有り550円保険料20000円2年(当社指定)/1年未満の解約で賃料1ヶ月分の違約金あり/室内清掃費用借主負担 1DK 普通借家2年 損保【要】 バストイレ別、バルコニー、エアコン、ガスコンロ対応、TVインターホン、浴室乾燥機、オートロック、室内洗濯置、システムキッチン、南向き、温水洗浄便座、脱衣所、エレベーター、洗面所独立、洗面化粧台、2口コンロ、駐輪場、宅配ボックス、光ファイバー、外壁タイル張り、即入居可、防犯カメラ、ウォークインクロゼット、バイク置場、ネット使用料不要、保証金不要、外壁コンクリート、3駅以上利用可、3沿線以上利用可、駅徒歩10分以内、敷地内ごみ置き場、都市ガス、高速ネット対応、敷金・礼金不要、初期費用カード決済可 | ||
部屋の情報
| 間取り | 1DK | 専有面積 | 25.58m2 |
|---|---|---|---|
| 所在階 / 向き | 4階 / 南 | バルコニー面積 | - |
| 水道 / ガス | - | ||
| 設備 | バス・トイレ別、2階以上、オートロック、テレビドアホン、宅配ボックス、浴室乾燥機、ウォークインクローゼット、インターネット対応、システムキッチン、エアコン、エレベーター、温水洗浄便座、南向き、バルコニー、洗髪洗面化粧台、2口コンロ、コンロ:ガス、インターネット使用料無料、洗濯機:室内 | ||
| 当社物件ID | 159604447 | ||
建物の情報
| 建物名 | アークマーク東大井 | ||
|---|---|---|---|
| 所在地 | 東京都品川区東大井 | ||
| 交通 | 京急本線 立会川駅 徒歩6分 JR京浜東北線 大井町駅 徒歩11分 東急大井町線 大井町駅 徒歩14分 | ||
| 階数 | 5階建 | 総戸数 | 62戸 |
| 築年月 | 2025年08月 / 築1年 | エレベーター | あり |
| 駐車場 | 近隣 474m22000円 | バイク置き場 | あり |
| 駐輪場 | あり | 管理人/管理会社 | - |
| 周辺環境 | その他 阪急大井町ガーデン(ショッピングセンター)まで900m その他 まいばすけっと立会川駅北店(スーパー)まで383m その他 ファミリーマート東大井三丁目店(コンビニ)まで212m その他 スギ薬局南大井店(ドラッグストア)まで451m その他 ヤマダ電機LABI品川大井町住まいる家電館(ホームセンター)まで751m その他 スターバックスコーヒー 大井町駅東口店(飲食店)まで682m | ||
| 建物種別 | マンション | 建物構造 | RC(鉄筋コンクリート) |
この部屋の取扱い不動産会社
| 会社名 | アエラス目黒店 (株)アエラス.FR(SUUMO経由) | ||
|---|---|---|---|
| 所在地 | 東京都目黒区目黒1-4-8 東レクビル 5階 | 交通 | - |
| 営業時間 | 10:00~19:00(時間外対応出来る場合有り) | 定休日 | 年中無休(年末年始などを除く) |
| 免許番号 | 国土交通大臣10206 | 取引態様 | 仲介 |
| 不動産会社管理番号 | 100463748000 | 当社管理番号 | 89 |
| 所属団体 | (公社)全日本不動産協会東京都本部会員 | ||
| 公正取引協議会 | (公社)首都圏不動産公正取引協議会加盟 | ||
| 取扱い物件情報 | 物件詳細へ | ||
※各種情報と現状に差異がある場合は、現状優先となります。問い合わせをすることで、より詳しい条件、情報を確認する事ができます。
提供:アエラス目黒店 (株)アエラス.FR(SUUMO経由)
この物件が気になったら掲載期限まであと10日
アークマーク東大井に条件(家賃・エリア)が近い物件一覧
| 写真 | 家賃 管理費等 | 敷金 礼金 | 間取り 専有面積 | 築年数 | 最寄り駅 所在地 | キープ | 詳細 |
|---|---|---|---|---|---|---|---|
マンション ラ・ルーナ(1K/3階) | |||||||
![]() | 9.2万円 3,000円 | 9.2万円 なし | 1K 28.13m2 | 築15年 | 京急本線 梅屋敷駅(東京) 徒歩9分 JR京浜東北線 蒲田駅 徒歩13分 京急本線 京急蒲田駅 徒歩13分 東京都大田区蒲田 | 詳細を見る | |
マンション フルールメゾン(2LDK/4階) | |||||||
![]() | 16.6万円 7,200円 | 16.6万円 16.6万円 | 2LDK 57.68m2 | 築24年 | 京急本線 六郷土手駅 徒歩1分 京急本線 雑色駅 徒歩17分 京急本線 京急川崎駅 徒歩24分 東京都大田区仲六郷 | 詳細を見る | |
マンション SEED JUST B-BASE II(1LDK/1階) | |||||||
![]() | 10.1万円 1.5万円 | 10.1万円 10.1万円 | 1LDK 27.92m2 | 新築 | 東京モノレール 昭和島駅 徒歩11分 京急本線 梅屋敷駅(東京) 徒歩19分 東京都大田区大森南 | 詳細を見る | |
マンション ドゥーエ西馬込2(2LDK/1階) | |||||||
![]() | 17.5万円 2万円 | 17.5万円 なし | 2LDK 45.34m2 | 築2年 | 都営浅草線 西馬込駅 徒歩10分 都営浅草線 馬込駅 徒歩20分 東急池上線 洗足池駅 徒歩24分 東京都大田区仲池上 | 詳細を見る | |
アパート SEED SAVE PETIRASU Ⅲ(1LDK/1階) | |||||||
![]() | 11.5万円 1万円 | 23万円 11.5万円 | 1LDK 30.55m2 | 新築 | 東京モノレール羽田 昭和島駅 徒歩12分 京浜急行電鉄本線 大森町駅 徒歩18分 東京都大田区大森東5丁目 | 詳細を見る | |
マンション プライマル西大島駅前(1DK/11階) | |||||||
![]() | 12.9万円 5,000円 | 12.9万円 なし | 1DK 25.28m2 | 築4年 | 都営新宿線 西大島駅 徒歩2分 東京メトロ半蔵門線 住吉駅(東京) 徒歩10分 JR総武線 亀戸駅 徒歩14分 東京都江東区大島 | 詳細を見る | |
マンション ESTRUTH MAGOME(1K/1階) | |||||||
![]() | 12.6万円 1万円 | なし なし | 1K 25.96m2 | 築1年 | 都営浅草線 馬込駅 徒歩6分 JR横須賀線 西大井駅 徒歩18分 東京都大田区南馬込 | 詳細を見る | |
マンション BRILLIA IST清澄白河(1K/5階) | |||||||
![]() | 13.7万円 1万円 | 13.7万円 13.7万円 | 1K 26.16m2 | 築8年 | 東京地下鉄半蔵門線 清澄白河駅 徒歩4分 東京都大江戸線 清澄白河駅 徒歩7分 東京都新宿線 菊川駅(東京) 徒歩10分 東京都江東区白河3丁目 | 詳細を見る | |









