賃貸マンション
レジディア錦糸町IIの賃貸物件情報(ワンルーム/3階)
| 家賃 | 管理費等 | 敷金 | 礼金 | 間取り | 専有面積 |
|---|---|---|---|---|---|
| 11万円 | 1万円 | なし | なし | ワンルーム | 25.2m2 |
入居決定でお祝い金最大100,000円
- 保証金
- -
- 償却・敷引
- -
- 築年数
- 築19年
- 所在階
- 3階
- 向き
- 西
Point
総武線・半蔵門線・都営新宿線エリアに特化した不動産店!オンライン対応可、夜23時までご相談可能。男女スタッフが在籍しているので、初めての方も安心してご利用いただけます。お忙しい方でも柔軟に対応します!
提供:(株)CHOU CHOU不動産(SUUMO経由)

詳細情報 レジディア錦糸町II
物件紹介
レジディア錦糸町IIはJR総武線錦糸町駅から徒歩8分にあり、駅近で通勤通学に便利なマンションです。
このお部屋は2階以上に位置しているので、通行人や周囲の住人からの視線が気になりにくく、防犯面でも安心。建物のエントランスはオートロックがついており、インターホンにはTVモニタもついているため、相手の顔を確認してから来客対応することができます。
フローリングのお部屋なのでお掃除もラクラク。キッチンはシステムキッチン仕様になっていますので、お料理好きの方にもぴったり。バス・トイレは別なので、のんびりお風呂タイムも楽しめるでしょう。また、雨の日でも浴室乾燥機を使えば、お洗濯も問題ありません。
建物にはエレベーターがついているので、重い荷物があっても安心。共用部には宅配ボックスが設定されているので、不在の時にも荷物を受け取ることができます。
このお部屋は2階以上に位置しているので、通行人や周囲の住人からの視線が気になりにくく、防犯面でも安心。建物のエントランスはオートロックがついており、インターホンにはTVモニタもついているため、相手の顔を確認してから来客対応することができます。
フローリングのお部屋なのでお掃除もラクラク。キッチンはシステムキッチン仕様になっていますので、お料理好きの方にもぴったり。バス・トイレは別なので、のんびりお風呂タイムも楽しめるでしょう。また、雨の日でも浴室乾燥機を使えば、お洗濯も問題ありません。
建物にはエレベーターがついているので、重い荷物があっても安心。共用部には宅配ボックスが設定されているので、不在の時にも荷物を受け取ることができます。
お金・契約の情報
※「-」と表示されているものは、実際は料金が発生するものもございます。詳細はお問い合わせください。
| 家賃 | 11万円 | 管理費・共益費 | 1万円 |
|---|---|---|---|
| 敷金 | なし | 礼金 | なし |
| 入居決定でお祝い金最大100,000円 | |||
| 保証金 | - | 償却・敷引 | - |
| 住宅保険料 | - | 更新料 | - |
| 保証会社利用 | 必須 | 保証会社名 | - |
| 保証会社費用 | - | 保証会社備考 | 保証会社利用必 備考:初回契約時:40%、更新時:1万円、月額:千円 |
| 契約形態 | - | 契約期間 | - |
| 入居・引渡期間 | 即時 | 現況 | - |
| 契約備考 | 更新料:1ヶ月(新賃料) ワンルーム 普通借家2年 損保【2.15万円2年】 バストイレ別、エアコン、フローリング、TVインターホン、浴室乾燥機、オートロック、室内洗濯置、システムキッチン、エレベーター、洗面所独立、駐輪場、宅配ボックス、即入居可、防犯カメラ、バイク置場、2沿線利用可、2駅利用可、駅徒歩10分以内、敷地内ごみ置き場 | ||
部屋の情報
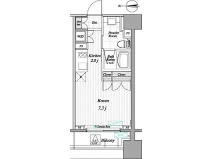
| 間取り | ワンルーム | 専有面積 | 25.2m2 |
|---|---|---|---|
| 所在階 / 向き | 3階 / 西 | バルコニー面積 | - |
| 水道 / ガス | - | ||
| 設備 | バス・トイレ別、2階以上、オートロック、テレビドアホン、宅配ボックス、浴室乾燥機、システムキッチン、エアコン、エレベーター、フローリング、洗髪洗面化粧台、洗濯機:室内 | ||
| 当社物件ID | 102297874 | ||
建物の情報
| 建物名 | レジディア錦糸町II | ||
|---|---|---|---|
| 所在地 | 東京都墨田区緑 | ||
| 交通 | JR総武線 錦糸町駅 徒歩8分 都営新宿線 菊川駅(東京) 徒歩13分 都営大江戸線 両国駅 徒歩15分 | ||
| 階数 | 14階建 | 総戸数 | - |
| 築年月 | 2008年01月 / 築19年 | エレベーター | あり |
| 駐車場 | 空有 33000円 | バイク置き場 | あり |
| 駐輪場 | あり | 管理人/管理会社 | - |
| 周辺環境 | その他 アルカキット錦糸町(ショッピングセンター)まで607m その他 セブンイレブン墨田緑4丁目店(コンビニ)まで142m その他 どらっぐぱぱす両国店(ドラッグストア)まで544m その他 タリーズコーヒー錦糸町アルカウエスト店(飲食店)まで379m その他 墨田江東橋郵便局(郵便局)まで359m その他 まいばすけっと錦糸町駅西店(スーパー)まで294m | ||
| 建物種別 | マンション | 建物構造 | RC(鉄筋コンクリート) |
この部屋の取扱い不動産会社
| 会社名 | (株)CHOU CHOU不動産(SUUMO経由) | ||
|---|---|---|---|
| 所在地 | 東京都江東区毛利1-21-9 三善ビル3階 | 交通 | - |
| 営業時間 | 9時から20時 | 定休日 | なし |
| 免許番号 | 東京都知事110882 | 取引態様 | 仲介 |
| 不動産会社管理番号 | 100476918362 | 当社管理番号 | 89 |
| 所属団体 | (公社)全日本不動産協会東京都本部会員 | ||
| 公正取引協議会 | (公社)首都圏不動産公正取引協議会加盟 | ||
| 取扱い物件情報 | 物件詳細へ | ||
※各種情報と現状に差異がある場合は、現状優先となります。問い合わせをすることで、より詳しい条件、情報を確認する事ができます。
提供:(株)CHOU CHOU不動産(SUUMO経由)
この物件が気になったら掲載期限まであと4日
レジディア錦糸町IIに条件(家賃・エリア)が近い物件一覧
| 写真 | 家賃 管理費等 | 敷金 礼金 | 間取り 専有面積 | 築年数 | 最寄り駅 所在地 | キープ | 詳細 |
|---|---|---|---|---|---|---|---|
マンション SYFORME MONZEN-NAKACHO(1DK/1階) | |||||||
![]() | 12.4万円 1万円 | 12.4万円 12.4万円 | 1DK 28.2m2 | 築6年 | 東京メトロ東西線 門前仲町駅 徒歩5分 都営大江戸線 門前仲町駅 徒歩5分 JR京葉線 越中島駅 徒歩10分 東京都江東区永代 | 詳細を見る | |
マンション プレール・ドゥーク浅草Ⅳ(1LDK/8階) | |||||||
![]() | 17万円 1万円 | なし 17万円 | 1LDK 40.32m2 | 築7年 | 東武伊勢崎・大師線 浅草駅(東武・都営・メトロ) 徒歩8分 東京地下鉄銀座線 浅草駅(東武・都営・メトロ) 徒歩9分 東京地下鉄日比谷線 入谷駅(東京) 徒歩19分 東京都台東区浅草3丁目 | 詳細を見る | |
マンション アーバンパーク浅草2(1K/7階) | |||||||
![]() | 11.5万円 1万円 | なし なし | 1K 25.62m2 | 築3年 | 東武伊勢崎・大師線 浅草駅(東武・都営・メトロ) 徒歩12分 東京地下鉄銀座線 浅草駅(東武・都営・メトロ) 徒歩14分 東京都浅草線 浅草駅(東武・都営・メトロ) 徒歩14分 東京都台東区今戸1丁目 | 詳細を見る | |
マンション プラウドフラット両国イースト(1K/8階) | |||||||
![]() | 12.9万円 1万円 | 12.9万円 なし | 1K 25.12m2 | 築5年 | 東京都大江戸線 両国駅 徒歩8分 東京都新宿線 菊川駅(東京) 徒歩11分 総武・中央緩行線 両国駅 徒歩13分 東京都墨田区緑3丁目 | 詳細を見る | |
マンション 鈴木ビル(1K/1階) | |||||||
![]() | 7万円 3,000円 | 7万円 7万円 | 1K 26.17m2 | 築45年 | 東京地下鉄千代田線 町屋駅 徒歩8分 東京都荒川線 町屋駅前駅 徒歩8分 京成電鉄本線 町屋駅 徒歩10分 東京都荒川区町屋三丁目 | 詳細を見る | |
マンション GENOVIA両国VIGREEN VEIL(ワンルーム/8階) | |||||||
![]() | 12.1万円 1.5万円 | なし なし | ワンルーム 26.53m2 | 築4年 | 都営新宿線 菊川駅(東京) 徒歩11分 JR総武線 錦糸町駅 徒歩12分 都営大江戸線 森下駅(東京) 徒歩19分 東京都墨田区緑 | 詳細を見る | |
マンション GENOVIA墨田八広SKYGARDEN(1LDK/2階) | |||||||
![]() | 13万円 1.7万円 | なし 13万円 | 1LDK 40.56m2 | 築7年 | 京成電鉄押上線 八広駅 徒歩12分 京成電鉄押上線 京成曳舟駅 徒歩13分 東京都墨田区八広4丁目 | 詳細を見る | |
マンション プレール・ドゥーク東京CANAL(1K/6階) | |||||||
![]() | 10.6万円 1.1万円 | なし 10.6万円 | 1K 22.34m2 | 築20年 | 京葉線 潮見駅 徒歩7分 東京地下鉄有楽町線 豊洲駅 徒歩22分 東京地下鉄東西線 木場駅 徒歩23分 東京都江東区枝川3丁目 | 詳細を見る | |









