賃貸マンション
レジディア錦糸町IIの賃貸物件情報(ワンルーム/7階)
| 家賃 | 管理費等 | 敷金 | 礼金 | 間取り | 専有面積 |
|---|---|---|---|---|---|
| 11.5万円 | 1万円 | なし | なし | ワンルーム | 26.6m2 |
入居決定でお祝い金最大100,000円
- 保証金
- -
- 償却・敷引
- -
- 築年数
- 築19年
- 所在階
- 7階
- 向き
- 東
Point
ご来店不要、最寄駅、物件現地での待ち合わせ承っております★審査、事務所利用など何でもご相談ください★初期費用全額、または一部カード払い可能です★
提供:(株)デュアルアシスト(SUUMO経由)

詳細情報 レジディア錦糸町II
物件紹介
レジディア錦糸町IIはJR総武線錦糸町駅から徒歩10分にあり、駅近で通勤通学に便利なマンションです。
このお部屋は2階以上に位置しているので、通行人や周囲の住人からの視線が気になりにくく、防犯面でも安心。建物のエントランスはオートロックがついており、インターホンにはTVモニタもついているため、相手の顔を確認してから来客対応することができます。
フローリングのお部屋なのでお掃除もラクラク。キッチンはシステムキッチン仕様になっていますので、お料理好きの方にもぴったり。バス・トイレは別なので、のんびりお風呂タイムも楽しめるでしょう。また、雨の日でも浴室乾燥機を使えば、お洗濯も問題ありません。
通信設備面では、インターネット接続が可能です。また、BSアンテナ・CSアンテナがありCATVにも対応しているので、おうち時間も充実するでしょう(別途工事、契約料が必要な場合あり)。
建物にはエレベーターがついているので、重い荷物があっても安心。共用部には宅配ボックスが設定されているので、不在の時にも荷物を受け取ることができます。
このお部屋は2階以上に位置しているので、通行人や周囲の住人からの視線が気になりにくく、防犯面でも安心。建物のエントランスはオートロックがついており、インターホンにはTVモニタもついているため、相手の顔を確認してから来客対応することができます。
フローリングのお部屋なのでお掃除もラクラク。キッチンはシステムキッチン仕様になっていますので、お料理好きの方にもぴったり。バス・トイレは別なので、のんびりお風呂タイムも楽しめるでしょう。また、雨の日でも浴室乾燥機を使えば、お洗濯も問題ありません。
通信設備面では、インターネット接続が可能です。また、BSアンテナ・CSアンテナがありCATVにも対応しているので、おうち時間も充実するでしょう(別途工事、契約料が必要な場合あり)。
建物にはエレベーターがついているので、重い荷物があっても安心。共用部には宅配ボックスが設定されているので、不在の時にも荷物を受け取ることができます。
お金・契約の情報
※「-」と表示されているものは、実際は料金が発生するものもございます。詳細はお問い合わせください。
| 家賃 | 11.5万円 | 管理費・共益費 | 1万円 |
|---|---|---|---|
| 敷金 | なし | 礼金 | なし |
| 入居決定でお祝い金最大100,000円 | |||
| 保証金 | - | 償却・敷引 | - |
| 住宅保険料 | - | 更新料 | - |
| 保証会社利用 | 必須 | 保証会社名 | - |
| 保証会社費用 | - | 保証会社備考 | 保証会社利用必 初回契約時40パーセント 更新時10000円 月額/1000円 |
| 契約形態 | - | 契約期間 | - |
| 入居・引渡期間 | 即時 | 現況 | - |
| 契約備考 | ※1年未満解約時、賃料1ヶ月分の約金有大手法人契約の場合は敷金2ヶ月セカンドハウス利用不可 合計2.2万円(内訳:鍵交換費用22000円) 住宅保険/21500円/2年入居者限定会員サービス会費/11000円/2年インターネット利用料/1650円/月額 ワンルーム 普通借家2年 バストイレ別、バルコニー、エアコン、クロゼット、フローリング、TVインターホン、浴室乾燥機、オートロック、室内洗濯置、陽当り良好、シューズボックス、システムキッチン、エレベーター、洗面所独立、2口コンロ、駐輪場、宅配ボックス、CATV、即入居可、2面採光、BS・CS、防犯カメラ、バイク置場、CS、ネット専用回線、駅まで平坦、クロゼット2ヶ所、平坦地、駅徒歩10分以内、専有面積25坪以上、シューズWIC、BS、高速ネット対応、初期費用カード決済可 | ||
部屋の情報
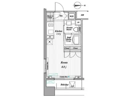
| 間取り | ワンルーム | 専有面積 | 26.6m2 |
|---|---|---|---|
| 所在階 / 向き | 7階 / 東 | バルコニー面積 | - |
| 水道 / ガス | - | ||
| 設備 | バス・トイレ別、2階以上、オートロック、テレビドアホン、宅配ボックス、浴室乾燥機、インターネット対応、システムキッチン、エアコン、エレベーター、バルコニー、フローリング、洗髪洗面化粧台、2口コンロ、CATV、CSアンテナ、BSアンテナ、洗濯機:室内 | ||
| 当社物件ID | 10739482 | ||
建物の情報
| 建物名 | レジディア錦糸町II | ||
|---|---|---|---|
| 所在地 | 東京都墨田区緑 | ||
| 交通 | JR総武線 錦糸町駅 徒歩10分 東京メトロ半蔵門線 錦糸町駅 徒歩12分 都営新宿線 菊川駅(東京) 徒歩15分 | ||
| 階数 | 14階建 | 総戸数 | 99戸 |
| 築年月 | 2008年01月 / 築19年 | エレベーター | あり |
| 駐車場 | なし | バイク置き場 | あり |
| 駐輪場 | あり | 管理人/管理会社 | - |
| 周辺環境 | その他 アルカキット錦糸町(ショッピングセンター)まで607m その他 まいばすけっと錦糸町駅西店(スーパー)まで294m その他 セブンイレブン墨田緑4丁目店(コンビニ)まで142m その他 どらっぐぱぱす両国店(ドラッグストア)まで544m その他 ほっともっと亀沢4丁目店(飲食店)まで217m その他 墨田江東橋郵便局(郵便局)まで359m | ||
| 建物種別 | マンション | 建物構造 | RC(鉄筋コンクリート) |
この部屋の取扱い不動産会社
| 会社名 | (株)デュアルアシスト(SUUMO経由) | ||
|---|---|---|---|
| 所在地 | 埼玉県川口市芝下1-8-13 | 交通 | - |
| 営業時間 | - | 定休日 | - |
| 免許番号 | 埼玉県知事23743 | 取引態様 | 仲介 |
| 不動産会社管理番号 | 100470181884 | 当社管理番号 | 89 |
| 所属団体 | (公社)全日本不動産協会埼玉県本部会員 | ||
| 公正取引協議会 | (公社)首都圏不動産公正取引協議会加盟 | ||
| 取扱い物件情報 | 物件詳細へ | ||
※各種情報と現状に差異がある場合は、現状優先となります。問い合わせをすることで、より詳しい条件、情報を確認する事ができます。
提供:(株)デュアルアシスト(SUUMO経由)
この物件が気になったら掲載期限まであと7日
レジディア錦糸町IIに条件(家賃・エリア)が近い物件一覧
| 写真 | 家賃 管理費等 | 敷金 礼金 | 間取り 専有面積 | 築年数 | 最寄り駅 所在地 | キープ | 詳細 |
|---|---|---|---|---|---|---|---|
マンション スカイコート日本橋浜町(1K/3階) | |||||||
![]() | 8.7万円 7,000円 | 8.7万円 8.7万円 | 1K 22.45m2 | 築25年 | 都営新宿線 浜町駅 徒歩3分 都営浅草線 東日本橋駅 徒歩5分 都営新宿線 馬喰横山駅 徒歩8分 東京都中央区日本橋浜町 | 詳細を見る | |
マンション スプランディッド大島(1DK/2階) | |||||||
![]() | 13.9万円 1万円 | なし なし | 1DK 30.3m2 | 築1年 | 東京都新宿線 大島駅(東京) 徒歩6分 東京都江東区大島8丁目 | 詳細を見る | |



