賃貸マンション
ハイネス東大島の賃貸物件情報(3DK/9階)
| 家賃 | 管理費等 | 敷金 | 礼金 | 間取り | 専有面積 |
|---|---|---|---|---|---|
| 11.2万円 | なし | 11.2万円 | 11.2万円 | 3DK | 46.5m2 |
入居決定でお祝い金最大100,000円
- 保証金
- -
- 償却・敷引
- -
- 築年数
- 築46年
- 所在階
- 9階
- 向き
- 南
Point
・初期費用のクレジット決済・物件現地でのお待ち合わせ、オンライン、お車にてご送迎等、ご希望される方法でご案内いたします・お見積もり、審査も柔軟に対応いたしますのでお気軽にお問い合わせくださいませ!
提供:(株)R不動産(SUUMO経由)

詳細情報 ハイネス東大島
物件紹介
ハイネス東大島は都営新宿線東大島駅から徒歩3分にあり、駅近で通勤通学に便利なマンションです。
このお部屋は2階以上に位置しているので、通行人や周囲の住人からの視線が気になりにくく、防犯面でも安心。インターホンにはTVモニタもついているため、相手の顔を確認してから来客対応することができます。
人気の南向きのお部屋。また、フローリングなのでお掃除もラクラク。バス・トイレ別の仕様で、のんびりお風呂タイムも楽しめます。
建物にはエレベーターがついているので、重い荷物があっても安心。
このお部屋は2階以上に位置しているので、通行人や周囲の住人からの視線が気になりにくく、防犯面でも安心。インターホンにはTVモニタもついているため、相手の顔を確認してから来客対応することができます。
人気の南向きのお部屋。また、フローリングなのでお掃除もラクラク。バス・トイレ別の仕様で、のんびりお風呂タイムも楽しめます。
建物にはエレベーターがついているので、重い荷物があっても安心。
お金・契約の情報
※「-」と表示されているものは、実際は料金が発生するものもございます。詳細はお問い合わせください。
| 家賃 | 11.2万円 | 管理費・共益費 | なし |
|---|---|---|---|
| 敷金 | 11.2万円 | 礼金 | 11.2万円 |
| 入居決定でお祝い金最大100,000円 | |||
| 保証金 | - | 償却・敷引 | - |
| 住宅保険料 | - | 更新料 | - |
| 契約形態 | - | 契約期間 | - |
| 入居・引渡期間 | 相談 | 現況 | - |
| 契約備考 | 巡回管理/この度はご覧いただき誠にありがとうございます!弊社では他社様の物件もご紹介可能で、初期費用のお見積もり、交渉、審査も柔軟にお客様に寄り添って対応いたします。また日中以外の内見、現地お待ち合わせ、オンラインでの内見ももちろん可能で、内見、ご契約、鍵の引渡しなども原則弊社にご来店いただく事無く、スムーズにご入居までサポートいたします。皆様が気持ち良く新生活を始められるよう全力で物件をお探しいたします! 更新料 新賃料1.00ヶ月分 3DK 二人入居可 普通借家2年 損保【要】 バストイレ別、バルコニー、エアコン、クロゼット、フローリング、TVインターホン、室内洗濯置、シューズボックス、南向き、温水洗浄便座、エレベーター、3口以上コンロ、照明付、分譲賃貸、振分、敷金1ヶ月、2沿線利用可、ディンプルキー、保証金不要、24時間換気システム、耐火構造、2駅利用可、3駅以上利用可、駅徒歩5分以内、駅徒歩10分以内、和室、都市ガス、礼金1ヶ月 | ||
部屋の情報
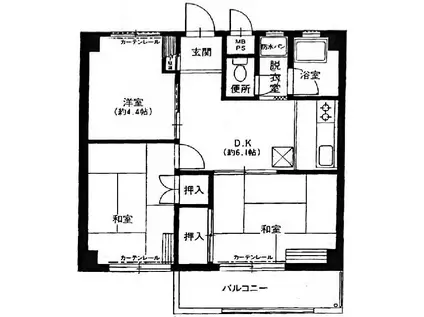
| 間取り | 3DK | 専有面積 | 46.5m2 |
|---|---|---|---|
| 所在階 / 向き | 9階 / 南 | バルコニー面積 | 5m2 |
| 水道 / ガス | - | ||
| 設備 | バス・トイレ別、2階以上、テレビドアホン、エアコン、エレベーター、温水洗浄便座、南向き、バルコニー、フローリング、2口コンロ、洗濯機:室内 | ||
| 当社物件ID | 25364668 | ||
建物の情報
| 建物名 | ハイネス東大島 | ||
|---|---|---|---|
| 所在地 | 東京都江東区大島 | ||
| 交通 | 都営新宿線 東大島駅 徒歩3分 都営新宿線 西大島駅 徒歩19分 東武亀戸線 亀戸水神駅 徒歩24分 | ||
| 階数 | 10階建 | 総戸数 | - |
| 築年月 | 1981年02月 / 築46年 | エレベーター | あり |
| 駐車場 | 近隣 200m33000円 | バイク置き場 | - |
| 駐輪場 | - | 管理人/管理会社 | - |
| 周辺環境 | その他 DAISO ダイエー東大島店(その他)まで122m その他 ダイエー東大島店(スーパー)まで131m その他 セブンイレブン 江東大島8丁目店(コンビニ)まで158m その他 しまむら ダイエー東大島店(その他)まで159m その他 Seria サンドラッグ東大島店(その他)まで50m | ||
| 建物種別 | マンション | 建物構造 | SRC(鉄骨鉄筋コンクリート) |
この部屋の取扱い不動産会社
| 会社名 | (株)R不動産(SUUMO経由) | ||
|---|---|---|---|
| 所在地 | 東京都港区西新橋1-4-12 新第一ビル8階 | 交通 | - |
| 営業時間 | 9:00-19:30 | 定休日 | 不定休 |
| 免許番号 | 東京都知事113044 | 取引態様 | 仲介 |
| 不動産会社管理番号 | 100492875130 | 当社管理番号 | 89 |
| 所属団体 | (公社)東京都宅地建物取引業協会会員 | ||
| 公正取引協議会 | (公社)首都圏不動産公正取引協議会加盟 | ||
| 取扱い物件情報 | 物件詳細へ | ||
※各種情報と現状に差異がある場合は、現状優先となります。問い合わせをすることで、より詳しい条件、情報を確認する事ができます。
提供:(株)R不動産(SUUMO経由)
この物件が気になったら掲載期限まであと11日
ハイネス東大島に条件(家賃・エリア)が近い物件一覧
| 写真 | 家賃 管理費等 | 敷金 礼金 | 間取り 専有面積 | 築年数 | 最寄り駅 所在地 | キープ | 詳細 |
|---|---|---|---|---|---|---|---|
アパート サン ヴィータ(1K/1階) | |||||||
![]() | 8.8万円 5,000円 | 8.8万円 なし | 1K 21.6m2 | 築6年 | 京浜急行電鉄本線 京急蒲田駅 徒歩6分 京浜急行電鉄本線 梅屋敷駅(東京) 徒歩10分 東京都大田区蒲田3丁目 | 詳細を見る | |
マンション グランディール(1K/4階) | |||||||
![]() | 9.3万円 5,000円 | 9.3万円 9.3万円 | 1K 25.02m2 | 築22年 | 京浜急行電鉄本線 大森町駅 徒歩5分 京浜急行電鉄本線 梅屋敷駅(東京) 徒歩9分 東京都大田区大森中1丁目 | 詳細を見る | |
マンション エクセルⅤ(1K/4階) | |||||||
![]() | 8.4万円 2,000円 | 8.4万円 なし | 1K 22.62m2 | 築27年 | 東急池上線 千鳥町駅 徒歩3分 東急多摩川線 下丸子駅 徒歩6分 東京都大田区千鳥3丁目 | 詳細を見る | |
マンション ドルチェ月島・弐番館(1K/10階) | |||||||
![]() | 12.8万円 1.1万円 | なし 12.8万円 | 1K 22.7m2 | 築23年 | 都営大江戸線 勝どき駅 徒歩4分 東京メトロ有楽町線 月島駅 徒歩6分 東京メトロ日比谷線 築地駅 徒歩20分 東京都中央区月島 | 詳細を見る | |
マンション メゾンドボナール(1DK/4階) | |||||||
![]() | 12万円 3,000円 | 12万円 なし | 1DK 32.48m2 | 築29年 | 京浜東北・根岸線 蒲田駅 徒歩10分 京浜急行電鉄本線 京急蒲田駅 徒歩10分 東京都大田区蒲田3丁目 | 詳細を見る | |
マンション TSK蒲田フラワーマンション(1LDK/8階) | |||||||
![]() | 11.2万円 8,000円 | 11.2万円 11.2万円 | 1LDK 41m2 | 築47年 | 京浜東北・根岸線 蒲田駅 徒歩12分 京浜急行電鉄本線 梅屋敷駅(東京) 徒歩12分 東京都大田区蒲田1丁目 | 詳細を見る | |
マンション ミライズ東京イーストアネックス(1LDK/7階) | |||||||
![]() | 15.1万円 1万円 | なし 15.1万円 | 1LDK 40.8m2 | 築2年 | 東武亀戸線 小村井駅 徒歩7分 京成押上線 京成曳舟駅 徒歩14分 東武伊勢崎線 曳舟駅 徒歩18分 東京都墨田区八広 | 詳細を見る | |








