賃貸マンション
ルフォンプログレ中野坂上の賃貸物件情報(1DK/4階)
| 家賃 | 管理費等 | 敷金 | 礼金 | 間取り | 専有面積 |
|---|---|---|---|---|---|
| 15.8万円 | 1.5万円 | 15.8万円 | 15.8万円 | 1DK | 25.5m2 |
入居決定でお祝い金最大100,000円
- 保証金
- -
- 償却・敷引
- -
- 築年数
- 築4年
- 所在階
- 4階
- 向き
- 北西
Point
室内見学承ります・お客様のご都合に合わせてオンラインまたはお近くの店舗でご提案可・初期費用分割払い可・クレジットカード利用可・引越業者割引・初期費用のお見積や入居日のご相談もお気軽にお問合せください
提供:(株)リライフ高円寺店(SUUMO経由)

詳細情報 ルフォンプログレ中野坂上
物件紹介
ルフォンプログレ中野坂上は東京メトロ丸ノ内線中野坂上駅から徒歩5分にあり、駅近で通勤通学に便利なマンションです。
このお部屋は2階以上に位置しているので、通行人や周囲の住人からの視線が気になりにくく、防犯面でも安心。建物のエントランスはオートロックがついており、インターホンにはTVモニタもついているため、相手の顔を確認してから来客対応することができます。
フローリングのお部屋なのでお掃除もラクラク。キッチンはシステムキッチン仕様になっていますので、お料理好きの方にもぴったり。バス・トイレは別なので、のんびりお風呂タイムも楽しめるでしょう。また、雨の日でも浴室乾燥機を使えば、お洗濯も問題ありません。
通信設備面では、インターネットが無料で使えるので、月々の出費を抑えられるのも魅力です。また、BSアンテナ・CSアンテナがありCATVにも対応しているので、おうち時間も充実するでしょう(別途工事、BS・CS・CATVの契約料等が必要な場合あり)。
建物にはエレベーターがついているので、重い荷物があっても安心。共用部には宅配ボックスが設定されているので、不在の時にも荷物を受け取ることができます。
このお部屋は2階以上に位置しているので、通行人や周囲の住人からの視線が気になりにくく、防犯面でも安心。建物のエントランスはオートロックがついており、インターホンにはTVモニタもついているため、相手の顔を確認してから来客対応することができます。
フローリングのお部屋なのでお掃除もラクラク。キッチンはシステムキッチン仕様になっていますので、お料理好きの方にもぴったり。バス・トイレは別なので、のんびりお風呂タイムも楽しめるでしょう。また、雨の日でも浴室乾燥機を使えば、お洗濯も問題ありません。
通信設備面では、インターネットが無料で使えるので、月々の出費を抑えられるのも魅力です。また、BSアンテナ・CSアンテナがありCATVにも対応しているので、おうち時間も充実するでしょう(別途工事、BS・CS・CATVの契約料等が必要な場合あり)。
建物にはエレベーターがついているので、重い荷物があっても安心。共用部には宅配ボックスが設定されているので、不在の時にも荷物を受け取ることができます。
お金・契約の情報
※「-」と表示されているものは、実際は料金が発生するものもございます。詳細はお問い合わせください。
| 家賃 | 15.8万円 | 管理費・共益費 | 1.5万円 |
|---|---|---|---|
| 敷金 | 15.8万円 | 礼金 | 15.8万円 |
| 入居決定でお祝い金最大100,000円 | |||
| 保証金 | - | 償却・敷引 | - |
| 住宅保険料 | - | 更新料 | - |
| 保証会社利用 | 必須 | 保証会社名 | - |
| 保証会社費用 | - | 保証会社備考 | 保証会社利用必 初期保証委託料(最低15000円):月額賃料等の50%、2年目以降:10000円/年 |
| 契約形態 | - | 契約期間 | - |
| 入居・引渡期間 | - | 現況 | - |
| 契約備考 | 巡回管理/当物件はオンラインまたはお近くの店舗でご相談お申込を承ります。リライフは首都圏23店舗のネットワークで豊富な物件情報をご提供いたします。当物件に類似した未公開物件のご提案も可能です。お気軽にお問い合わせください。違約金有:詳細はお問い合わせください 室内清掃費用4.4万円雑費1.32万円口座振替事務手数料(月額)0.011万円 1DK 学生希望/単身者可/子供不可/事務所利用不可 損保【要】 バストイレ別、バルコニー、エアコン、ガスコンロ対応、クロゼット、フローリング、TVインターホン、浴室乾燥機、オートロック、室内洗濯置、シューズボックス、システムキッチン、温水洗浄便座、脱衣所、エレベーター、洗面所独立、2口コンロ、駐輪場、宅配ボックス、CATV、光ファイバー、BS・CS、防犯カメラ、保証人不要、単身者相談、全居室フローリング、ディンプルキー、ネット使用料不要、ダブルロックキー、24時間換気システム、クロゼット2ヶ所、学生相談、始発駅、3駅以上利用可、3沿線以上利用可、敷地内ごみ置き場、都市ガス、玄関収納、保証会社利用可、初期費用カード決済可 入居日:'26年5月中旬 | ||
部屋の情報
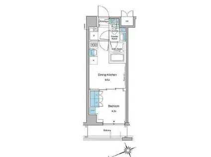
| 間取り | 1DK | 専有面積 | 25.5m2 |
|---|---|---|---|
| 所在階 / 向き | 4階 / 北西 | バルコニー面積 | 3m2 |
| 水道 / ガス | - | ||
| 設備 | バス・トイレ別、2階以上、オートロック、テレビドアホン、宅配ボックス、浴室乾燥機、インターネット対応、システムキッチン、エアコン、エレベーター、温水洗浄便座、バルコニー、フローリング、洗髪洗面化粧台、2口コンロ、コンロ:ガス、CATV、CSアンテナ、BSアンテナ、インターネット使用料無料、洗濯機:室内 | ||
| 当社物件ID | 129513785 | ||
建物の情報
| 建物名 | ルフォンプログレ中野坂上 | ||
|---|---|---|---|
| 所在地 | 東京都中野区本町 | ||
| 交通 | 東京メトロ丸ノ内線 中野坂上駅 徒歩5分 都営大江戸線 西新宿五丁目駅 徒歩9分 東京メトロ丸ノ内線 西新宿駅 徒歩10分 | ||
| 階数 | 6階建 | 総戸数 | - |
| 築年月 | 2023年01月 / 築4年 | エレベーター | あり |
| 駐車場 | なし | バイク置き場 | - |
| 駐輪場 | あり | 管理人/管理会社 | - |
| 周辺環境 | その他 ライフ 中野坂上店(スーパー)まで324m その他 ライフ中野坂上店(スーパー)まで328m その他 ローソン H中野本町一丁目東店(コンビニ)まで208m その他 セブンイレブン 中野中央1丁目東店(コンビニ)まで233m その他 スギ薬局 中野坂上店(ドラッグストア)まで270m その他 ポニークリーニング パークハウス西新宿店(その他)まで268m | ||
| 建物種別 | マンション | 建物構造 | RC(鉄筋コンクリート) |
この部屋の取扱い不動産会社
| 会社名 | (株)リライフ高円寺店(SUUMO経由) | ||
|---|---|---|---|
| 所在地 | 東京都杉並区高円寺南4-27-8 フィルイン高円寺1階 | 交通 | - |
| 営業時間 | 10:00~18:30 | 定休日 | 火曜日、水曜日 |
| 免許番号 | 国土交通大臣10792 | 取引態様 | 仲介 |
| 不動産会社管理番号 | 100493672895 | 当社管理番号 | 89 |
| 所属団体 | (公社)東京都宅地建物取引業協会会員 | ||
| 公正取引協議会 | (公社)首都圏不動産公正取引協議会加盟 | ||
| 取扱い物件情報 | 物件詳細へ | ||
※各種情報と現状に差異がある場合は、現状優先となります。問い合わせをすることで、より詳しい条件、情報を確認する事ができます。
提供:(株)リライフ高円寺店(SUUMO経由)
この物件が気になったら掲載期限まであと11日
ルフォンプログレ中野坂上に条件(家賃・エリア)が近い物件一覧
| 写真 | 家賃 管理費等 | 敷金 礼金 | 間取り 専有面積 | 築年数 | 最寄り駅 所在地 | キープ | 詳細 |
|---|---|---|---|---|---|---|---|
アパート オラージュ(1LDK/2階) | |||||||
![]() | 15.8万円 2,000円 | 15.8万円 15.8万円 | 1LDK 33m2 | 築40年 | 京王線 代田橋駅 徒歩11分 京王線 笹塚駅 徒歩14分 京王井の頭線 永福町駅 徒歩22分 東京都杉並区和泉 | 詳細を見る | |
マンション ARKMARK池袋本町(1DK/2階) | |||||||
![]() | 18.7万円 1.1万円 | なし 18.7万円 | 1DK 30.74m2 | 築1年 | 東武東上線 北池袋駅 徒歩7分 東武東上線 下板橋駅 徒歩7分 JR埼京線 板橋駅 徒歩14分 東京都豊島区池袋本町 | 詳細を見る | |
アパート ハックベリーハウス(1LDK/1階) | |||||||
![]() | 13.9万円 1万円 | 13.9万円 24.3299万円 | 1LDK 41.72m2 | 築14年 | 東京メトロ丸ノ内線 新高円寺駅 徒歩10分 東京メトロ丸ノ内線 方南町駅 徒歩17分 JR中央線 高円寺駅 徒歩20分 東京都杉並区堀ノ内 | 詳細を見る | |
マンション ロセット江古田(1DK/1階) | |||||||
![]() | 9.9万円 1万円 | 9.9万円 9.9万円 | 1DK 33.32m2 | 築23年 | 西武池袋線 江古田駅 徒歩3分 西武有楽町線 新桜台駅 徒歩6分 都営大江戸線 新江古田駅 徒歩8分 東京都練馬区栄町 | 詳細を見る | |
マンション エミリブ池袋(1LDK/8階) | |||||||
![]() | 23.4万円 6,000円 | なし なし | 1LDK 42.36m2 | 築12年 | 西武池袋線 池袋駅 徒歩4分 東京メトロ有楽町線 池袋駅 徒歩6分 JR山手線 目白駅 徒歩10分 東京都豊島区南池袋 | 詳細を見る | |
マンション タスキSMART新大塚III(1LDK/3階) | |||||||
![]() | 16.3万円 1万円 | なし なし | 1LDK 31.94m2 | 築1年 | 東京メトロ丸ノ内線 新大塚駅 徒歩8分 JR山手線 大塚駅(東京) 徒歩12分 都営三田線 千石駅 徒歩16分 東京都豊島区南大塚 | 詳細を見る | |
マンション CAMBIANO(1LDK/2階) | |||||||
![]() | 13.2万円 6,000円 | 13.2万円 19.8万円 | 1LDK 44.27m2 | 築10年 | 西武新宿線 下井草駅 徒歩7分 西武新宿線 井荻駅 徒歩10分 JR中央線 荻窪駅 徒歩27分 東京都杉並区下井草 | 詳細を見る | |
マンション 短期貸し ライオンズマンション沼袋(3DK/2階) | |||||||
![]() | 19万円 なし | 19万円 なし | 3DK 56.85m2 | 築46年 | 西武新宿線 沼袋駅 徒歩6分 都営大江戸線 新江古田駅 徒歩19分 JR中央線 中野駅(東京) 徒歩26分 東京都中野区沼袋 | 詳細を見る | |









