賃貸マンション
御幸レジデンス日本橋茅場町の賃貸物件情報(1LDK/9階)
| 家賃 | 管理費等 | 敷金 | 礼金 | 間取り | 専有面積 |
|---|---|---|---|---|---|
| 19.3万円 | 1.2万円 | 19.3万円 | 19.3万円 | 1LDK | 41.49m2 |
入居決定でお祝い金最大100,000円
- 保証金
- -
- 償却・敷引
- -
- 築年数
- 築10年
- 所在階
- 9階
- 向き
- 西
Point
新生活応援!みつぼしは仲手0円+こちらの住戸成約時アマギフ等1.8万円分贈呈☆退去前安心先行申込可物件☆来店不要web申込物件☆宅建士最後まで対応☆現地待合せ、IT重説、鍵郵送など柔軟対応など
提供:みつぼし(株)(SUUMO経由)

詳細情報 御幸レジデンス日本橋茅場町
物件紹介
御幸レジデンス日本橋茅場町はJR京葉線八丁堀駅から徒歩8分にあり、駅近で通勤通学に便利なマンションです。
このお部屋は2階以上に位置しているので、通行人や周囲の住人からの視線が気になりにくく、防犯面でも安心。建物のエントランスはオートロックがついており、インターホンにはTVモニタもついているため、相手の顔を確認してから来客対応することができます。
フローリングのお部屋なのでお掃除もラクラク。キッチンはシステムキッチン仕様になっていますので、お料理好きの方にもぴったり。バス・トイレは別なので、のんびりお風呂タイムも楽しめるでしょう。また、雨の日でも浴室乾燥機を使えば、お洗濯も問題ありません。
通信設備面では、インターネット接続が可能です。また、BSアンテナ・CSアンテナもありますので、おうち時間も充実するでしょう(別途工事、契約料が必要な場合あり)。
建物にはエレベーターがついているので、重い荷物があっても安心。共用部には宅配ボックスが設定されているので、不在の時にも荷物を受け取ることができます。
このお部屋は2階以上に位置しているので、通行人や周囲の住人からの視線が気になりにくく、防犯面でも安心。建物のエントランスはオートロックがついており、インターホンにはTVモニタもついているため、相手の顔を確認してから来客対応することができます。
フローリングのお部屋なのでお掃除もラクラク。キッチンはシステムキッチン仕様になっていますので、お料理好きの方にもぴったり。バス・トイレは別なので、のんびりお風呂タイムも楽しめるでしょう。また、雨の日でも浴室乾燥機を使えば、お洗濯も問題ありません。
通信設備面では、インターネット接続が可能です。また、BSアンテナ・CSアンテナもありますので、おうち時間も充実するでしょう(別途工事、契約料が必要な場合あり)。
建物にはエレベーターがついているので、重い荷物があっても安心。共用部には宅配ボックスが設定されているので、不在の時にも荷物を受け取ることができます。
お金・契約の情報
※「-」と表示されているものは、実際は料金が発生するものもございます。詳細はお問い合わせください。
| 家賃 | 19.3万円 | 管理費・共益費 | 1.2万円 |
|---|---|---|---|
| 敷金 | 19.3万円 | 礼金 | 19.3万円 |
| 入居決定でお祝い金最大100,000円 | |||
| 保証金 | - | 償却・敷引 | - |
| 住宅保険料 | - | 更新料 | - |
| 保証会社利用 | 必須 | 保証会社名 | - |
| 保証会社費用 | - | 保証会社備考 | 保証会社利用必 保証料:賃料等の50%(最低2万)、月額保証料:賃料等の1%(更新料無) |
| 契約形態 | - | 契約期間 | - |
| 入居・引渡期間 | - | 現況 | - |
| 契約備考 | 完成前、退去前物件の中には先行申込可物件(申込、審査まで進め内覧後に話を進めるかキャンセルするか判断できる申込み)や先行契約条件物件(実際の部屋を見ないで契約できる人のみ申込み受理)があります。賃貸条件にもよりますが、退去前申し込みを検討しないと1番手が取れない状況です。また、最近では6割以上の人が退去前申し込みを検討しています。どの申込方法まで検討可能か考えて物件を選ぶというのもポイントです。 合計3.3万円(内訳:鍵交換代:33000円) 1LDK 二人入居可 普通借家2年 損保【1.66万円2年】 バストイレ別、バルコニー、エアコン、ガスコンロ対応、クロゼット、TVインターホン、浴室乾燥機、オートロック、室内洗濯置、シューズボックス、システムキッチン、追焚機能浴室、温水洗浄便座、エレベーター、洗面所独立、洗面化粧台、駐輪場、宅配ボックス、BS・CS、3口以上コンロ、防犯カメラ、保証人不要、仲介手数料不要、二人入居相談、全居室フローリング、2沿線利用可、ネット専用回線、ダブルロックキー、24時間換気システム、2駅利用可、駅徒歩10分以内、24時間ゴミ出し可、敷地内ごみ置き場、都市ガス、IT重説対応物件、初期費用カード決済可 入居日:'26年1月下旬 | ||
部屋の情報
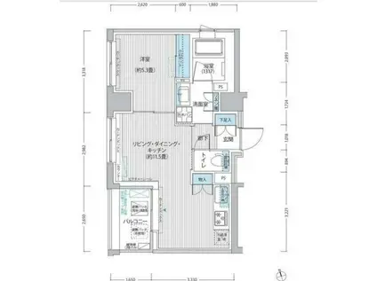
| 間取り | 1LDK | 専有面積 | 41.49m2 |
|---|---|---|---|
| 所在階 / 向き | 9階 / 西 | バルコニー面積 | - |
| 水道 / ガス | - | ||
| 設備 | バス・トイレ別、2階以上、オートロック、テレビドアホン、宅配ボックス、浴室乾燥機、追い焚き、インターネット対応、システムキッチン、エアコン、エレベーター、温水洗浄便座、バルコニー、フローリング、洗髪洗面化粧台、2口コンロ、コンロ:ガス、CSアンテナ、BSアンテナ、洗濯機:室内 | ||
| 当社物件ID | 20152025 | ||
建物の情報
| 建物名 | 御幸レジデンス日本橋茅場町 | ||
|---|---|---|---|
| 所在地 | 東京都中央区新川 | ||
| 交通 | JR京葉線 八丁堀駅(東京) 徒歩8分 東京メトロ日比谷線 茅場町駅 徒歩9分 東京メトロ日比谷線 八丁堀駅(東京) 徒歩12分 | ||
| 階数 | 10階建 | 総戸数 | - |
| 築年月 | 2016年03月 / 築10年 | エレベーター | あり |
| 駐車場 | なし | バイク置き場 | - |
| 駐輪場 | あり | 管理人/管理会社 | - |
| 周辺環境 | その他 肉のハナマサ新川店(スーパー)まで429m その他 リコス新川2丁目店(スーパー)まで652m その他 セブンイレブン中央区新川1丁目店(コンビニ)まで158m その他 ミニストップ新川1丁目店(コンビニ)まで174m その他 スギ薬局新川一丁目店(ドラッグストア)まで500m その他 マルエツ新川一丁目店(スーパー)まで176m | ||
| 建物種別 | マンション | 建物構造 | RC(鉄筋コンクリート) |
この部屋の取扱い不動産会社
| 会社名 | みつぼし(株)(SUUMO経由) | ||
|---|---|---|---|
| 所在地 | 東京都台東区雷門2-19-17 | 交通 | - |
| 営業時間 | 10:00~19:00 | 定休日 | 不定休 |
| 免許番号 | 東京都知事108085 | 取引態様 | 仲介 |
| 不動産会社管理番号 | 100477480076 | 当社管理番号 | 89 |
| 所属団体 | (公社)全日本不動産協会東京都本部会員 | ||
| 公正取引協議会 | (公社)首都圏不動産公正取引協議会加盟 | ||
| 取扱い物件情報 | 物件詳細へ | ||
※各種情報と現状に差異がある場合は、現状優先となります。問い合わせをすることで、より詳しい条件、情報を確認する事ができます。
提供:みつぼし(株)(SUUMO経由)
この物件が気になったら掲載期限まであと10日
御幸レジデンス日本橋茅場町に条件(家賃・エリア)が近い物件一覧
| 写真 | 家賃 管理費等 | 敷金 礼金 | 間取り 専有面積 | 築年数 | 最寄り駅 所在地 | キープ | 詳細 |
|---|---|---|---|---|---|---|---|
マンション ラ・ブークル(1LDK/2階) | |||||||
![]() | 16.2万円 1.5万円 | 16.2万円 16.2万円 | 1LDK 43.83m2 | 築4年 | 東京地下鉄半蔵門線 押上駅 徒歩4分 東京都浅草線 本所吾妻橋駅 徒歩10分 東京都墨田区押上2丁目 | 詳細を見る | |
マンション ジーグランデ森下(1LDK/6階) | |||||||
![]() | 20.4万円 1万円 | なし なし | 1LDK 44.03m2 | 築1年 | 東京都新宿線 森下駅(東京) 徒歩5分 東京都大江戸線 両国駅 徒歩9分 総武・中央緩行線 両国駅 徒歩9分 東京都墨田区千歳3丁目 | 詳細を見る | |
マンション プレサンスブルーム浅草(1LDK/5階) | |||||||
![]() | 18.1万円 1.5万円 | なし なし | 1LDK 43m2 | 築4年 | 東武伊勢崎・大師線 浅草駅(東武・都営・メトロ) 徒歩8分 東京地下鉄銀座線 浅草駅(東武・都営・メトロ) 徒歩8分 東京都浅草線 浅草駅(東武・都営・メトロ) 徒歩8分 東京都台東区浅草6丁目 | 詳細を見る | |
マンション フュージョナル東墨田(1LDK/7階) | |||||||
![]() | 16.5万円 1万円 | なし なし | 1LDK 45.05m2 | 築5年 | 京成押上線 八広駅 徒歩7分 東武伊勢崎線 東向島駅 徒歩19分 京成押上線 京成曳舟駅 徒歩19分 東京都墨田区東墨田 | 詳細を見る | |
マンション ZOOM東陽町(1K/15階) | |||||||
![]() | 12万円 1万円 | 12万円 12万円 | 1K 30.22m2 | 築10年 | 東京地下鉄東西線 東陽町駅 徒歩5分 東京都江東区東陽3丁目 | 詳細を見る | |
マンション クローバーコート黒門町(2K/6階) | |||||||
![]() | 12.9万円 9,000円 | 12.9万円 12.9万円 | 2K 31.19m2 | 築19年 | 東京地下鉄千代田線 湯島駅 徒歩3分 東京地下鉄銀座線 上野広小路駅 徒歩3分 山手線 御徒町駅 徒歩5分 東京都台東区上野1丁目 | 詳細を見る | |
マンション HF八丁堀レジデンスII(1DK/7階) | |||||||
![]() | 15.6万円 1.2万円 | 15.6万円 15.6万円 | 1DK 35.1m2 | 築24年 | JR京葉線 八丁堀駅(東京) 徒歩3分 東京メトロ日比谷線 茅場町駅 徒歩5分 都営浅草線 宝町駅 徒歩13分 東京都中央区新川 | 詳細を見る | |
マンション パークアクシス菊川ステーションゲート(ワンルーム/8階) | |||||||
![]() | 12.7万円 1万円 | 12.7万円 12.7万円 | ワンルーム 25.35m2 | 築13年 | 東京都新宿線 菊川駅(東京) 徒歩2分 東京都新宿線 森下駅(東京) 徒歩11分 東京地下鉄半蔵門線 住吉駅(東京) 徒歩13分 東京都墨田区菊川3丁目 | 詳細を見る | |









