賃貸アパート
ハーモニーテラス北小岩IIIの賃貸物件情報(ワンルーム/1階)
| 家賃 | 管理費等 | 敷金 | 礼金 | 間取り | 専有面積 |
|---|---|---|---|---|---|
| 7.1万円 | 3,500円 | 7.1万円 | 7.1万円 | ワンルーム | 14.89m2 |
入居決定でお祝い金最大100,000円
- 保証金
- -
- 償却・敷引
- -
- 築年数
- 築8年
- 所在階
- 1階
- 向き
- 北
Point
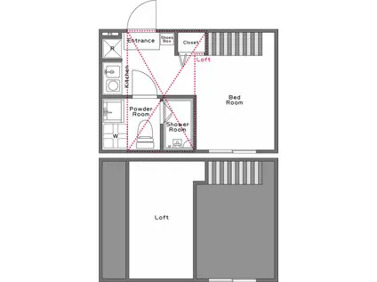
室内設備はシステムキッチン・エアコン・ロフトなど充実した設備を備え付けています。美しいフローリング張りが魅力の物件となっています。住みやすい環境が嬉しい賃貸物件です。
提供:(株)DoDoNPA新橋店(SUUMO経由)

詳細情報 ハーモニーテラス北小岩III
物件紹介
ハーモニーテラス北小岩IIIは京成本線江戸川駅から徒歩5分にあり、駅近で通勤通学に便利なアパートです。
このお部屋のインターホンにはTVモニタがついているため、相手の顔を確認してから来客対応することができます。
おしゃれなデザイナーズ物件!フローリングのお部屋なのでお掃除もラクラク。室内には多目的に利用できる人気のロフトもあり、お部屋のアレンジも自在です。キッチンはシステムキッチン仕様になっていますので、お料理好きの方にもぴったり。バス・トイレは別なので、のんびりお風呂タイムも楽しめるでしょう。また、雨の日でも浴室乾燥機を使えば、お洗濯も問題ありません。
通信設備面では、インターネットが無料で使えるので、月々の出費を抑えられるのも魅力です(別途工事等が必要な場合あり)。
このお部屋のインターホンにはTVモニタがついているため、相手の顔を確認してから来客対応することができます。
おしゃれなデザイナーズ物件!フローリングのお部屋なのでお掃除もラクラク。室内には多目的に利用できる人気のロフトもあり、お部屋のアレンジも自在です。キッチンはシステムキッチン仕様になっていますので、お料理好きの方にもぴったり。バス・トイレは別なので、のんびりお風呂タイムも楽しめるでしょう。また、雨の日でも浴室乾燥機を使えば、お洗濯も問題ありません。
通信設備面では、インターネットが無料で使えるので、月々の出費を抑えられるのも魅力です(別途工事等が必要な場合あり)。
お金・契約の情報
※「-」と表示されているものは、実際は料金が発生するものもございます。詳細はお問い合わせください。
| 家賃 | 7.1万円 | 管理費・共益費 | 3,500円 |
|---|---|---|---|
| 敷金 | 7.1万円 | 礼金 | 7.1万円 |
| 入居決定でお祝い金最大100,000円 | |||
| 保証金 | - | 償却・敷引 | - |
| 住宅保険料 | - | 更新料 | - |
| 契約形態 | - | 契約期間 | - |
| 入居・引渡期間 | - | 現況 | - |
| 契約備考 | 合計5.01万円(内訳:入居中サポート2.145万円室内抗菌処理代1.76万円事務手数料1.1万円) 更新料 賃料1.50ヶ月分 ワンルーム 普通借家2年 損保【2.2万円2年】 エアコン、ガスコンロ対応、フローリング、室内洗濯置、システムキッチン、温水洗浄便座、ロフト、プロパンガス 入居日:'26年4月上旬 | ||
部屋の情報
| 間取り | ワンルーム | 専有面積 | 14.89m2 |
|---|---|---|---|
| 所在階 / 向き | 1階 / 北 | バルコニー面積 | - |
| 水道 / ガス | - | ||
| 設備 | システムキッチン、エアコン、温水洗浄便座、フローリング、ロフトあり、コンロ:ガス、洗濯機:室内 | ||
| 当社物件ID | 28058563 | ||
建物の情報
| 建物名 | ハーモニーテラス北小岩III | ||
|---|---|---|---|
| 所在地 | 東京都江戸川区北小岩 | ||
| 交通 | 京成本線 江戸川駅 徒歩5分 京成本線 京成小岩駅 徒歩13分 JR総武線 小岩駅 徒歩19分 | ||
| 階数 | 2階建 | 総戸数 | 6戸 |
| 築年月 | 2018年06月 / 築8年 | エレベーター | - |
| 駐車場 | なし | バイク置き場 | - |
| 駐輪場 | - | 管理人/管理会社 | - |
| 建物種別 | アパート | 建物構造 | 木造 |
この部屋の取扱い不動産会社
| 会社名 | (株)DoDoNPA新橋店(SUUMO経由) | ||
|---|---|---|---|
| 所在地 | 東京都港区新橋2-18-3 故萩堂ビル5階 | 交通 | - |
| 営業時間 | 10時~19時 | 定休日 | 水曜日 |
| 免許番号 | 東京都知事110262 | 取引態様 | 仲介 |
| 不動産会社管理番号 | 100487935430 | 当社管理番号 | 89 |
| 所属団体 | (公社)全日本不動産協会東京都本部会員 | ||
| 公正取引協議会 | (公社)首都圏不動産公正取引協議会加盟 | ||
| 取扱い物件情報 | 物件詳細へ | ||
※各種情報と現状に差異がある場合は、現状優先となります。問い合わせをすることで、より詳しい条件、情報を確認する事ができます。
提供:(株)DoDoNPA新橋店(SUUMO経由)
この物件が気になったら掲載期限まであと10日
ハーモニーテラス北小岩IIIに条件(家賃・エリア)が近い物件一覧
| 写真 | 家賃 管理費等 | 敷金 礼金 | 間取り 専有面積 | 築年数 | 最寄り駅 所在地 | キープ | 詳細 |
|---|---|---|---|---|---|---|---|
マンション MAXIV HYS 南砂町(1K/5階) | |||||||
![]() | 9.4万円 8,000円 | なし 9.4万円 | 1K 25.52m2 | 築10年 | 東京メトロ東西線 南砂町駅 徒歩9分 都営新宿線 西大島駅 徒歩23分 東京都江東区南砂 | 詳細を見る | |
マンション 近藤ビル(2LDK/2階) | |||||||
![]() | 10.5万円 なし | 10.5万円 10.5万円 | 2LDK 45m2 | 築50年 | JR総武線 亀戸駅 徒歩7分 東武亀戸線 亀戸水神駅 徒歩10分 JR総武線 錦糸町駅 徒歩19分 東京都江東区亀戸 | 詳細を見る | |
マンション プレール・ドゥーク東京CANAL(1K/6階) | |||||||
![]() | 10.6万円 1.1万円 | なし 10.6万円 | 1K 22.34m2 | 築20年 | JR京葉線 潮見駅 徒歩7分 東京メトロ有楽町線 豊洲駅 徒歩22分 東京メトロ東西線 木場駅 徒歩23分 東京都江東区枝川 | 詳細を見る | |
マンション クオリタス大島(1DK/3階) | |||||||
![]() | 10.8万円 2万円 | なし 10.8万円 | 1DK 27.35m2 | 築4年 | 都営新宿線 大島駅(東京) 徒歩8分 都営新宿線 東大島駅 徒歩15分 JR総武線 亀戸駅 徒歩17分 東京都江東区大島 | 詳細を見る | |
マンション シャリエール森下(1LDK/2階) | |||||||
![]() | 11.4万円 8,000円 | 11.4万円 11.4万円 | 1LDK 38.21m2 | 築37年 | 東京都新宿線 森下駅(東京) 徒歩6分 東京都新宿線 菊川駅(東京) 徒歩9分 東京都大江戸線 両国駅 徒歩11分 東京都墨田区立川2丁目 | 詳細を見る | |
マンション ARCOBALENO OSHIAGE イースト(1K/1階) | |||||||
![]() | 8.8万円 1.5万円 | なし 8.8万円 | 1K 25.73m2 | 築7年 | 東武鉄道亀戸線 小村井駅 徒歩8分 京成電鉄押上線 京成曳舟駅 徒歩14分 東武伊勢崎・大師線 曳舟駅 徒歩21分 東京都墨田区立花5丁目 | 詳細を見る | |
マンション ダイアパレス・ステーションプラザお花茶屋(ワンルーム/6階) | |||||||
![]() | 5.5万円 6,000円 | なし なし | ワンルーム 18.76m2 | 築35年 | 京成電鉄本線 お花茶屋駅 徒歩1分 京成電鉄本線 堀切菖蒲園駅 徒歩17分 京成電鉄押上線 京成立石駅 徒歩20分 東京都葛飾区お花茶屋1丁目 | 詳細を見る | |
マンション プライマル西大島小名木川(1K/4階) | |||||||
![]() | 11.3万円 1.2万円 | 11.1万円 なし | 1K 25.38m2 | 築7年 | 都営新宿線 西大島駅 徒歩4分 JR総武線 亀戸駅 徒歩15分 東京メトロ半蔵門線 住吉駅(東京) 徒歩15分 東京都江東区大島 | 詳細を見る | |









