賃貸マンション
メルヴェイユの賃貸物件情報(3DK/2階)
| 家賃 | 管理費等 | 敷金 | 礼金 | 間取り | 専有面積 |
|---|---|---|---|---|---|
| 6.5万円 | なし | 13万円 | 6.5万円 | 3DK | 58.5m2 |
入居決定でお祝い金最大100,000円
Point
☆★☆【アパマンショップ新白島駅前店 取り扱い物件】★☆★
提供:アパマンショップ広島駅新幹線口店

詳細情報 メルヴェイユ
物件紹介
メルヴェイユは可部線梅林駅から徒歩8分にあり、駅近で通勤通学に便利なマンションです。
このお部屋は2階以上に位置しているので、通行人や周囲の住人からの視線が気になりにくく、防犯面でも安心。インターホンにはTVモニタもついているため、相手の顔を確認してから来客対応することができます。
フローリングのお部屋なのでお掃除もラクラク。バス・トイレ別の仕様で、のんびりお風呂タイムも楽しめます。
通信設備面ではBSアンテナがありますので、おうち時間も充実するでしょう(別途工事、契約料が必要な場合あり)。
このお部屋は2階以上に位置しているので、通行人や周囲の住人からの視線が気になりにくく、防犯面でも安心。インターホンにはTVモニタもついているため、相手の顔を確認してから来客対応することができます。
フローリングのお部屋なのでお掃除もラクラク。バス・トイレ別の仕様で、のんびりお風呂タイムも楽しめます。
通信設備面ではBSアンテナがありますので、おうち時間も充実するでしょう(別途工事、契約料が必要な場合あり)。
お金・契約の情報
※「-」と表示されているものは、実際は料金が発生するものもございます。詳細はお問い合わせください。
| 家賃 | 6.5万円 | 管理費・共益費 | なし |
|---|---|---|---|
| 敷金 | 13万円 | 礼金 | 6.5万円 |
| 入居決定でお祝い金最大100,000円 | |||
| 保証金 | - | 償却・敷引 | - |
| 住宅保険料 | 2万円(2年) | 更新料 | - |
| 保証会社利用 | 必須 | 保証会社名 | 全保連 |
| 保証会社費用 | - | 保証会社備考 | 初回保証委託料:月額賃料合計の50%(下限額20,000円) 年間保証委託料:13,000円(1年毎) |
| 契約形態 | - | 契約期間 | 2年 |
| 入居・引渡期間 | 相談 | 現況 | - |
| 契約備考 | 鍵設定料(税込) 16500円 | ||
部屋の情報
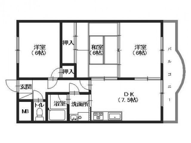
| 間取り | 3DK | 専有面積 | 58.5m2 |
|---|---|---|---|
| 間取り詳細 | DK(7.5帖)、和室(6帖)、洋室(6帖) | ||
| 所在階 / 向き | 2階 / 南西 | バルコニー面積 | - |
| 水道 / ガス | ガス【プロパン】 | ||
| 設備 | バス・トイレ別、テレビドアホン、バルコニー、フローリング、BSアンテナ、洗濯機:室内 | ||
| 当社物件ID | 159746507 | ||
建物の情報
| 建物名 | メルヴェイユ | ||
|---|---|---|---|
| 所在地 | 広島県広島市安佐南区 | ||
| 交通 | 可部線 梅林駅(広島) 徒歩8分 | ||
| 階数 | 4階建 | 総戸数 | 11戸 |
| 築年月 | 1996年02月 / 築31年 | エレベーター | - |
| 駐車場 | 空有 | バイク置き場 | - |
| 駐輪場 | あり | 管理人/管理会社 | - |
| 建物種別 | マンション | 建物構造 | RC(鉄筋コンクリート) |
この部屋の取扱い不動産会社
| 会社名 | アパマンショップ新白島駅前店 | ||
|---|---|---|---|
| 所在地 | 広島県広島市中区西白島町 3-9服部ビル1階 | 交通 | 山陽本線新白島から徒歩1分 |
| 営業時間 | 09:30〜18:30 | 定休日 | 水曜日 |
| 免許番号 | 広島県知事(10)5499 | 取引態様 | 仲介 |
| 不動産会社管理番号 | 111199180 | 当社管理番号 | 4 |
| 所属団体 | (公社)広島県宅地建物取引業協会 | ||
| 公正取引協議会 | 中国地区不動産公正取引協議会加盟 | ||
| 取扱い物件情報 | 物件詳細へ | ||
※各種情報と現状に差異がある場合は、現状優先となります。問い合わせをすることで、より詳しい条件、情報を確認する事ができます。
提供:アパマンショップ新白島駅前店
この物件が気になったら掲載期限まであと13日
メルヴェイユに条件(家賃・エリア)が近い物件一覧
| 写真 | 家賃 管理費等 | 敷金 礼金 | 間取り 専有面積 | 築年数 | 最寄り駅 所在地 | キープ | 詳細 |
|---|---|---|---|---|---|---|---|
アパート グリーンメゾン(2LDK/1階) | |||||||
![]() | 6.8万円 なし | 6.8万円 6.8万円 | 2LDK 53.66m2 | 築39年 | 可部線 下祇園駅 徒歩14分 アストラムライン 祇園新橋北駅 徒歩28分 広島県広島市安佐南区 | 詳細を見る | |
マンション PADDYIII(2DK/4階) | |||||||
![]() | 5.9万円 3,000円 | 5.9万円 5.9万円 | 2DK 45.36m2 | 築31年 | アストラムライン 祇園新橋北駅 徒歩13分 可部線 下祇園駅 徒歩13分 広島県広島市安佐南区西原4丁目 | 詳細を見る | |
マンション キャピタル祇園(1K/3階) | |||||||
![]() | 4万円 なし | 8万円 4万円 | 1K 19.44m2 | 築31年 | 可部線 下祇園駅 徒歩4分 アストラムライン 祇園新橋北駅 徒歩10分 広島県広島市安佐南区祇園1丁目 | 詳細を見る | |
マンション カサグランデII(1K/1階) | |||||||
![]() | 4.9万円 なし | 4.9万円 4.9万円 | 1K 28m2 | 築28年 | 可部線 古市橋駅 徒歩9分 可部線 大町駅(広島) 徒歩15分 広島県広島市安佐南区大町東1丁目 | 詳細を見る | |
アパート ソア長束(ワンルーム/2階) | |||||||
![]() | 4.2万円 3,000円 | なし なし | ワンルーム 17.36m2 | 築10年 | 可部線 安芸長束駅 徒歩11分 アストラムライン 祇園新橋北駅 徒歩21分 広島県広島市安佐南区長束6丁目 | 詳細を見る | |






