賃貸マンション
プライムアーバン神楽坂の賃貸物件情報(1K/3階)
| 家賃 | 管理費等 | 敷金 | 礼金 | 間取り | 専有面積 |
|---|---|---|---|---|---|
| 11.1万円 | 8,000円 | 11.1万円 | 11.1万円 | 1K | 20.48m2 |
入居決定でお祝い金最大100,000円
- 保証金
- -
- 償却・敷引
- -
- 築年数
- 築18年
- 所在階
- 3階
- 向き
- 東
Point
【DoDoNPA目黒店完全予約制】1日4組様限定の完全予約制を導入いたしました!*来店・ZOOMどちらも◎お一人おひとりの希望に沿ったお部屋探しをいたしております。是非、お問い合わせください!
提供:神宮前不動産(株)公園前店(SUUMO経由)

詳細情報 プライムアーバン神楽坂
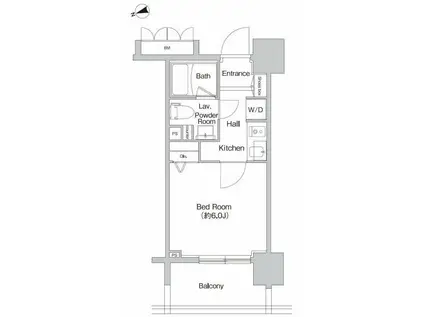
物件紹介
プライムアーバン神楽坂は東京メトロ有楽町線江戸川橋駅から徒歩3分にあり、駅近で通勤通学に便利なマンションです。
このお部屋は2階以上に位置しているので、通行人や周囲の住人からの視線が気になりにくく、防犯面でも安心。建物のエントランスはオートロックがついており、インターホンにはTVモニタもついているため、相手の顔を確認してから来客対応することができます。
フローリングのお部屋なのでお掃除もラクラク。キッチンはシステムキッチン仕様になっていますので、お料理好きの方にもぴったり。バス・トイレは別なので、のんびりお風呂タイムも楽しめるでしょう。また、雨の日でも浴室乾燥機を使えば、お洗濯も問題ありません。
通信設備面では、インターネット接続が可能です。また、BSアンテナ・CSアンテナがありCATVにも対応しているので、おうち時間も充実するでしょう(別途工事、契約料が必要な場合あり)。
建物にはエレベーターがついているので、重い荷物があっても安心。共用部には宅配ボックスが設定されているので、不在の時にも荷物を受け取ることができます。
このお部屋は2階以上に位置しているので、通行人や周囲の住人からの視線が気になりにくく、防犯面でも安心。建物のエントランスはオートロックがついており、インターホンにはTVモニタもついているため、相手の顔を確認してから来客対応することができます。
フローリングのお部屋なのでお掃除もラクラク。キッチンはシステムキッチン仕様になっていますので、お料理好きの方にもぴったり。バス・トイレは別なので、のんびりお風呂タイムも楽しめるでしょう。また、雨の日でも浴室乾燥機を使えば、お洗濯も問題ありません。
通信設備面では、インターネット接続が可能です。また、BSアンテナ・CSアンテナがありCATVにも対応しているので、おうち時間も充実するでしょう(別途工事、契約料が必要な場合あり)。
建物にはエレベーターがついているので、重い荷物があっても安心。共用部には宅配ボックスが設定されているので、不在の時にも荷物を受け取ることができます。
お金・契約の情報
※「-」と表示されているものは、実際は料金が発生するものもございます。詳細はお問い合わせください。
| 家賃 | 11.1万円 | 管理費・共益費 | 8,000円 |
|---|---|---|---|
| 敷金 | 11.1万円 | 礼金 | 11.1万円 |
| 入居決定でお祝い金最大100,000円 | |||
| 保証金 | - | 償却・敷引 | - |
| 住宅保険料 | - | 更新料 | - |
| 保証会社利用 | 必須 | 保証会社名 | - |
| 保証会社費用 | - | 保証会社備考 | 保証会社利用必 【B】賃料総額40%/月額800円【GTN】賃料総額50%/月額2 000円 法人」利用できません / 最低保証料:15 000円 【】※外国籍 留学生 【キャンパス】初期費用:15 000円 / 月額800円 ※学生証提出 東京海上ミレア少額短期保険:21 500円(2年契約) |
| 契約形態 | - | 契約期間 | - |
| 入居・引渡期間 | 即時 | 現況 | - |
| 契約備考 | 合計3.63万円(内訳:鍵交換代3.63万円) 更新料 新賃料1.00ヶ月分 1K 普通借家2年 損保【要】 バストイレ別、バルコニー、エアコン、ガスコンロ対応、クロゼット、フローリング、TVインターホン、浴室乾燥機、オートロック、室内洗濯置、シューズボックス、システムキッチン、温水洗浄便座、脱衣所、エレベーター、洗面所独立、2口コンロ、宅配ボックス、CATV、光ファイバー、即入居可、防犯カメラ、全居室洋室、敷金1ヶ月、カードキー、2沿線利用可、CS、保証金不要、エレベーター2基、耐火構造、2駅利用可、3駅以上利用可、駅徒歩5分以内、駅徒歩10分以内、敷地内ごみ置き場、都市ガス、BS、礼金1ヶ月、保証会社利用可 | ||
部屋の情報
| 間取り | 1K | 専有面積 | 20.48m2 |
|---|---|---|---|
| 所在階 / 向き | 3階 / 東 | バルコニー面積 | - |
| 水道 / ガス | - | ||
| 設備 | バス・トイレ別、2階以上、オートロック、テレビドアホン、宅配ボックス、浴室乾燥機、インターネット対応、システムキッチン、エアコン、エレベーター、温水洗浄便座、バルコニー、フローリング、洗髪洗面化粧台、2口コンロ、コンロ:ガス、CATV、CSアンテナ、BSアンテナ、洗濯機:室内 | ||
| 当社物件ID | 17858031 | ||
建物の情報
| 建物名 | プライムアーバン神楽坂 | ||
|---|---|---|---|
| 所在地 | 東京都新宿区山吹町 | ||
| 交通 | 東京メトロ有楽町線 江戸川橋駅 徒歩3分 東京メトロ東西線 神楽坂駅 徒歩8分 東京メトロ東西線 早稲田駅(メトロ) 徒歩14分 | ||
| 階数 | 11階建 | 総戸数 | 99戸 |
| 築年月 | 2008年03月 / 築18年 | エレベーター | あり |
| 駐車場 | なし | バイク置き場 | - |
| 駐輪場 | - | 管理人/管理会社 | - |
| 建物種別 | マンション | 建物構造 | RC(鉄筋コンクリート) |
この部屋の取扱い不動産会社
| 会社名 | (株)DoDoNPA目黒店(SUUMO経由) | ||
|---|---|---|---|
| 所在地 | 東京都目黒区下目黒1-1-14 コノトラビル1階 | 交通 | - |
| 営業時間 | 10:00~19:00 | 定休日 | 無し |
| 免許番号 | 東京都知事110262 | 取引態様 | 仲介 |
| 不動産会社管理番号 | 100478005847 | 当社管理番号 | 89 |
| 所属団体 | (公社)全日本不動産協会東京都本部会員 | ||
| 公正取引協議会 | (公社)首都圏不動産公正取引協議会加盟 | ||
| 取扱い物件情報 | 物件詳細へ | ||
※各種情報と現状に差異がある場合は、現状優先となります。問い合わせをすることで、より詳しい条件、情報を確認する事ができます。
提供:(株)DoDoNPA目黒店(SUUMO経由)
この物件が気になったら掲載期限まであと10日
プライムアーバン神楽坂に条件(家賃・エリア)が近い物件一覧
| 写真 | 家賃 管理費等 | 敷金 礼金 | 間取り 専有面積 | 築年数 | 最寄り駅 所在地 | キープ | 詳細 |
|---|---|---|---|---|---|---|---|
マンション 東急ドエル・アルス音羽2(ワンルーム/3階) | |||||||
![]() | 9.1万円 9,000円 | 9.1万円 9.1万円 | ワンルーム 21.73m2 | 築40年 | 東京地下鉄有楽町線 江戸川橋駅 徒歩5分 東京地下鉄有楽町線 護国寺駅 徒歩7分 東京都文京区音羽1丁目 | 詳細を見る | |
マンション ハイツ桜丘(1K/1階) | |||||||
![]() | 14.9万円 8,000円 | 14.9万円 14.9万円 | 1K 28.93m2 | 築5年 | 山手線 渋谷駅 徒歩7分 東急東横線 代官山駅 徒歩12分 京王電鉄井の頭線 神泉駅 徒歩16分 東京都渋谷区桜丘町 | 詳細を見る | |


