賃貸マンション
ファミール大通の賃貸物件情報(ワンルーム/6階)
| 家賃 | 管理費等 | 敷金 | 礼金 | 間取り | 専有面積 |
|---|---|---|---|---|---|
| 2.9万円 | 6,500円 | 2.9万円 | なし | ワンルーム | 20.15m2 |
入居決定でお祝い金最大100,000円
- 保証金
- -
- 償却・敷引
- -
- 築年数
- 築49年
- 所在階
- 6階
- 向き
- 東
Point
給湯料 基本料 月額650円水道料(基本) 月額2112円暖房料(基本) 月額4630円(114月)月額2315円(10月・5月)・集中暖房・駐車場に空き有り月額15000円・夜
提供:(株)アパマン・プラザ(SUUMO経由)

詳細情報 ファミール大通
物件紹介
ファミール大通は地下鉄東西線西18丁目駅から徒歩1分にあり、駅近で通勤通学に便利なマンションです。
このお部屋は2階以上に位置しているので通行人や周囲の住人からの視線が気になりにくく、建物のエントランスはオートロックがついているので防犯性が高くなっています。
フローリングのお部屋なのでお掃除もラクラク。キッチンはシステムキッチン仕様になっていますので、お料理好きの方にもぴったり。
通信設備面ではBSアンテナがありCATVにも対応しているので、おうち時間も充実するでしょう(別途工事、契約料が必要な場合あり)。
建物にはエレベーターがついているので、重い荷物があっても安心。共用部には宅配ボックスが設定されているので、不在の時にも荷物を受け取ることができます。
このお部屋は2階以上に位置しているので通行人や周囲の住人からの視線が気になりにくく、建物のエントランスはオートロックがついているので防犯性が高くなっています。
フローリングのお部屋なのでお掃除もラクラク。キッチンはシステムキッチン仕様になっていますので、お料理好きの方にもぴったり。
通信設備面ではBSアンテナがありCATVにも対応しているので、おうち時間も充実するでしょう(別途工事、契約料が必要な場合あり)。
建物にはエレベーターがついているので、重い荷物があっても安心。共用部には宅配ボックスが設定されているので、不在の時にも荷物を受け取ることができます。
お金・契約の情報
※「-」と表示されているものは、実際は料金が発生するものもございます。詳細はお問い合わせください。
| 家賃 | 2.9万円 | 管理費・共益費 | 6,500円 |
|---|---|---|---|
| 敷金 | 2.9万円 | 礼金 | なし |
| 入居決定でお祝い金最大100,000円 | |||
| 保証金 | - | 償却・敷引 | - |
| 住宅保険料 | - | 更新料 | - |
| 保証会社利用 | 利用可 | 保証会社名 | 日本セーフティー |
| 保証会社費用 | - | 保証会社備考 | 日本セーフティー利用可 契約時に賃料の50%(最低2万円)更新時に1万円 保証人がいない場合に保証会社利用。 |
| 契約形態 | - | 契約期間 | - |
| 入居・引渡期間 | 即時 | 現況 | - |
| 入居可能条件 | 事務所可 | ||
| 契約備考 | 地下鉄東西線西18丁目駅徒歩1分/通勤管理/お部屋はワンルームで窓は東向、眺望日当たりは良く暖房はセントラルヒーティング、冬も暖かく過ごせ暖房費も高くはありません。入り口玄関は夜間オートロックで日中は管理人がいます。防犯の面もしっかりしています。また、宅配ボックスも設置されています。 ケーブルテレビ・インターネット光ファイバーも接続可能です。 合計0.88万円(内訳:事務手数料0.88万円) 室内清掃費用 28600円 水道基本料 月額2112円 給湯基本料 月額650円 ワンルーム 二人入居可/事務所利用相談 普通借家1年 損保【0.6万円1年】 エアコン、ガスコンロ対応、クロゼット、フローリング、オートロック、室内洗濯置、陽当り良好、シューズボックス、システムキッチン、エレベーター、駐輪場、宅配ボックス、押入、CATV、即入居可、防犯カメラ、照明付、分譲賃貸、全居室洋室、冷蔵庫、敷金1ヶ月、24時間緊急通報システム、カードキー、2沿線利用可、収納1間半、洗濯機、眺望良好、初期費用10万円以下、内階段、フロントサービス、平坦地、電子レンジ、ベッド、家電付、家具付、耐火構造、耐震構造、セントラル空調、カーテン付、2駅利用可、3駅以上利用可、路面電車沿線、駅前、駅徒歩5分以内、駅徒歩10分以内、天井高2.5m以上、24時間ゴミ出し可、日勤管理、当社管理物件、セキュリティ会社加入済、都市ガス、フローリング張替、BS、年内入居可、年度内入居可、保証会社利用可、全室照明付、テレビ、ダイニングテーブル・デスク | ||
部屋の情報
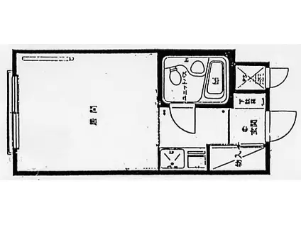
| 間取り | ワンルーム | 専有面積 | 20.15m2 |
|---|---|---|---|
| 所在階 / 向き | 6階 / 東 | バルコニー面積 | - |
| 水道 / ガス | - | ||
| 設備 | 2階以上、オートロック、宅配ボックス、システムキッチン、エアコン、エレベーター、フローリング、コンロ:ガス、CATV、BSアンテナ、洗濯機:室内 | ||
| 当社物件ID | 29716074 | ||
建物の情報
| 建物名 | ファミール大通 | ||
|---|---|---|---|
| 所在地 | 北海道札幌市中央区大通西 | ||
| 交通 | 地下鉄東西線 西18丁目駅 徒歩1分 札幌市電 西15丁目駅 徒歩6分 地下鉄東西線 円山公園駅 徒歩12分 | ||
| 階数 | 10階建 | 総戸数 | 115戸 |
| 築年月 | 1977年11月 / 築49年 | エレベーター | あり |
| 駐車場 | なし | バイク置き場 | - |
| 駐輪場 | あり | 管理人/管理会社 | - |
| 周辺環境 | その他 一紗(飲食店)まで120m その他 ローソン 札幌大通西十九丁目店(コンビニ)まで80m その他 セイコーマート 大通店(コンビニ)まで160m その他 北海道立札幌医科大学(大学・短大)まで350m その他 北海道立近代美術館(その他)まで300m その他 札幌医科大学付属病院(病院)まで450m | ||
| 建物種別 | マンション | 建物構造 | SRC(鉄骨鉄筋コンクリート) |
この部屋の取扱い不動産会社
| 会社名 | (株)アパマン・プラザ(SUUMO経由) | ||
|---|---|---|---|
| 所在地 | 北海道札幌市中央区南九条西4-1-12 | 交通 | - |
| 営業時間 | 9:10~18:30 | 定休日 | 日曜日 |
| 免許番号 | 北海道知事石狩3992 | 取引態様 | 仲介 |
| 不動産会社管理番号 | 100479917401 | 当社管理番号 | 89 |
| 所属団体 | (公社)北海道宅地建物取引業協会会員 | ||
| 公正取引協議会 | (一社)北海道不動産公正取引協議会加盟 | ||
| 取扱い物件情報 | 物件詳細へ | ||
※各種情報と現状に差異がある場合は、現状優先となります。問い合わせをすることで、より詳しい条件、情報を確認する事ができます。
提供:(株)アパマン・プラザ(SUUMO経由)
この物件が気になったら掲載期限まであと10日
ファミール大通に条件(家賃・エリア)が近い物件一覧
| 写真 | 家賃 管理費等 | 敷金 礼金 | 間取り 専有面積 | 築年数 | 最寄り駅 所在地 | キープ | 詳細 |
|---|---|---|---|---|---|---|---|
マンション スタジオ9(1K/1階) | |||||||
![]() | 3.8万円 なし | なし なし | 1K 20.67m2 | 築38年 | 札幌市南北線 中島公園駅 徒歩9分 北海道札幌市中央区南九条西8丁目 | 詳細を見る | |
アパート フィリップ千歳(1K/1階) | |||||||
![]() | 4.5万円 3,000円 | なし なし | 1K 23.18m2 | 築21年 | JR千歳線 千歳駅(北海道) 徒歩34分 JR千歳線 南千歳駅 徒歩69分 JR千歳線 長都駅 徒歩72分 北海道千歳市桂木 | 詳細を見る | |
マンション センタービル(1DK/2階) | |||||||
![]() | 3.5万円 5,000円 | なし なし | 1DK 29.63m2 | 築41年 | 札幌市南北線 幌平橋駅 徒歩11分 北海道札幌市中央区南十五条西9丁目 | 詳細を見る | |
マンション コートロティ大通(1DK/2階) | |||||||
![]() | 4.6万円 4,000円 | 4.6万円 なし | 1DK 37.79m2 | 築31年 | 札幌市東西線 バスセンター前駅 徒歩6分 北海道札幌市中央区大通東8丁目 | 詳細を見る | |
アパート フロンティア(1LDK/1階) | |||||||
![]() | 4万円 2,000円 | 4万円 なし | 1LDK 36.3m2 | 築30年 | 札幌市軌道線 石山通駅 徒歩5分 北海道札幌市中央区南十九条西11丁目 | 詳細を見る | |
アパート スプラッシュ(2LDK/1階) | |||||||
![]() | 3.5万円 なし | 3.5万円 なし | 2LDK 45.9m2 | 築35年 | 千歳線 恵み野駅 徒歩21分 北海道恵庭市柏木町5丁目 | 詳細を見る | |
アパート 近松商店上(2LDK/3階) | |||||||
![]() | 3.5万円 なし | なし 3.5万円 | 2LDK 52m2 | 築56年 | 函館本線 小樽駅 徒歩20分 北海道小樽市緑2丁目 | 詳細を見る | |
アパート フェリオ文京台(1DK/1階) | |||||||
![]() | 2.1万円 2,000円 | なし なし | 1DK 36.3m2 | 築31年 | 函館本線 森林公園駅(北海道) 徒歩18分 北海道江別市文京台 | 詳細を見る | |







/105x80-f1-q70-wp1)

