賃貸マンション
BPRレジデンス青砥の賃貸物件情報(1K/9階)
| 家賃 | 管理費等 | 敷金 | 礼金 | 間取り | 専有面積 |
|---|---|---|---|---|---|
| 8.2万円 | 1万円 | 8.2万円 | 8.2万円 | 1K | 20.2m2 |
入居決定でお祝い金最大100,000円
- 保証金
- -
- 償却・敷引
- -
- 築年数
- 築5年
- 所在階
- 9階
- 向き
- 北西
Point
遠隔地のお客様や、忙しく店舗まで足を運ぶのが難しいお客様にも安心のオンラインシステム。弊社は来店不要で契約が可能です。オンライン接客・内見・IT重要事項説明等のご要望がございましたらご相談下さい。
提供:(株)ミニミニ城北青砥店(SUUMO経由)

詳細情報 BPRレジデンス青砥
物件紹介
BPRレジデンス青砥は京成押上線青砥駅から徒歩1分にあり、駅近で通勤通学に便利なマンションです。
このお部屋は2階以上に位置しているので、通行人や周囲の住人からの視線が気になりにくく、防犯面でも安心。建物のエントランスはオートロックがついており、インターホンにはTVモニタもついているため、相手の顔を確認してから来客対応することができます。
人気の角部屋で周囲の居住者の生活音も気になりにくく、また、フローリングのお部屋なのでお掃除もラクラク。キッチンはシステムキッチン仕様になっていますので、お料理好きの方にもぴったり。バス・トイレは別なので、のんびりお風呂タイムも楽しめるでしょう。また、雨の日でも浴室乾燥機を使えば、お洗濯も問題ありません。
通信設備面では、インターネットが無料で使えるので、月々の出費を抑えられるのも魅力です。また、BSアンテナ・CSアンテナもありますので、おうち時間も充実するでしょう(別途工事、BS・CSの契約料等が必要な場合あり)。
建物にはエレベーターがついているので、重い荷物があっても安心。共用部には宅配ボックスが設定されているので、不在の時にも荷物を受け取ることができます。また、ペット飼育の相談ができますので、あなたの大切な家族の一員も快適に暮らせるか、ぜひ確認してみてください。
このお部屋は2階以上に位置しているので、通行人や周囲の住人からの視線が気になりにくく、防犯面でも安心。建物のエントランスはオートロックがついており、インターホンにはTVモニタもついているため、相手の顔を確認してから来客対応することができます。
人気の角部屋で周囲の居住者の生活音も気になりにくく、また、フローリングのお部屋なのでお掃除もラクラク。キッチンはシステムキッチン仕様になっていますので、お料理好きの方にもぴったり。バス・トイレは別なので、のんびりお風呂タイムも楽しめるでしょう。また、雨の日でも浴室乾燥機を使えば、お洗濯も問題ありません。
通信設備面では、インターネットが無料で使えるので、月々の出費を抑えられるのも魅力です。また、BSアンテナ・CSアンテナもありますので、おうち時間も充実するでしょう(別途工事、BS・CSの契約料等が必要な場合あり)。
建物にはエレベーターがついているので、重い荷物があっても安心。共用部には宅配ボックスが設定されているので、不在の時にも荷物を受け取ることができます。また、ペット飼育の相談ができますので、あなたの大切な家族の一員も快適に暮らせるか、ぜひ確認してみてください。
お金・契約の情報
※「-」と表示されているものは、実際は料金が発生するものもございます。詳細はお問い合わせください。
| 家賃 | 8.2万円 | 管理費・共益費 | 1万円 |
|---|---|---|---|
| 敷金 | 8.2万円 | 礼金 | 8.2万円 |
| 入居決定でお祝い金最大100,000円 | |||
| 保証金 | - | 償却・敷引 | - |
| 住宅保険料 | - | 更新料 | - |
| 保証会社利用 | 必須 | 保証会社名 | - |
| 保証会社費用 | - | 保証会社備考 | 保証会社利用必 その他 家賃保証会社 初回保証料50% |
| 契約形態 | - | 契約期間 | - |
| 入居・引渡期間 | - | 現況 | - |
| 入居可能条件 | ペット相談 | ||
| 契約備考 | 合計8.25万円(内訳:清掃代3.85万円/エアコン清掃費1.1万円/鍵交換料3.3万円) 1K ペット相談 損保【1.66万円2年】 バストイレ別、バルコニー、エアコン、ガスコンロ対応、クロゼット、フローリング、シャワー付洗面台、TVインターホン、浴室乾燥機、オートロック、室内洗濯置、シューズボックス、システムキッチン、角住戸、温水洗浄便座、エレベーター、洗面所独立、2口コンロ、駐輪場、宅配ボックス、防犯カメラ、ペット相談、バイク置場、2沿線利用可、CS、ネット使用料不要、駅徒歩5分以内、敷地内ごみ置き場、築5年以内、都市ガス、BS、IT重説対応物件 入居日:'26年2月下旬 | ||
部屋の情報
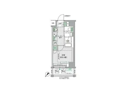
| 間取り | 1K | 専有面積 | 20.2m2 |
|---|---|---|---|
| 所在階 / 向き | 9階 / 北西 | バルコニー面積 | - |
| 水道 / ガス | - | ||
| 設備 | バス・トイレ別、2階以上、オートロック、テレビドアホン、宅配ボックス、浴室乾燥機、インターネット対応、システムキッチン、エアコン、エレベーター、温水洗浄便座、角部屋、バルコニー、フローリング、洗髪洗面化粧台、2口コンロ、コンロ:ガス、CSアンテナ、BSアンテナ、インターネット使用料無料、洗濯機:室内 | ||
| 当社物件ID | 146983327 | ||
建物の情報
| 建物名 | BPRレジデンス青砥 | ||
|---|---|---|---|
| 所在地 | 東京都葛飾区青戸 | ||
| 交通 | 京成押上線 青砥駅 徒歩1分 京成押上線 京成立石駅 徒歩16分 京成本線 京成高砂駅 徒歩17分 | ||
| 階数 | 12階建 | 総戸数 | 66戸 |
| 築年月 | 2021年09月 / 築5年 | エレベーター | あり |
| 駐車場 | 空有 25000円 | バイク置き場 | あり |
| 駐輪場 | あり | 管理人/管理会社 | - |
| 周辺環境 | その他 葛飾区役所(役所)まで983m その他 葛飾青戸郵便局(郵便局)まで152m その他 葛飾区立青戸地区図書館(図書館)まで659m その他 葛飾警察署(警察署・交番)まで1924m その他 青戸平和公園(公園)まで727m その他 葛飾厚生会東立病院(病院)まで347m | ||
| 建物種別 | マンション | 建物構造 | RC(鉄筋コンクリート) |
この部屋の取扱い不動産会社
| 会社名 | (株)ミニミニ城北青砥店(SUUMO経由) | ||
|---|---|---|---|
| 所在地 | 東京都葛飾区青戸3-39-9 GrandShip1階 | 交通 | - |
| 営業時間 | 10:00~18:00 | 定休日 | 年末年始(12/27~1/3) |
| 免許番号 | 国土交通大臣6346 | 取引態様 | 仲介 |
| 不動産会社管理番号 | 100480194350 | 当社管理番号 | 89 |
| 取扱い物件情報 | 物件詳細へ | ||
※各種情報と現状に差異がある場合は、現状優先となります。問い合わせをすることで、より詳しい条件、情報を確認する事ができます。
提供:(株)ミニミニ城北青砥店(SUUMO経由)
この物件が気になったら掲載期限まであと11日
BPRレジデンス青砥に条件(家賃・エリア)が近い物件一覧
| 写真 | 家賃 管理費等 | 敷金 礼金 | 間取り 専有面積 | 築年数 | 最寄り駅 所在地 | キープ | 詳細 |
|---|---|---|---|---|---|---|---|
マンション プラウドフラット両国サウス(1K/3階) | |||||||
![]() | 12.3万円 1万円 | 12.3万円 なし | 1K 25.16m2 | 築4年 | 東京都大江戸線 森下駅(東京) 徒歩8分 東京都新宿線 森下駅(東京) 徒歩8分 総武・中央緩行線 両国駅 徒歩10分 東京都墨田区千歳1丁目 | 詳細を見る | |
マンション スプレンダーパレス(ワンルーム/3階) | |||||||
![]() | 9.3万円 5,000円 | なし なし | ワンルーム 28.16m2 | 築29年 | 東京都大江戸線 森下駅(東京) 徒歩8分 東京都新宿線 菊川駅(東京) 徒歩9分 総武・中央緩行線 両国駅 徒歩15分 東京都墨田区立川2丁目 | 詳細を見る | |
マンション THE ARCTURUS SPICA(1K/2階) | |||||||
![]() | 11万円 1.5万円 | 11万円 11万円 | 1K 30.43m2 | 築5年 | 東武鉄道亀戸線 小村井駅 徒歩5分 京成電鉄押上線 京成曳舟駅 徒歩13分 東京都墨田区文花3丁目 | 詳細を見る | |
マンション ドゥーエ両国(ワンルーム/7階) | |||||||
![]() | 10万円 1万円 | 10万円 10万円 | ワンルーム 24.03m2 | 築18年 | 東京都大江戸線 両国駅 徒歩4分 総武・中央緩行線 両国駅 徒歩10分 東京都墨田区横網2丁目 | 詳細を見る | |
マンション クオリタス押上業平(ワンルーム/6階) | |||||||
![]() | 11.9万円 1万円 | なし なし | ワンルーム 25.2m2 | 築4年 | 東京地下鉄半蔵門線 押上駅 徒歩4分 東京都墨田区業平3丁目 | 詳細を見る | |
マンション クレイシア両国ルクール(1K/6階) | |||||||
![]() | 9.6万円 1.2万円 | 9.6万円 9.6万円 | 1K 25.84m2 | 築8年 | 東京都大江戸線 両国駅 徒歩7分 総武・中央緩行線 両国駅 徒歩13分 総武・中央緩行線 錦糸町駅 徒歩18分 東京都墨田区石原2丁目 | 詳細を見る | |
マンション プラウドフラット両国(1K/11階) | |||||||
![]() | 12.5万円 1万円 | 12.5万円 12.5万円 | 1K 25.2m2 | 築7年 | 東京都大江戸線 両国駅 徒歩4分 東京都新宿線 森下駅(東京) 徒歩5分 総武・中央緩行線 両国駅 徒歩8分 東京都墨田区緑1丁目 | 詳細を見る | |
マンション オーキッドレジデンス両国(ワンルーム/3階) | |||||||
![]() | 12.2万円 1.2万円 | 12.2万円 なし | ワンルーム 26.69m2 | 築6年 | 東京都大江戸線 両国駅 徒歩5分 東京都新宿線 森下駅(東京) 徒歩7分 総武・中央緩行線 両国駅 徒歩10分 東京都墨田区緑1丁目 | 詳細を見る | |









