賃貸マンション
ヴィラスタジオーネ御所南の賃貸物件情報(1LDK/4階)
| 家賃 | 管理費等 | 敷金 | 礼金 | 間取り | 専有面積 |
|---|---|---|---|---|---|
| 18万円 | 1.2万円 | なし | 36万円 | 1LDK | 58.05m2 |
入居決定でお祝い金最大100,000円
- 保証金
- -
- 償却・敷引
- -
- 築年数
- 築10年
- 所在階
- 4階
- 向き
- 北
Point
「京都市役所前駅」すぐの好立地に、ペット相談可の賃貸マンション、広いリビングと収納が魅力の1LDK、使いやすい間取りです。ペットに嬉しい設備が整っています。
提供:(株)アルティム伏見桃山店(SUUMO経由)

詳細情報 ヴィラスタジオーネ御所南
物件紹介
ヴィラスタジオーネ御所南は地下鉄東西線京都市役所前駅から徒歩2分にあり、駅近で通勤通学に便利なマンションです。
このお部屋は2階以上に位置しているので、通行人や周囲の住人からの視線が気になりにくく、防犯面でも安心。建物のエントランスはオートロックがついており、インターホンにはTVモニタもついているため、相手の顔を確認してから来客対応することができます。
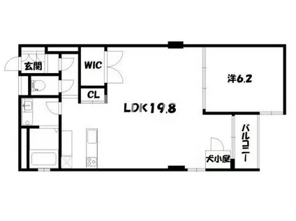
人気の南向き・フローリングのお部屋。角部屋でもあるため、周囲の居住者の生活音も気になりにくい場所です。室内にはウォークインクローゼットがありますので、たくさんの荷物も効率的に収納ができます。キッチンはシステムキッチン仕様になっていますので、お料理好きの方にもぴったり。バス・トイレは別なので、のんびりお風呂タイムも楽しめるでしょう。また、雨の日でも浴室乾燥機を使えば、お洗濯も問題ありません。
通信設備面では、インターネットが無料で使えるので、月々の出費を抑えられるのも魅力です。また、BSアンテナ・CSアンテナもありますので、おうち時間も充実するでしょう(別途工事、BS・CSの契約料等が必要な場合あり)。
建物にはエレベーターがついているので、重い荷物があっても安心。共用部には宅配ボックスが設定されているので、不在の時にも荷物を受け取ることができます。また、ペット飼育の相談ができますので、あなたの大切な家族の一員も快適に暮らせるか、ぜひ確認してみてください。
このお部屋は2階以上に位置しているので、通行人や周囲の住人からの視線が気になりにくく、防犯面でも安心。建物のエントランスはオートロックがついており、インターホンにはTVモニタもついているため、相手の顔を確認してから来客対応することができます。
人気の南向き・フローリングのお部屋。角部屋でもあるため、周囲の居住者の生活音も気になりにくい場所です。室内にはウォークインクローゼットがありますので、たくさんの荷物も効率的に収納ができます。キッチンはシステムキッチン仕様になっていますので、お料理好きの方にもぴったり。バス・トイレは別なので、のんびりお風呂タイムも楽しめるでしょう。また、雨の日でも浴室乾燥機を使えば、お洗濯も問題ありません。
通信設備面では、インターネットが無料で使えるので、月々の出費を抑えられるのも魅力です。また、BSアンテナ・CSアンテナもありますので、おうち時間も充実するでしょう(別途工事、BS・CSの契約料等が必要な場合あり)。
建物にはエレベーターがついているので、重い荷物があっても安心。共用部には宅配ボックスが設定されているので、不在の時にも荷物を受け取ることができます。また、ペット飼育の相談ができますので、あなたの大切な家族の一員も快適に暮らせるか、ぜひ確認してみてください。
お金・契約の情報
※「-」と表示されているものは、実際は料金が発生するものもございます。詳細はお問い合わせください。
| 家賃 | 18万円 | 管理費・共益費 | 1.2万円 |
|---|---|---|---|
| 敷金 | なし | 礼金 | 36万円 |
| 入居決定でお祝い金最大100,000円 | |||
| 保証金 | - | 償却・敷引 | - |
| 住宅保険料 | - | 更新料 | - |
| 保証会社利用 | 必須 | 保証会社名 | 全保連 |
| 保証会社費用 | - | 保証会社備考 | 全保連利用必 初回:月額賃料の50%相当額 年更新15000円 80%で更新なし、学生の方は初回1万円のみキャンペーン利用可 |
| 契約形態 | - | 契約期間 | - |
| 入居・引渡期間 | 即時 | 現況 | - |
| 入居可能条件 | ペット相談 | ||
| 契約備考 | 駐輪場あり、犬・猫飼育可能、大型犬相談可(大型犬は躾教室等の証明書が必要)ペット1匹につき家賃3000円UP 合計2.37万円(内訳:24時間サポート16500円/町費(年間)7200円) 1LDK 二人入居可/ペット相談/ルームシェア相談 普通借家2年 損保【1.8万円2年】 バストイレ別、バルコニー、エアコン、ガスコンロ対応、クロゼット、フローリング、TVインターホン、オートロック、室内洗濯置、シューズボックス、システムキッチン、追焚機能浴室、温水洗浄便座、脱衣所、エレベーター、洗面所独立、洗面化粧台、駐輪場、宅配ボックス、光ファイバー、外壁タイル張り、即入居可、閑静な住宅地、敷金不要、3口以上コンロ、防犯カメラ、ペット相談、グリル付、ウォークインクロゼット、全居室フローリング、仲手0.55ヶ月、ルームシェア相談、3駅以上利用可、3沿線以上利用可、駅徒歩10分以内、LDK18畳以上、都市ガス、洗面所にドア、BS、礼金2ヶ月、IT重説対応物件、通風良好 | ||
部屋の情報
| 間取り | 1LDK | 専有面積 | 58.05m2 |
|---|---|---|---|
| 所在階 / 向き | 4階 / 北 | バルコニー面積 | - |
| 水道 / ガス | - | ||
| 設備 | バス・トイレ別、2階以上、オートロック、テレビドアホン、宅配ボックス、ウォークインクローゼット、追い焚き、インターネット対応、システムキッチン、エアコン、エレベーター、温水洗浄便座、バルコニー、フローリング、洗髪洗面化粧台、2口コンロ、コンロ:ガス、BSアンテナ、洗濯機:室内 | ||
| 当社物件ID | 46961951 | ||
建物の情報
| 建物名 | ヴィラスタジオーネ御所南 | ||
|---|---|---|---|
| 所在地 | 京都府京都市中京区橘町 | ||
| 交通 | 地下鉄東西線 京都市役所前駅 徒歩7分 京阪本線 三条駅(京都) 徒歩12分 阪急京都線 京都河原町駅 徒歩16分 | ||
| 階数 | 地下1地上6階建 | 総戸数 | 20戸 |
| 築年月 | 2016年04月 / 築10年 | エレベーター | あり |
| 駐車場 | なし | バイク置き場 | - |
| 駐輪場 | あり | 管理人/管理会社 | - |
| 周辺環境 | その他 スギ薬局 京都市役所前店(ドラッグストア)まで452m その他 私立平安女学院大学京都キャンパス(大学・短大)まで1533m その他 セブンイレブン 京都市役所西店(コンビニ)まで120m その他 ゼスト御池地下街(ショッピングセンター)まで263m その他 FRESCO(フレスコ) 御池店(スーパー)まで329m その他 京都御池柳馬場郵便局(郵便局)まで297m | ||
| 建物種別 | マンション | 建物構造 | RC(鉄筋コンクリート) |
この部屋の取扱い不動産会社
| 会社名 | (株)アルティム七条店(SUUMO経由) | ||
|---|---|---|---|
| 所在地 | 京都府京都市東山区七条通大和大路西入西之門町 549 澤村ビル1F | 交通 | - |
| 営業時間 | 10:00-19:00 | 定休日 | 毎週水曜日 |
| 免許番号 | 京都府知事11894 | 取引態様 | 仲介 |
| 不動産会社管理番号 | 100406435752 | 当社管理番号 | 89 |
| 所属団体 | (公社)京都府宅地建物取引業協会会員 | ||
| 公正取引協議会 | (公社)近畿地区不動産公正取引協議会加盟 | ||
| 取扱い物件情報 | 物件詳細へ | ||
※各種情報と現状に差異がある場合は、現状優先となります。問い合わせをすることで、より詳しい条件、情報を確認する事ができます。
提供:(株)アルティム七条店(SUUMO経由)
この物件が気になったら掲載期限まであと11日
ヴィラスタジオーネ御所南に条件(家賃・エリア)が近い物件一覧
| 写真 | 家賃 管理費等 | 敷金 礼金 | 間取り 専有面積 | 築年数 | 最寄り駅 所在地 | キープ | 詳細 |
|---|---|---|---|---|---|---|---|
マンション 山陰本線 円町駅 徒歩8分 築1年(1LDK/1階) | |||||||
![]() | 12.2万円 1万円 | 5万円 20万円 | 1LDK 49.22m2 | 築1年 | 山陰本線 円町駅 徒歩8分 京福北野線 北野白梅町駅 徒歩15分 京都府京都市中京区西ノ京馬代町 | 詳細を見る | |
マンション 京都市烏丸線 烏丸御池駅 徒歩9分 築42年(2LDK/6階) | |||||||
![]() | 18万円 2万円 | なし 18万円 | 2LDK 68.27m2 | 築42年 | 京都市烏丸線 烏丸御池駅 徒歩9分 京都市烏丸線 四条駅(京都市営) 徒歩12分 京都府京都市中京区朝倉町 | 詳細を見る | |
マンション 京都市烏丸線 烏丸御池駅 徒歩7分 築20年(2LDK/4階) | |||||||
![]() | 14.3万円 1万円 | 14.3万円 14.3万円 | 2LDK 50.56m2 | 築20年 | 京都市烏丸線 烏丸御池駅 徒歩7分 京都市烏丸線 四条駅(京都市営) 徒歩12分 京都府京都市中京区釜座町(三条通新町西入ル) | 詳細を見る | |
アパート 山陰本線 円町駅 徒歩8分 築1年(1LDK/2階) | |||||||
![]() | 10.8万円 6,000円 | 10.8万円 21.6万円 | 1LDK 47.06m2 | 築1年 | 山陰本線 円町駅 徒歩8分 山陰本線 花園駅(京都) 徒歩13分 京都府京都市中京区西ノ京馬代町 | 詳細を見る | |
マンション 京都市東西線 二条城前駅 徒歩3分 築1年(1SLDK/4階) | |||||||
![]() | 22万円 1万円 | 22万円 22万円 | 1SLDK 54.57m2 | 築1年 | 京都市東西線 二条城前駅 徒歩3分 京都市烏丸線 烏丸御池駅 徒歩9分 京都府京都市中京区三坊堀川町 | 詳細を見る | |
マンション 京都市烏丸線 四条駅(京都市営) 徒歩6分 築29年(2LDK/6階) | |||||||
![]() | 18万円 なし | なし 18万円 | 2LDK 57.54m2 | 築29年 | 京都市烏丸線 四条駅(京都市営) 徒歩6分 京都市烏丸線 烏丸御池駅 徒歩7分 京都府京都市中京区鯉山町 | 詳細を見る | |
マンション 京都市烏丸線 丸太町駅(京都市営) 徒歩4分 新築(1LDK/4階) | |||||||
![]() | 16.5万円 1万円 | 16.5万円 33万円 | 1LDK 44.24m2 | 新築 | 京都市烏丸線 丸太町駅(京都市営) 徒歩4分 京都市烏丸線 烏丸御池駅 徒歩7分 京都府京都市中京区壺屋町 | 詳細を見る | |
アパート 阪急電鉄京都線 西院駅(阪急) 徒歩5分 築1年(1LDK/3階) | |||||||
![]() | 12.2万円 8,000円 | なし 24.4万円 | 1LDK 40.24m2 | 築1年 | 阪急電鉄京都線 西院駅(阪急) 徒歩5分 京福嵐山本線 西院駅(京福) 徒歩5分 京都府京都市中京区壬生森町 | 詳細を見る | |








