賃貸一戸建て
京成電鉄本線 公津の杜駅 徒歩25分 2階建 築28年の賃貸物件情報(4LDK)
| 家賃 | 管理費等 | 敷金 | 礼金 | 間取り | 専有面積 |
|---|---|---|---|---|---|
| 15万円 | なし | 30万円 | なし | 4LDK | 115.93m2 |
入居決定でお祝い金最大100,000円
Point
収納はシューズボックス・クロゼット・全居室収納など豊富なので、広々と空間を利用することも可能です。
提供:ハウスコム千葉株式会社 千葉店

詳細情報 京成電鉄本線 公津の杜駅 徒歩25分 2階建 築28年
物件紹介
京成電鉄本線公津の杜駅から徒歩25分にある一戸建てです。
このお部屋のインターホンにはTVモニタがついているため、相手の顔を確認してから来客対応することができます。
人気の南向き・フローリングのお部屋。角部屋でもあるため、周囲の居住者の生活音も気になりにくい場所です。キッチンはシステムキッチン仕様になっていますので、お料理好きの方にもぴったり。バス・トイレは別なので、のんびりお風呂タイムも楽しめるでしょう。また、雨の日でも浴室乾燥機を使えば、お洗濯も問題ありません。
ペット飼育の相談ができますので、あなたの大切な家族の一員も快適に暮らせるか、ぜひ確認してみてください。
このお部屋のインターホンにはTVモニタがついているため、相手の顔を確認してから来客対応することができます。
人気の南向き・フローリングのお部屋。角部屋でもあるため、周囲の居住者の生活音も気になりにくい場所です。キッチンはシステムキッチン仕様になっていますので、お料理好きの方にもぴったり。バス・トイレは別なので、のんびりお風呂タイムも楽しめるでしょう。また、雨の日でも浴室乾燥機を使えば、お洗濯も問題ありません。
ペット飼育の相談ができますので、あなたの大切な家族の一員も快適に暮らせるか、ぜひ確認してみてください。
お金・契約の情報
※「-」と表示されているものは、実際は料金が発生するものもございます。詳細はお問い合わせください。
| 家賃 | 15万円 | 管理費・共益費 | なし |
|---|---|---|---|
| 敷金 | 30万円 | 礼金 | なし |
| 入居決定でお祝い金最大100,000円 | |||
| 保証金 | - | 償却・敷引 | - |
| 住宅保険料 | 1円 | 更新料 | - |
| 保証会社利用 | 必須 | 保証会社名 | - |
| 保証会社費用 | - | 保証会社備考 | 初回:総賃料×120% |
| 契約形態 | - | 契約期間 | 2年 |
| 入居・引渡期間 | 即時 | 現況 | - |
| 入居可能条件 | 事務所不可、2人入居可、ペット相談 | ||
| 契約備考 | 火災保険20000円/2年間 ペット相談(中型犬・小型犬)敷金1か月増 1年未満の解約は違約金1か月 ペット飼育時敷金積み増し料金(償却)有り その他設備/条件:室内洗濯機置き場、独立洗面台、浴室1.6x2.0m以上、全居室収納、クローゼット、シューズボックス、オートバス | ||
部屋の情報
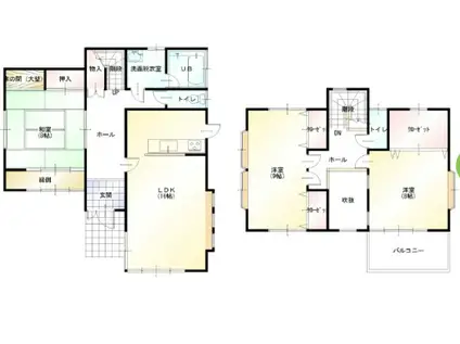
| 間取り | 4LDK | 専有面積 | 115.93m2 |
|---|---|---|---|
| 間取り詳細 | LDK(16帖)、洋室(8帖)、洋室(4.5帖)、洋室(4.5帖)、和室(8帖) | ||
| 所在階 / 向き | 1階 / 南 | バルコニー面積 | - |
| 水道 / ガス | 水道【公営】、ガス【都市】 | ||
| 設備 | バス・トイレ別、テレビドアホン、浴室乾燥機、追い焚き、システムキッチン、カウンターキッチン、角部屋、バルコニー、フローリング、洗髪洗面化粧台、3口コンロ、コンロ:ガス、シャワー、専用庭、給湯、出窓 | ||
| 当社物件ID | 160101640 | ||
建物の情報
| 建物名 | 京成電鉄本線 公津の杜駅 徒歩25分 2階建 築28年 | ||
|---|---|---|---|
| 所在地 | 千葉県成田市並木町 | ||
| 交通 | 京成電鉄本線 公津の杜駅 徒歩25分 | ||
| 階数 | 2階建 | 総戸数 | 1戸 |
| 築年月 | 1998年08月 / 築28年 | エレベーター | - |
| 駐車場 | 空有 駐車場1台無料 | バイク置き場 | - |
| 駐輪場 | - | 管理人/管理会社 | - |
| 周辺環境 | 販売店 徒歩37分(2958m) その他 ドラッグストア その他 公園 その他 銀行 その他 * | ||
| 建物種別 | 一戸建て | 建物構造 | 木造 |
この部屋の取扱い不動産会社
| 会社名 | ハウスコム千葉株式会社 成田店 | ||
|---|---|---|---|
| 所在地 | 千葉県成田市261ライフビル1階 | 交通 | - |
| 営業時間 | 10:00~18:00 | 定休日 | 水曜定休 |
| 免許番号 | 千葉県知事(1)第18235号 | 取引態様 | 仲介 |
| 不動産会社管理番号 | HC2-5301713-1-0211 | 当社管理番号 | 468 |
| 所属団体 | 、 | ||
| 取扱い物件情報 | 物件詳細へ | ||
※各種情報と現状に差異がある場合は、現状優先となります。問い合わせをすることで、より詳しい条件、情報を確認する事ができます。
提供:ハウスコム千葉株式会社 成田店
この物件が気になったら掲載期限まであと4日
京成電鉄本線 公津の杜駅 徒歩25分 2階建 築28年に条件(家賃・エリア)が近い物件一覧
| 写真 | 家賃 管理費等 | 敷金 礼金 | 間取り 専有面積 | 築年数 | 最寄り駅 所在地 | キープ | 詳細 |
|---|---|---|---|---|---|---|---|
マンション レザレII(2LDK/3階) | |||||||
![]() | 13.7万円 6,000円 | なし 27.4万円 | 2LDK 74.11m2 | 築1年 | 京成本線 公津の杜駅 徒歩26分 京成本線 京成成田駅 徒歩44分 JR成田線 成田駅 徒歩45分 千葉県成田市並木町 | 詳細を見る | |
マンション プレヴナンス東町II(3LDK/2階) | |||||||
![]() | 17.9万円 4,000円 | なし なし | 3LDK 79.85m2 | 築1年 | 京成本線 京成成田駅 徒歩11分 JR成田線 成田駅 徒歩14分 京成本線 公津の杜駅 徒歩48分 千葉県成田市東町 | 詳細を見る | |
アパート ハピネスⅢ(1K/1階) | |||||||
![]() | 9.5万円 5,000円 | なし 9.5万円 | 1K 36.64m2 | 築10年 | 京成電鉄本線 京成酒々井駅 徒歩3分 成田線 酒々井駅 徒歩12分 千葉県印旛郡酒々井町中川 | 詳細を見る | |
アパート ベルコリーヌ八代(2LDK/2階) | |||||||
![]() | 9.86万円 5,000円 | 9.86万円 なし | 2LDK 53.9m2 | 築1年 | 成田スカイアクセス 成田湯川駅 徒歩37分 JR成田線 下総松崎駅 徒歩37分 JR成田線 成田駅 徒歩52分 千葉県成田市八代 | 詳細を見る | |
アパート LIEN日吉台II(2SLDK/2階) | |||||||
![]() | 10万円 4,000円 | 10万円 なし | 2SLDK 53m2 | 築2年 | 千葉県富里市日吉台 | 詳細を見る | |
アパート N・D-ROOM IIDACHOU A棟(1LDK/3階) | |||||||
![]() | 10.8万円 5,000円 | なし 21.6万円 | 1LDK 45.43m2 | 築1年 | 京成本線 公津の杜駅 徒歩12分 JR成田線 成田駅 徒歩27分 成田スカイアクセス 成田湯川駅 徒歩65分 千葉県成田市飯田町 | 詳細を見る | |
アパート SKガレジオ野毛平II(ワンルーム/1階) | |||||||
![]() | 9.7万円 3,000円 | 9.7万円 なし | ワンルーム 36.43m2 | 築1年 | 京成本線 京成成田駅 徒歩48分 JR成田線 成田駅 徒歩51分 成田スカイアクセス 成田湯川駅 徒歩72分 千葉県成田市野毛平 | 詳細を見る | |
マンション グレイスアベニュー(2LDK/2階) | |||||||
![]() | 12.2万円 6,000円 | なし 24.4万円 | 2LDK 56.12m2 | 築1年 | 京成本線 公津の杜駅 徒歩27分 京成本線 京成成田駅 徒歩45分 JR成田線 成田駅 徒歩46分 千葉県成田市並木町 | 詳細を見る | |









