賃貸マンション
プレミスト札幌ステーションアクシス アクアサイドの賃貸物件情報(2LDK/14階)
| 家賃 | 管理費等 | 敷金 | 礼金 | 間取り | 専有面積 |
|---|---|---|---|---|---|
| 18.8万円 | なし | 37.6万円 | 18.8万円 | 2LDK | 71.99m2 |
入居決定でお祝い金最大100,000円
- 保証金
- -
- 償却・敷引
- -
- 築年数
- 築9年
- 所在階
- 14階
- 向き
- 南
Point
札幌駅徒歩圏内の好立地分譲リースのご紹介です☆経済的な都市ガス、使い勝手の良い対面システムキッチンです◎宅配ボックスも有り荷物の受け取りも便利です!!まずは、お気軽にお問い合わせください☆☆
提供:北章ハウザー北12条店(株)ハウスプロデュース(SUUMO経由)

詳細情報 プレミスト札幌ステーションアクシス アクアサイド
物件紹介
プレミスト札幌ステーションアクシス アクアサイドは地下鉄南北線北12条駅から徒歩5分にあり、駅近で通勤通学に便利なマンションです。
このお部屋は2階以上に位置しているので、通行人や周囲の住人からの視線が気になりにくく、防犯面でも安心。建物のエントランスはオートロックがついており、インターホンにはTVモニタもついているため、相手の顔を確認してから来客対応することができます。
人気の南向き・フローリングのお部屋。角部屋でもあるため、周囲の居住者の生活音も気になりにくい場所です。キッチンはシステムキッチン仕様になっていますので、お料理好きの方にもぴったり。バス・トイレは別なので、のんびりお風呂タイムも楽しめるでしょう。また、雨の日でも浴室乾燥機を使えば、お洗濯も問題ありません。
通信設備面では、インターネットが無料で使えるので、月々の出費を抑えられるのも魅力です。また、BSアンテナ・CSアンテナもありますので、おうち時間も充実するでしょう(別途工事、BS・CSの契約料等が必要な場合あり)。
建物にはエレベーターがついているので、重い荷物があっても安心。共用部には宅配ボックスが設定されているので、不在の時にも荷物を受け取ることができます。
このお部屋は2階以上に位置しているので、通行人や周囲の住人からの視線が気になりにくく、防犯面でも安心。建物のエントランスはオートロックがついており、インターホンにはTVモニタもついているため、相手の顔を確認してから来客対応することができます。
人気の南向き・フローリングのお部屋。角部屋でもあるため、周囲の居住者の生活音も気になりにくい場所です。キッチンはシステムキッチン仕様になっていますので、お料理好きの方にもぴったり。バス・トイレは別なので、のんびりお風呂タイムも楽しめるでしょう。また、雨の日でも浴室乾燥機を使えば、お洗濯も問題ありません。
通信設備面では、インターネットが無料で使えるので、月々の出費を抑えられるのも魅力です。また、BSアンテナ・CSアンテナもありますので、おうち時間も充実するでしょう(別途工事、BS・CSの契約料等が必要な場合あり)。
建物にはエレベーターがついているので、重い荷物があっても安心。共用部には宅配ボックスが設定されているので、不在の時にも荷物を受け取ることができます。
お金・契約の情報
※「-」と表示されているものは、実際は料金が発生するものもございます。詳細はお問い合わせください。
| 家賃 | 18.8万円 | 管理費・共益費 | なし |
|---|---|---|---|
| 敷金 | 37.6万円 | 礼金 | 18.8万円 |
| 入居決定でお祝い金最大100,000円 | |||
| 保証金 | - | 償却・敷引 | - |
| 住宅保険料 | - | 更新料 | - |
| 保証会社利用 | 利用可 | 保証会社名 | - |
| 保証会社費用 | - | 保証会社備考 | 保証会社利用可 契約料は月額総賃料(管理費等含む)の50~100%(審査状況により変動) |
| 契約形態 | - | 契約期間 | - |
| 入居・引渡期間 | 相談 | 現況 | - |
| 契約備考 | JR函館本線札幌駅徒歩9分/巡回管理/巡回管理/北12条店電話→)では随時次のキャンペーンを実施しております。お電話でのお問い合わせで初期費用軽減!初期費用契約金10万、5万、外国籍入居可能、ペット飼育可能、保証人不要、都市ガス、灯油ボイラー、ガス上限取り扱い物件多数。他業者様掲示の初期費用との比較も大歓迎です。札幌近郊どこでもお部屋ご紹介できます☆全力でお客様のお部屋探しをお約束致します。 合計6.6万円(内訳:室内清掃料 66000円) 2LDK 二人入居可/子供可 普通借家2年 損保【2万円2年】 バストイレ別、バルコニー、エアコン、ガスコンロ対応、クロゼット、フローリング、シャワー付洗面台、TVインターホン、浴室乾燥機、オートロック、室内洗濯置、陽当り良好、シューズボックス、システムキッチン、南向き、角住戸、温水洗浄便座、脱衣所、エレベーター、洗面所独立、洗面化粧台、駐輪場、宅配ボックス、光ファイバー、最上階、BS・CS、3口以上コンロ、対面式キッチン、防犯カメラ、独立型キッチン、分譲賃貸、全居室洋室、保証人不要、敷金1ヶ月、全居室フローリング、ガスレンジ付、2面バルコニー、駅まで平坦、ネット使用料不要、眺望良好、24時間換気システム、平坦地、ガス暖房、南面リビング、クロゼット3ヶ所、始発駅、3駅以上利用可、3沿線以上利用可、駅徒歩5分以内、高層階、敷地内ごみ置き場、LDK18畳以上、都市ガス、洗面所にドア、高速ネット対応、礼金1ヶ月、IT重説対応物件、初期費用カード決済可、通風良好 | ||
部屋の情報
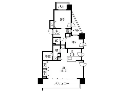
| 間取り | 2LDK | 専有面積 | 71.99m2 |
|---|---|---|---|
| 所在階 / 向き | 14階 / 南 | バルコニー面積 | - |
| 水道 / ガス | - | ||
| 設備 | バス・トイレ別、2階以上、オートロック、テレビドアホン、宅配ボックス、浴室乾燥機、インターネット対応、システムキッチン、エアコン、エレベーター、温水洗浄便座、南向き、角部屋、バルコニー、フローリング、洗髪洗面化粧台、2口コンロ、コンロ:ガス、CSアンテナ、BSアンテナ、インターネット使用料無料、洗濯機:室内 | ||
| 当社物件ID | 160513730 | ||
建物の情報
| 建物名 | プレミスト札幌ステーションアクシス アクアサイド | ||
|---|---|---|---|
| 所在地 | 北海道札幌市北区北十一条西 | ||
| 交通 | 地下鉄南北線 北12条駅 徒歩5分 地下鉄東豊線 北13条東駅 徒歩6分 JR千歳線 札幌駅(JR) 徒歩9分 | ||
| 階数 | 14階建 | 総戸数 | - |
| 築年月 | 2017年12月 / 築9年 | エレベーター | あり |
| 駐車場 | 空有 25000円 | バイク置き場 | - |
| 駐輪場 | あり | 管理人/管理会社 | - |
| 周辺環境 | その他 札幌市立北九条小学校(小学校)まで248m その他 札幌市立中央中学校(中学校)まで1262m その他 大丸札幌店(ショッピングセンター)まで1067m その他 コープさっぽろ北12条店(スーパー)まで289m その他 アークス光星店(スーパー)まで845m その他 セイコーマート北10条店(コンビニ)まで187m | ||
| 建物種別 | マンション | 建物構造 | RC(鉄筋コンクリート) |
この部屋の取扱い不動産会社
| 会社名 | 北章ハウザー北12条店(株)ハウスプロデュース(SUUMO経由) | ||
|---|---|---|---|
| 所在地 | 北海道札幌市北区北十二条西3-1-1 | 交通 | - |
| 営業時間 | 9:30~19:00 | 定休日 | 無し |
| 免許番号 | 北海道知事石狩8128 | 取引態様 | 仲介 |
| 不動産会社管理番号 | 100492077118 | 当社管理番号 | 89 |
| 所属団体 | (公社)北海道宅地建物取引業協会会員 | ||
| 公正取引協議会 | (一社)北海道不動産公正取引協議会加盟 | ||
| 取扱い物件情報 | 物件詳細へ | ||
※各種情報と現状に差異がある場合は、現状優先となります。問い合わせをすることで、より詳しい条件、情報を確認する事ができます。
提供:北章ハウザー北12条店(株)ハウスプロデュース(SUUMO経由)
この物件が気になったら掲載期限まであと11日
プレミスト札幌ステーションアクシス アクアサイドに条件(家賃・エリア)が近い物件一覧
| 写真 | 家賃 管理費等 | 敷金 礼金 | 間取り 専有面積 | 築年数 | 最寄り駅 所在地 | キープ | 詳細 |
|---|---|---|---|---|---|---|---|
マンション DIORE RESIDENCE SAPPORO(2LDK/1階) | |||||||
![]() | 11.4万円 5,000円 | 11.4万円 11.4万円 | 2LDK 55.15m2 | 築2年 | 地下鉄南北線 さっぽろ駅(札幌市営) 徒歩6分 JR函館本線 札幌駅(JR) 徒歩8分 地下鉄東豊線 北13条東駅 徒歩12分 北海道札幌市東区北七条東 | 詳細を見る | |
一戸建て 函館本線 南小樽駅 徒歩20分 築39年(3LDK) | |||||||
![]() | 12万円 なし | 12万円 12万円 | 3LDK 144.18m2 | 築39年 | 函館本線 南小樽駅 徒歩20分 北海道小樽市潮見台1丁目 | 詳細を見る | |
マンション リブウェル北広島エルフィンターミナルサウスフォレスト(2LDK/10階) | |||||||
![]() | 14.5万円 なし | 14.5万円 14.5万円 | 2LDK 79.51m2 | 築26年 | JR千歳線 北広島駅 徒歩1分 北海道北広島市中央 | 詳細を見る | |
マンション ピオネロ恵庭II(3LDK/2階) | |||||||
![]() | 17.1万円 7,000円 | 17.1万円 17.1万円 | 3LDK 83.85m2 | 築1年 | JR千歳線 恵庭駅 徒歩3分 JR千歳線 恵み野駅 徒歩37分 JR千歳線 サッポロビール庭園駅 徒歩37分 北海道恵庭市相生町 | 詳細を見る | |
マンション TERRACE SAKURA(2LDK/2階) | |||||||
![]() | 12万円 5,000円 | なし 12万円 | 2LDK 49.45m2 | 築1年 | 函館本線 桑園駅 徒歩9分 北海道札幌市中央区北七条西11丁目 | 詳細を見る | |
マンション アルファスクエア北22(2LDK/2階) | |||||||
![]() | 12.7万円 7,000円 | 12.7万円 12.7万円 | 2LDK 52.87m2 | 築1年 | 地下鉄南北線 北24条駅 徒歩3分 地下鉄南北線 北18条駅 徒歩13分 地下鉄南北線 北34条駅 徒歩19分 北海道札幌市北区北二十二条西 | 詳細を見る | |
マンション アルファスクエア北20西4(3LDK/2階) | |||||||
![]() | 16.5万円 9,000円 | 16.5万円 16.5万円 | 3LDK 70.27m2 | 築2年 | 地下鉄南北線 北18条駅 徒歩6分 地下鉄南北線 北24条駅 徒歩7分 地下鉄南北線 北12条駅 徒歩17分 北海道札幌市北区北二十条西 | 詳細を見る | |








