賃貸マンション
J-BAUM MIYAZAKIDAIの賃貸物件情報(1LDK/4階)
| 家賃 | 管理費等 | 敷金 | 礼金 | 間取り | 専有面積 |
|---|---|---|---|---|---|
| 14.4万円 | 1.2万円 | 14.4万円 | 14.4万円 | 1LDK | 42.5m2 |
入居決定でお祝い金最大100,000円
Point
人気の宮崎台駅徒歩2分。2022年3月築のデザイナーズマンションです。オートロック、宅配ボックス、エレベータ、エアコン2基、IHシステムK、追い焚き、浴室乾燥など多彩な設備を完備。
提供:(株)マイホームワン本店(SUUMO経由)

詳細情報 J-BAUM MIYAZAKIDAI
物件紹介
J-BAUM MIYAZAKIDAIは東急田園都市線宮崎台駅から徒歩2分にあり、駅近で通勤通学に便利なマンションです。
このお部屋は2階以上に位置しているので、通行人や周囲の住人からの視線が気になりにくく、防犯面でも安心。建物のエントランスはオートロックがついており、インターホンにはTVモニタもついているため、相手の顔を確認してから来客対応することができます。
人気の角部屋で周囲の居住者の生活音も気になりにくく、また、フローリングのお部屋なのでお掃除もラクラク。室内にはウォークインクローゼットがありますので、たくさんの荷物も効率的に収納ができます。キッチンはシステムキッチン仕様になっていますので、お料理好きの方にもぴったり。バス・トイレは別なので、のんびりお風呂タイムも楽しめるでしょう。また、雨の日でも浴室乾燥機を使えば、お洗濯も問題ありません。
通信設備面ではBSアンテナがありますので、おうち時間も充実するでしょう(別途工事、契約料が必要な場合あり)。
建物にはエレベーターがついているので、重い荷物があっても安心。共用部には宅配ボックスが設定されているので、不在の時にも荷物を受け取ることができます。
このお部屋は2階以上に位置しているので、通行人や周囲の住人からの視線が気になりにくく、防犯面でも安心。建物のエントランスはオートロックがついており、インターホンにはTVモニタもついているため、相手の顔を確認してから来客対応することができます。
人気の角部屋で周囲の居住者の生活音も気になりにくく、また、フローリングのお部屋なのでお掃除もラクラク。室内にはウォークインクローゼットがありますので、たくさんの荷物も効率的に収納ができます。キッチンはシステムキッチン仕様になっていますので、お料理好きの方にもぴったり。バス・トイレは別なので、のんびりお風呂タイムも楽しめるでしょう。また、雨の日でも浴室乾燥機を使えば、お洗濯も問題ありません。
通信設備面ではBSアンテナがありますので、おうち時間も充実するでしょう(別途工事、契約料が必要な場合あり)。
建物にはエレベーターがついているので、重い荷物があっても安心。共用部には宅配ボックスが設定されているので、不在の時にも荷物を受け取ることができます。
お金・契約の情報
※「-」と表示されているものは、実際は料金が発生するものもございます。詳細はお問い合わせください。
| 家賃 | 14.4万円 | 管理費・共益費 | 1.2万円 |
|---|---|---|---|
| 敷金 | 14.4万円 | 礼金 | 14.4万円 |
| 入居決定でお祝い金最大100,000円 | |||
| 保証金 | - | 償却・敷引 | - |
| 住宅保険料 | - | 更新料 | - |
| 保証会社利用 | 必須 | 保証会社名 | - |
| 保証会社費用 | - | 保証会社備考 | 保証会社利用必 契約時月総額0.4か月分、以降毎年1万円 |
| 契約形態 | 定期借家 | 契約期間 | 2年 |
| 入居・引渡期間 | - | 現況 | - |
| 契約備考 | 定期借家契約2年(再契約は4回まで相談可)ご見学は、物件現地や駅での待合わせも可能です。ネット掲載以外にも、沢山の物件を取り扱ってます。ご要望に沿ってご提案致します。お気軽にお問い合わせ下さい。 1LDK 二人入居可/子供可 定期借家2年 損保【要】 バストイレ別、バルコニー、エアコン、クロゼット、フローリング、シャワー付洗面台、TVインターホン、浴室乾燥機、オートロック、室内洗濯置、シューズボックス、システムキッチン、追焚機能浴室、角住戸、温水洗浄便座、脱衣所、エレベーター、洗面所独立、洗面化粧台、宅配ボックス、閑静な住宅地、対面式キッチン、防犯カメラ、IHクッキングヒーター、全居室収納、オートバス、グリル付、全居室洋室、ウォークインクロゼット、保証人不要、全居室フローリング、玄関ホール、エアコン2台、眺望良好、エアコン全室、ダブルロックキー、敷地内ごみ置き場、都市ガス、玄関収納、BS、保証会社利用可、初期費用カード決済可、家賃カード決済可、通風良好 入居日:'26年3月中旬 | ||
部屋の情報
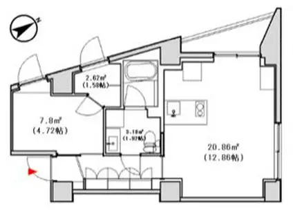
| 間取り | 1LDK | 専有面積 | 42.5m2 |
|---|---|---|---|
| 所在階 / 向き | 4階 / 北西 | バルコニー面積 | - |
| 水道 / ガス | - | ||
| 設備 | バス・トイレ別、2階以上、オートロック、テレビドアホン、宅配ボックス、浴室乾燥機、ウォークインクローゼット、追い焚き、システムキッチン、エアコン、エレベーター、温水洗浄便座、角部屋、バルコニー、フローリング、洗髪洗面化粧台、コンロ:IH、BSアンテナ、洗濯機:室内 | ||
| 当社物件ID | 102675299 | ||
建物の情報
| 建物名 | J-BAUM MIYAZAKIDAI | ||
|---|---|---|---|
| 所在地 | 神奈川県川崎市宮前区宮崎 | ||
| 交通 | 東急田園都市線 宮崎台駅 徒歩2分 | ||
| 階数 | 6階建 | 総戸数 | - |
| 築年月 | 2022年03月 / 築4年 | エレベーター | あり |
| 駐車場 | なし | バイク置き場 | - |
| 駐輪場 | - | 管理人/管理会社 | - |
| 周辺環境 | その他 SCOPS宮崎台 保育園(幼稚園・保育園)まで193m その他 宮崎台幼稚園(幼稚園・保育園)まで305m その他 川崎市立 宮崎台小学校(小学校)まで727m その他 川崎市立宮前平中学校(中学校)まで927m その他 宮崎台東急ストア(スーパー)まで286m その他 ライフ・宮崎台店(スーパー)まで230m | ||
| 建物種別 | マンション | 建物構造 | RC(鉄筋コンクリート) |
この部屋の取扱い不動産会社
| 会社名 | (株)マイホームワン本店(SUUMO経由) | ||
|---|---|---|---|
| 所在地 | 神奈川県川崎市宮前区宮崎2-12-1 宮崎台プラザビルB103 | 交通 | - |
| 営業時間 | 10時~19時 | 定休日 | 毎週水曜日 |
| 免許番号 | 神奈川県知事31573 | 取引態様 | 仲介 |
| 不動産会社管理番号 | 100489033647 | 当社管理番号 | 89 |
| 所属団体 | (公社)神奈川県宅地建物取引業協会会員 | ||
| 公正取引協議会 | (公社)首都圏不動産公正取引協議会加盟 | ||
| 取扱い物件情報 | 物件詳細へ | ||
※各種情報と現状に差異がある場合は、現状優先となります。問い合わせをすることで、より詳しい条件、情報を確認する事ができます。
提供:(株)マイホームワン本店(SUUMO経由)
この物件が気になったら掲載期限まであと11日
J-BAUM MIYAZAKIDAIに条件(家賃・エリア)が近い物件一覧
| 写真 | 家賃 管理費等 | 敷金 礼金 | 間取り 専有面積 | 築年数 | 最寄り駅 所在地 | キープ | 詳細 |
|---|---|---|---|---|---|---|---|
アパート 渡辺アパート(1SLDK/1階) | |||||||
![]() | 21万円 なし | 21万円 なし | 1SLDK 59.61m2 | 築36年 | JR南武線 尻手駅 徒歩8分 JR南武線 矢向駅 徒歩15分 JR南武線 川崎駅 徒歩20分 神奈川県横浜市鶴見区矢向 | 詳細を見る | |
アパート メゾン・ド・パフ綱島(2LDK/3階) | |||||||
![]() | 17.8万円 4,600円 | なし 35.6万円 | 2LDK 57.67m2 | 新築 | 東急東横線 綱島駅 徒歩13分 神奈川県横浜市港北区樽町 | 詳細を見る | |
マンション ザ・パークハビオ 横浜東神奈川(ワンルーム/9階) | |||||||
![]() | 11.5万円 1万円 | 11.5万円 11.5万円 | ワンルーム 27.12m2 | 築11年 | JR京浜東北線 東神奈川駅 徒歩3分 京急本線 京急東神奈川駅 徒歩5分 東急東横線 東白楽駅 徒歩8分 神奈川県横浜市神奈川区西神奈川 | 詳細を見る | |
マンション レグゼ 横濱関内(1K/4階) | |||||||
![]() | 9万円 1.2万円 | なし なし | 1K 25.93m2 | 築1年 | 京急本線 日ノ出町駅 徒歩5分 ブルーライン 伊勢佐木長者町駅 徒歩7分 JR京浜東北線 桜木町駅 徒歩8分 神奈川県横浜市中区福富町西通 | 詳細を見る | |
マンション グリフィン横浜・日本大通(1DK/9階) | |||||||
![]() | 11.2万円 8,000円 | 11.2万円 11.2万円 | 1DK 30.45m2 | 築21年 | 横浜高速鉄道MM線 日本大通り駅 徒歩3分 神奈川県横浜市中区南仲通1丁目 | 詳細を見る | |
マンション ラクレイス横濱関内(1DK/6階) | |||||||
![]() | 11.6万円 1.5万円 | なし なし | 1DK 25.53m2 | 築2年 | JR根岸線 関内駅 徒歩5分 ブルーライン 伊勢佐木長者町駅 徒歩5分 京急本線 日ノ出町駅 徒歩13分 神奈川県横浜市中区蓬莱町 | 詳細を見る | |
一戸建て 東海道本線 戸塚駅 徒歩19分 築34年(3LDK) | |||||||
![]() | 9.8万円 なし | 19.6万円 9.8万円 | 3LDK 74m2 | 築34年 | 東海道本線 戸塚駅 徒歩19分 横浜市ブルーライン 踊場駅 徒歩20分 神奈川県横浜市戸塚区戸塚町 | 詳細を見る | |






/105x80-f1-q70-wp1)

