賃貸アパート
セジュール三和の賃貸物件情報(1LDK/2階)
| 家賃 | 管理費等 | 敷金 | 礼金 | 間取り | 専有面積 |
|---|---|---|---|---|---|
| 12万円 | 5,000円 | 24万円 | 12万円 | 1LDK | 43m2 |
入居決定でお祝い金最大100,000円
Point
引越料金10000円負担(当社指定)/家具家電付きプラン有
提供:(株)Vision五反田店(SUUMO経由)

詳細情報 セジュール三和
物件紹介
セジュール三和は東急東横線綱島駅から徒歩9分にあり、駅近で通勤通学に便利なアパートです。
このお部屋は2階以上に位置しているので、通行人や周囲の住人からの視線が気になりにくく、防犯面でも安心。建物のエントランスはオートロックがついており、インターホンにはTVモニタもついているため、相手の顔を確認してから来客対応することができます。
人気の南向き・フローリングのお部屋。角部屋でもあるため、周囲の居住者の生活音も気になりにくい場所です。室内にはウォークインクローゼットがありますので、たくさんの荷物も効率的に収納ができます。キッチンはシステムキッチン仕様になっていますので、お料理好きの方にもぴったり。バス・トイレは別なので、のんびりお風呂タイムも楽しめるでしょう。また、雨の日でも浴室乾燥機を使えば、お洗濯も問題ありません。
通信設備面ではBSアンテナがありますので、おうち時間も充実するでしょう(別途工事、契約料が必要な場合あり)。
このお部屋は2階以上に位置しているので、通行人や周囲の住人からの視線が気になりにくく、防犯面でも安心。建物のエントランスはオートロックがついており、インターホンにはTVモニタもついているため、相手の顔を確認してから来客対応することができます。
人気の南向き・フローリングのお部屋。角部屋でもあるため、周囲の居住者の生活音も気になりにくい場所です。室内にはウォークインクローゼットがありますので、たくさんの荷物も効率的に収納ができます。キッチンはシステムキッチン仕様になっていますので、お料理好きの方にもぴったり。バス・トイレは別なので、のんびりお風呂タイムも楽しめるでしょう。また、雨の日でも浴室乾燥機を使えば、お洗濯も問題ありません。
通信設備面ではBSアンテナがありますので、おうち時間も充実するでしょう(別途工事、契約料が必要な場合あり)。
お金・契約の情報
※「-」と表示されているものは、実際は料金が発生するものもございます。詳細はお問い合わせください。
| 家賃 | 12万円 | 管理費・共益費 | 5,000円 |
|---|---|---|---|
| 敷金 | 24万円 | 礼金 | 12万円 |
| 入居決定でお祝い金最大100,000円 | |||
| 保証金 | - | 償却・敷引 | - |
| 住宅保険料 | - | 更新料 | - |
| 保証会社利用 | 必須 | 保証会社名 | - |
| 保証会社費用 | - | 保証会社備考 | 保証会社利用必 初回/賃料等の100% 年間/賃料等の10% |
| 契約形態 | - | 契約期間 | - |
| 入居・引渡期間 | - | 現況 | - |
| 契約備考 | 契約金カード払い・分割可能/家具家電付きプラン有。退去時清掃費実費精算。 1LDK 普通借家2年 損保【要】 バストイレ別、バルコニー、エアコン、ガスコンロ対応、クロゼット、フローリング、TVインターホン、浴室乾燥機、オートロック、室内洗濯置、シューズボックス、システムキッチン、角住戸、温水洗浄便座、脱衣所、洗面所独立、洗面化粧台、2面採光、3口以上コンロ、対面式キッチン、グリル付、全居室洋室、ウォークインクロゼット、防犯シャッター、全居室フローリング、2沿線利用可、クロゼット2ヶ所、南面リビング、2駅利用可、3駅以上利用可、駅徒歩10分以内、東南向き、全居室6畳以上、都市ガス、洗面所にドア、南面バルコニー、BS、保証会社利用可、初期費用カード決済可 入居日:'26年3月中旬 | ||
部屋の情報
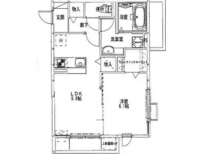
| 間取り | 1LDK | 専有面積 | 43m2 |
|---|---|---|---|
| 所在階 / 向き | 2階 / 南東 | バルコニー面積 | - |
| 水道 / ガス | - | ||
| 設備 | バス・トイレ別、2階以上、オートロック、テレビドアホン、浴室乾燥機、ウォークインクローゼット、システムキッチン、エアコン、温水洗浄便座、南向き、角部屋、バルコニー、フローリング、洗髪洗面化粧台、2口コンロ、コンロ:ガス、BSアンテナ、洗濯機:室内 | ||
| 当社物件ID | 38385586 | ||
建物の情報
| 建物名 | セジュール三和 | ||
|---|---|---|---|
| 所在地 | 神奈川県横浜市港北区樽町 | ||
| 交通 | 東急東横線 綱島駅 徒歩9分 東急東横線 大倉山駅(神奈川) 徒歩23分 | ||
| 階数 | 3階建 | 総戸数 | - |
| 築年月 | 2014年04月 / 築12年 | エレベーター | - |
| 駐車場 | なし | バイク置き場 | - |
| 駐輪場 | - | 管理人/管理会社 | - |
| 周辺環境 | その他 綱島駅(その他)まで992m | ||
| 建物種別 | アパート | 建物構造 | 軽量鉄骨造 |
この部屋の取扱い不動産会社
| 会社名 | (株)Vision五反田店(SUUMO経由) | ||
|---|---|---|---|
| 所在地 | 東京都品川区東五反田1-12-13 親切堂ビル7階 | 交通 | - |
| 営業時間 | 10:00~19:00 | 定休日 | 年末年始 |
| 免許番号 | 東京都知事96944 | 取引態様 | 仲介 |
| 不動産会社管理番号 | 100483128941 | 当社管理番号 | 89 |
| 取扱い物件情報 | 物件詳細へ | ||
※各種情報と現状に差異がある場合は、現状優先となります。問い合わせをすることで、より詳しい条件、情報を確認する事ができます。
提供:(株)Vision五反田店(SUUMO経由)
この物件が気になったら掲載期限まであと11日
セジュール三和に条件(家賃・エリア)が近い物件一覧
| 写真 | 家賃 管理費等 | 敷金 礼金 | 間取り 専有面積 | 築年数 | 最寄り駅 所在地 | キープ | 詳細 |
|---|---|---|---|---|---|---|---|
マンション サニーヒル石名坂(3DK/2階) | |||||||
![]() | 8.5万円 4,000円 | 8.5万円 なし | 3DK 58.69m2 | 築33年 | 小田急電鉄江ノ島線 藤沢本町駅 徒歩14分 神奈川県藤沢市本藤沢2丁目 | 詳細を見る | |
マンション 第2サニーハイツヒライ(3DK/4階) | |||||||
![]() | 11万円 なし | 22万円 11万円 | 3DK 52.14m2 | 築37年 | JR横須賀線 北鎌倉駅 徒歩12分 JR京浜東北線 大船駅 徒歩16分 湘南モノレール 富士見町駅(神奈川) 徒歩16分 神奈川県鎌倉市小袋谷 | 詳細を見る | |
マンション スタイリオフィット新綱島(ワンルーム/3階) | |||||||
![]() | 8.7万円 6,000円 | 8.7万円 8.7万円 | ワンルーム 18.44m2 | 築27年 | 東急東横線 綱島駅 徒歩6分 神奈川県横浜市港北区綱島東1丁目 | 詳細を見る | |
マンション ルーブル武蔵中原伍番館(1K/1階) | |||||||
![]() | 10.2万円 9,000円 | なし 10.2万円 | 1K 25.37m2 | 新築 | JR南武線 武蔵中原駅 徒歩9分 JR南武線 武蔵小杉駅 徒歩24分 東急東横線 武蔵小杉駅 徒歩24分 神奈川県川崎市中原区下小田中 | 詳細を見る | |
マンション ブライズ鷺沼(1K/2階) | |||||||
![]() | 9.5万円 1.2万円 | なし 9.5万円 | 1K 26.55m2 | 築1年 | 東急田園都市線 鷺沼駅 徒歩10分 東急田園都市線 宮前平駅 徒歩13分 東急田園都市線 たまプラーザ駅 徒歩26分 神奈川県川崎市宮前区土橋 | 詳細を見る | |
マンション メゾン・ド・ヴィレ鷺沼(ワンルーム/3階) | |||||||
![]() | 7.2万円 5,000円 | なし なし | ワンルーム 30m2 | 築39年 | 東急田園都市線 鷺沼駅 徒歩14分 神奈川県川崎市宮前区有馬9丁目 | 詳細を見る | |
アパート パルトネール綱島I(1K/3階) | |||||||
![]() | 7.9万円 2,000円 | なし 11.85万円 | 1K 20.49m2 | 築7年 | 東急東横線 綱島駅 徒歩10分 神奈川県横浜市港北区綱島西 | 詳細を見る | |
一戸建て 湘南新宿ライン高海 辻堂駅 徒歩15分 築43年(2K) | |||||||
![]() | 7.4万円 なし | 14.8万円 7.4万円 | 2K 38m2 | 築43年 | 湘南新宿ライン高海 辻堂駅 徒歩15分 東海道本線 辻堂駅 徒歩15分 神奈川県藤沢市辻堂元町4丁目 | 詳細を見る | |









