賃貸マンション
シーフォルム住吉IIの賃貸物件情報(1DK/10階)
| 家賃 | 管理費等 | 敷金 | 礼金 | 間取り | 専有面積 |
|---|---|---|---|---|---|
| 12.6万円 | 1万円 | なし | なし | 1DK | 25.64m2 |
入居決定でお祝い金最大100,000円
- 保証金
- -
- 償却・敷引
- -
- 築年数
- 築2年
- 所在階
- 10階
- 向き
- -
Point
テレワークが多い方にもおすすめな1DKタイプ☆ 近隣には公園や総合病院の他、商業施設やスーパーなども多いので、お休みの日もお楽しみいただけます。
提供:(株)Link Roomリンクルーム清澄白河本店(SUUMO経由)

詳細情報 シーフォルム住吉II
物件紹介
シーフォルム住吉IIは都営新宿線西大島駅から徒歩4分にあり、駅近で通勤通学に便利なマンションです。
このお部屋は2階以上に位置しているので、通行人や周囲の住人からの視線が気になりにくく、防犯面でも安心。建物のエントランスはオートロックがついており、インターホンにはTVモニタもついているため、相手の顔を確認してから来客対応することができます。
フローリングのお部屋なのでお掃除もラクラク。キッチンはシステムキッチン仕様になっていますので、お料理好きの方にもぴったり。バス・トイレは別なので、のんびりお風呂タイムも楽しめるでしょう。また、雨の日でも浴室乾燥機を使えば、お洗濯も問題ありません。
通信設備面では、インターネットが無料で使えるので、月々の出費を抑えられるのも魅力です。また、BSアンテナ・CSアンテナもありますので、おうち時間も充実するでしょう(別途工事、BS・CSの契約料等が必要な場合あり)。
建物にはエレベーターがついているので、重い荷物があっても安心。共用部には宅配ボックスが設定されているので、不在の時にも荷物を受け取ることができます。また、ペット飼育の相談ができますので、あなたの大切な家族の一員も快適に暮らせるか、ぜひ確認してみてください。
このお部屋は2階以上に位置しているので、通行人や周囲の住人からの視線が気になりにくく、防犯面でも安心。建物のエントランスはオートロックがついており、インターホンにはTVモニタもついているため、相手の顔を確認してから来客対応することができます。
フローリングのお部屋なのでお掃除もラクラク。キッチンはシステムキッチン仕様になっていますので、お料理好きの方にもぴったり。バス・トイレは別なので、のんびりお風呂タイムも楽しめるでしょう。また、雨の日でも浴室乾燥機を使えば、お洗濯も問題ありません。
通信設備面では、インターネットが無料で使えるので、月々の出費を抑えられるのも魅力です。また、BSアンテナ・CSアンテナもありますので、おうち時間も充実するでしょう(別途工事、BS・CSの契約料等が必要な場合あり)。
建物にはエレベーターがついているので、重い荷物があっても安心。共用部には宅配ボックスが設定されているので、不在の時にも荷物を受け取ることができます。また、ペット飼育の相談ができますので、あなたの大切な家族の一員も快適に暮らせるか、ぜひ確認してみてください。
お金・契約の情報
※「-」と表示されているものは、実際は料金が発生するものもございます。詳細はお問い合わせください。
| 家賃 | 12.6万円 | 管理費・共益費 | 1万円 |
|---|---|---|---|
| 敷金 | なし | 礼金 | なし |
| 入居決定でお祝い金最大100,000円 | |||
| 保証金 | - | 償却・敷引 | - |
| 住宅保険料 | - | 更新料 | - |
| 保証会社利用 | 必須 | 保証会社名 | - |
| 保証会社費用 | - | 保証会社備考 | 保証会社利用必 初回:総賃料の40% 、年間保証料10 000円 |
| 契約形態 | - | 契約期間 | - |
| 入居・引渡期間 | 即時 | 現況 | - |
| 入居可能条件 | ペット相談 | ||
| 契約備考 | サイトに載せきれなかった物件写真は弊社HPでご覧いただけます! / 物件情報だけではなく、周辺環境なども熟知したスタッフがご対応させていただきますので、お気軽にお問い合わせください♪ 合計3.3万円(内訳:鍵交換代3.3万円) 更新料 新賃料1.00ヶ月分 1DK ペット相談 普通借家2年 損保【2万円2年】 バストイレ別、バルコニー、エアコン、ガスコンロ対応、クロゼット、フローリング、TVインターホン、浴室乾燥機、オートロック、室内洗濯置、シューズボックス、システムキッチン、追焚機能浴室、温水洗浄便座、脱衣所、エレベーター、洗面所独立、洗面化粧台、2口コンロ、駐輪場、宅配ボックス、即入居可、礼金不要、防犯カメラ、ペット相談、オートバス、保証人不要、仲介手数料不要、2沿線利用可、CS、ネット使用料不要、築2年以内、24時間換気システム、2駅利用可、3駅以上利用可、3沿線以上利用可、駅徒歩5分以内、駅徒歩10分以内、高層階、24時間ゴミ出し可、敷地内ごみ置き場、都市ガス、玄関収納、BS、高速ネット対応、マルチメディアコンセント、敷金・礼金不要、IT重説対応物件、初期費用カード決済可 敷金積み増し【ペット飼育の場合敷金1ヶ月(総額)】 | ||
部屋の情報
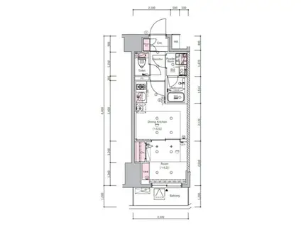
| 間取り | 1DK | 専有面積 | 25.64m2 |
|---|---|---|---|
| 所在階 / 向き | 10階 / - | バルコニー面積 | - |
| 水道 / ガス | - | ||
| 設備 | バス・トイレ別、2階以上、オートロック、テレビドアホン、宅配ボックス、浴室乾燥機、追い焚き、インターネット対応、システムキッチン、エアコン、エレベーター、温水洗浄便座、バルコニー、フローリング、洗髪洗面化粧台、2口コンロ、コンロ:ガス、CSアンテナ、BSアンテナ、インターネット使用料無料、洗濯機:室内 | ||
| 当社物件ID | 159983366 | ||
建物の情報
| 建物名 | シーフォルム住吉II | ||
|---|---|---|---|
| 所在地 | 東京都江東区大島 | ||
| 交通 | 都営新宿線 西大島駅 徒歩4分 東京メトロ半蔵門線 住吉駅(東京) 徒歩7分 JR総武線 亀戸駅 徒歩16分 | ||
| 階数 | 13階建 | 総戸数 | - |
| 築年月 | 2024年03月 / 築2年 | エレベーター | あり |
| 駐車場 | なし | バイク置き場 | - |
| 駐輪場 | あり | 管理人/管理会社 | - |
| 周辺環境 | その他 KAMEIDO CLOCK(カメイドクロック)(ショッピングセンター)まで1199m その他 セブンイレブン 江東西大島駅西店(コンビニ)まで41m その他 ローソン 西大島駅前店(コンビニ)まで331m その他 まいばすけっと 大島1丁目店(スーパー)まで446m その他 猿江恩賜公園(公園)まで468m その他 ブルーフィットネス24 西大島店(その他)まで429m | ||
| 建物種別 | マンション | 建物構造 | RC(鉄筋コンクリート) |
この部屋の取扱い不動産会社
| 会社名 | (株)Link Roomリンクルーム清澄白河本店(SUUMO経由) | ||
|---|---|---|---|
| 所在地 | 東京都江東区清澄3-6-15 オープンレジデンシア清澄白河102 | 交通 | - |
| 営業時間 | 10時~19時 | 定休日 | 不定休 |
| 免許番号 | 東京都知事108549 | 取引態様 | 仲介 |
| 不動産会社管理番号 | 100476004543 | 当社管理番号 | 89 |
| 取扱い物件情報 | 物件詳細へ | ||
※各種情報と現状に差異がある場合は、現状優先となります。問い合わせをすることで、より詳しい条件、情報を確認する事ができます。
提供:(株)Link Roomリンクルーム清澄白河本店(SUUMO経由)
この物件が気になったら掲載期限まであと10日
シーフォルム住吉IIに条件(家賃・エリア)が近い物件一覧
| 写真 | 家賃 管理費等 | 敷金 礼金 | 間取り 専有面積 | 築年数 | 最寄り駅 所在地 | キープ | 詳細 |
|---|---|---|---|---|---|---|---|
マンション XEBEC池上Ⅲ(1K/2階) | |||||||
![]() | 10.8万円 1.5万円 | なし 10.8万円 | 1K 25.84m2 | 築7年 | 東急池上線 池上駅 徒歩5分 東急池上線 千鳥町駅 徒歩13分 東京都大田区池上3丁目 | 詳細を見る | |
マンション クレストコート本所吾妻橋ノース(1LDK/3階) | |||||||
![]() | 15.5万円 1.5万円 | 15.5万円 なし | 1LDK 30.83m2 | 築1年 | 東京都浅草線 本所吾妻橋駅 徒歩3分 東京地下鉄銀座線 浅草駅(東武・都営・メトロ) 徒歩7分 東京都浅草線 浅草駅(東武・都営・メトロ) 徒歩9分 東京都墨田区吾妻橋2丁目 | 詳細を見る | |
マンション GRAN PASEO蒲田Ⅱ(1K/4階) | |||||||
![]() | 11.2万円 1万円 | なし なし | 1K 25.52m2 | 築4年 | 京浜急行電鉄本線 京急蒲田駅 徒歩3分 京浜急行電鉄本線 梅屋敷駅(東京) 徒歩5分 東京都大田区東蒲田1丁目 | 詳細を見る | |
マンション PLUMERIA BLANE プルメリアブラン(1LDK/1階) | |||||||
![]() | 15.3万円 3,000円 | 15.3万円 なし | 1LDK 48.99m2 | 築9年 | 京急本線 大森町駅 徒歩5分 京急本線 平和島駅 徒歩12分 京急本線 梅屋敷駅(東京) 徒歩13分 東京都大田区大森西 | 詳細を見る | |
マンション スカイコート両国壱番館(ワンルーム/11階) | |||||||
![]() | 9.31万円 5,900円 | 9.31万円 9.31万円 | ワンルーム 23.53m2 | 築24年 | 総武・中央緩行線 両国駅 徒歩3分 東京都浅草線 東日本橋駅 徒歩11分 東京都新宿線 浜町駅 徒歩16分 東京都墨田区両国2丁目 | 詳細を見る | |
マンション RJRプレシア千鳥(1K/2階) | |||||||
![]() | 9.7万円 1万円 | 9.7万円 9.7万円 | 1K 25.46m2 | 築2年 | 東急多摩川線 武蔵新田駅 徒歩5分 東急池上線 千鳥町駅 徒歩10分 東急多摩川線 矢口渡駅 徒歩12分 東京都大田区千鳥 | 詳細を見る | |
マンション メディオ月島(1K/4階) | |||||||
![]() | 12.5万円 6,000円 | 12.5万円 なし | 1K 25.36m2 | 築10年 | 東京都大江戸線 月島駅 徒歩3分 東京地下鉄有楽町線 月島駅 徒歩5分 東京都大江戸線 勝どき駅 徒歩9分 東京都中央区月島3丁目 | 詳細を見る | |








