賃貸マンション
コーポ高野の賃貸物件情報(1LDK/3階)
| 家賃 | 管理費等 | 敷金 | 礼金 | 間取り | 専有面積 |
|---|---|---|---|---|---|
| 6.7万円 | 3,000円 | 6.7万円 | 6.7万円 | 1LDK | 44.48m2 |
入居決定でお祝い金最大100,000円
- 保証金
- -
- 償却・敷引
- -
- 築年数
- 築42年
- 所在階
- 3階
- 向き
- 南
Point
【当社オススメ物件掲載中】理想のお部屋探しはハウスパートナーへ。希望の条件、審査、お部屋探しの不安なことなどなんでも相談してください!希望のお部屋が見つかるようにご協力させて頂きます。
提供:(株)ハウスパートナー大宮店(SUUMO経由)

詳細情報 コーポ高野
物件紹介
コーポ高野はJR川越線日進駅から徒歩8分にあり、駅近で通勤通学に便利なマンションです。
このお部屋は2階以上に位置しているので、通行人や周囲の住人からの視線が気になりにくく、防犯面でも安心。インターホンにはTVモニタもついているため、相手の顔を確認してから来客対応することができます。
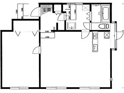
人気の南向きのお部屋。角部屋でもあるため、周囲の居住者の生活音も気になりにくい場所です。キッチンはシステムキッチン仕様になっていますので、お料理好きの方にもぴったり。また、バス・トイレは別で、のんびりお風呂タイムも楽しめるでしょう。
通信設備面では、インターネット接続が可能です。また、CATVにも対応しているので、おうち時間も充実するでしょう(別途工事、契約料が必要な場合あり)。
このお部屋は2階以上に位置しているので、通行人や周囲の住人からの視線が気になりにくく、防犯面でも安心。インターホンにはTVモニタもついているため、相手の顔を確認してから来客対応することができます。
人気の南向きのお部屋。角部屋でもあるため、周囲の居住者の生活音も気になりにくい場所です。キッチンはシステムキッチン仕様になっていますので、お料理好きの方にもぴったり。また、バス・トイレは別で、のんびりお風呂タイムも楽しめるでしょう。
通信設備面では、インターネット接続が可能です。また、CATVにも対応しているので、おうち時間も充実するでしょう(別途工事、契約料が必要な場合あり)。
お金・契約の情報
※「-」と表示されているものは、実際は料金が発生するものもございます。詳細はお問い合わせください。
| 家賃 | 6.7万円 | 管理費・共益費 | 3,000円 |
|---|---|---|---|
| 敷金 | 6.7万円 | 礼金 | 6.7万円 |
| 入居決定でお祝い金最大100,000円 | |||
| 保証金 | - | 償却・敷引 | - |
| 住宅保険料 | - | 更新料 | - |
| 保証会社利用 | 必須 | 保証会社名 | リクルートフォレントインシュア |
| 保証会社費用 | - | 保証会社備考 | オリコフォレントインシュア利用必 総賃料の50%、月額支払手数料総賃料の1.5% |
| 契約形態 | - | 契約期間 | - |
| 入居・引渡期間 | 相談 | 現況 | - |
| 契約備考 | 保険料18500円。水道代2500円/月。 更新料新賃料(ヶ月):1.00ヶ月 1LDK 普通借家2年 損保【要】 バストイレ別、バルコニー、エアコン、ガスコンロ対応、シャワー付洗面台、TVインターホン、室内洗濯置、システムキッチン、南向き、角住戸、温水洗浄便座、洗面所独立、2口コンロ、CATV、光ファイバー、最上階、対面式キッチン、保証人不要、敷金1ヶ月、エアコン全室、保証金不要、敷地内ごみ置き場、都市ガス、南面バルコニー、高速ネット対応、礼金1ヶ月、IT重説対応物件、初期費用カード決済可 | ||
部屋の情報
| 間取り | 1LDK | 専有面積 | 44.48m2 |
|---|---|---|---|
| 所在階 / 向き | 3階 / 南 | バルコニー面積 | - |
| 水道 / ガス | - | ||
| 設備 | バス・トイレ別、2階以上、テレビドアホン、インターネット対応、システムキッチン、エアコン、温水洗浄便座、南向き、角部屋、バルコニー、洗髪洗面化粧台、2口コンロ、コンロ:ガス、CATV、洗濯機:室内 | ||
| 当社物件ID | 40121262 | ||
建物の情報
| 建物名 | コーポ高野 | ||
|---|---|---|---|
| 所在地 | 埼玉県さいたま市北区日進町 | ||
| 交通 | JR川越線 日進駅(埼玉) 徒歩8分 埼玉新都市交通伊奈線 鉄道博物館駅 徒歩20分 埼玉新都市交通伊奈線 加茂宮駅 徒歩23分 | ||
| 階数 | 3階建 | 総戸数 | 5戸 |
| 築年月 | 1985年01月 / 築42年 | エレベーター | - |
| 駐車場 | なし | バイク置き場 | - |
| 駐輪場 | - | 管理人/管理会社 | - |
| 周辺環境 | その他 ファーマーズマーケット 大宮グルメ米ランド(スーパー)まで220m その他 ファミリーマート さいたま日進町南店(コンビニ)まで200m その他 さいたま市立日進小学校(小学校)まで130m その他 独立行政法人地域医療機能推進機構さいたま北部医療センター(病院)まで1900m その他 さいたま市立日進保育園(幼稚園・保育園)まで550m その他 イオン大宮店(ショッピングセンター)まで600m | ||
| 建物種別 | マンション | 建物構造 | RC(鉄筋コンクリート) |
この部屋の取扱い不動産会社
| 会社名 | (株)ハウスパートナー大宮店(SUUMO経由) | ||
|---|---|---|---|
| 所在地 | 埼玉県さいたま市大宮区桜木町1-1-4 TS-114ビル3階 | 交通 | - |
| 営業時間 | AM10:00~PM6:00 | 定休日 | 水曜日 |
| 免許番号 | 国土交通大臣9556 | 取引態様 | 仲介 |
| 不動産会社管理番号 | 100497199067 | 当社管理番号 | 89 |
| 所属団体 | (公社)全日本不動産協会埼玉県本部会員 | ||
| 公正取引協議会 | (公社)首都圏不動産公正取引協議会加盟 | ||
| 取扱い物件情報 | 物件詳細へ | ||
※各種情報と現状に差異がある場合は、現状優先となります。問い合わせをすることで、より詳しい条件、情報を確認する事ができます。
提供:(株)ハウスパートナー大宮店(SUUMO経由)
この物件が気になったら掲載期限まであと10日
コーポ高野に条件(家賃・エリア)が近い物件一覧
| 写真 | 家賃 管理費等 | 敷金 礼金 | 間取り 専有面積 | 築年数 | 最寄り駅 所在地 | キープ | 詳細 |
|---|---|---|---|---|---|---|---|
アパート 第2ジュネス黒田(3DK/2階) | |||||||
![]() | 6.2万円 3,000円 | 6.2万円 6.2万円 | 3DK 52.17m2 | 築34年 | 埼玉県さいたま市西区三橋 | 詳細を見る | |
アパート FLORIDO(1LDK/1階) | |||||||
![]() | 8.1万円 3,000円 | なし なし | 1LDK 28.01m2 | 築1年 | 川越線 西大宮駅 徒歩12分 埼玉県さいたま市西区三橋6丁目 | 詳細を見る | |
アパート コーポエル(ワンルーム/2階) | |||||||
![]() | 5.5万円 2,000円 | なし なし | ワンルーム 27.32m2 | 築20年 | 埼玉高速鉄道 鳩ケ谷駅 徒歩12分 埼玉高速鉄道 南鳩ケ谷駅 徒歩19分 埼玉高速鉄道 新井宿駅 徒歩22分 埼玉県川口市大字里 | 詳細を見る | |
マンション コーポワンマエノ(2DK/3階) | |||||||
![]() | 6万円 なし | なし 6万円 | 2DK 49.5m2 | 築37年 | 埼玉県志木市中宗岡3丁目 | 詳細を見る | |
アパート グランハイム稲葉A(3SDK/1階) | |||||||
![]() | 5.7万円 3,000円 | なし なし | 3SDK 47.1m2 | 築34年 | JR宇都宮線 蓮田駅 徒歩18分 埼玉新都市交通伊奈線 沼南駅 徒歩38分 埼玉新都市交通伊奈線 丸山駅(埼玉) 徒歩42分 埼玉県蓮田市 | 詳細を見る | |
マンション ジュネグリーン(3LDK/5階) | |||||||
![]() | 10.2万円 8,000円 | 10.2万円 なし | 3LDK 57.16m2 | 築37年 | JR京浜東北線 川口駅 徒歩19分 JR京浜東北線 西川口駅 徒歩26分 埼玉県川口市飯原町 | 詳細を見る | |
アパート クレアコート川口(1LDK/2階) | |||||||
![]() | 9.3万円 3,000円 | 9.3万円 なし | 1LDK 32.97m2 | 築8年 | JR京浜東北線 川口駅 徒歩16分 JR京浜東北線 西川口駅 徒歩20分 JR埼京線 浮間舟渡駅 徒歩46分 埼玉県川口市南町 | 詳細を見る | |
アパート レオパレスG&C(1K/1階) | |||||||
![]() | 7.4万円 5,000円 | なし 7.4万円 | 1K 19.87m2 | 築19年 | JR京浜東北線 西川口駅 徒歩13分 JR京浜東北線 川口駅 徒歩20分 埼玉高速鉄道 南鳩ケ谷駅 徒歩28分 埼玉県川口市西青木 | 詳細を見る | |









