賃貸マンション
シティコート目黒IIIの賃貸物件情報(2K/5階)
| 家賃 | 管理費等 | 敷金 | 礼金 | 間取り | 専有面積 |
|---|---|---|---|---|---|
| 20万円 | 1万円 | 20万円 | 20万円 | 2K | 40.38m2 |
入居決定でお祝い金最大100,000円
- 保証金
- -
- 償却・敷引
- -
- 築年数
- 築24年
- 所在階
- 5階
- 向き
- 北
Point
目黒・恵比寿・代官山・中目黒エリアの物件は是非東京プレミアム不動産へお任せください。未掲載物件も多くご用意していますのでお気軽にお問い合わせください。
提供:東京プレミアム不動産(株)(SUUMO経由)

詳細情報 シティコート目黒III
物件紹介
シティコート目黒IIIはJR山手線目黒駅から徒歩2分にあり、駅近で通勤通学に便利なマンションです。
このお部屋は2階以上に位置しているので、通行人や周囲の住人からの視線が気になりにくく、防犯面でも安心。建物のエントランスはオートロックがついており、インターホンにはTVモニタもついているため、相手の顔を確認してから来客対応することができます。
人気の南向きのお部屋。また、フローリングなのでお掃除もラクラク。キッチンはシステムキッチン仕様になっていますので、お料理好きの方にもぴったり。バス・トイレは別なので、のんびりお風呂タイムも楽しめるでしょう。また、雨の日でも浴室乾燥機を使えば、お洗濯も問題ありません。
通信設備面では、インターネット接続が可能です。また、BSアンテナ・CSアンテナがありCATVにも対応しているので、おうち時間も充実するでしょう(別途工事、契約料が必要な場合あり)。
建物にはエレベーターがついているので、重い荷物があっても安心。
このお部屋は2階以上に位置しているので、通行人や周囲の住人からの視線が気になりにくく、防犯面でも安心。建物のエントランスはオートロックがついており、インターホンにはTVモニタもついているため、相手の顔を確認してから来客対応することができます。
人気の南向きのお部屋。また、フローリングなのでお掃除もラクラク。キッチンはシステムキッチン仕様になっていますので、お料理好きの方にもぴったり。バス・トイレは別なので、のんびりお風呂タイムも楽しめるでしょう。また、雨の日でも浴室乾燥機を使えば、お洗濯も問題ありません。
通信設備面では、インターネット接続が可能です。また、BSアンテナ・CSアンテナがありCATVにも対応しているので、おうち時間も充実するでしょう(別途工事、契約料が必要な場合あり)。
建物にはエレベーターがついているので、重い荷物があっても安心。
お金・契約の情報
※「-」と表示されているものは、実際は料金が発生するものもございます。詳細はお問い合わせください。
| 家賃 | 20万円 | 管理費・共益費 | 1万円 |
|---|---|---|---|
| 敷金 | 20万円 | 礼金 | 20万円 |
| 入居決定でお祝い金最大100,000円 | |||
| 保証金 | - | 償却・敷引 | - |
| 住宅保険料 | - | 更新料 | - |
| 保証会社利用 | 必須 | 保証会社名 | リクルートフォレントインシュア |
| 保証会社費用 | - | 保証会社備考 | オリコフォレントインシュア利用必 初回保証料:賃料等合計額の0.5ヵ月分、継続月額保証料1.2% |
| 契約形態 | - | 契約期間 | - |
| 入居・引渡期間 | 即時 | 現況 | - |
| 契約備考 | 通勤管理/敷地内駐車場空きあり、バイク置場、駐輪場、フロント、短期違約金あり:(契約開始後1年以内解約の場合、賃料1か月分)、更新料:新賃料+共益費合計額1ヵ月分 合計2.75万円(内訳:鍵交換代) 清掃費(退去時)60,570円(税別) 2K 単身者可/二人入居可/子供可 損保【1.8万円2年】 バストイレ別、バルコニー、エアコン、クロゼット、フローリング、TVインターホン、浴室乾燥機、オートロック、室内洗濯置、シューズボックス、システムキッチン、追焚機能浴室、温水洗浄便座、洗面所独立、洗面化粧台、駐輪場、CATV、光ファイバー、即入居可、3口以上コンロ、防犯カメラ、オートバス、保証人不要、駐車2台可、バイク置場、ガスレンジ付、CS、南面リビング、エレベーター2基、耐火構造、耐震構造、2駅利用可、3沿線以上利用可、駅徒歩5分以内、24時間ゴミ出し可、敷地内ごみ置き場、日勤管理、都市ガス、BS | ||
部屋の情報
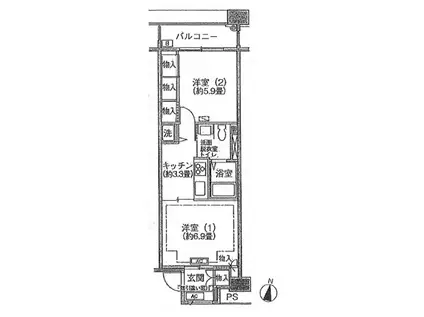
| 間取り | 2K | 専有面積 | 40.38m2 |
|---|---|---|---|
| 所在階 / 向き | 5階 / 北 | バルコニー面積 | - |
| 水道 / ガス | - | ||
| 設備 | バス・トイレ別、2階以上、オートロック、テレビドアホン、浴室乾燥機、追い焚き、インターネット対応、システムキッチン、エアコン、エレベーター、温水洗浄便座、南向き、バルコニー、フローリング、洗髪洗面化粧台、2口コンロ、コンロ:ガス、CATV、CSアンテナ、BSアンテナ、洗濯機:室内 | ||
| 当社物件ID | 30598603 | ||
建物の情報
| 建物名 | シティコート目黒III | ||
|---|---|---|---|
| 所在地 | 東京都品川区上大崎 | ||
| 交通 | JR山手線 目黒駅 徒歩2分 東京メトロ南北線 白金台駅 徒歩13分 JR山手線 恵比寿駅 徒歩15分 | ||
| 階数 | 6階建 | 総戸数 | - |
| 築年月 | 2002年08月 / 築24年 | エレベーター | あり |
| 駐車場 | 空有 30000円 | バイク置き場 | あり |
| 駐輪場 | あり | 管理人/管理会社 | - |
| 周辺環境 | その他 アトレ目黒店(ショッピングセンター)まで336m その他 目黒東急ストア(スーパー)まで154m その他 ファミリーマート目黒一丁目店(コンビニ)まで335m その他 サークルK上大崎二丁目店(コンビニ)まで192m その他 スターバックスコーヒー目黒店(飲食店)まで434m その他 マクドナルド目黒店(飲食店)まで500m | ||
| 建物種別 | マンション | 建物構造 | RC(鉄筋コンクリート) |
この部屋の取扱い不動産会社
| 会社名 | 東京プレミアム不動産(株)(SUUMO経由) | ||
|---|---|---|---|
| 所在地 | 東京都港区南青山7-14-6 南青山TCビル5階 | 交通 | - |
| 営業時間 | 10:00~19:00 | 定休日 | 水曜日 |
| 免許番号 | 東京都知事91837 | 取引態様 | 仲介 |
| 不動産会社管理番号 | 100490032733 | 当社管理番号 | 89 |
| 所属団体 | (公社)東京都宅地建物取引業協会会員 | ||
| 公正取引協議会 | (公社)首都圏不動産公正取引協議会加盟 | ||
| 取扱い物件情報 | 物件詳細へ | ||
※各種情報と現状に差異がある場合は、現状優先となります。問い合わせをすることで、より詳しい条件、情報を確認する事ができます。
提供:東京プレミアム不動産(株)(SUUMO経由)
この物件が気になったら掲載期限まであと11日
シティコート目黒IIIに条件(家賃・エリア)が近い物件一覧
| 写真 | 家賃 管理費等 | 敷金 礼金 | 間取り 専有面積 | 築年数 | 最寄り駅 所在地 | キープ | 詳細 |
|---|---|---|---|---|---|---|---|
一戸建て 京浜急行電鉄本線 梅屋敷駅(東京) 徒歩9分 築25年(3LDK) | |||||||
![]() | 20万円 なし | 20万円 20万円 | 3LDK 80.82m2 | 築25年 | 京浜急行電鉄本線 梅屋敷駅(東京) 徒歩9分 京浜東北・根岸線 蒲田駅 徒歩10分 東京都大田区大森西7丁目 | 詳細を見る | |
一戸建て 東京都新宿線 大島駅(東京) 徒歩7分 築77年(1DK) | |||||||
![]() | 15.8万円 なし | 15.8万円 15.8万円 | 1DK 27.91m2 | 築77年 | 東京都新宿線 大島駅(東京) 徒歩7分 東京都新宿線 西大島駅 徒歩7分 総武・中央緩行線 亀戸駅 徒歩11分 東京都江東区大島3丁目 | 詳細を見る | |
アパート ビレッジひの木B棟(1LDK/2階) | |||||||
![]() | 13.2万円 2,000円 | 13.2万円 13.2万円 | 1LDK 39.66m2 | 築31年 | 京浜急行電鉄本線 梅屋敷駅(東京) 徒歩7分 京浜急行電鉄本線 京急蒲田駅 徒歩9分 東京都大田区蒲田2丁目 | 詳細を見る | |
マンション RR HIRANO(1LDK/3階) | |||||||
![]() | 21万円 なし | 42万円 21万円 | 1LDK 56.21m2 | 築35年 | 東京メトロ半蔵門線 清澄白河駅 徒歩9分 都営大江戸線 清澄白河駅 徒歩9分 東京メトロ東西線 門前仲町駅 徒歩16分 東京都江東区平野 | 詳細を見る | |
一戸建て 京浜急行電鉄本線 大森町駅 徒歩14分 築23年(3LDK) | |||||||
![]() | 20万円 なし | 20万円 20万円 | 3LDK 71.86m2 | 築23年 | 京浜急行電鉄本線 大森町駅 徒歩14分 京浜急行電鉄本線 梅屋敷駅(東京) 徒歩16分 東京都大田区大森東4丁目 | 詳細を見る | |
マンション クレストコート門前仲町(1DK/10階) | |||||||
![]() | 15.8万円 1.2万円 | 15.8万円 なし | 1DK 26.14m2 | 築1年 | 東京地下鉄東西線 門前仲町駅 徒歩7分 東京都江東区永代1丁目 | 詳細を見る | |
マンション 京浜急行電鉄本線 梅屋敷駅(東京) 徒歩4分 築36年(3LDK/2階) | |||||||
![]() | 23万円 7,000円 | 23万円 23万円 | 3LDK 84.68m2 | 築36年 | 京浜急行電鉄本線 梅屋敷駅(東京) 徒歩4分 京浜急行電鉄本線 大森町駅 徒歩12分 東京都大田区大森西6丁目 | 詳細を見る | |
マンション メゾンド・シャンテ(1LDK/1階) | |||||||
![]() | 15.5万円 3,000円 | 15.5万円 なし | 1LDK 40.05m2 | 築4年 | 京急本線 梅屋敷駅(東京) 徒歩6分 京急本線 京急蒲田駅 徒歩13分 JR京浜東北線 蒲田駅 徒歩15分 東京都大田区蒲田 | 詳細を見る | |







/105x80-f1-q70-wp1)

